+7 (495) 032-68-64 Продать объект Продать объект
О компании Аналитика Стать партнёром Карьера Контакты
Sky Garden (Скай Гарден)
NF Group
NF Group
NF Group
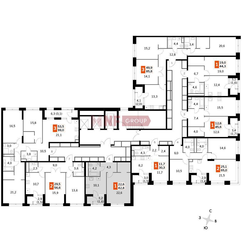
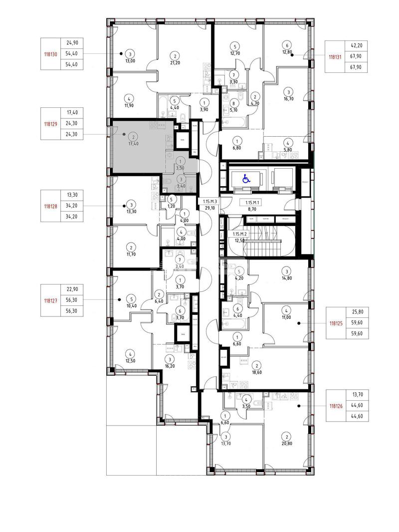
Планировки

1-комн. квартира 43 м², 20 этаж - Sky Garden

Тушинская
Этажей 26 Срок сдачи 3 квартал 2025 г.
18 782 118
435 780  ₽/м²
231 339
5 367  $/м²
200 850
4 660  €/м²
$
Whatsapp
18 782 118
435 780  ₽/м²
231 339
5 367  $/м²
200 850
4 660  €/м²
$
ID as76626
 Дмитрий Щеголев
Дмитрий Щеголев
Руководитель отдела продаж новостроек
NF Group
Предложите нам свою цену, и мы свяжемся с вами

Описание

В одном из районов Москвы, а именно в Покровское-Стрешнево активно ведутся работы по строительству нового жилого комплекса «Скай Гарден» из 4 небоскрёбов бизнес-класса. Как известно, этот столичный район является одним из самых красивых во всём Северо-Западном административном округе.

Большое количество ультрасовременных и новых домов, облагороженные парковые зоны, пляжная линия у канала им.Москвы и, конечно, благоприятная экологическая обстановка делают Покровское-Стрешнево одним из самых востребованных районов для приобретения недвижимости.

Территория, отведённая под ЖК Sky Garden с придомовой территорией, составляет более 4.5 Га. Здесь возводятся многосекционные дома высотой в 12-43 этажа, окончательная сдача в эксплуатацию которых ожидается во второй половине 2026 года. Свыше 3 500 квартир и более 35 вариантов различных планировок ждут вас в случае подбора недвижимости в этом жилом комплексе.

Застройщиком ЖК «Скай Гарден» является компания ФСК, а архитектурные решения реализуются по проекту известного архитектурного бюро Ginzburg Architects, получившего многочисленные награды за свои проекты в области реставрации и строительства домов.

В «Скай Гарден» вы сможете купить квартиру бизнес-класса под любые запросы. Здесь предлагаются как небольшие варианты площадью в 24 кв.м, так и просторные квартиры до 120 квадратов. Что касается количества комнат, то представлены в широком разнообразии и студийные форматы, и 1-3 спальные квартиры, и евро-недвижимость с объединённой кухней и гостиной.

Более подробно ознакомиться с планировками, особенностями и вариантами отделки квартир вы можете, подбирая квартиру на сайте нашей компании.

Sky Garden в Тушино — это развитая инфраструктура с собственным большим парком, школой и детским садом, поликлиниками и магазинами, аптеками, банками и большим количеством других инфраструктурных объектов.

Здесь вы сможете в полной мере наслаждаться комфортом, а также получить доступ к сервисному обслуживанию ЖК «Скай Гарден», которое, к слову, соответствует категории 5 звёзд.

Характеристики

О квартире

Тип сделки
Продажа
Отделка
Под отделку
Тип объекта
Квартира
Этаж
20 из 26
Общая площадь
43 м²
Уровней
1
Высота потолков
3.1 м

О жилом комплексе

Площадь квартир
от 44 до 112 м²
Строится
3 кв. 2025
Этажность
26
Класс
Бизнес

Адрес

Город Москва
Округ СЗАО
Район Покровское-Стрешнево
Адрес Строительный проезд, д.9

Все предложения в категориях

Коммерческая недвижимость в Москве 18410 Элитная недвижимость в Подмосковье 7958 Продажа квартир с базовой ценой в рублях 6277 Элитная недвижимость в Москве 6277 Элитные квартиры в Москве и Подмосковье 6152 Элитные квартиры в Москве 5911 Квартиры в новостройках (ЖК) Москвы 5554 Строящиеся квартиры в Москве 4922 Квартиры под отделку в Москве 4561 Квартиры под отделку в строящихся домах 3967 Квартиры в пределах МКАД 3743 Вторичное жилье: однокомнатные квартиры в Москве 1204 Квартиры в СЗАО 1183 Однокомнатные элитные квартиры 1163 Квартиры под отделку в СЗАО 1144 Строящиеся однокомнатные квартиры 1053 Однокомнатные квартиры с отделкой 1053 Квартиры в районе Покровское-Стрешнево 1013 Купить квартиру площадью 40 кв. м. в Москве 847 Квартиры на Таганско-Краснопресненской линии метро (Фиолетовая ветка) 413 Недвижимость от застройщика ГК ФСК 409 Квартиры от застройщика ГК ФСК 403 Продажа квартир у метро Тушинская 191

Получите подробную презентацию объекта

NF Group

Записаться на экскурсию по объекту

Подберите ипотеку

Подавая заявку в несколько банков, вы увеличиваете шанс на одобрение ипотеки
Стоимость недвижимости
20 млн.
950 млн.
Первоначальный взнос
20 %
90 %
Срок
1 год
30 лет
Процентная ставка
3%
100%
Сумма кредита
524 700 000 ₽
Ежемесячный платеж
524 700 000 ₽
индивидуальный %
до 30 лет
индивидуальный %
до 30 лет
индивидуальный %
до 30 лет
индивидуальный %
до 30 лет
индивидуальный %
до 35 лет
индивидуальный %
до 30 лет
NF Group
Особые условия по ипотеке для клиентов NF GROUP

Новостройка Sky Garden

В одном из районов Москвы, а именно в Покровское-Стрешнево активно ведутся работы по строительству нового жилого комплекса «Скай Гарден» из 4 небоскрёбов бизнес-класса. Как известно, этот столичный район является одним из самых красивых во всём Северо-Западном административном округе.

Большое количество ультрасовременных и новых домов, облагороженные парковые зоны, пляжная линия у канала им.Москвы и, конечно, благоприятная экологическая обстановка делают Покровское-Стрешнево одним из самых востребованных районов для приобретения недвижимости.

Строится 3 кв. 2025
Этажей 26
Все предложения в этом комплексе
NF Group

Посмотрите похожие предложения

/
1-комн. квартира 34 м², 18 этаж - VEER
ЗАО Можайский Верейская ул., 29
21 221 100 ₽
Свернуть
ID: as88218

1-комн. квартира 34 м², 18 этаж - VEER

ЗАО Можайский Верейская ул., 29
21 221 100 ₽
Площадь 34 м²
Этаж 18
1 комната
Без отделки
 Дмитрий Щеголев
Дмитрий Щеголев
Руководитель отдела продаж новостроек
WhatsApp Позвонить
1-комн. квартира 36 м², 19 этаж - Sky Garden
СЗАО Покровское-Стрешнево Строительный проезд, д.9
18 461 448 ₽
Свернуть
ID: as75224

1-комн. квартира 36 м², 19 этаж - Sky Garden

СЗАО Покровское-Стрешнево Строительный проезд, д.9
18 461 448 ₽
Площадь 35 м²
Этаж 19
1 комната
С отделкой
 Дмитрий Щеголев
Дмитрий Щеголев
Руководитель отдела продаж новостроек
WhatsApp Позвонить
1-комн. квартира 34 м², 20 этаж - VEER
ЗАО Можайский Верейская ул., 29
21 279 240 ₽
Свернуть
ID: as87644

1-комн. квартира 34 м², 20 этаж - VEER

ЗАО Можайский Верейская ул., 29
21 279 240 ₽
Площадь 34 м²
Этаж 20
1 комната
Без отделки
 Дмитрий Щеголев
Дмитрий Щеголев
Руководитель отдела продаж новостроек
WhatsApp Позвонить
1-комн. квартира 40 м², 20 этаж - VEER
ЗАО Можайский Верейская ул., 29
20 910 000 ₽
Свернуть
ID: as87674

1-комн. квартира 40 м², 20 этаж - VEER

ЗАО Можайский Верейская ул., 29
20 910 000 ₽
Площадь 40 м²
Этаж 20
1 комната
Без отделки
 Дмитрий Щеголев
Дмитрий Щеголев
Руководитель отдела продаж новостроек
WhatsApp Позвонить
1-комн. квартира 33 м², 20 этаж - VEER
ЗАО Можайский Верейская ул., 29
20 339 140 ₽
Свернуть
ID: as88004

1-комн. квартира 33 м², 20 этаж - VEER

ЗАО Можайский Верейская ул., 29
20 339 140 ₽
Площадь 32 м²
Этаж 20
1 комната
Без отделки
 Дмитрий Щеголев
Дмитрий Щеголев
Руководитель отдела продаж новостроек
WhatsApp Позвонить
1-комн. квартира 39 м², 20 этаж - City Bay
СЗАО Покровское-Стрешнево Волоколамское ш., 95, к. 4
20 283 138 ₽
Свернуть
ID: as90634

1-комн. квартира 39 м², 20 этаж - City Bay

СЗАО Покровское-Стрешнево Волоколамское ш., 95, к. 4
20 283 138 ₽
Площадь 39 м²
Этаж 20
1 комната
Без отделки
 Дмитрий Щеголев
Дмитрий Щеголев
Руководитель отдела продаж новостроек
WhatsApp Позвонить
1-комн. квартира 52 м², 21 этаж - Sky Garden
СЗАО Покровское-Стрешнево Строительный проезд, д.9
21 378 654 ₽
Свернуть
ID: as78950

1-комн. квартира 52 м², 21 этаж - Sky Garden

СЗАО Покровское-Стрешнево Строительный проезд, д.9
21 378 654 ₽
Площадь 51 м²
Этаж 21
1 комната
Без отделки
 Дмитрий Щеголев
Дмитрий Щеголев
Руководитель отдела продаж новостроек
WhatsApp Позвонить
Квартира 25 м², 21 этаж - VEER
ЗАО Можайский Верейская ул., 29
16 126 200 ₽
Свернуть
ID: as88072

Квартира 25 м², 21 этаж - VEER

ЗАО Можайский Верейская ул., 29
16 126 200 ₽
Площадь 24 м²
Этаж 21
Без отделки
 Дмитрий Щеголев
Дмитрий Щеголев
Руководитель отдела продаж новостроек
WhatsApp Позвонить
1-комн. квартира 40 м², 21 этаж - VEER
ЗАО Можайский Верейская ул., 29
20 959 470 ₽
Свернуть
ID: as88895

1-комн. квартира 40 м², 21 этаж - VEER

ЗАО Можайский Верейская ул., 29
20 959 470 ₽
Площадь 39 м²
Этаж 21
1 комната
Без отделки
 Дмитрий Щеголев
Дмитрий Щеголев
Руководитель отдела продаж новостроек
WhatsApp Позвонить
Квартира 24 м², 18 этаж - VEER
ЗАО Можайский Верейская ул., 29
16 420 725 ₽
Свернуть
ID: as88104

Квартира 24 м², 18 этаж - VEER

ЗАО Можайский Верейская ул., 29
16 420 725 ₽
Площадь 24 м²
Этаж 18
Без отделки
 Дмитрий Щеголев
Дмитрий Щеголев
Руководитель отдела продаж новостроек
WhatsApp Позвонить

Отзывы застройщиков о NF GROUP

/
Башня «Федерации» рекомендует международную консалтинговую компанию NF GROUP как верного и профессионального партнера, обладающего высочайшей экспертизой и передовыми знаниями в сфере элитной недвижимости.
Читать весь отзыв
Смирнов М. Ю.
Смирнов М. Ю.
Генеральный директор
«Центр-Инвест» выражает особую благодарность консалтинговой компании NF GROUP за ответственный и грамотный подход, а также исключительное качество услуг.
Читать весь отзыв
Задорожная Джанет Бекманбетовна
Задорожная Джанет Бекманбетовна
Руководитель проектов продаж Департамента продаж премиальных проектов
Благодарим NF GROUP за внимательное отношение к интересам нашей компании и непревзойденный профессионализм.
Читать весь отзыв
Непейвода А.А.
Непейвода А.А.
Руководитель департамента маркетинга и продаж
Благодарим команду NF GROUP за многолетнее успешное сотрудничество и партнерские отношения в работе.
Читать весь отзыв
Дивеева О.А.
Дивеева О.А.
Директор по продажам Capital Group

Получите консультацию эксперта NF GROUP

Как вам удобнее общаться?
Дмитрий Щеголев
Дмитрий Щеголев
Руководитель отдела продаж новостроек

Вы смотрели

/
1-комн. квартира 44 м², 17 этаж - Sky Garden
СЗАО Покровское-Стрешнево Строительный проезд, д.9
19 918 288 ₽
Свернуть
ID: as73306

1-комн. квартира 44 м², 17 этаж - Sky Garden

СЗАО Покровское-Стрешнево Строительный проезд, д.9
19 918 288 ₽
Площадь 44 м²
Этаж 17
1 комната
Без отделки
 Дмитрий Щеголев
Дмитрий Щеголев
Руководитель отдела продаж новостроек
WhatsApp Позвонить
2-комн. квартира 67 м², 19 этаж - Sky Garden
СЗАО Покровское-Стрешнево Строительный проезд, д.9
24 852 005 ₽
Свернуть
ID: as81822

2-комн. квартира 67 м², 19 этаж - Sky Garden

СЗАО Покровское-Стрешнево Строительный проезд, д.9
24 852 005 ₽
Площадь 66 м²
Этаж 19
2 комнаты
Без отделки
 Дмитрий Щеголев
Дмитрий Щеголев
Руководитель отдела продаж новостроек
WhatsApp Позвонить
1-комн. квартира 45 м², 17 этаж - Sky Garden
СЗАО Покровское-Стрешнево Строительный проезд, д.9
19 196 028 ₽
Свернуть
ID: as73307

1-комн. квартира 45 м², 17 этаж - Sky Garden

СЗАО Покровское-Стрешнево Строительный проезд, д.9
19 196 028 ₽
Площадь 45 м²
Этаж 17
1 комната
Без отделки
 Дмитрий Щеголев
Дмитрий Щеголев
Руководитель отдела продаж новостроек
WhatsApp Позвонить
1-комн. квартира 44 м², 18 этаж - City Bay
СЗАО Покровское-Стрешнево Волоколамское ш., 95, к. 4
22 031 503 ₽
Свернуть
ID: as93924

1-комн. квартира 44 м², 18 этаж - City Bay

СЗАО Покровское-Стрешнево Волоколамское ш., 95, к. 4
22 031 503 ₽
Площадь 43 м²
Этаж 18
1 комната
Без отделки
 Дмитрий Щеголев
Дмитрий Щеголев
Руководитель отдела продаж новостроек
WhatsApp Позвонить
NF Group
Авторизация
Мы используем файлы cookie, чтобы улучшить сервис для вас.
Соглашение об использовании