Москва
Санкт-Петербург
+7 (495) 032-68-64 Продать объект Продать объект
Москва
Санкт-Петербург
О компании Аналитика Стать партнёром Карьера Контакты
«Ильинка 3/8» (Ilinka 3/8)
NF Group
NF Group
NF Group
NF Group
NF Group
NF Group
NF Group
NF Group
NF Group
NF Group
NF Group
NF Group
NF Group
NF Group
NF Group
Планировки

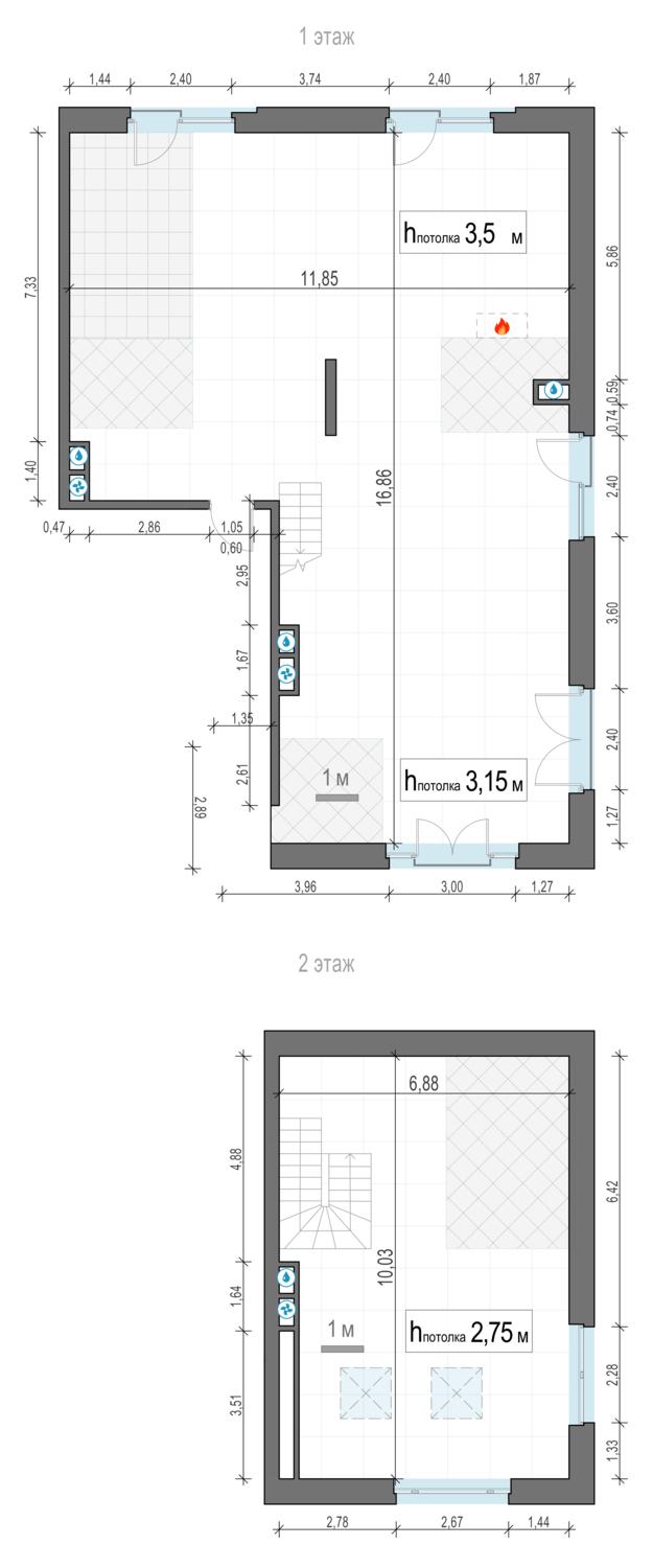
3-комн. квартира 214 м², 5 этаж - «Ильинка 3/8»

Театральная, Площадь Революции, Охотный Ряд
Этажей 5 Срок сдачи 3 квартал 2025 г.
674 490 000
3 151 822  ₽/м²
8 539 491
39 904  $/м²
7 329 556
34 250  €/м²
$
Whatsapp
674 490 000
3 151 822  ₽/м²
8 539 491
39 904  $/м²
7 329 556
34 250  €/м²
$
ID as85801
 Константин Андрюшин
Константин Андрюшин
Директор направления по продажам новостроек
NF Group
Предложите нам свою цену, и мы свяжемся с вами

Описание

«Ильинка 3/8» — самые близкие к Кремлю и Красной площади сервисные резиденции в клубных особняках.

«Ильинка 3/8» отличается престижной локацией рядом со знаковыми местами: 160 метров до Красной площади, 300 метров до Кремля, 500 метров до Администрации Президента.

Сервисные резиденции в клубных особняках расположены на одноимённой старейшей деловой и торговой улице Москвы с 7-вековой историей, на месте Тёплых торговых рядов — памятника архитектуры XIX века, созданного архитектором Александром Никитиным. Ранее в этой исторической локации проживали представители царского рода, в частности царица Мария Шуйская, супруга русского царя Василия Шуйского.

По соседству с «Ильинкой 3/8» находятся одна из старейших в городе Богоявленская церковь и Биржевая площадь. При этом расположение дарит резидентам комфорт и разнообразие: пересечение Ильинки и тихого Богоявленского переулка с минимальным трафиком автомобилей, близость Никольской улицы с её насыщенной инфраструктурой — от топовых бутиков до ресторанов Michelin.

«Ильинка 3/8» — это сервисные резиденции в 7 эксклюзивных и роскошных особняках: 3 исторических и 4 современных. Входную группу представляет изысканное центральное лобби с историческими сводами и отделкой из мрамора. В оформлении использованы серия работ Владимира Клавихо-Телепнева Kremlin и барельефы мифических существ.

В «Ильинке 3/8» представлен деликатный сервис отельного уровня для регулярного и нерегулярного пребывания: клининг резиденции, замена постельного белья и полотенец, уход за растениями, персональные услуги консьержа, кейтеринг, room service и многое другое. Резидент может выбрать необходимые ему услуги и сервисы, в том числе на период своего отсутствия.

В сервисных резиденциях представлена насыщенная приватная инфраструктура только для своих. Для приятного и комфортного досуга создан красивый двор-сад с парадной и торжественной входной группой. В лобби-баре можно выпить чашечку кофе. Только для резидентов создан Clubhouse с инфраструктурой для общения и здорового образа жизни: Lounge для проведения частных мероприятий и встреч с гостями и бесплатный фитнес по стандарту Fit Lab — для занятий спортом не нужно никуда ехать и даже выходить на улицу в плохую погоду.

В «Ильинке 3/8» представлены самые полные и лучшие в своём классе системы комфорта: приточно-вытяжная вентиляция с фильтрацией воздуха, системы увлажнения для каждой резиденции, технологичные системы кондиционирования от лучших мировых производителей, очистка воды до уровня бутилированной, горячая вода круглый год, премиальные скоростные бесшумные лифты, автоматизированная система управления зданием. Клубные особняки отличают технологии тишины и приватности, в каждой резиденции уникальная система звукоизоляции. На подземном этаже расположен красивый комфортный и просторный паркинг.

Сервисные резиденции в клубных особняках «Ильинка 3/8» — это собрание 60 роскошных лотов, в том числе резиденции с чистовой отделкой качественным дизайном интерьеров, сантехникой, кухонным гарнитуром, бытовой техникой премиальных брендов. Трёхэтажные особняки для одной семьи с отдельным входом, личным фитнесом, дровяными каминами и потолками высотой до 6 м. Пентхаусы с каминами, террасами, потолками высотой до 6 м, уникальными видами на Кремль и храм Василия Блаженного. Резиденции на первом этаже со своим персональным патио и живой зелёной изгородью. Обладатели собственных террас могут выпить утренний кофе или поужинать с бокалом вина, наслаждаясь видом на старую Москву и Кремль.

Характеристики

О квартире

Тип сделки
Продажа
Отделка
Под отделку
Тип объекта
Квартира
Этаж
5 из 5
Общая площадь
214 м²
Уровней
1
Высота потолков
3.5 м

О жилом комплексе

Площадь квартир
от 40 до 435 м²
Строится
3 кв. 2025
Этажность
5
Класс
Элит

Адрес

Город Москва
Округ ЦАО
Район Тверской
Адрес Ильинка ул., 3/8, стр. 3

Все предложения в категориях

Коммерческая недвижимость в Москве 18524 Элитная недвижимость в Подмосковье 7997 Продажа квартир с базовой ценой в рублях 6330 Элитная недвижимость в Москве 6330 Элитные квартиры в Москве и Подмосковье 6206 Элитные квартиры в Москве 5965 Квартиры в новостройках (ЖК) Москвы 5601 Строящиеся квартиры в Москве 4967 Квартиры под отделку в Москве 4611 Квартиры под отделку в строящихся домах 4011 Продажа элитных квартир в центре Москвы 1699 Квартиры в центре в москве 1699 Новостройки в центре Москвы 1506 Трехкомнатные квартиры в Москве 1462 Элитные квартиры в новостройке в ЦАО 1449 Трехкомнатные квартиры в новостройке 1376 Строящиеся квартиры в ЦАО 1227 Квартиры под отделку в ЦАО 1180 Трехкомнатные квартиры в строящихся доах 1176 Трехкомнатные квартиры без отделки в Москве 1016 Квартиры на Замоскворецкой линии метро (Зеленая ветка) 712 Квартиры в пределах Садового кольца 710 Недвижимость класса de luxe 530 Трехкомнатные квартиры в центре Москвы 512 Квартиры на Арбатско-Покровской линии метро (Синяя ветка) 420 Квартиры в Мещанском районе 344 Квартиры в Тверском районе 145 Квартиры на Чеховской 135 Продажа квартир у метро Театральная 98 Продажа квартир у метро Охотный ряд 96 Продажа элитных квартир на улице Охотный Ряд 93 Продажа строящихся квартир у метро Театральная 93 Продажа строящихся квартир в районе Тверской 88 Продажа квартир у метро Площадь Революции 82 Продажа строящихся квартир у метро Охотный Ряд 80 Строящиеся квартиры у метро Площадь Революции 80 Квартиры рядом с Кремлем 75 Продажа квартиры под отделку в Тверском районе 65 Трехкомнатные квартиры на Пушкинской 51 Трехкомнатные квартиры в районе Тверской 50 Квартиры под отделку у метро Театральная 44 Квартиры под отделку у метро Охотный Ряд 43 Квартиры под отделку у метро Площадь Революции 41 Трехкомнатные квартиры у метро Охотный Ряд 37 Трехкомнатные квартиры у метро Театральная 33 Трехкомнатные квартиры у метро Площадь Революции 29

Получите подробную презентацию объекта

NF Group

Инфраструктура района

Преимущества
Тверской район – главный исторический район центра Москвы и по совместительству богатейший с культурной точки зрения. На территории района находятся Кремль, Большой и Малый театры,10 музеев, 17 известных театров, памятники архитектуры и старинные улочки. Именно здесь расположены знаковые fashion-пространства: Столешников переулок, ЦУМ, ГУМ и Петровский пассаж.
Образование
Гимназия № 1540, престижные школы № 1574, № 1275, № 128, № 1501, № 2054, курсы английского языка, школа журналистики «Известия», более 10 частных детских садов, в том числе с углубленным изучением иностранных языков. Здесь находятся несколько факультетов МГУ им. Ломоносова: психологический факультет, ИСАА, факультет искусств и факультет журналистики, а также ГИТИС.
Инфраструктура
В Тверском районе находятся 15 крупных торговых центров, многочисленные модные бутики, меховые, обувные и ювелирные салоны; более 15 салонов красоты и спа
Культура
Район – культурное и историческое сердце столицы, где на каждом шагу встречаются архитектурные памятники разных эпох. Библиотека им. Ленина, Большой театр, театр «Россия», «Ленком», театр Ермоловой, Музыкальный театр Станиславского, Зоологический музей, Геологический музей, гостиница «Москва», Красная площадь, Кремль, ГУМ, ЦУМ, Покровский собор, храм Николы Чудотворца у Тверской заставы, Елисеевский магазин.
Спорт
19 фитнес-клубов с бассейнами и спа-зонами: X-Fit Столешников, Topstretching, Soul Unit, MyFitLab, Top-Pilates и т.д.
Все
Магазины и услуги
Развлечения
Образование
Спорт и здоровье

Записаться на экскурсию по объекту

Подберите ипотеку

Подавая заявку в несколько банков, вы увеличиваете шанс на одобрение ипотеки
Стоимость недвижимости
20 млн.
950 млн.
Первоначальный взнос
20 %
90 %
Срок
1 год
30 лет
Процентная ставка
3%
100%
Сумма кредита
524 700 000 ₽
Ежемесячный платеж
524 700 000 ₽
индивидуальный %
до 30 лет
индивидуальный %
до 30 лет
индивидуальный %
до 30 лет
индивидуальный %
до 30 лет
индивидуальный %
до 35 лет
индивидуальный %
до 30 лет
NF Group
Особые условия по ипотеке для клиентов NF GROUP

Новостройка «Ильинка 3/8»

«Ильинка 3/8» — самые близкие к Кремлю и Красной площади сервисные резиденции в клубных особняках.

«Ильинка 3/8» отличается престижной локацией рядом со знаковыми местами: 160 метров до Красной площади, 300 метров до Кремля, 500 метров до Администрации Президента.

Сервисные резиденции в клубных особняках расположены на одноимённой старейшей деловой и торговой улице Москвы с 7-вековой историей, на месте Тёплых торговых рядов — памятника архитектуры XIX века, созданного архитектором Александром Никитиным. Ранее в этой исторической локации проживали представители царского рода, в частности царица Мария Шуйская, супруга русского царя Василия Шуйского.

Площадь 12000 м²
Строится 3 кв. 2025
Этажей 5
Все предложения в этом комплексе
NF Group

Посмотрите похожие предложения

/
Только в NF GROUP
5-комн. квартира 500 м², 4-5 этаж - «Кривоарбатский переулок, 13стр1»
ЦАО Арбат
Цена по запросу
Свернуть
ID: as79483

5-комн. квартира 500 м², 4-5 этаж - «Кривоарбатский переулок, 13стр1»

ЦАО Арбат
Смоленская, Арбатская
Цена по запросу
Площадь 500 м²
3 спальни
5 комнат
С мебелью
 Андрей Соловьев
Андрей Соловьев
Партнер, Региональный директор департамента жилой недвижимости
WhatsApp Позвонить
4-комн. квартира 239 м², 5 этаж - Barkli Virgin House
ЦАО Хамовники Зачатьевский 1-й пер., 8 стр. 1
7 500 000 $
Свернуть
ID: as70953

4-комн. квартира 239 м², 5 этаж - Barkli Virgin House

ЦАО Хамовники Зачатьевский 1-й пер., 8 стр. 1
7 500 000 $
Площадь 239 м²
Этаж 5
3 спальни
4 комнаты
С мебелью
WhatsApp Позвонить
4-комн. квартира 221 м², 2 этаж - «Гранатный, 6»
ЦАО Пресненский Гранатный пер., 6
770 000 000 ₽
Свернуть
ID: as10166

4-комн. квартира 221 м², 2 этаж - «Гранатный, 6»

ЦАО Пресненский Гранатный пер., 6
770 000 000 ₽
Площадь 220 м²
Этаж 2
3 спальни
4 комнаты
С мебелью
 Ольга Богородицкая
Ольга Богородицкая
Директор по работе с ключевыми клиентами
WhatsApp Позвонить
5-комн. квартира 458 м², 7 этаж - «Брюсов, 19»
ЦАО Тверской Брюсов пер., 19
13 725 000 $ 9 000 000 $
Свернуть
ID: as41454

5-комн. квартира 458 м², 7 этаж - «Брюсов, 19»

ЦАО Тверской Брюсов пер., 19
13 725 000 $ 9 000 000 $
Площадь 457 м²
Этаж 7
4 спальни
5 комнат
С мебелью
WhatsApp Позвонить
7-комн. квартира 1050 м², 1-2 этаж - «Большая Татарская, 30стр2»
ЦАО Замоскворечье
Цена по запросу
Свернуть
ID: as23322

7-комн. квартира 1050 м², 1-2 этаж - «Большая Татарская, 30стр2»

ЦАО Замоскворечье
Третьяковская, Павелецкая, Новокузнецкая
Цена по запросу
Площадь 1 050 м²
5 спален
7 комнат
С отделкой
WhatsApp Позвонить
5-комн. квартира 169 м², 6 этаж - «Русские Сезоны»
ЦАО Замоскворечье Ордынка Б. ул., 19, стр. 9
Цена по запросу
Свернуть
ID: as55049

5-комн. квартира 169 м², 6 этаж - «Русские Сезоны»

ЦАО Замоскворечье Ордынка Б. ул., 19, стр. 9
Цена по запросу
Площадь 168 м²
Этаж 6
4 спальни
5 комнат
Без отделки
 Константин Андрюшин
Константин Андрюшин
Директор направления по продажам новостроек
WhatsApp Позвонить
5-комн. квартира 195 м², 2 этаж - «Русские Сезоны»
ЦАО Замоскворечье Ордынка Б. ул., 19, стр. 9
Цена по запросу
Свернуть
ID: as50173

5-комн. квартира 195 м², 2 этаж - «Русские Сезоны»

ЦАО Замоскворечье Ордынка Б. ул., 19, стр. 9
Цена по запросу
Площадь 195 м²
Этаж 2
4 спальни
5 комнат
Без отделки
 Константин Андрюшин
Константин Андрюшин
Директор направления по продажам новостроек
WhatsApp Позвонить
4-комн. квартира 290 м², 1-4 этаж - «Дом с Атлантами»
ЦАО Таганский Солянка ул., 7 стр. 1
697 500 000 ₽ 574 431 000 ₽
Свернуть
ID: as38244

4-комн. квартира 290 м², 1-4 этаж - «Дом с Атлантами»

ЦАО Таганский Солянка ул., 7 стр. 1
Китай-город
697 500 000 ₽ 574 431 000 ₽
Площадь 290 м²
Этаж 1-4
3 спальни
4 комнаты
Без отделки
 Андрей Соловьев
Андрей Соловьев
Партнер, Региональный директор департамента жилой недвижимости
WhatsApp Позвонить
3-комн. квартира 137 м², 2 этаж - «Малая Бронная, 15»
ЦАО Пресненский Бронная М. ул., 15
Цена по запросу
Свернуть
ID: as34917

3-комн. квартира 137 м², 2 этаж - «Малая Бронная, 15»

ЦАО Пресненский Бронная М. ул., 15
Цена по запросу
Площадь 137 м²
Этаж 2
2 спальни
3 комнаты
С мебелью
WhatsApp Позвонить
3-комн. квартира 177 м², 4 этаж - «Лаврушинский»
ЦАО Якиманка Толмачевский Б. пер., вл. 5
623 170 000 ₽
Свернуть
ID: as54735

3-комн. квартира 177 м², 4 этаж - «Лаврушинский»

ЦАО Якиманка Толмачевский Б. пер., вл. 5
Третьяковская
623 170 000 ₽
Площадь 176 м²
Этаж 4
3 комнаты
Без отделки
 Константин Андрюшин
Константин Андрюшин
Директор направления по продажам новостроек
WhatsApp Позвонить

Отзывы застройщиков о NF GROUP

/
Башня «Федерации» рекомендует международную консалтинговую компанию NF GROUP как верного и профессионального партнера, обладающего высочайшей экспертизой и передовыми знаниями в сфере элитной недвижимости.
Читать весь отзыв
Смирнов М. Ю.
Смирнов М. Ю.
Генеральный директор
«Центр-Инвест» выражает особую благодарность консалтинговой компании NF GROUP за ответственный и грамотный подход, а также исключительное качество услуг.
Читать весь отзыв
Задорожная Джанет Бекманбетовна
Задорожная Джанет Бекманбетовна
Руководитель проектов продаж Департамента продаж премиальных проектов
Благодарим NF GROUP за внимательное отношение к интересам нашей компании и непревзойденный профессионализм.
Читать весь отзыв
Непейвода А.А.
Непейвода А.А.
Руководитель департамента маркетинга и продаж
Благодарим команду NF GROUP за многолетнее успешное сотрудничество и партнерские отношения в работе.
Читать весь отзыв
Дивеева О.А.
Дивеева О.А.
Директор по продажам Capital Group

Получите консультацию эксперта NF GROUP

Как вам удобнее общаться?
Константин Андрюшин
Константин Андрюшин
Директор направления по продажам новостроек

Вы смотрели

/
Вавилова, 27 ЖК Вавилов Дом
Москва Академический Вавилова улица, 27
Свернуть
ID: r125133

Вавилова, 27 ЖК Вавилов Дом

Москва Академический Вавилова улица, 27
Академическая
Магистраль TTK
Высота потолков 6.00 м
Этажность 23
471-1 392 м²
WhatsApp Позвонить
Вавилова улица, д. 27, торговая площадь 161 м²
Москва Академический Вавилова улица, д. 27
Цена по запросу
Свернуть
ID: r125135

Вавилова улица, д. 27, торговая площадь 161 м²

Москва Академический Вавилова улица, д. 27
Академическая
Цена по запросу
Витрины
WhatsApp Позвонить
NF Group
Авторизация
Мы используем файлы cookie, чтобы улучшить сервис для вас.
Соглашение об использовании