Москва
Санкт-Петербург
+7 (495) 032-68-64 Продать объект Продать объект
Москва
Санкт-Петербург
О компании Аналитика Стать партнёром Карьера Контакты
City Bay (Сити Бэй)
NF Group
NF Group
NF Group
NF Group
NF Group
NF Group
NF Group
NF Group
NF Group
NF Group
NF Group
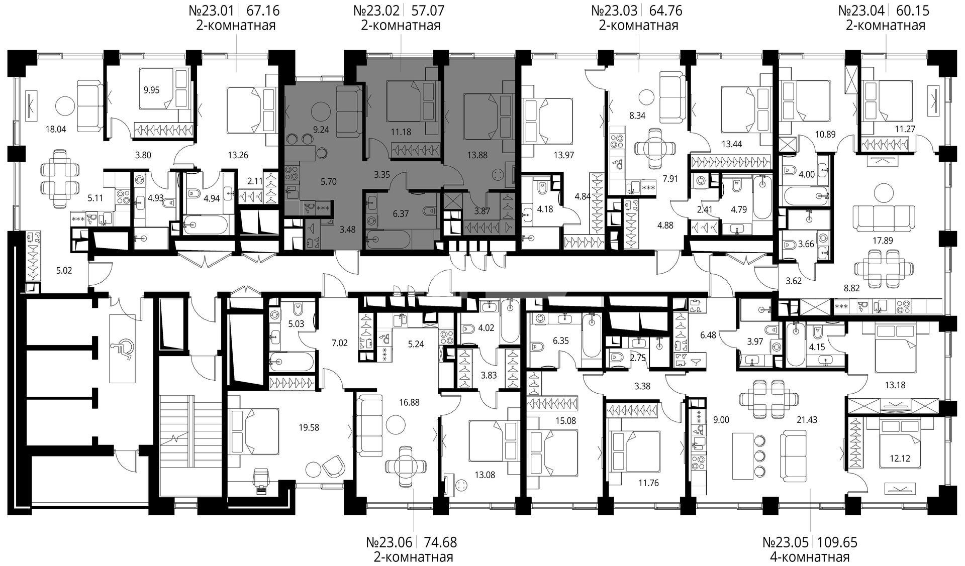
Планировка

2-комн. квартира 57 м², 23 этаж - City Bay

Этажей 27 Срок сдачи 2027 г.
22 885 503
401 007  ₽/м²
281 545
4 933  $/м²
242 973
4 257  €/м²
$
Whatsapp
22 885 503
401 007  ₽/м²
281 545
4 933  $/м²
242 973
4 257  €/м²
$
ID as93669
 Дмитрий Щеголев
Дмитрий Щеголев
Руководитель отдела продаж новостроек
NF Group
Предложите нам свою цену, и мы свяжемся с вами

Описание

Концепция жилого комплекса City Вау - настоящий город в городе с отлично развитой инфраструктурой и собственной благоустроенной набережной.

Характеристики

О квартире

Тип сделки
Продажа
Отделка
Под отделку
Тип объекта
Квартира
Этаж
23 из 27
Общая площадь
57 м²
Уровней
1

О жилом комплексе

Площадь квартир
от 27 до 133 м²
Строится
2027
Этажность
27
Класс
Бизнес

Адрес

Город Москва
Округ СЗАО
Район Покровское-Стрешнево
Адрес Волоколамское ш., 95, к. 4

Получите подробную презентацию объекта

NF Group

Инфраструктура района

Преимущества
На границе Войковского района и района Покровское-Стрешнево расположен одноименный лесопарк, в котором находится объект культурного наследия «Усадьба Покровское-Стрешнево», а также беседки, детские и спортивные площадки, обустроенные пляжи. В пешей доступности - Химкинское водохранилище
Образование
17 общеобразовательных школ, частная Англо-американская школа, 9 детских садов, включая частные
Инфраструктура
ТЦ «Покровское-Стрешнево», 11 салонов красоты и спа, 4 крупных фермерских рынка
Культура
3 православных храма (17-19 века), 2 театра, кинотеатр, несколько библиотек
Спорт
Широкие возможности для занятий спортом в парке; более 20 фитнес-клубов в окрестностях района
Мед. учреждения
5 крупных государственных медцентров, 2 частные многопрофильные клиники, 7 стоматологий
Все
Магазины и услуги
Развлечения
Образование
Спорт и здоровье

Записаться на экскурсию по объекту

Подберите ипотеку

Подавая заявку в несколько банков, вы увеличиваете шанс на одобрение ипотеки
Стоимость недвижимости
20 млн.
950 млн.
Первоначальный взнос
20 %
90 %
Срок
1 год
30 лет
Процентная ставка
3%
100%
Сумма кредита
524 700 000 ₽
Ежемесячный платеж
524 700 000 ₽
индивидуальный %
до 30 лет
индивидуальный %
до 30 лет
индивидуальный %
до 30 лет
индивидуальный %
до 30 лет
индивидуальный %
до 35 лет
индивидуальный %
до 30 лет
NF Group
Особые условия по ипотеке для клиентов NF GROUP

Новостройка City Bay

Жилой комплекс City Bay — это современный квартал бизнес-класса, расположенный на берегу Спасского затона. Он находится в районе Покровское — Стрешнево на северо-западе Москвы.

Из комплекса удобно выезжать на МКАД, а рядом расположена станция МЦД «Трикотажная». Это позволяет жителям удобно пользоваться существующей транспортной и социальной инфраструктурой.

NF Group

Посмотрите похожие предложения

/
1-комн. квартира 42 м², 26 этаж - VEER
ЗАО Можайский Верейская ул., 29
21 498 880 ₽
Свернуть
ID: as87832

1-комн. квартира 42 м², 26 этаж - VEER

ЗАО Можайский Верейская ул., 29
21 498 880 ₽
Площадь 41 м²
Этаж 26
1 комната
Без отделки
 Дмитрий Щеголев
Дмитрий Щеголев
Руководитель отдела продаж новостроек
WhatsApp Позвонить
Квартира 28 м², 28 этаж - «Страна. Озёрная»
ЗАО Очаково-Матвеевское Озёрная ул., 42
23 320 000 ₽
Свернуть
ID: as80422

Квартира 28 м², 28 этаж - «Страна. Озёрная»

ЗАО Очаково-Матвеевское Озёрная ул., 42
23 320 000 ₽
Площадь 27 м²
Этаж 28
Без отделки
 Дмитрий Щеголев
Дмитрий Щеголев
Руководитель отдела продаж новостроек
WhatsApp Позвонить
2-комн. квартира 56 м², 31 этаж - Sky Garden
СЗАО Покровское-Стрешнево Строительный проезд, д.9
20 759 004 ₽
Свернуть
ID: as72300

2-комн. квартира 56 м², 31 этаж - Sky Garden

СЗАО Покровское-Стрешнево Строительный проезд, д.9
20 759 004 ₽
Площадь 56 м²
Этаж 31
2 комнаты
Без отделки
 Дмитрий Щеголев
Дмитрий Щеголев
Руководитель отдела продаж новостроек
WhatsApp Позвонить
1-комн. квартира 42 м², 15 этаж - «Мангазея на Речном»
САО Левобережный Ленинградское ш., 57
24 381 760 ₽
Свернуть
ID: as91396

1-комн. квартира 42 м², 15 этаж - «Мангазея на Речном»

САО Левобережный Ленинградское ш., 57
24 381 760 ₽
Площадь 41 м²
Этаж 15
1 комната
Без отделки
 Константин Андрюшин
Константин Андрюшин
Директор направления по продажам новостроек
WhatsApp Позвонить
Квартира 23 м², 39 этаж - JOIS
СЗАО Хорошево-Мневники 3-й Силикатный проезд, 10
20 615 784 ₽
Свернуть
ID: as76075

Квартира 23 м², 39 этаж - JOIS

СЗАО Хорошево-Мневники 3-й Силикатный проезд, 10
20 615 784 ₽
Площадь 22 м²
Этаж 39
Без отделки
 Дмитрий Щеголев
Дмитрий Щеголев
Руководитель отдела продаж новостроек
WhatsApp Позвонить
1-комн. квартира 24 м², 12 этаж - High Life
ЮАО Даниловский Летниковская ул., 11/10, стр. 1
21 366 592 ₽
Свернуть
ID: as86395

1-комн. квартира 24 м², 12 этаж - High Life

ЮАО Даниловский Летниковская ул., 11/10, стр. 1
Павелецкая
21 366 592 ₽
Площадь 24 м²
Этаж 12
1 комната
Без отделки
 Константин Андрюшин
Константин Андрюшин
Директор направления по продажам новостроек
WhatsApp Позвонить
1-комн. квартира 44 м², 17 этаж - MOD
СВАО Марьина Роща Марьиной Рощи 4-я ул.
25 743 960 ₽
Свернуть
ID: as90852

1-комн. квартира 44 м², 17 этаж - MOD

СВАО Марьина Роща Марьиной Рощи 4-я ул.
MOD
25 743 960 ₽
Площадь 43 м²
Этаж 17
1 комната
Без отделки
 Дмитрий Щеголев
Дмитрий Щеголев
Руководитель отдела продаж новостроек
WhatsApp Позвонить
1-комн. квартира 40 м², 4 этаж - Rotterdam
ЮАО Нагатино-Садовники Варшавское шоссе, 37А
24 684 642 ₽
Свернуть
ID: as92612

1-комн. квартира 40 м², 4 этаж - Rotterdam

ЮАО Нагатино-Садовники Варшавское шоссе, 37А
24 684 642 ₽
Площадь 40 м²
Этаж 4
1 комната
Без отделки
 Константин Андрюшин
Константин Андрюшин
Директор направления по продажам новостроек
WhatsApp Позвонить
1-комн. квартира 43 м², 12 этаж - Rotterdam
ЮАО Нагатино-Садовники Варшавское шоссе, 37А
25 962 802 ₽
Свернуть
ID: as92626

1-комн. квартира 43 м², 12 этаж - Rotterdam

ЮАО Нагатино-Садовники Варшавское шоссе, 37А
25 962 802 ₽
Площадь 42 м²
Этаж 12
1 комната
Без отделки
 Константин Андрюшин
Константин Андрюшин
Директор направления по продажам новостроек
WhatsApp Позвонить
2-комн. квартира 55 м², 18 этаж - Sky Garden
СЗАО Покровское-Стрешнево Строительный проезд, д.9
22 888 996 ₽
Свернуть
ID: as72163

2-комн. квартира 55 м², 18 этаж - Sky Garden

СЗАО Покровское-Стрешнево Строительный проезд, д.9
22 888 996 ₽
Площадь 54 м²
Этаж 18
2 комнаты
С отделкой
 Дмитрий Щеголев
Дмитрий Щеголев
Руководитель отдела продаж новостроек
WhatsApp Позвонить

Отзывы застройщиков о NF GROUP

/
Башня «Федерации» рекомендует международную консалтинговую компанию NF GROUP как верного и профессионального партнера, обладающего высочайшей экспертизой и передовыми знаниями в сфере элитной недвижимости.
Читать весь отзыв
Смирнов М. Ю.
Смирнов М. Ю.
Генеральный директор
«Центр-Инвест» выражает особую благодарность консалтинговой компании NF GROUP за ответственный и грамотный подход, а также исключительное качество услуг.
Читать весь отзыв
Задорожная Джанет Бекманбетовна
Задорожная Джанет Бекманбетовна
Руководитель проектов продаж Департамента продаж премиальных проектов
Благодарим NF GROUP за внимательное отношение к интересам нашей компании и непревзойденный профессионализм.
Читать весь отзыв
Непейвода А.А.
Непейвода А.А.
Руководитель департамента маркетинга и продаж
Благодарим команду NF GROUP за многолетнее успешное сотрудничество и партнерские отношения в работе.
Читать весь отзыв
Дивеева О.А.
Дивеева О.А.
Директор по продажам Capital Group

Получите консультацию эксперта NF GROUP

Как вам удобнее общаться?
Дмитрий Щеголев
Дмитрий Щеголев
Руководитель отдела продаж новостроек
NF Group
Авторизация
Мы используем файлы cookie, чтобы улучшить сервис для вас.
Соглашение об использовании