+7 (495) 032-68-64 Продать объект Продать объект
О компании Аналитика Стать партнёром Карьера Контакты
«Сити Бэй» (City Bay)
NF Group
NF Group
NF Group
NF Group
NF Group
NF Group
NF Group
NF Group
NF Group
NF Group
NF Group
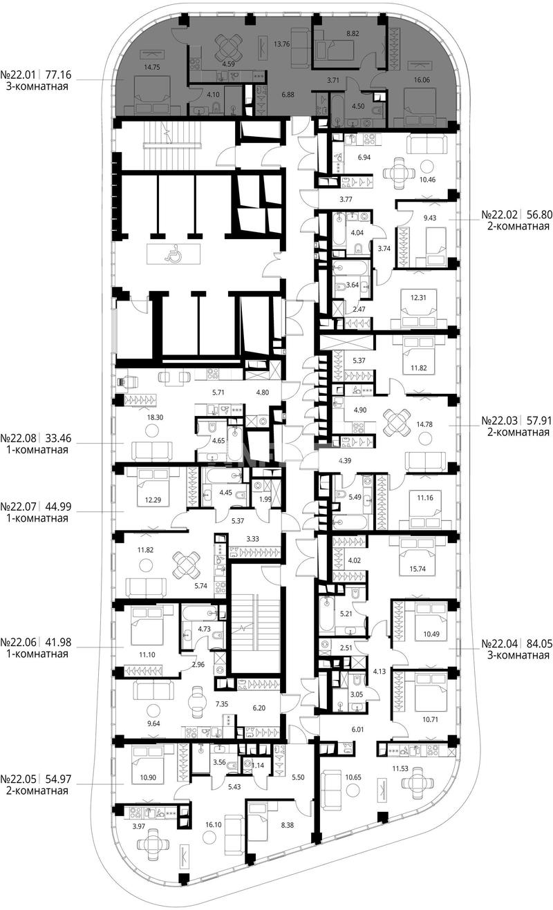
Планировка

3-комн. квартира 80 м², 15 этаж - «Сити Бэй»

Этажей 27 Срок сдачи 2027 г.
36 644 396
460 241  ₽/м²
456 768
5 736  $/м²
398 374
5 003  €/м²
$
36 644 396
460 241  ₽/м²
456 768
5 736  $/м²
398 374
5 003  €/м²
$
ID as93447
 Дмитрий Щеголев
Дмитрий Щеголев
Руководитель отдела продаж новостроек
NF Group
Предложите нам свою цену, и мы свяжемся с вами

Описание

Концепция жилого комплекса City Вау - настоящий город в городе с отлично развитой инфраструктурой и собственной благоустроенной набережной.

Характеристики

О квартире

Тип сделки
Продажа
Отделка
Под отделку
Тип объекта
Квартира
Этаж
15 из 27
Общая площадь
80 м²
Уровней
1

О жилом комплексе

Площадь квартир
от 29 до 133 м²
Строится
2027
Этажность
27
Класс
Бизнес

Адрес

Город Москва
Округ СЗАО
Район Покровское-Стрешнево
Адрес Волоколамское ш., 95, к. 4
Объекты рядом

Все предложения в категориях

Элитная недвижимость в Подмосковье 7724 Элитная недвижимость в Москве 5829 Элитные квартиры в Москве и Подмосковье 5686 Элитные квартиры в Москве 5431 Продажа квартир с базовой ценой в рублях 5388 Квартиры в новостройках (ЖК) Москвы 5053 Строящиеся квартиры в Москве 4354 Квартиры на этапе строительства в новостройках 4343 Квартиры под отделку в Москве 4121 Квартиры без отделки от застройщика 4010 Квартиры под отделку в строящихся домах 3481 Квартиры в пределах МКАД 3022 Недвижимость бизнес-класса 1784 Квартиры бизнес-класса от застройщика 1746 Трехкомнатные квартиры в Москве 1550 Недвижимость от застройщика МР Групп 1496 Квартиры от застройщика МР Групп 1482 Трехкомнатные квартиры в новостройке 1449 Трехкомнатные квартиры в строящихся доах 1202 Трехкомнатные квартиры без отделки в Москве 1077 Квартиры в СЗАО 924 Квартиры под отделку в СЗАО 890 Квартиры в районе Покровское-Стрешнево 795 Квартиры в новостройках в районе Покровское-Стрешнево 788 Купить квартиру площадью 80 кв. м. в Москве 442 Трехкомнатные квартиры в СЗАО 158

Получите подробную презентацию объекта

NF Group

Инфраструктура района

Преимущества
На границе Войковского района и района Покровское-Стрешнево расположен одноименный лесопарк, в котором находится объект культурного наследия «Усадьба Покровское-Стрешнево», а также беседки, детские и спортивные площадки, обустроенные пляжи. В пешей доступности - Химкинское водохранилище
Образование
17 общеобразовательных школ, частная Англо-американская школа, 9 детских садов, включая частные
Инфраструктура
ТЦ «Покровское-Стрешнево», 11 салонов красоты и спа, 4 крупных фермерских рынка
Культура
3 православных храма (17-19 века), 2 театра, кинотеатр, несколько библиотек
Спорт
Широкие возможности для занятий спортом в парке; более 20 фитнес-клубов в окрестностях района
Мед. учреждения
5 крупных государственных медцентров, 2 частные многопрофильные клиники, 7 стоматологий
Все
Магазины и услуги
Развлечения
Образование
Спорт и здоровье

Записаться на экскурсию по объекту

Подберите ипотеку

Подавая заявку в несколько банков, вы увеличиваете шанс на одобрение ипотеки
Стоимость недвижимости
20 млн.
950 млн.
Первоначальный взнос
20 %
90 %
Срок
1 год
30 лет
Процентная ставка
3%
100%
Сумма кредита
524 700 000 ₽
Ежемесячный платеж
524 700 000 ₽
индивидуальный %
до 30 лет
индивидуальный %
до 30 лет
индивидуальный %
до 30 лет
индивидуальный %
до 30 лет
индивидуальный %
до 35 лет
индивидуальный %
до 30 лет
NF Group
Особые условия по ипотеке для клиентов NF GROUP

Новостройка «Сити Бэй»

Жилой комплекс City Bay — это современный квартал бизнес-класса, расположенный на берегу Спасского затона. Он находится в районе Покровское — Стрешнево на северо-западе Москвы.

Из комплекса удобно выезжать на МКАД, а рядом расположена станция МЦД «Трикотажная». Это позволяет жителям удобно пользоваться существующей транспортной и социальной инфраструктурой.

NF Group

Посмотрите похожие предложения

/
1-комн. квартира 26 м², 18 этаж - High Life
ЮАО Даниловский Летниковская ул., 11/10, стр. 1
31 715 856 ₽
Свернуть
ID: as102254

1-комн. квартира 26 м², 18 этаж - High Life

ЮАО Даниловский Летниковская ул., 11/10, стр. 1
Павелецкая
31 715 856 ₽
Площадь 25 м²
Этаж 18
1 комната
Без отделки
 Константин Андрюшин
Константин Андрюшин
Директор направления по продажам новостроек
1-комн. квартира 37 м², 16 этаж - High Life
ЮАО Даниловский Летниковская ул., 11/10, стр. 1
35 698 980 ₽
Свернуть
ID: as72078

1-комн. квартира 37 м², 16 этаж - High Life

ЮАО Даниловский Летниковская ул., 11/10, стр. 1
Павелецкая
35 698 980 ₽
Площадь 37 м²
Этаж 16
1 комната
Без отделки
 Константин Андрюшин
Константин Андрюшин
Директор направления по продажам новостроек
1-комн. квартира 38 м², 20 этаж - High Life
ЮАО Даниловский Летниковская ул., 11/10, стр. 1
36 560 803 ₽
Свернуть
ID: as72084

1-комн. квартира 38 м², 20 этаж - High Life

ЮАО Даниловский Летниковская ул., 11/10, стр. 1
Павелецкая
36 560 803 ₽
Площадь 37 м²
Этаж 20
1 комната
Без отделки
 Константин Андрюшин
Константин Андрюшин
Директор направления по продажам новостроек
3-комн. квартира 75 м², 43 этаж - «Level Мичуринский»
ЗАО Очаково-Матвеевское Озёрная ул.
41 150 573 ₽
Свернуть
ID: as101441

3-комн. квартира 75 м², 43 этаж - «Level Мичуринский»

ЗАО Очаково-Матвеевское Озёрная ул.
41 150 573 ₽
Площадь 75 м²
Этаж 43
3 комнаты
Без отделки
3-комн. квартира 60 м², 50 этаж - «Level Мичуринский»
ЗАО Очаково-Матвеевское Озёрная ул.
34 326 161 ₽
Свернуть
ID: as101440

3-комн. квартира 60 м², 50 этаж - «Level Мичуринский»

ЗАО Очаково-Матвеевское Озёрная ул.
34 326 161 ₽
Площадь 60 м²
Этаж 50
3 комнаты
Без отделки
3-комн. квартира 60 м², 7 этаж - «Level Мичуринский»
ЗАО Очаково-Матвеевское Озёрная ул.
33 091 314 ₽
Свернуть
ID: as101445

3-комн. квартира 60 м², 7 этаж - «Level Мичуринский»

ЗАО Очаково-Матвеевское Озёрная ул.
33 091 314 ₽
Площадь 60 м²
Этаж 7
3 комнаты
Без отделки
3-комн. квартира 61 м², 43 этаж - «Level Мичуринский»
ЗАО Очаково-Матвеевское Озёрная ул.
37 362 818 ₽
Свернуть
ID: as101564

3-комн. квартира 61 м², 43 этаж - «Level Мичуринский»

ЗАО Очаково-Матвеевское Озёрная ул.
37 362 818 ₽
Площадь 61 м²
Этаж 43
3 комнаты
Без отделки
3-комн. квартира 76 м², 35 этаж - «Level Мичуринский»
ЗАО Очаково-Матвеевское Озёрная ул.
39 726 766 ₽
Свернуть
ID: as101568

3-комн. квартира 76 м², 35 этаж - «Level Мичуринский»

ЗАО Очаково-Матвеевское Озёрная ул.
39 726 766 ₽
Площадь 76 м²
Этаж 35
3 комнаты
Без отделки
2-комн. квартира 72 м², 9 этаж - Life Варшавская
ЮАО Москворечье-Сабурово 2-й Котляковский пер, вл. 1
35 332 652 ₽
Свернуть
ID: as101652

2-комн. квартира 72 м², 9 этаж - Life Варшавская

ЮАО Москворечье-Сабурово 2-й Котляковский пер, вл. 1
35 332 652 ₽
Площадь 71 м²
Этаж 9
2 комнаты
Без отделки
1-комн. квартира 38 м², 26 этаж - High Life
ЮАО Даниловский Летниковская ул., 11/10, стр. 1
38 126 784 ₽
Свернуть
ID: as74080

1-комн. квартира 38 м², 26 этаж - High Life

ЮАО Даниловский Летниковская ул., 11/10, стр. 1
Павелецкая
38 126 784 ₽
Площадь 38 м²
Этаж 26
1 комната
Без отделки
 Константин Андрюшин
Константин Андрюшин
Директор направления по продажам новостроек

Отзывы застройщиков о NF GROUP

/
Башня «Федерации» рекомендует международную консалтинговую компанию NF GROUP как верного и профессионального партнера, обладающего высочайшей экспертизой и передовыми знаниями в сфере элитной недвижимости.
Читать весь отзыв
Смирнов М. Ю.
Смирнов М. Ю.
Генеральный директор
«Центр-Инвест» выражает особую благодарность консалтинговой компании NF GROUP за ответственный и грамотный подход, а также исключительное качество услуг.
Читать весь отзыв
Задорожная Джанет Бекманбетовна
Задорожная Джанет Бекманбетовна
Руководитель проектов продаж Департамента продаж премиальных проектов
Благодарим NF GROUP за внимательное отношение к интересам нашей компании и непревзойденный профессионализм.
Читать весь отзыв
Непейвода А.А.
Непейвода А.А.
Руководитель департамента маркетинга и продаж
Благодарим команду NF GROUP за многолетнее успешное сотрудничество и партнерские отношения в работе.
Читать весь отзыв
Дивеева О.А.
Дивеева О.А.
Директор по продажам Capital Group

Получите консультацию эксперта NF GROUP

Как вам удобнее общаться?
Дмитрий Щеголев
Дмитрий Щеголев
Руководитель отдела продаж новостроек

Вы смотрели

/
Жилой комплекс «МИРА»
СВАО Алексеевский проспект Мира, 186Ас1
от 21 963 832 ₽
Свернуть
ID: id89761

Жилой комплекс «МИРА»

СВАО Алексеевский проспект Мира, 186Ас1
Выставочный центр, ВДНХ
от 21 963 832 ₽
Срок сдачи: 2 квартал 2027 г.
Площадь 28-106 м²
Этажей: 27
Позвонить
2-комн. квартира 44 м², 13 этаж - West Garden
ЗАО Раменки Генерала Дорохова пр-кт, к16
35 880 000 ₽
Свернуть
ID: as54600

2-комн. квартира 44 м², 13 этаж - West Garden

ЗАО Раменки Генерала Дорохова пр-кт, к16
35 880 000 ₽
Площадь 44 м²
Этаж 13
2 комнаты
Без отделки
 Дмитрий Щеголев
Дмитрий Щеголев
Руководитель отдела продаж новостроек
Позвонить
4-комн. квартира 99 м², 11 этаж - West Garden
ЗАО Раменки Генерала Дорохова пр-кт, 39, к. 1В
65 210 000 ₽
Свернуть
ID: as54469

4-комн. квартира 99 м², 11 этаж - West Garden

ЗАО Раменки Генерала Дорохова пр-кт, 39, к. 1В
65 210 000 ₽
Площадь 98 м²
Этаж 11
4 комнаты
Без отделки
 Константин Андрюшин
Константин Андрюшин
Директор направления по продажам новостроек
Позвонить
Жилой комплекс «Сидней Сити»
СЗАО Хорошево-Мневники Шеногина ул., 2
от 26 643 730 ₽
Свернуть
ID: id51273

Жилой комплекс «Сидней Сити»

СЗАО Хорошево-Мневники Шеногина ул., 2
Шелепиха
от 26 643 730 ₽
Год постройки: 1 квартал 2025 г.
Площадь 63-162 м²
Этажей: 45
Позвонить
1-комн. квартира 58 м², 16 этаж - Sydney City
СЗАО Хорошево-Мневники Шеногина ул., 2
35 513 335 ₽
Свернуть
ID: as61235

1-комн. квартира 58 м², 16 этаж - Sydney City

СЗАО Хорошево-Мневники Шеногина ул., 2
Шелепиха
35 513 335 ₽
Площадь 58 м²
Этаж 16
1 комната
Без отделки
 Константин Андрюшин
Константин Андрюшин
Директор направления по продажам новостроек
Позвонить
3-комн. квартира 83 м², 20 этаж - Sydney City
СЗАО Хорошево-Мневники Шеногина ул., 2
58 141 501 ₽
Свернуть
ID: as92771

3-комн. квартира 83 м², 20 этаж - Sydney City

СЗАО Хорошево-Мневники Шеногина ул., 2
Шелепиха
58 141 501 ₽
Площадь 82 м²
Этаж 20
3 комнаты
Без отделки
 Дмитрий Щеголев
Дмитрий Щеголев
Руководитель отдела продаж новостроек
Позвонить
2-комн. квартира 85 м², 2 этаж - Sydney City
СЗАО Хорошево-Мневники Шеногина ул., 2
44 766 680 ₽ 33 876 045 ₽
Свернуть
ID: as61410

2-комн. квартира 85 м², 2 этаж - Sydney City

СЗАО Хорошево-Мневники Шеногина ул., 2
Шелепиха
44 766 680 ₽ 33 876 045 ₽
Площадь 85 м²
Этаж 2
2 комнаты
Без отделки
 Константин Андрюшин
Константин Андрюшин
Директор направления по продажам новостроек
Позвонить
3-комн. квартира 80 м², 13 этаж - «Сити Бэй»
СЗАО Покровское-Стрешнево Волоколамское ш., 95, к. 4
36 437 376 ₽
Свернуть
ID: as94032

3-комн. квартира 80 м², 13 этаж - «Сити Бэй»

СЗАО Покровское-Стрешнево Волоколамское ш., 95, к. 4
36 437 376 ₽
Площадь 79 м²
Этаж 13
3 комнаты
Без отделки
 Дмитрий Щеголев
Дмитрий Щеголев
Руководитель отдела продаж новостроек
Позвонить
1-комн. квартира 36 м², 2 этаж - Sydney City
СЗАО Хорошево-Мневники Шеногина ул., 2
21 016 363 ₽
Свернуть
ID: as92832

1-комн. квартира 36 м², 2 этаж - Sydney City

СЗАО Хорошево-Мневники Шеногина ул., 2
Шелепиха
21 016 363 ₽
Площадь 35 м²
Этаж 2
1 комната
Без отделки
 Дмитрий Щеголев
Дмитрий Щеголев
Руководитель отдела продаж новостроек
Позвонить
3-комн. квартира 78 м², 21 этаж - Sydney City
СЗАО Хорошево-Мневники Шеногина ул., 2
35 394 237 ₽
Свернуть
ID: as81563

3-комн. квартира 78 м², 21 этаж - Sydney City

СЗАО Хорошево-Мневники Шеногина ул., 2
Шелепиха
35 394 237 ₽
Площадь 78 м²
Этаж 21
3 комнаты
Без отделки
 Константин Андрюшин
Константин Андрюшин
Директор направления по продажам новостроек
Позвонить
NF Group
Авторизация
Мы используем файлы cookie, чтобы улучшить сервис для вас.
Соглашение об использовании