+7 (495) 032-68-64 Продать объект Продать объект
О компании Аналитика Стать партнёром Карьера Контакты
«Сити Бэй» (City Bay)
NF Group
NF Group
NF Group
NF Group
NF Group
NF Group
NF Group
NF Group
NF Group
NF Group
NF Group
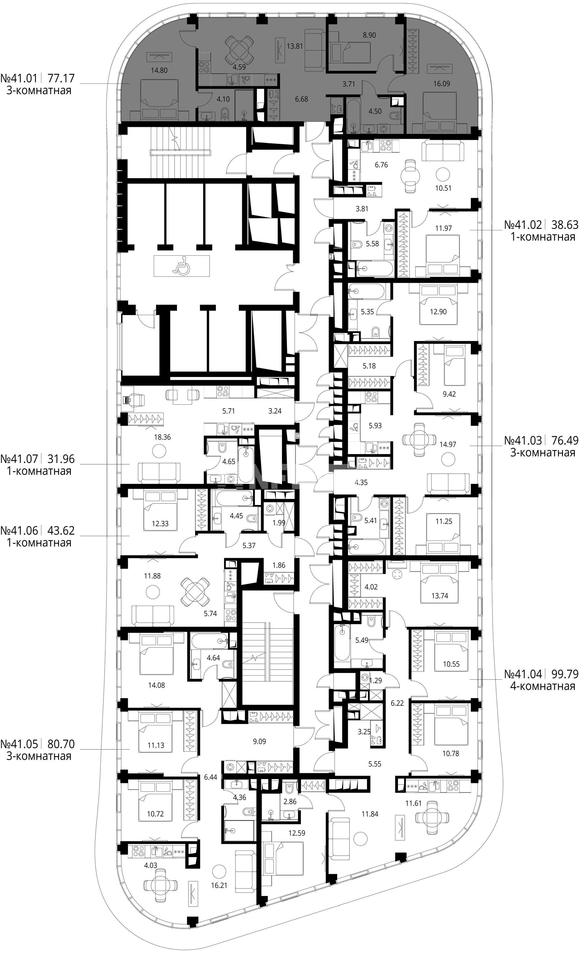
Планировка

3-комн. квартира 77 м², 41 этаж - «Сити Бэй»

Этажей 49 Срок сдачи 2025 г.
33 431 062
433 213  ₽/м²
416 714
5 399  $/м²
363 441
4 709  €/м²
$
33 431 062
433 213  ₽/м²
416 714
5 399  $/м²
363 441
4 709  €/м²
$
ID as90447
 Дмитрий Щеголев
Дмитрий Щеголев
Руководитель отдела продаж новостроек
NF Group
Предложите нам свою цену, и мы свяжемся с вами

Описание

Концепция жилого комплекса City Вау - настоящий город в городе с отлично развитой инфраструктурой и собственной благоустроенной набережной.

Характеристики

О квартире

Тип сделки
Продажа
Отделка
Под отделку
Тип объекта
Квартира
Этаж
41 из 49
Общая площадь
77 м²
Уровней
1

О жилом комплексе

Площадь квартир
от 29 до 133 м²
Строится
2025
Этажность
49
Класс
Бизнес

Адрес

Город Москва
Округ СЗАО
Район Покровское-Стрешнево
Адрес Волоколамское ш., 95, к. 4
Объекты рядом

Все предложения в категориях

Элитная недвижимость в Подмосковье 7724 Элитная недвижимость в Москве 5829 Элитные квартиры в Москве и Подмосковье 5686 Элитные квартиры в Москве 5431 Продажа квартир с базовой ценой в рублях 5388 Квартиры в новостройках (ЖК) Москвы 5053 Строящиеся квартиры в Москве 4354 Квартиры на этапе строительства в новостройках 4343 Квартиры под отделку в Москве 4121 Квартиры без отделки от застройщика 4010 Квартиры под отделку в строящихся домах 3481 Квартиры в пределах МКАД 3022 Недвижимость бизнес-класса 1784 Квартиры бизнес-класса от застройщика 1746 Трехкомнатные квартиры в Москве 1550 Недвижимость от застройщика МР Групп 1496 Квартиры от застройщика МР Групп 1482 Трехкомнатные квартиры в новостройке 1449 Трехкомнатные квартиры в строящихся доах 1202 Трехкомнатные квартиры без отделки в Москве 1077 Квартиры в СЗАО 924 Квартиры под отделку в СЗАО 890 Квартиры в районе Покровское-Стрешнево 795 Квартиры в новостройках в районе Покровское-Стрешнево 788 Купить квартиру площадью 80 кв. м. в Москве 442 Трехкомнатные квартиры в СЗАО 158

Получите подробную презентацию объекта

NF Group

Инфраструктура района

Преимущества
На границе Войковского района и района Покровское-Стрешнево расположен одноименный лесопарк, в котором находится объект культурного наследия «Усадьба Покровское-Стрешнево», а также беседки, детские и спортивные площадки, обустроенные пляжи. В пешей доступности - Химкинское водохранилище
Образование
17 общеобразовательных школ, частная Англо-американская школа, 9 детских садов, включая частные
Инфраструктура
ТЦ «Покровское-Стрешнево», 11 салонов красоты и спа, 4 крупных фермерских рынка
Культура
3 православных храма (17-19 века), 2 театра, кинотеатр, несколько библиотек
Спорт
Широкие возможности для занятий спортом в парке; более 20 фитнес-клубов в окрестностях района
Мед. учреждения
5 крупных государственных медцентров, 2 частные многопрофильные клиники, 7 стоматологий
Все
Магазины и услуги
Развлечения
Образование
Спорт и здоровье

Записаться на экскурсию по объекту

Подберите ипотеку

Подавая заявку в несколько банков, вы увеличиваете шанс на одобрение ипотеки
Стоимость недвижимости
20 млн.
950 млн.
Первоначальный взнос
20 %
90 %
Срок
1 год
30 лет
Процентная ставка
3%
100%
Сумма кредита
524 700 000 ₽
Ежемесячный платеж
524 700 000 ₽
индивидуальный %
до 30 лет
индивидуальный %
до 30 лет
индивидуальный %
до 30 лет
индивидуальный %
до 30 лет
индивидуальный %
до 35 лет
индивидуальный %
до 30 лет
NF Group
Особые условия по ипотеке для клиентов NF GROUP

Новостройка «Сити Бэй»

Жилой комплекс City Bay — это современный квартал бизнес-класса, расположенный на берегу Спасского затона. Он находится в районе Покровское — Стрешнево на северо-западе Москвы.

Из комплекса удобно выезжать на МКАД, а рядом расположена станция МЦД «Трикотажная». Это позволяет жителям удобно пользоваться существующей транспортной и социальной инфраструктурой.

NF Group

Посмотрите похожие предложения

/
1-комн. квартира 24 м², 21 этаж - High Life
ЮАО Даниловский Летниковская ул., 11/10, стр. 1
30 851 604 ₽
Свернуть
ID: as74056

1-комн. квартира 24 м², 21 этаж - High Life

ЮАО Даниловский Летниковская ул., 11/10, стр. 1
Павелецкая
30 851 604 ₽
Площадь 24 м²
Этаж 21
1 комната
Без отделки
 Константин Андрюшин
Константин Андрюшин
Директор направления по продажам новостроек
1-комн. квартира 38 м², 26 этаж - High Life
ЮАО Даниловский Летниковская ул., 11/10, стр. 1
38 126 784 ₽
Свернуть
ID: as74080

1-комн. квартира 38 м², 26 этаж - High Life

ЮАО Даниловский Летниковская ул., 11/10, стр. 1
Павелецкая
38 126 784 ₽
Площадь 38 м²
Этаж 26
1 комната
Без отделки
 Константин Андрюшин
Константин Андрюшин
Директор направления по продажам новостроек
1-комн. квартира 26 м², 18 этаж - High Life
ЮАО Даниловский Летниковская ул., 11/10, стр. 1
31 715 856 ₽
Свернуть
ID: as102254

1-комн. квартира 26 м², 18 этаж - High Life

ЮАО Даниловский Летниковская ул., 11/10, стр. 1
Павелецкая
31 715 856 ₽
Площадь 25 м²
Этаж 18
1 комната
Без отделки
 Константин Андрюшин
Константин Андрюшин
Директор направления по продажам новостроек
1-комн. квартира 37 м², 16 этаж - High Life
ЮАО Даниловский Летниковская ул., 11/10, стр. 1
35 698 980 ₽
Свернуть
ID: as72078

1-комн. квартира 37 м², 16 этаж - High Life

ЮАО Даниловский Летниковская ул., 11/10, стр. 1
Павелецкая
35 698 980 ₽
Площадь 37 м²
Этаж 16
1 комната
Без отделки
 Константин Андрюшин
Константин Андрюшин
Директор направления по продажам новостроек
1-комн. квартира 38 м², 20 этаж - High Life
ЮАО Даниловский Летниковская ул., 11/10, стр. 1
36 560 803 ₽
Свернуть
ID: as72084

1-комн. квартира 38 м², 20 этаж - High Life

ЮАО Даниловский Летниковская ул., 11/10, стр. 1
Павелецкая
36 560 803 ₽
Площадь 37 м²
Этаж 20
1 комната
Без отделки
 Константин Андрюшин
Константин Андрюшин
Директор направления по продажам новостроек
2-комн. квартира 55 м², 27 этаж - «Level Мичуринский»
ЗАО Очаково-Матвеевское Озёрная ул.
30 513 193 ₽
Свернуть
ID: as101433

2-комн. квартира 55 м², 27 этаж - «Level Мичуринский»

ЗАО Очаково-Матвеевское Озёрная ул.
30 513 193 ₽
Площадь 55 м²
Этаж 27
2 комнаты
Без отделки
3-комн. квартира 60 м², 50 этаж - «Level Мичуринский»
ЗАО Очаково-Матвеевское Озёрная ул.
34 326 161 ₽
Свернуть
ID: as101440

3-комн. квартира 60 м², 50 этаж - «Level Мичуринский»

ЗАО Очаково-Матвеевское Озёрная ул.
34 326 161 ₽
Площадь 60 м²
Этаж 50
3 комнаты
Без отделки
3-комн. квартира 60 м², 7 этаж - «Level Мичуринский»
ЗАО Очаково-Матвеевское Озёрная ул.
33 091 314 ₽
Свернуть
ID: as101445

3-комн. квартира 60 м², 7 этаж - «Level Мичуринский»

ЗАО Очаково-Матвеевское Озёрная ул.
33 091 314 ₽
Площадь 60 м²
Этаж 7
3 комнаты
Без отделки
3-комн. квартира 61 м², 43 этаж - «Level Мичуринский»
ЗАО Очаково-Матвеевское Озёрная ул.
37 362 818 ₽
Свернуть
ID: as101564

3-комн. квартира 61 м², 43 этаж - «Level Мичуринский»

ЗАО Очаково-Матвеевское Озёрная ул.
37 362 818 ₽
Площадь 61 м²
Этаж 43
3 комнаты
Без отделки
1-комн. квартира 24 м², 16 этаж - High Life
ЮАО Даниловский Летниковская ул., 11/10, стр. 1
30 634 200 ₽
Свернуть
ID: as73517

1-комн. квартира 24 м², 16 этаж - High Life

ЮАО Даниловский Летниковская ул., 11/10, стр. 1
Павелецкая
30 634 200 ₽
Площадь 24 м²
Этаж 16
1 комната
Без отделки
 Константин Андрюшин
Константин Андрюшин
Директор направления по продажам новостроек

Отзывы застройщиков о NF GROUP

/
Башня «Федерации» рекомендует международную консалтинговую компанию NF GROUP как верного и профессионального партнера, обладающего высочайшей экспертизой и передовыми знаниями в сфере элитной недвижимости.
Читать весь отзыв
Смирнов М. Ю.
Смирнов М. Ю.
Генеральный директор
«Центр-Инвест» выражает особую благодарность консалтинговой компании NF GROUP за ответственный и грамотный подход, а также исключительное качество услуг.
Читать весь отзыв
Задорожная Джанет Бекманбетовна
Задорожная Джанет Бекманбетовна
Руководитель проектов продаж Департамента продаж премиальных проектов
Благодарим NF GROUP за внимательное отношение к интересам нашей компании и непревзойденный профессионализм.
Читать весь отзыв
Непейвода А.А.
Непейвода А.А.
Руководитель департамента маркетинга и продаж
Благодарим команду NF GROUP за многолетнее успешное сотрудничество и партнерские отношения в работе.
Читать весь отзыв
Дивеева О.А.
Дивеева О.А.
Директор по продажам Capital Group

Получите консультацию эксперта NF GROUP

Как вам удобнее общаться?
Дмитрий Щеголев
Дмитрий Щеголев
Руководитель отдела продаж новостроек

Вы смотрели

/
2-комн. квартира 47 м², 20 этаж - Sydney City
СЗАО Хорошево-Мневники Шеногина ул., 2
22 836 548 ₽
Свернуть
ID: as92840

2-комн. квартира 47 м², 20 этаж - Sydney City

СЗАО Хорошево-Мневники Шеногина ул., 2
Шелепиха
22 836 548 ₽
Площадь 47 м²
Этаж 20
2 комнаты
Без отделки
 Константин Андрюшин
Константин Андрюшин
Директор направления по продажам новостроек
Позвонить
4-комн. пентхаус 163 м², 11 этаж - «Тишинский бульвар»
ЦАО Пресненский Электрический пер, 1
396 360 000 ₽
Свернуть
ID: as91062

4-комн. пентхаус 163 м², 11 этаж - «Тишинский бульвар»

ЦАО Пресненский Электрический пер, 1
Белорусская
396 360 000 ₽
Площадь 162 м²
Этаж 11
4 комнаты
Без отделки
 Константин Андрюшин
Константин Андрюшин
Директор направления по продажам новостроек
Позвонить
1-комн. квартира 43 м², 30 этаж - City Bay
СЗАО Покровское-Стрешнево Волоколамское ш., 95, к. 4
18 587 586 ₽
Свернуть
ID: as93458

1-комн. квартира 43 м², 30 этаж - City Bay

СЗАО Покровское-Стрешнево Волоколамское ш., 95, к. 4
18 587 586 ₽
Площадь 43 м²
Этаж 30
1 комната
Без отделки
 Константин Андрюшин
Константин Андрюшин
Директор направления по продажам новостроек
Позвонить
Жилой комплекс «МИРА»
СВАО Алексеевский проспект Мира, 186Ас1
от 21 963 832 ₽
Свернуть
ID: id89761

Жилой комплекс «МИРА»

СВАО Алексеевский проспект Мира, 186Ас1
Выставочный центр, ВДНХ
от 21 963 832 ₽
Срок сдачи: 2 квартал 2027 г.
Площадь 28-106 м²
Этажей: 27
Позвонить
Многофункциональный комплекс Capital Towers
ЦАО Пресненский Краснопресненская наб. вл. 14 стр. 1
от 87 500 000 ₽
Свернуть
ID: id22698

Многофункциональный комплекс Capital Towers

ЦАО Пресненский Краснопресненская наб. вл. 14 стр. 1
от 87 500 000 ₽
Год постройки: 2 квартал 2023 г.
Площадь 67-132 м²
Этажей: 73
Позвонить
5-комн. квартира 154 м², 12 этаж - Capital Towers
ЦАО Пресненский
Цена по запросу
Свернуть
ID: as49217

5-комн. квартира 154 м², 12 этаж - Capital Towers

ЦАО Пресненский
Цена по запросу
Площадь 153 м²
4 спальни
5 комнат
С отделкой
Позвонить
Жилой комплекс West Garden
ЗАО Раменки Генерала Дорохова пр-кт, 39, к. 1В
от 23 250 000 ₽
Свернуть
ID: id46664

Жилой комплекс West Garden

ЗАО Раменки Генерала Дорохова пр-кт, 39, к. 1В
от 23 250 000 ₽
Год постройки: 2 квартал 2023 г.
Площадь 27-171 м²
Этажей: 15
Позвонить
Жилой комплекс «Сидней Сити»
СЗАО Хорошево-Мневники Шеногина ул., 2
от 26 643 730 ₽
Свернуть
ID: id51273

Жилой комплекс «Сидней Сити»

СЗАО Хорошево-Мневники Шеногина ул., 2
Шелепиха
от 26 643 730 ₽
Год постройки: 1 квартал 2025 г.
Площадь 63-162 м²
Этажей: 45
Позвонить
3-комн. квартира 80 м², 15 этаж - «Сити Бэй»
СЗАО Покровское-Стрешнево Волоколамское ш., 95, к. 4
36 644 396 ₽
Свернуть
ID: as93447

3-комн. квартира 80 м², 15 этаж - «Сити Бэй»

СЗАО Покровское-Стрешнево Волоколамское ш., 95, к. 4
36 644 396 ₽
Площадь 79 м²
Этаж 15
3 комнаты
Без отделки
 Дмитрий Щеголев
Дмитрий Щеголев
Руководитель отдела продаж новостроек
Позвонить
Жилой комплекс «Аквамарин»
ЦАО Замоскворечье Озерковская наб., 26
Цена по запросу
Свернуть
ID: id7266

Жилой комплекс «Аквамарин»

ЦАО Замоскворечье Озерковская наб., 26
Третьяковская, Новокузнецкая
Цена по запросу
Год постройки: 4 квартал 2008 г.
Площадь 189 м²
Этажей: 8
Позвонить
NF Group
Авторизация
Мы используем файлы cookie, чтобы улучшить сервис для вас.
Соглашение об использовании