Москва
Санкт-Петербург
+7 (495) 032-68-64 Продать объект Продать объект
Москва
Санкт-Петербург
О компании Аналитика Стать партнёром Карьера Контакты
Апартаменты в роскошной резиденции (Parc du Cap A12)
NF Group
NF Group
NF Group
NF Group
NF Group
NF Group
NF Group
NF Group
NF Group
NF Group
NF Group
NF Group
NF Group
NF Group
NF Group
NF Expert
Наши эксперты ответят на все ваши вопросы

Апартаменты 45 м² Кап д'Антиб во Франции

590 000
13 111  €/м²
54 395 876
1 208 797  ₽/м²
692 314
15 384  $/м²
552 122
12 269  ₣/м²
512 601
11 391  £/м²
2 542 528
56 500  AED/м²
4 838 672
107 526  ¥/м²
11 573 590 638
257 190 903  IDR/м²
$
£
AED
¥
IDR
Whatsapp
590 000
13 111 € за м²
692 314
15 384 $ за м²
54 395 876
1 208 797 ₽ за м²
552 122
12 269 ₣ за м²
512 601
11 391 £ за м²
2 542 528
56 500 AED за м²
4 838 672
107 526 ¥ за м²
11 573 590 638
257 190 903 IDR за м²
$
£
AED
¥
IDR
ID ir2796
 Анна Ларина
Анна Ларина
Директор департамента зарубежной недвижимости
NF Group
Предложите нам свою цену, и мы свяжемся с вами

Описание

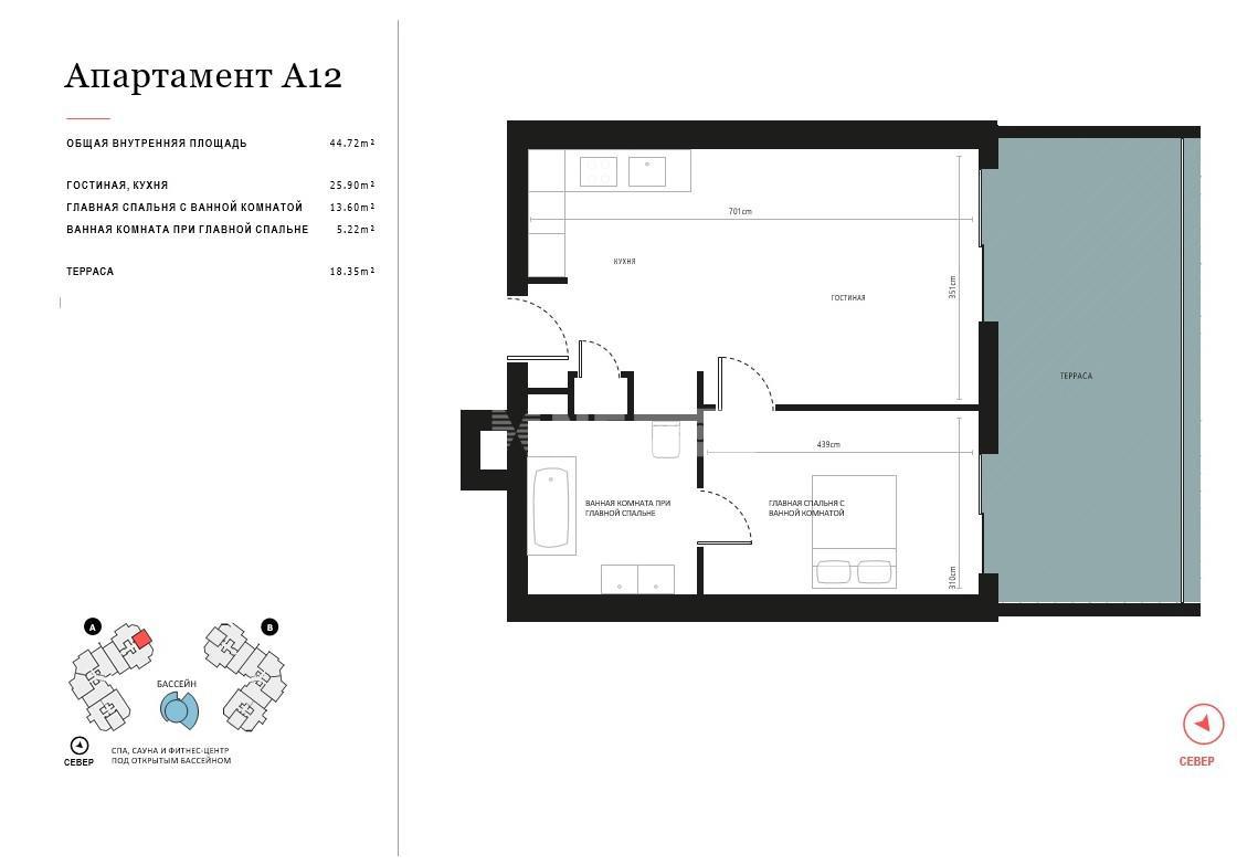
Элегантные апартаменты, расположенные в роскошной закрытой и охраняемой резиденции, включают в себя просторную гостиную зону, кухню, совмещенную со столовой, 1 спальни, 1 ванную комнату, террасу. Встроенная кухня итальянского дизайна оснащена столешницей из кварца и техникой Siemens. В ванной комнате установлены санитарная техника от Laufen, душ в дизайнерском оформлении от Hansgrohe. Апартаменты имеют систему комфортного охлаждения и обогрева, управление освещением Lutron, встроенную акустическую систему Bower and Wilkins. В апартаментах также есть прекрасная видовая терраса с деревянным настилом из бамбука. Доступен виртуальный 3D-тур.

Роскошная резиденция на мысе Антиб, недалеко от городка Жуан-Ле-Пен, находится в пешей доступности от пляжей и всей необходимой инфраструктуры. Два пятиэтажных корпуса, окруженные садом, включают 78 апартаментов с 1-3 спальнями и 10 стильных пентхаусов. Инфраструктура резиденции включает в себя теннисный корт, крытый и открытый бассейны, СПА, парную, крио сауну, фитнес центр, хаммам, джакузи, а также подземный паркинг. Кроме того, безопасность на закрытой территории комплекса обеспечивает система круглосуточной охраны.

В жилом комплексе доступны и другие предложения.

Характеристики

Об объекте

Тип сделки
Продажа
Тип объекта
Апартаменты
Общая площадь
45 м²
Уровней
1
Наличие строений на участке
Нет

Адрес

Населённый пункт Кап д'Антиб
Адрес Франция, Кап д'Антиб

Особенности

Терраса

Все предложения в категориях

Зарубежная недвижимость 8792 Жилая зарубежная недвижимость 7681 Элитные апартаменты за рубежом 4092 Недвижимость во Франции 598 Готовая недвижимость - Франция 594 Недвижимость под отделку - Франция 575 Купить недвижимость во Франции - цены в рублях 573 Купить недвижимость во Франции - цены в долларах 573 Купить недвижимость во Франции, цены в евро 573 Квартиры и апартаменты во Франции 172 Недвижимость с террасой - Франция 78 Купить недвижимость - Кап д'Антиб (Франция) 39 Купить недвижимость - Кап д'Антиб (Франция) - цены в рублях 39 Готовая недвижимость - Кап д'Антиб (Франция) 39 Купить недвижимость - Кап д'Антиб (Франция) - цены в долларах 39 Купить недвижимость в Кап д'Антиб (Франция), цены в евро 39 Недвижимость под отделку - Кап д'Антиб 38 Недвижимость с террасой - Кап д'Антиб (Франция) 12 Квартиры и апартаменты - Кап д'Антиб 8 Недвижимость с 1 спальней - Франция 6
NF Group
За рубеж — легко

Получите подробную презентацию объекта

NF Group

Жилой комплекс Апартаменты в роскошной резиденции (Parc du Cap A12)

NF Group

Получите консультацию эксперта NF GROUP

Как вам удобнее общаться?
Анна Ларина
Анна Ларина
Директор департамента зарубежной недвижимости
NF Group
Авторизация
Мы используем файлы cookie, чтобы улучшить сервис для вас.
Соглашение об использовании