+7 (495) 032-68-64 Продать объект Продать объект
О компании Аналитика Стать партнёром Карьера Контакты
Сахалинский
NF Group
NF Group
NF Group
NF Expert
Наши эксперты ответят на все ваши вопросы
Планировки

Складской комплекс «Сахалинский»

Тип склада: Сухой Общая свободная площадь 20 500 м² Минимальный блок: 10 000 м²
Цена по запросу
Предложения доступны только для аренды
Цена по запросу
ID wl9117669
Предложения доступны только для аренды

О складском комплексе «Сахалинский»

Предлагаются площади в логистическом парке «Сахалинский»

Расположение

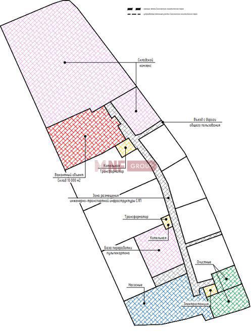
Объект находится в г. Южно-Сахалинск, ул. Лермонтова, пересечение с трассой 64А-8.

Описание

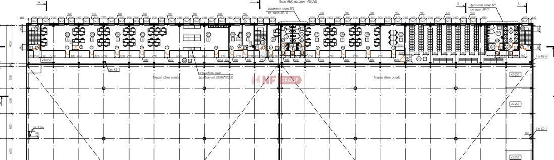
Предлагается площадь в современном логистическом комплексе класса А: Общая площадь объекта: - 10 500 м2 (готовность 4 кв. 2026) - 10 000 м2 (BTR)

Технические характеристики

Класс А Общая площадь земельного участка – 30 га. Рабочая высота потолков – 13 м Нагрузка на пол – до 6 т/м² Спринклерная система пожаротушения Шаг колонн – 12 × 24 м Электроснабжение – 380 кВт Собственная газовая котельная Водоснабжение и водоотведение

Преимущества

Современный комплекс класса А Большие площади с возможностью BTR Высокая рабочая высота (13 м) Наличие собственной котельной и инженерной инфраструктуры

Инженерные системы и инфраструктура

Современные инженерные коммуникации Спринклерная система пожаротушения Собственная газовая котельная Водоснабжение и водоотведение

Подберите складской блок в "Сахалинский"

Арендовать
м²
Построен
Строится
Готовность
Объектов: 2
Сначала с большей площадью
Сначала с меньшей площадью
Сначала дороже
Сначала дешевле
По актуальности
Склад от 10 000 м² цена по запросу 2
Здание Наименование Общая, м² Склад, м² Мезонин, м² Готовность Фото
kf-expert
Корпус 2 Блок 1 10 000 м² 10 000 м² - Строится
kf-expert
Корпус 1 Блок 1 10 500 м² 10 000 м² - Строится

Получите подробную презентацию объекта

NF Group

Характеристики объекта Сахалинский

Общая площадь
55 000 м²
Свободная площадь склада
20 000 м²
Свободная площадь офис
500 м²
Площадь минимального блока
10 000 м²
Класс объекта
A
Тип склада
Сухой
Температурный режим
18°C
Высота потолков
13 м
Тип напольного покрытия
Пол с антипылевым покрытием
Максимальная нагрузка на пол
6 т/м²
Электричество
380 кВт
Газ
есть
Канализация
есть
Водопровод
есть
Тип пожаротушения
Спринклерная

Адрес

Город Южно-Сахалинск
Адрес Лермонтова ул., 1
NF Group
Профессиональные услуги по представлению интересов собственников, арендаторов и покупателей
Лидеры в сфере складской недвижимости
Проводим ежегодную складскую конференцию
Победители CRE Awards 2021, 2022, 2023, 2024, 2025
Доля рынка в России 55%
Самая большая и опытная команда

Получите консультацию эксперта NF GROUP

Как вам удобнее общаться?
NF Group
NF Group
Авторизация
Мы используем файлы cookie, чтобы улучшить сервис для вас.
Соглашение об использовании