+7 (495) 032-68-64 Продать объект Продать объект
О компании Аналитика Стать партнёром Карьера Контакты
Индустриальный парк БС М-4
NF Expert
Наши эксперты ответят на все ваши вопросы

Склад 1 620 м² в в лайт индастриале «Индустриальный парк БС М-4», класс A

ш. Каширское, 17 км oт МКАД Тип склада: Сухой Общая свободная площадь: 1 620 м²
178 200 000
110 000  ₽/м²
2 436 473
1 503  $/м²
2 065 131
1 274  €/м²
$
178 200 000
110 000  ₽/м²
2 436 473
1 503  $/м²
2 065 131
1 274  €/м²
$
ID ws9217978
 Евгений Платонов
Евгений Платонов
Руководитель направления Light Industrial
NF Group
Предложите нам свою цену, и мы свяжемся с вами

О складе «Индустриальный парк БС М-4»

Предлагаются площади в производственно-складском комплексе «БС М-4».

О ПРОЕКТЕ

Предлагаются современные помещения под ключ для производства, хранения или арендного бизнеса в новом индустриальном парке "БС М-4" МО, 1-я линия Каширского шоссе,17 км от МКАД. Общая площадь застройки составляет около 64 200 м2. Готовность 1-й очереди в объеме 9 396 м2 – 3 квартал 2026г.

ЛОКАЦИЯ И ТРАНСПОРТНАЯ ДОСТУПНОСТЬ

Индустриальный парк расположен на юге Московской области в Каширском шоссе (М-4) в 15 минутах от МКАД, 13 минутах до ЦКАД. Выгодное расположение в окружении городов Домодедово, Подольск, и близость к Москве обеспечивает хороший доступ к персоналу.

ТЕХНИЧЕСКИЕ ПАРАМЕТРЫ

Парк реализовывается в едином архитектурном облике, минимальная площадь блоков 540 м2 с возможностью объединения для получения необходимой площади.

Рабочая высота до низа фермы 9,5 м

Нагрузка на пол - 6т с покрытием анти-пыль, ворота на уровне 1,1м

В модулях предусмотрена антресольная площадью от 108 м2 на блок.

Предусмотрена функциональная адаптация помещений под хранение, производственные площади с погрузочной зоной. Разделение или объединение модулей предоставляет возможность подобрать площадь под любые задачи бизнеса. Автономность модулей при разделении дает каждому собственнику иметь индивидуальный вход, грузовые доки и независимые коммуникации

ИНЖЕНЕРНЫЕ СИСТЕМЫ

Помещения передаются готовыми под ключ, температурный режим +16/+18 С

Выделенная электрическая мощность составляет 30Вт/м2 по 2 категории (опция увеличения за дополнительную плату).

Канализация и водоснабжение

Установлены индивидуальные приборы учета

Спринклерная система пожаротушения

Магистральный ГАЗ на территории

ИНФРАСТРУКТУРА И БЕЗОПАСНОСТЬ

Парк управляется профессиональной УК, охрана и видеонаблюдение на территории, доступ 24/7, КПП

Система контроля удаленного доступа для автотранспорта

Точки общественного питания

На каждый блок предусмотрено 3-4 парковочных места

УСЛОВИЯ ПРИОБРЕТЕНИЯ

Комплексный подход позволяет резидентам парка максимально эффективно использовать площади и быстро начать работу без дополнительных затрат на обустройство помещений

Земельный участок и здание оформляются в собственность.

Свяжитесь с нами для уточнения деталей.

Характеристики складского блока

Тип реализации
Продажа
Класс объекта
A
Тип склада
Сухой
Свободная площадь
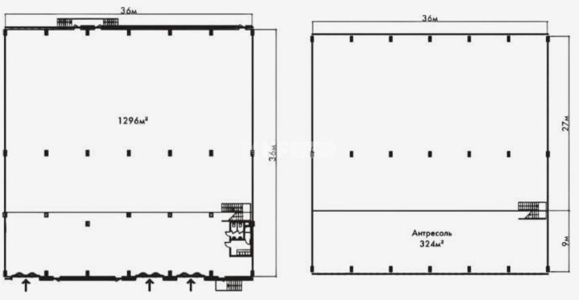
1 620 м²
Площадь склада
1 296 м²
Площадь мезонин
324 м²
Высота потолков
9.5 м
Температурный режим
18°C
Электричество
35 кВт
Газ
есть
Канализация
есть
Водопровод
есть
Тип пожаротушения
Спринклерная
Тип напольного покрытия
Пол с антипылевым покрытием

Адрес

Город Домодедово
Адрес Домодедово

Получите подробную презентацию объекта

NF Group

Лайт индастриал Индустриальный парк БС М-4

Предлагаются площади в производственно-складском комплексе «БС М-4».

О ПРОЕКТЕ

Предлагаются современные помещения под ключ для производства, хранения или арендного бизнеса в новом индустриальном парке "БС М-4" МО, 1-я линия Каширского шоссе,17 км от МКАД. Общая площадь застройки составляет около 64 200 м2. Готовность 1-й очереди в объеме 9 396 м2 – 3 квартал 2026г.

ЛОКАЦИЯ И ТРАНСПОРТНАЯ ДОСТУПНОСТЬ

Предложений в продажу 8
Площадь предложений 540 м²
Подробнее
NF Group
NF Group
Профессиональные услуги по представлению интересов собственников, арендаторов и покупателей
Лидеры в сфере складской недвижимости
Проводим ежегодную складскую конференцию
Победители CRE Awards 2021, 2022, 2023, 2024, 2025
Доля рынка в России 55%
Самая большая и опытная команда

Получите консультацию эксперта NF GROUP

Как вам удобнее общаться?
NF Group
NF Group
Авторизация
Мы используем файлы cookie, чтобы улучшить сервис для вас.
Соглашение об использовании