+7 (495) 032-68-64 Продать объект Продать объект
О компании Аналитика Стать партнёром Карьера Контакты
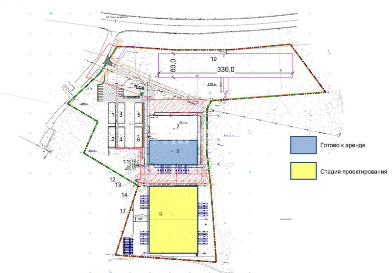
Индустриальный парк Есипово
NF Group
NF Group
NF Group
NF Group
NF Group
NF Group
NF Group
NF Group
NF Group
NF Expert
Наши эксперты ответят на все ваши вопросы

Производственное помещение 1177 м² в складском комплексе Есипово - 1, Корпус 2 (Е1)

ш. Ленинградское, 30 км oт города
188 320 000
160 000  ₽/м²
2 408 142
2 046  $/м²
2 073 874
1 762  €/м²
$
188 320 000
160 000  ₽/м²
2 408 142
2 046  $/м²
2 073 874
1 762  €/м²
$
ID ws16409_1177
 Евгений Платонов
Евгений Платонов
Руководитель направления Light Industrial
NF Group
Предложите нам свою цену, и мы свяжемся с вами

О складе «Индустриальный парк Есипово»

Продажа помещения под производство площадью 1177.0 кв.м. в складе Есипово - 1. Производственное помещение находится в блоке "Корпус 2 (Е1)". Допустимо объединение нескольких помещений, расположенных рядом, в один блок. Общая площадь склада Есипово - 1 - 110269.0 кв.м. Минимальный размер блока для покупки 986.5 кв.м.
Производственное помещение относится к классу "A". Тип склада - Сухой. Максимальная нагрузка на пол - 5 т/кв.м.. В складе Есипово - 1 присутствует система пожаротушения - Спринклерная.
Помещение light industrial оснащено коммуникациями: газоснабжение - Да, водоснабжение - Да, канализация - Да. Производственные помещения в light industrial Есипово - 1 имеют рабочую высоту потолков 8 м. Пол с антипылевым покрытием.
По вопросам покупки этого или другого производственного помещения в комплексе Есипово - 1 свяжитесь с нами по тел.: +7 (495) 104-36-11.

Характеристики складского блока

Тип реализации
Продажа
Класс объекта
A
Тип склада
Сухой
Свободная площадь
1 177 м²
Высота потолков
8 м
Электричество
30 кВт
Газ
нет
Канализация
нет
Водопровод
нет
Тип пожаротушения
Спринклерная
Тип напольного покрытия
Пол с антипылевым покрытием

Адрес

Адрес индустриальный парк Есипово, 17А, Московская область

Получите подробную презентацию объекта

NF Group

Light Industrial Индустриальный парк Есипово

О ПРОЕКТЕ

Предлагаются современные помещения класса А для производства, хранения или быстрой организации арендного бизнеса в новом промышленном парке в г.о. Солнечногорск. Общая площадь застройки составит около 200 000 кв. м.

Готовность к въезду: в наличии готовые блоки, 5я очередь – 2кв.2026г.

ЛОКАЦИЯ И ТРАНСПОРТНАЯ ДОСТУПНОСТЬ

Промышленный парк расположен на северо-западе Московской области на Ленинградском шоссе (М-10) в 32 км от МКАД

3 км от ЦКАД, 4 км от А 107

7 км от М11, 20 км от аэропорта Шереметьево

Выгодное расположение в между городов Солнечногорск и Зеленоград обеспечивает хороший доступ к персоналу

ТЕХНИЧЕСКИЕ ПАРАМЕТРЫ

Площадь блока: от 550,2кв. м, из них:

Складская площадь: 440,3 кв. м

Административно-офисные помещения: 109,9 кв.м. (передаются с отделкой)

Каркас зданий выполнен на колоннах с шагом 12 x 24 м, трехслойные минераловатные сэндвич толщиной 120 мм

Рабочая высота до низа фермы 8м

Нагрузка на пол до 5т с покрытием анти-пыль. Автоматические доковые ворота на уровне 1,2м - 2 шт.

ИНЖЕНЕРНЫЕ СИСТЕМЫ

Помещения передаются готовыми под ключ, имеют температурный режим +16/ +18С

Выделенная электрическая мощность составляет 25 кВт/ блок. Возможность увеличения за дополнительную плату

Система отопления: газовое

Водоснабжение от городских сетей

Установлены индивидуальные приборы учета

Спринклерное пожаротушение

ИНФРАСТРУКТУРА

Парк управляется профессиональной УК, территория охраняемая, доступ 24/7

На каждый блок предусмотрено 3–4 парковочных места

В парке предусмотрено бизнес пространство – переговорные, кафе, конференц-зал

УСЛОВИЯ ПРИОБРЕТЕНИЯ

Земельный участок и здание оформляются в собственность

Возможно приобретение по программе промышленной ипотеки для производственных компаний, рассрочка

БЕЗ КОМИССИИ ПРЯМАЯ ПРОДАЖА от собственника

Свяжитесь с нами для уточнения деталей


Предложений в продажу 379
Площадь предложений 987 м²
Подробнее
NF Group
NF Group
Профессиональные услуги по представлению интересов собственников, арендаторов и покупателей
Лидеры в сфере складской недвижимости
Проводим ежегодную складскую конференцию
Победители CRE Awards 2021, 2022, 2023, 2024, 2025
Доля рынка в России 55%
Самая большая и опытная команда

Получите консультацию эксперта NF GROUP

Как вам удобнее общаться?
NF Group

Вы смотрели

/
Логистический комплекс «Коралл»
Юг Республика Башкортостан Уфа шоссе М5 Урал, 10 км от границы города
Цена по запросу
Свернуть
ID: 15205, класс B+

Логистический комплекс «Коралл»

Юг Республика Башкортостан Уфа шоссе М5 Урал, 10 км от границы города
Цена по запросу
Тип склада: Сухой
Общая свободная площадь 47 960 м²
Минимальный блок: 5 760 м²
Позвонить
Складской комплекс «Мебельный Технопарк »
Восток Санкт-Петербург шоссе Революции
Цена по запросу
Свернуть
ID: 13520, класс B

Складской комплекс «Мебельный Технопарк »

Восток Санкт-Петербург шоссе Революции
Ладожская
Цена по запросу
Общая свободная площадь 3 500 м²
Минимальный блок: 3 500 м²
Позвонить
Производственное помещение 1494 м² в складском комплексе Горки Лайт, Корпус B (2-я линия)
Юг шоссе Каширское, 10 км от границы города
Цена по запросу
Свернуть
ID: ws14703_1494, класс A

Производственное помещение 1494 м² в складском комплексе Горки Лайт, Корпус B (2-я линия)

Юг шоссе Каширское, 10 км от границы города
Цена по запросу
Тип склада: Сухой; Холодильный
Общая свободная площадь: 1 494 м²
Минимальный блок: 1 494 м²
Позвонить
Склад 4 440 м² в light industrial «Промышленный парк Коледино», класс A
Юг Московская область шоссе Симферопольское, 17 км от МКАД
710 400 000 ₽
Свернуть
ID: 16347-16623, класс A

Склад 4 440 м² в light industrial «Промышленный парк Коледино», класс A

Юг Московская область шоссе Симферопольское, 17 км от МКАД
710 400 000 ₽
Тип склада: Сухой
Общая свободная площадь: 4 440 м²
Минимальный блок: 4 440 м²
Позвонить
Light Industrial «Промышленный парк Коледино»
Юг Московская область шоссе Симферопольское, 17 км от МКАД
Цена по запросу
Свернуть
ID: 16347, класс A

Light Industrial «Промышленный парк Коледино»

Юг Московская область шоссе Симферопольское, 17 км от МКАД
Цена по запросу
Тип склада: Сухой
Общая свободная площадь 38 895 м²
Минимальный блок: 606 м²
Позвонить
Склад 3 500 м² в складском комплексе «Мебельный Технопарк », класс B
Восток Санкт-Петербург шоссе Революции
Цена по запросу
Свернуть
ID: 13520-13522, класс B

Склад 3 500 м² в складском комплексе «Мебельный Технопарк », класс B

Восток Санкт-Петербург шоссе Революции
Ладожская
Цена по запросу
Общая свободная площадь: 3 500 м²
Минимальный блок: 3 500 м²
Позвонить
Склад 1 110 м² в light industrial «Промышленный парк Коледино», класс A
Юг Московская область шоссе Симферопольское, 17 км от МКАД
155 400 000 ₽
Свернуть
ID: 16347-16620, класс A

Склад 1 110 м² в light industrial «Промышленный парк Коледино», класс A

Юг Московская область шоссе Симферопольское, 17 км от МКАД
155 400 000 ₽
Тип склада: Сухой
Общая свободная площадь: 1 110 м²
Минимальный блок: 1 110 м²
Позвонить
Производственное помещение 748 м² в складском комплексе Горки Лайт, Корпус D (4-я линия)
Юг шоссе Каширское, 10 км от границы города
Цена по запросу
Свернуть
ID: ws16432_748, класс A

Производственное помещение 748 м² в складском комплексе Горки Лайт, Корпус D (4-я линия)

Юг шоссе Каширское, 10 км от границы города
Цена по запросу
Тип склада: Сухой; Холодильный
Общая свободная площадь: 748 м²
Минимальный блок: 748 м²
Позвонить
Склад 750 м² в light industrial «Промышленный парк Коледино», класс A
Юг Московская область шоссе Симферопольское, 17 км от МКАД
105 000 000 ₽
Свернуть
ID: 16347-16619, класс A

Склад 750 м² в light industrial «Промышленный парк Коледино», класс A

Юг Московская область шоссе Симферопольское, 17 км от МКАД
105 000 000 ₽
Тип склада: Сухой
Общая свободная площадь: 750 м²
Минимальный блок: 750 м²
Позвонить
Участок «МО - Барыбино - 10,7 ГА»
Юг Московская область шоссе М-4, 40 км от МКАД
Цена по запросу
Свернуть
ID: 16997

Участок «МО - Барыбино - 10,7 ГА»

Юг Московская область шоссе М-4, 40 км от МКАД
Цена по запросу
Позвонить
NF Group
Авторизация
Мы используем файлы cookie, чтобы улучшить сервис для вас.
Соглашение об использовании