Москва
Санкт-Петербург
+7 (495) 032-68-64 Продать объект Продать объект
Москва
Санкт-Петербург
О компании Аналитика Стать партнёром Карьера Контакты
ЖК Талисман (ZhK Talisman)
NF Group
NF Group
NF Group
NF Group
NF Group
NF Group
NF Group
NF Group
NF Group
NF Group
NF Group
NF Group
NF Group
NF Group
NF Group
NF Group
NF Group
NF Group
NF Expert
Наши эксперты ответят на все ваши вопросы
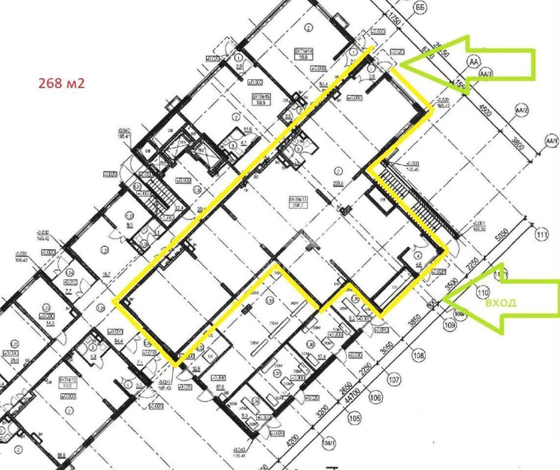
Планировка

ЖК Талисман, торговая площадь 267.0 м² - продажа

Водный Стадион
70 000 000
262 172  ₽/м²
906 801
3 396  $/м²
764 546
2 863  €/м²
$
Whatsapp
70 000 000
262 172  ₽/м²
906 801
3 396  $/м²
764 546
2 863  €/м²
$
ID s233595
 Ирина Козина
Ирина Козина
Директор направления стрит-ретейла
NF Group
Предложите нам свою цену, и мы свяжемся с вами

Характеристики

Об объекте

Тип сделки
Продажа
Стадия строительства
Построен
Площадь в продажу
267.00 м²
Витрины
Да
Входная группа
два отдельных входа
Высота потолков
3 м
Мощность электроэнергии
72 кВт

Адрес

Город Москва
Округ САО
Район Головинский
Адрес Головинское ш., 11
Объекты рядом

Описание

Помещение свободного назначения формата Street Retail в ЖК "Талисман на Водном", CАО Москвы.
5 минут пешком до станции метро «Водный стадион» и остановок общественного транспорта.

Общая площадь - 267 кв. м (1 этаж, один уровень),
2 отдельных входа.
Большие витринные окна. 
Электрическая мощность - 72 кВт. Высота потолков - 3 м.

Получите подробную презентацию объекта

NF Group

Инфраструктура

Все
Преимущества
Образование
Культура
Спорт
Инфраструктура
Мед. учреждения
NF Group
Выбирайте помещение на основе Big Data

Посмотрите похожие предложения

/
ЖК Амурский парк, торговая площадь 184.0 м² - продажа
Москва Гольяново жилой комплекс Амурский Парк, 1.3
80 000 000 ₽
Свернуть
ID: s235647

ЖК Амурский парк, торговая площадь 184.0 м² - продажа

Москва Гольяново жилой комплекс Амурский Парк, 1.3
Черкизовская, Локомотив
80 000 000 ₽
Площадь 184 м²
Витрины
WhatsApp Позвонить
ЖК Маломосковский, Маломосковская, д. 21, к. 1, торговая площадь 183.3 м² - продажа
Москва Маломосковская ул., 21, к. 1
73 000 000 ₽
Свернуть
ID: s237206

ЖК Маломосковский, Маломосковская, д. 21, к. 1, торговая площадь 183.3 м² - продажа

Москва Маломосковская ул., 21, к. 1
Алексеевская
73 000 000 ₽
Площадь 183 м²
Мощность 80 кВт
Арендаторы СМ -Косметология
Окупаемость по запросу
WhatsApp Позвонить
ЖК Прокшино, торговая площадь 156.2 м² - продажа
Москва Очаково-Матвеевское Коммунарка р-н, Прокшинский пр-кт, к. 7
69 800 000 ₽
Свернуть
ID: s234034

ЖК Прокшино, торговая площадь 156.2 м² - продажа

Москва Очаково-Матвеевское Коммунарка р-н, Прокшинский пр-кт, к. 7
Прокшино
69 800 000 ₽
Площадь 156 м²
Мощность 31 кВт
Арендаторы ВинЛаб, Табак
Окупаемость 11 лет
WhatsApp Позвонить
Планерная, д.12, торговая площадь 33.5 м² - продажа
Москва Планерная ул., 12
77 280 000 ₽
Свернуть
ID: s233635

Планерная, д.12, торговая площадь 33.5 м² - продажа

Москва Планерная ул., 12
Планерная
77 280 000 ₽
Площадь 33 м²
Арендаторы Газпромбанк
Окупаемость 11 лет
НДС не применим
WhatsApp Позвонить
Грузинский Вал, д.28/45, торговая площадь 19.8 м² - продажа
Москва Пресненский Грузинский Вал ул., 28/45
65 400 000 ₽
Свернуть
ID: s238219

Грузинский Вал, д.28/45, торговая площадь 19.8 м² - продажа

Москва Пресненский Грузинский Вал ул., 28/45
Белорусская
65 400 000 ₽
Площадь 19 м²
Арендаторы Операционная касса
Окупаемость 13 лет
WhatsApp Позвонить
ЖК Золотые Ключи-2, торговая площадь 152.1 м² - продажа
Москва Минская ул., 1Г, к. 3
61 000 000 ₽
Свернуть
ID: s234372

ЖК Золотые Ключи-2, торговая площадь 152.1 м² - продажа

Москва Минская ул., 1Г, к. 3
Минская
61 000 000 ₽
Площадь 152 м²
Мощность 60 кВт
Арендаторы Винлаб
Окупаемость 15 лет
WhatsApp Позвонить
Новослободская ул., д.62 к.2, торговая площадь 182.7 м² - продажа
Москва Новослободская ул., 62, к. 2
75 000 000 ₽
Свернуть
ID: s233979

Новослободская ул., д.62 к.2, торговая площадь 182.7 м² - продажа

Москва Новослободская ул., 62, к. 2
Новослободская, Менделеевская
75 000 000 ₽
Площадь 182 м²
С отделкой
Мощность 50 кВт
WhatsApp Позвонить
ЖК Барклая д. 6, торговая площадь 78.5 м² - продажа
Москва Барклая ул., 6А, к. 1
74 000 000 ₽
Свернуть
ID: s236074

ЖК Барклая д. 6, торговая площадь 78.5 м² - продажа

Москва Барклая ул., 6А, к. 1
Багратионовская
74 000 000 ₽
Площадь 78 м²
Мощность 16 кВт
WhatsApp Позвонить
Пр-т Мира, д.188б
Москва Ростокино Мира пр-кт, 188Б, к. 1
от 73 075 000 ₽
Свернуть
ID: r132233

Пр-т Мира, д.188б

Москва Ростокино Мира пр-кт, 188Б, к. 1
от 73 075 000 ₽
Площадь 395 м²
WhatsApp Позвонить
Фридриха Энгельса, д.7-21, торговая площадь 74.4 м² - продажа
Москва Басманный Фридриха Энгельса ул., 7-21
65 000 000 ₽
Свернуть
ID: s230394

Фридриха Энгельса, д.7-21, торговая площадь 74.4 м² - продажа

Москва Басманный Фридриха Энгельса ул., 7-21
Бауманская
65 000 000 ₽
Площадь 74 м²
С отделкой
Витрины
Мощность 100 кВт
WhatsApp Позвонить
Нам доверяют во всем мире
Лидеры в сфере недвижимости
Управляющая компания года
В управлении 73 млн м² и 150 млрд инвестиций
Самая большая цитируемость в мире
Более 400 экспертов в России

Получите консультацию эксперта NF GROUP

Как вам удобнее общаться?
Ирина Козина
Ирина Козина
Директор направления стрит-ретейла
Ирина имеет 15-летний опыт работы в области недвижимости, в команде NF GROUP c февраля 2015 года, начав с должности консультанта.

Специализируется на работе с крупными российскими и иностранными компаниями-девелоперами, а также с частными собственниками и инвесторами.

На позиции директора направления Street Retail Ирина отвечает за сопровождение ключевых сделок по аренде и продаже помещений формата Street Retail, координацию работы департамента, взаимодействие с другими подразделениями компании.
NF Group
Авторизация
Мы используем файлы cookie, чтобы улучшить сервис для вас.
Соглашение об использовании