Москва
Санкт-Петербург
+7 (495) 032-68-64 Продать объект Продать объект
Москва
Санкт-Петербург
О компании Аналитика Стать партнёром Карьера Контакты
ЖК Мираполис (ZhK Mirapolis)
NF Group
NF Group
NF Group
NF Group
NF Expert
Наши эксперты ответят на все ваши вопросы
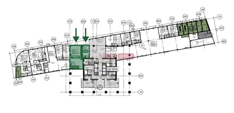
Планировки

ЖК Мираполис, торговая площадь 107.4 м² - продажа

Алексеевская
80 550 000
750 000  ₽/м²
1 046 500
9 743  $/м²
895 984
8 342  €/м²
$
Whatsapp
80 550 000
750 000  ₽/м²
1 046 500
9 743  $/м²
895 984
8 342  €/м²
$
ID s237410
 Ирина Козина
Ирина Козина
Директор направления стрит-ретейла
NF Group
Предложите нам свою цену, и мы свяжемся с вами

Характеристики

Об объекте

Тип сделки
Продажа
Стадия строительства
Построен
Площадь в продажу
107.40 м²
Витрины
Нет
Входная группа
Отдельный вход
Высота потолков
5 м

О здании

Предложений в продажу
1
Площадь предложений
107.40 м²

Адрес

Город Москва
Округ СВАО
Адрес Мира пр-кт, 222

Описание

Помещение свободного назначения формата Street Retail в СВАО Москвы ЖК бизнес-класса Мираполис в жилом 35-ти этажном доме.
3 минуты пешком до МЦК Ростокино.
Первая линия домов. Напротив помещения пешеходный переход, ведущий от ТЦ Европолис.
Активный пешеходный и автомобильный трафик.
Высота потолков 5 м.
Ввод в эксплуатацию 2 квартал 2026 года.

Получите подробную презентацию объекта

NF Group

Инфраструктура

Все
Преимущества
Образование
Культура
Спорт
Инфраструктура
Мед. учреждения

Новостройка ЖК Мираполис (ZhK Mirapolis)

Помещение свободного назначения формата Street Retail в СВАО Москвы ЖК бизнес-класса Мираполис в жилом 35-ти этажном доме.
3 минуты пешком до МЦК Ростокино.
Первая линия домов. Напротив помещения пешеходный переход, ведущий от ТЦ Европолис.
Активный пешеходный и автомобильный трафик.
Высота потолков 5 м.
Ввод в эксплуатацию 2 квартал 2026 года.
Предложений в продажу 1
Площадь предложений 107 м²
Подробнее
NF Group
NF Group
Выбирайте помещение на основе Big Data

Посмотрите похожие предложения

/
AIR-SPACE, торговая площадь 163.1 м² - продажа
Москва Хорошёвский Ленинградский пр-кт, 47, стр. 2
73 000 000 ₽
Свернуть
ID: s230518

AIR-SPACE, торговая площадь 163.1 м² - продажа

Москва Хорошёвский Ленинградский пр-кт, 47, стр. 2
Аэропорт
73 000 000 ₽
Площадь 163 м²
Арендаторы Винлаб
Окупаемость 11 лет
НДС включен
WhatsApp Позвонить
STONE Мнёвники, торговая площадь 68.1 м² - продажа
Москва Стоун Мнёвники
84 444 000 ₽
Свернуть
ID: s235704

STONE Мнёвники, торговая площадь 68.1 м² - продажа

Москва Стоун Мнёвники
84 444 000 ₽
Площадь 68 м²
WhatsApp Позвонить
Бизнес-квартал "Прокшино", торговая площадь 143.1 м² - продажа
Москва Солнцево Сосенское п., Николо-Хованское, Новомосковский округ
79 360 398 ₽
Свернуть
ID: s231661

Бизнес-квартал "Прокшино", торговая площадь 143.1 м² - продажа

Москва Солнцево Сосенское п., Николо-Хованское, Новомосковский округ
Прокшино
79 360 398 ₽
Площадь 143 м²
Витрины
Мощность 80 кВт
WhatsApp Позвонить
Большая Садовая, д. 2/46 стр. 1, торговая площадь 33.5 м² - продажа
Москва Тверской Большая Садовая ул., 2/46, стр. 1
92 400 000 ₽
Свернуть
ID: s230308

Большая Садовая, д. 2/46 стр. 1, торговая площадь 33.5 м² - продажа

Москва Тверской Большая Садовая ул., 2/46, стр. 1
Маяковская
92 400 000 ₽
Площадь 33 м²
Арендаторы ТАБАК
Окупаемость 12 лет
НДС не применим
WhatsApp Позвонить
БЦ STONE Савёловская, торговая площадь 71.4 м² - продажа
Москва Марьина Роща Двинцев ул., 3
72 471 000 ₽
Свернуть
ID: s230482

БЦ STONE Савёловская, торговая площадь 71.4 м² - продажа

Москва Марьина Роща Двинцев ул., 3
Савёловская
72 471 000 ₽
Площадь 71 м²
Витрины
WhatsApp Позвонить
БЦ STONE Савёловская, торговая площадь 87.9 м² - продажа
Москва Марьина Роща Двинцев ул., 3
80 428 500 ₽
Свернуть
ID: s230481

БЦ STONE Савёловская, торговая площадь 87.9 м² - продажа

Москва Марьина Роща Двинцев ул., 3
Савёловская
80 428 500 ₽
Площадь 87 м²
Витрины
WhatsApp Позвонить
Грузинский Вал, д.28/45, торговая площадь 19.7 м² - продажа
Москва Пресненский Грузинский Вал ул., 28/45
71 000 000 ₽
Свернуть
ID: s231781

Грузинский Вал, д.28/45, торговая площадь 19.7 м² - продажа

Москва Пресненский Грузинский Вал ул., 28/45
Белорусская
71 000 000 ₽
Площадь 19 м²
Арендаторы Табак
Окупаемость 10 лет
НДС не применим
WhatsApp Позвонить
Дмитровское ш., д.81 ЖК ApartVille, торговая площадь 223.0 м² - продажа
Москва Западное Дегунино Дмитровское ш., 81
76 000 000 ₽
Свернуть
ID: s231696

Дмитровское ш., д.81 ЖК ApartVille, торговая площадь 223.0 м² - продажа

Москва Западное Дегунино Дмитровское ш., 81
Селигерская
76 000 000 ₽
Площадь 223 м²
Мощность 70 кВт
Арендаторы Мята Signature
Окупаемость 10 лет
НДС включен
WhatsApp Позвонить
ЖК Маломосковский, Маломосковская, д. 21, к. 1, торговая площадь 183.3 м² - продажа
Москва Маломосковская ул., 21, к. 1
73 000 000 ₽
Свернуть
ID: s237206

ЖК Маломосковский, Маломосковская, д. 21, к. 1, торговая площадь 183.3 м² - продажа

Москва Маломосковская ул., 21, к. 1
Алексеевская
73 000 000 ₽
Площадь 183 м²
Мощность 80 кВт
Арендаторы СМ -Косметология
Окупаемость по запросу
WhatsApp Позвонить
AIR-SPACE, торговая площадь 114.9 м² - продажа
Москва Хорошёвский Ленинградский пр-кт, 47, стр. 2
84 990 000 ₽
Свернуть
ID: s230516

AIR-SPACE, торговая площадь 114.9 м² - продажа

Москва Хорошёвский Ленинградский пр-кт, 47, стр. 2
Аэропорт
84 990 000 ₽
Площадь 114 м²
Мощность 80 кВт
Арендаторы LAO LEE
Окупаемость 9 лет
НДС включен
WhatsApp Позвонить
Нам доверяют во всем мире
Лидеры в сфере недвижимости
Управляющая компания года
В управлении 73 млн м² и 150 млрд инвестиций
Самая большая цитируемость в мире
Более 400 экспертов в России

Получите консультацию эксперта NF GROUP

Как вам удобнее общаться?
Ирина Козина
Ирина Козина
Директор направления стрит-ретейла
Ирина имеет 15-летний опыт работы в области недвижимости, в команде NF GROUP c февраля 2015 года, начав с должности консультанта.

Специализируется на работе с крупными российскими и иностранными компаниями-девелоперами, а также с частными собственниками и инвесторами.

На позиции директора направления Street Retail Ирина отвечает за сопровождение ключевых сделок по аренде и продаже помещений формата Street Retail, координацию работы департамента, взаимодействие с другими подразделениями компании.
NF Group
Авторизация
Мы используем файлы cookie, чтобы улучшить сервис для вас.
Соглашение об использовании