Москва
Санкт-Петербург
+7 (495) 032-68-64 Продать объект Продать объект
Москва
Санкт-Петербург
О компании Аналитика Стать партнёром Карьера Контакты
ЖК Ильинские Луга (ZhK Ilinskie Luga)
NF Group
NF Group
NF Expert
Наши эксперты ответят на все ваши вопросы
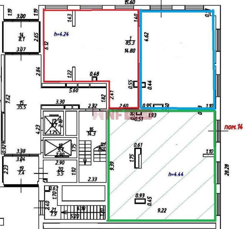
Планировка

ЖК Ильинские Луга, торговая площадь 191.3 м² - продажа

Строгино
91 000 000
475 692  ₽/м²
1 119 373
5 851  $/м²
973 919
5 091  €/м²
$
91 000 000
475 692  ₽/м²
1 119 373
5 851  $/м²
973 919
5 091  €/м²
$
ID s238793
 Ирина Козина
Ирина Козина
Директор направления стрит-ретейла
NF Group
Предложите нам свою цену, и мы свяжемся с вами

Характеристики

Об объекте

Тип сделки
Продажа
Стадия строительства
Построен
Площадь в продажу
191.30 м²
Витрины
Нет
Входная группа
3 отдельных входа
Арендатор
Здравсити, Буханка, Wildderrirs, Оzon
Окупаемость
13 лет
Мощность электроэнергии
46 кВт
Отделка
С отделкой

Адрес

Город Красногорск
Адрес Ильинское-Усово п., Заповедная ул., 20
Объекты рядом

Описание

Угловое помещение свободного назначения формата Street Retail в ЖК Ильинские Луга.
Состав арендаторов: аптека ЗДРАВСИТИ, пекарня БУХАНКА, ПВЗ Озон и Вайлберрис.
По соседству федеральные сетевые супермаркеты: Пятерочка и Дикси
Рядом — детский сад, напротив — парковка и пешеходный переход.

Арендаторы: Здравсити. МАП: 200 000 руб., ДДА на 7 лет., безусловная индексация 5%.
Буханка. МАП: 130 000 руб., ДДА на 5 лет, безусловная индексация 5%.
ПВЗ Wildderrirs, Оzon. МАП: 338 000 руб., ДДА на 5 лет, безусловная индексация 5%.
Общий МАП: 574 000 руб.

Получите подробную презентацию объекта

NF Group

Инфраструктура

Все
Преимущества
Образование
Культура
Спорт
Инфраструктура
Мед. учреждения
NF Group
Выбирайте помещение на основе Big Data

Посмотрите похожие предложения

/
Level Лесной, торговая площадь 178.7 м² - продажа
Красногорск Отрадное пгт, Кленовая ул., 2
43 000 000 ₽
Свернуть
ID: s234484

Level Лесной, торговая площадь 178.7 м² - продажа

Красногорск Отрадное пгт, Кленовая ул., 2
Пятницкое шоссе
43 000 000 ₽
Площадь 178 м²
Нам доверяют во всем мире
Лидеры в сфере недвижимости
Управляющая компания года
В управлении 73 млн м² и 150 млрд инвестиций
Самая большая цитируемость в мире
Более 400 экспертов в России

Получите консультацию эксперта NF GROUP

Как вам удобнее общаться?
Ирина Козина
Ирина Козина
Директор направления стрит-ретейла
Ирина имеет 15-летний опыт работы в области недвижимости, в команде NF GROUP c февраля 2015 года, начав с должности консультанта.

Специализируется на работе с крупными российскими и иностранными компаниями-девелоперами, а также с частными собственниками и инвесторами.

На позиции директора направления Street Retail Ирина отвечает за сопровождение ключевых сделок по аренде и продаже помещений формата Street Retail, координацию работы департамента, взаимодействие с другими подразделениями компании.
NF Group
Авторизация
Мы используем файлы cookie, чтобы улучшить сервис для вас.
Соглашение об использовании