Москва
Санкт-Петербург
+7 (495) 032-68-64 Продать объект Продать объект
Москва
Санкт-Петербург
О компании Аналитика Стать партнёром Карьера Контакты
Bussinesclub Газетный (Gazetniy, 17)
NF Group
NF Group
NF Group
NF Group
NF Group
NF Group
NF Group
NF Group
NF Group
NF Group
NF Group
NF Group
NF Group
NF Group
NF Group
NF Expert
Наши эксперты ответят на все ваши вопросы
Без комиссии

Бизнес-центр Bussinesclub Газетный

Охотный Ряд
от 684 000
до 417 639 000  ₽ / мес.
от 8 844
до 5 399 999  $ / мес.
от 7 488
до 4 572 048  € / мес.
$
за м²/год
от 684 000
до 417 639 000  ₽ / мес.
от 8 844
до 5 399 999  $ / мес.
от 7 488
до 4 572 048  € / мес.
$
за м²/год
ID os46775
 Елена Акатова
Елена Акатова
Директор департамента офисной недвижимости NF GROUP

Описание «Bussinesclub Газетный (Gazetniy, 17)»

Уникальное предложение на рынке офисной недвижимости!   Газетный, 17 – располагается в историческом месте города, в окружении объектов национального и исторического значения: Центральный телеграф, Государственная Дума РФ, МХТ им. Чехова, Большой Театр, Церковь Успения пресвятой Богородицы, Усадьба С.А. Меншикова и многих других значимых объектов столицы. Длительное время Газетный,17 являлся штаб-квартирой Московского конструкторского центра компании «Боинг». Сегодня деловой центр предлагает в аренду офисные помещения с отделкой, готовые для быстрого переезда компании. Удобное планировочное решение позволит разместить сотрудников как в кабинетах, так и в открытых пространствах. Здание отличается низким коэффициентом общих площадей – всего 4,5%, что делает его максимально эффективным с коммерческой точки зрения. Газетный,17 представляет собой современное здание со стеклянным фасадом, с верхних этажей открываются захватывающие виды на исторический центр Москвы и башни Кремля. Удобный и быстрый доступ к зданию на личном и городском транспорте. Метро Охотный ряд располагается в шаговой доступности (4 мин./350 метров).

Подберите офис в БЦ Bussinesclub Газетный (Gazetniy, 17)

Арендовать
в месяц
м²
Отделка
С отделкой
Под отделку
Объектов: 3
Сначала с большей площадью
Сначала с меньшей площадью
Сначала дороже
Сначала дешевле
По актуальности
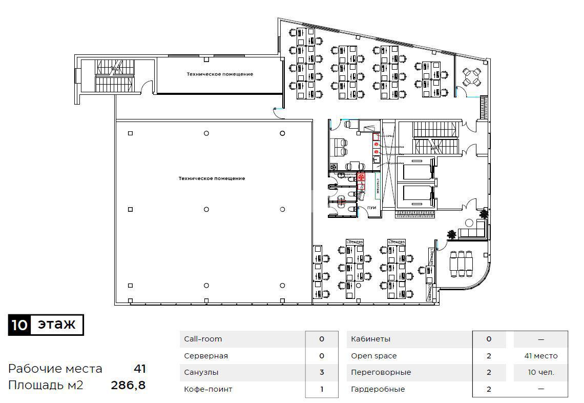
Коворкинг от 286.80 м² от 2 050 000 ₽ 3
kf-expert
Коворкинг 286 м² этаж 10 из 12 С отделкой 50 000 ₽ место/мес.
kf-expert
Коворкинг 427 м² этаж 12 из 12 С отделкой 57 000 ₽ место/мес.
kf-expert
Коворкинг 532 м² этаж 11 из 12 С отделкой 52 000 ₽ место/мес.

Характеристики Bussinesclub Газетный (Gazetniy, 17)

Адрес

Город Москва
Округ ЦАО
Район Тверской
Адрес Газетный переулок, 17
Объекты рядом

О бизнес-центре

Тип здания
Бизнес-центр
Отделка
Есть
Тип сделки
Аренда
Класс
A
Площадь здания
7327 м²
Количество доступных блоков в аренду
3
Площадь блоков в аренду
286 - 1 245 м²
Год строительства
1993
Этажность
12
Планировка
смешанная
Парковочный коэффициент
Центральный Паркинг
НДС
не включен
Операционные расходы
включены в арендную плату

Дополнительные характеристики

Профессиональная управляющая компания
Система контроля доступа
Возможность деления на блоки
Доступ 24/7

Получите подробную презентацию объекта

NF Group

Инфраструктура района

Образование
Гимназия № 1540, престижные школы № 1574, № 1275, № 128, № 1501, № 2054, курсы английского языка, школа журналистики «Известия», более 10 частных детских садов, в том числе с углубленным изучением иностранных языков. Здесь находятся несколько факультетов МГУ им. Ломоносова: психологический факультет, ИСАА, факультет искусств и факультет журналистики, а также ГИТИС.
Инфраструктура
В Тверском районе находятся 15 крупных торговых центров, многочисленные модные бутики, меховые, обувные и ювелирные салоны; более 15 салонов красоты и спа
Культура
Район – культурное и историческое сердце столицы, где на каждом шагу встречаются архитектурные памятники разных эпох. Библиотека им. Ленина, Большой театр, театр «Россия», «Ленком», театр Ермоловой, Музыкальный театр Станиславского, Зоологический музей, Геологический музей, гостиница «Москва», Красная площадь, Кремль, ГУМ, ЦУМ, Покровский собор, храм Николы Чудотворца у Тверской заставы, Елисеевский магазин.
Преимущества
Тверской район – главный исторический район центра Москвы и по совместительству богатейший с культурной точки зрения. На территории района находятся Кремль, Большой и Малый театры,10 музеев, 17 известных театров, памятники архитектуры и старинные улочки. Именно здесь расположены знаковые fashion-пространства: Столешников переулок, ЦУМ, ГУМ и Петровский пассаж.
Спорт
19 фитнес-клубов с бассейнами и спа-зонами: X-Fit Столешников, Topstretching, Soul Unit, MyFitLab, Top-Pilates и т.д.
Все
Преимущества
Образование
Культура
Спорт
Инфраструктура
Мед. учреждения
4 минуты пешком
Московский Художественный театр имени А. П. Чехова
NF Group
8 минут пешком
World Class Романов
NF Group
8 минут пешком
Торговый центр Охотный ряд
NF Group
9 минут пешком
Гостиница Времена года Арбатская
NF Group
10 минут пешком
Метро Тверская
10 минут пешком
Кафе Пушкинъ
NF Group
Профессиональные услуги по представлению интересов арендаторов

Получите консультацию Елены

Как вам удобнее общаться?
Елена Акатова
Елена Акатова
Директор департамента офисной недвижимости NF GROUP

Посмотрите похожие предложения

/
Только в NF GROUP Без комиссии
Бизнес-центр Берлинский дом
ЦАО Тверской Петровка улица, 5
от 59 000 ₽ м² в год
Свернуть
ID: os3719

Бизнес-центр Берлинский дом

ЦАО Тверской Петровка улица, 5
от 59 000 ₽ м² в год
14 336 м²
С отделкой
Класс A
Магистраль БК
 Иван Соколов
Иван Соколов
Директор по работе с ключевыми клиентами
Без комиссии
Бизнес-центр Белая Площадь (Здание B)
ЦАО Тверской Лесная улица, 5сБ
от 100 000 ₽ м² в год
Свернуть
ID: os19960

Бизнес-центр Белая Площадь (Здание B)

ЦАО Тверской Лесная улица, 5сБ
Белорусская
от 100 000 ₽ м² в год
29 976 м²
С отделкой
Класс A
Магистраль TTK
Без комиссии
Бизнес-центр White Stone
ЦАО Тверской Лесной 4-й переулок, 4
Цена по запросу
Свернуть
ID: os439

Бизнес-центр White Stone

ЦАО Тверской Лесной 4-й переулок, 4
Белорусская
Цена по запросу
45 000 м²
С отделкой
Класс A
Магистраль TTK
Без комиссии
Бизнес-центр Салют
ЦАО Тверской Сущевская ул., 27, Москва
от 48 000 ₽ м² в год
Свернуть
ID: os6335

Бизнес-центр Салют

ЦАО Тверской Сущевская ул., 27, Москва
от 48 000 ₽ м² в год
9 818 м²
С отделкой
Класс B+
Магистраль TTK
Без комиссии
Бизнес-центр Лесная 43
ЦАО Тверской Лесная улица, 43
от 48 000 ₽ м² в год
Свернуть
ID: os7175

Бизнес-центр Лесная 43

ЦАО Тверской Лесная улица, 43
Белорусская
от 48 000 ₽ м² в год
12 365 м²
С отделкой
Класс B+
Магистраль TTK
Без комиссии
Бизнес-центр ASPACE Новослободская
ЦАО Тверской Новослободская ул., 16
Цена по запросу
Свернуть
ID: os3462

Бизнес-центр ASPACE Новослободская

ЦАО Тверской Новослободская ул., 16
Цена по запросу
11 785 м²
С отделкой
Класс B+
Магистраль TTK
Без комиссии
Бизнес-центр Белая площадь (White Square)
ЦАО Тверской Лесная улица, 5, стр. а-в
от 100 000 ₽ м² в год
Свернуть
ID: os18747

Бизнес-центр Белая площадь (White Square)

ЦАО Тверской Лесная улица, 5, стр. а-в
Белорусская
от 100 000 ₽ м² в год
73 921 м²
Без отделки
Класс A
Магистраль TTK
Без комиссии
Бизнес-центр ИЗВЕСТИЯ
ЦАО Тверской Тверская ул., 18, к. 1
от 90 000 ₽ м² в год
Свернуть
ID: os37373

Бизнес-центр ИЗВЕСТИЯ

ЦАО Тверской Тверская ул., 18, к. 1
от 90 000 ₽ м² в год
37 000 м²
С отделкой
Класс B+
Магистраль СК
Без комиссии
Бизнес-центр Галерея Актер
ЦАО Тверской Тверская ул., 16С1
Цена по запросу
Свернуть
ID: os4711

Бизнес-центр Галерея Актер

ЦАО Тверской Тверская ул., 16С1
Цена по запросу
18 316 м²
С отделкой
Класс B+
Магистраль БК
Без комиссии
Бизнес-центр На Маяковской
ЦАО Тверской 2-я Брестская ул., 6
от 464 999 997 ₽
Свернуть
ID: os357

Бизнес-центр На Маяковской

ЦАО Тверской 2-я Брестская ул., 6
от 464 999 997 ₽
34 751 м²
6 этаж
Класс A
Магистраль СК

Вы смотрели

/
Только в NF GROUP Без комиссии
Аренда офиса 643 м², 2 этаж - Газетный, 17
ЦАО Тверской Газетный переулок, 17
Цена по запросу
Свернуть
ID: ol46606

Аренда офиса 643 м², 2 этаж - Газетный, 17

ЦАО Тверской Газетный переулок, 17
Цена по запросу
643 м²
2 этаж
Класс A
Магистраль БК
 Оксана Черкашина
Оксана Черкашина
Заместитель директора по работе с офисными зданиями
Позвонить
Мытищи, Центральная, д.93, торговая площадь 664.7 м² - продажа
Мытищи д. Пирогово, Центральная ул., 91
180 000 000 ₽
Свернуть
ID: s229723

Мытищи, Центральная, д.93, торговая площадь 664.7 м² - продажа

Мытищи д. Пирогово, Центральная ул., 91
180 000 000 ₽
Площадь 664 м²
Арендаторы Лента, Горздрав
Окупаемость 8 лет
НДС включен
Позвонить
Без комиссии
Особняк 4 626 м² Шмитовский проезд 3, стр. 1*
ЦАО Пресненский Шмитовский проезд, 3, стр. 1
Свернуть
ID: os5552

Особняк 4 626 м² Шмитовский проезд 3, стр. 1*

ЦАО Пресненский Шмитовский проезд, 3, стр. 1
Магистраль TTK
4 626 м²
Класс B+
 Нина Уколова
Нина Уколова
Старший консультант по особнякам
Позвонить
NF Group
Авторизация
Мы используем файлы cookie, чтобы улучшить сервис для вас.
Соглашение об использовании