Москва
Санкт-Петербург
+7 (495) 032-68-64 Продать объект Продать объект
Москва
Санкт-Петербург
О компании Аналитика Стать партнёром Карьера Контакты
«ВЕЕР» (Veer)
NF Group
NF Group
NF Group
NF Group
NF Group
NF Group
NF Group
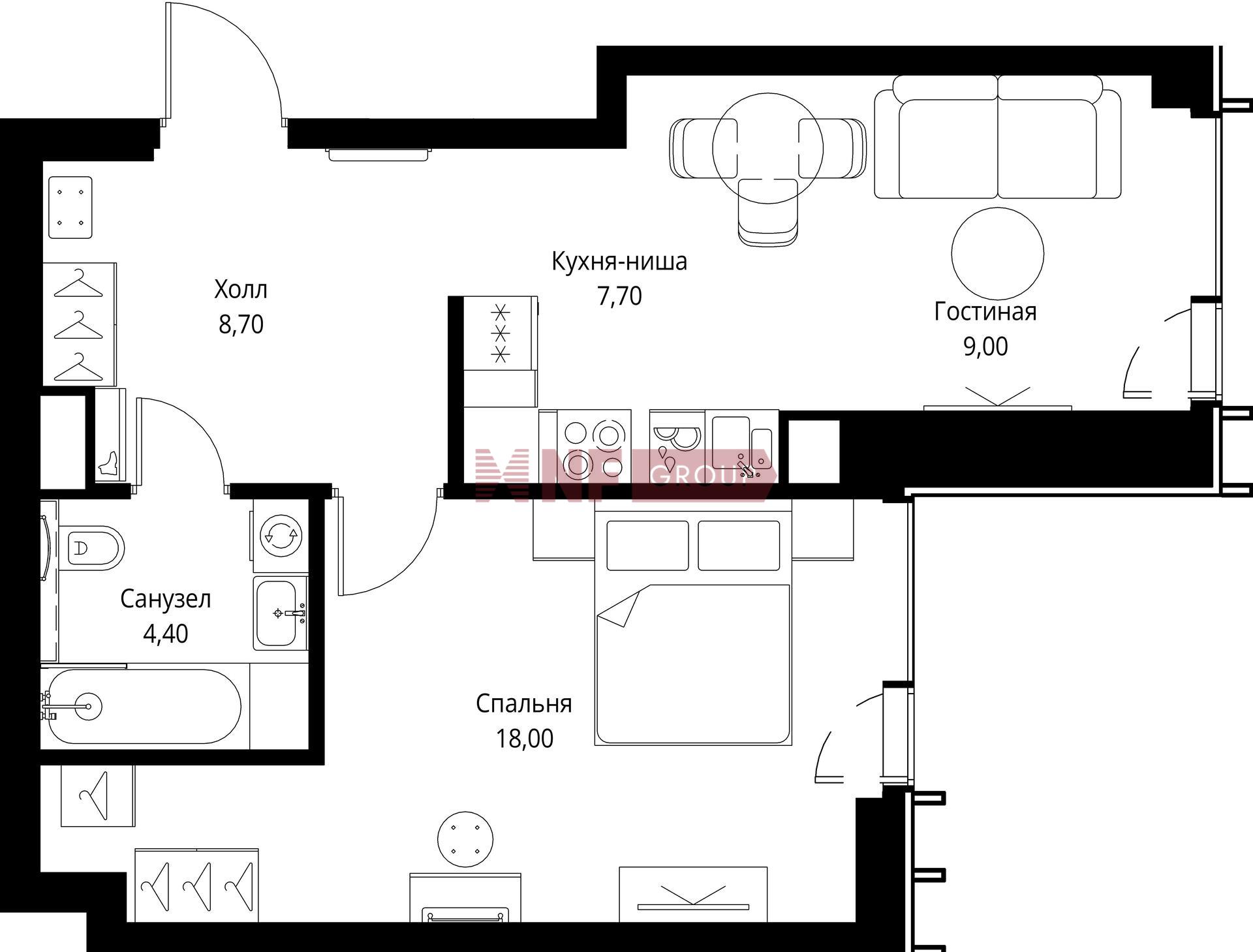
Планировка

1-комн. квартира 48 м², 34 этаж - «ВЕЕР»

Этажей 61 Срок сдачи 3 квартал 2028 г.
28 115 960
588 200  ₽/м²
350 462
7 331  $/м²
305 659
6 394  €/м²
$
28 115 960
588 200  ₽/м²
350 462
7 331  $/м²
305 659
6 394  €/м²
$
ID as87837
 Дмитрий Щеголев
Дмитрий Щеголев
Руководитель отдела продаж новостроек
NF Group
Предложите нам свою цену, и мы свяжемся с вами

Описание

Местоположение

ЖК VEER расположен в престижном районе на западе столицы, недалеко от Кутузовского проспекта. Это место объединяет удобный доступ к центру Москвы и возможность наслаждаться уединением рядом с природными зонами. Такое расположение делает жилой комплекс привлекательным для тех, кто ценит комфорт и динамичный ритм жизни.

В непосредственной близости находятся важные транспортные развязки, что позволяет быстро добраться до деловых и культурных кварталов города. Окружение комплекса сформировано современной застройкой, при этом неподалеку раскинулись зеленые зоны, создающие баланс между урбанистической средой и природой.

Архитектура

Проект ЖК VEER на Верейской разработан архитектурным бюро «СПИЧ» под руководством Сергея Чобана. Композиция зданий представляет собой динамичное сочетание форм: две 22-этажные башни, 46-этажный корпус и два высотных здания по 59 этажей. Такое решение позволяет создать выразительный архитектурный образ, который гармонично вписывается в городской ландшафт.

Дизайн фасадов жилого комплекса Веер вдохновлен принципами «чистой архитектуры» Казимира Малевича, сочетая лаконичность и геометричную ритмику. Центральный элемент проекта — две соединенные стилобатом 59-этажные башни, которые формируют знаковый силуэт и становятся новой архитектурной доминантой района.

Предложение

В ЖК VEER представлены 1 843 квартиры с различными вариантами планировок. Внимание уделено многообразию решений — более 200 типов: от функциональных студий до просторных шестикомнатных апартаментов. Площади варьируются от 20,6 до 130,7 кв. м, что позволяет выбрать жилье, соответствующее самым разным требованиям.

Если вас интересует возможность купить квартиру в ЖК Веер, стоит обратить внимание на широкий выбор планировок и высокий уровень проработки жилого пространства. Каждая квартира спроектирована с учетом инсоляции, панорамных видов и эргономики, что делает жилье максимально комфортным. Цены в ЖК VEER варьируются в зависимости от площади и планировки.

Инфраструктура

На территории мультиквартала VEER создана концепция комфортной городской среды с разделением пространства на тематические зоны. Озелененные прогулочные маршруты организованы в форме веера, что отражено в названии комплекса. Дворовые территории объединяют несколько функциональных зон:

  • Спортивный кластер с тренажерными площадками и зонами для активного отдыха.
  • Детские пространства, включая интерактивную площадку «Волшебный лес» с элементами светового дизайна.
  • Ландшафтные зоны с живописными прудами, кленовыми рощами и уютными местами для отдыха.
  • Приватный внутренний двор первой очереди комплекса с лаунж-зонами, местами для работы на свежем воздухе и фитнес-центром с бассейном.

Дополнительно на территории комплекса будет создан образовательный кластер, включающий школы и детские сады. Придомовая инфраструктура продумана таким образом, чтобы резиденты могли пользоваться всеми необходимыми сервисами, не покидая территорию ЖК VEER.

Общественные пространства

Дизайн входных зон разработан международным бюро Jaime Beriestain. В третьем корпусе будет размещено просторное гранд-лобби площадью 328 кв. м, связанное с холлами остальных зданий. Здесь предусмотрены лаунж-зоны, коворкинг, переговорные и студия йоги.

Дополнительно для комфорта жителей ЖК Веер предусмотрены подземный паркинг, современные системы безопасности и интеллектуальное управление инфраструктурой.

Район

Одним из главных преимуществ ЖК VEER является близость к крупнейшим природным зонам Москвы. Комплекс расположен напротив заказника «Долина реки Сетунь» — одного из самых масштабных природных парков столицы. Кроме того, всего в нескольких минутах езды расположены Троекуровский лес и культурные пространства, такие как дом творчества «Переделкино».

Престижное расположение, выразительная архитектура и продуманная инфраструктура делают жилой комплекс VEER одним из одним из самых привлекательных вариантов для тех, кто ищет комфортное жилье в Москве.

Характеристики

О квартире

Тип сделки
Продажа
Отделка
Под отделку
Тип объекта
Квартира
Этаж
34 из 61
Общая площадь
48 м²
Уровней
1
Высота потолков
2.85 м

О жилом комплексе

Количество лотов
1843
Площадь квартир
от 21 до 94 м²
Строится
3 кв. 2028
Этажность
61
Класс
Бизнес

Адрес

Город Москва
Округ ЗАО
Район Можайский
Адрес ул. Верейская, влд.29
Объекты рядом

Все предложения в категориях

Элитная недвижимость в Подмосковье 7724 Элитная недвижимость в Москве 5829 Элитные квартиры в Москве и Подмосковье 5686 Элитные квартиры в Москве 5431 Продажа квартир с базовой ценой в рублях 5388 Квартиры в новостройках (ЖК) Москвы 5053 Строящиеся квартиры в Москве 4354 Квартиры на этапе строительства в новостройках 4343 Квартиры под отделку в Москве 4121 Квартиры без отделки от застройщика 4010 Квартиры под отделку в строящихся домах 3481 Квартиры в пределах МКАД 3022 Недвижимость бизнес-класса 1784 Квартиры бизнес-класса от застройщика 1746 Квартиры в ЗАО 1672 Квартиры на западе Москвы 1611 Недвижимость от застройщика МР Групп 1496 Строящиеся квартиры в ЗАО 1483 Квартиры от застройщика МР Групп 1482 Вторичное жилье: однокомнатные квартиры в Москве 1021 Квартиры под отделку в ЗАО 971 Однокомнатные элитные квартиры 971 Однокомнатные квартиры в новостройках 967 Однокомнатные квартиры с отделкой 921 Строящиеся однокомнатные квартиры 873 Купить квартиру площадью 50 кв. м. в Москве 550 Квартиры в Можайском районе Москвы 313 Однокомнатные квартиры в ЗАО 191

Получите подробную презентацию объекта

NF Group

Инфраструктура района

Преимущества
Крупные парковые зоны по соседству (Кунцевский лесопарк, Суворовский парк); цены на недвижимость ниже средних по сравнению с другими районами, равноудаленными от центра
Образование
13 общеобразовательных школ, Западный комплекс непрерывного образования
Инфраструктура
Более 10 торговых центров, в том числе крупный ТРЦ «Вегас Кунцево» с большим выбором кафе, ресторанов, магазинов, бытовых сервисов и развлекательных заведений
Культура
К культурным объектам района относят Храм Серафима Саровского в Кунцеве (начало 20 века) и Храм Спаса Нерукотворного Образа на Сетуни (17 век), а также театр «Жар-Птица» и три кинотеатра
Спорт
В Можайском районе находится универсальный дворец спорта и хоккейная арена «Крылья Советов», большой СК «Кунцево» с бассейном и стадионом, стадион «Сетунь Парк», несколько фитнес-клубов с банными комплексами и бассейнами
Мед. учреждения
2 детские и 3 взрослые поликлиники, клиническая больница, более 10 частных медценров и стоматологий
Все
Магазины и услуги
Развлечения
Образование
Спорт и здоровье

Записаться на экскурсию по объекту

Подберите ипотеку

Подавая заявку в несколько банков, вы увеличиваете шанс на одобрение ипотеки
Стоимость недвижимости
20 млн.
950 млн.
Первоначальный взнос
20 %
90 %
Срок
1 год
30 лет
Процентная ставка
3%
100%
Сумма кредита
524 700 000 ₽
Ежемесячный платеж
524 700 000 ₽
индивидуальный %
до 30 лет
индивидуальный %
до 30 лет
индивидуальный %
до 30 лет
индивидуальный %
до 30 лет
индивидуальный %
до 35 лет
индивидуальный %
до 30 лет
NF Group
Особые условия по ипотеке для клиентов NF GROUP

Новостройка «ВЕЕР»

Местоположение

ЖК VEER расположен в престижном районе на западе столицы, недалеко от Кутузовского проспекта. Это место объединяет удобный доступ к центру Москвы и возможность наслаждаться уединением рядом с природными зонами. Такое расположение делает жилой комплекс привлекательным для тех, кто ценит комфорт и динамичный ритм жизни.

Площадь 96946 м²
Строится 3 кв. 2028
Этажей 61
Квартир 1843
Все предложения в этом комплексе
NF Group

Посмотрите похожие предложения

/
1-комн. квартира 24 м², 16 этаж - High Life
ЮАО Даниловский Летниковская ул., 11/10, стр. 1
30 634 200 ₽
Свернуть
ID: as73517

1-комн. квартира 24 м², 16 этаж - High Life

ЮАО Даниловский Летниковская ул., 11/10, стр. 1
Павелецкая
30 634 200 ₽
Площадь 24 м²
Этаж 16
1 комната
Без отделки
 Константин Андрюшин
Константин Андрюшин
Директор направления по продажам новостроек
1-комн. квартира 24 м², 21 этаж - High Life
ЮАО Даниловский Летниковская ул., 11/10, стр. 1
30 851 604 ₽
Свернуть
ID: as74056

1-комн. квартира 24 м², 21 этаж - High Life

ЮАО Даниловский Летниковская ул., 11/10, стр. 1
Павелецкая
30 851 604 ₽
Площадь 24 м²
Этаж 21
1 комната
Без отделки
 Константин Андрюшин
Константин Андрюшин
Директор направления по продажам новостроек
1-комн. квартира 26 м², 18 этаж - High Life
ЮАО Даниловский Летниковская ул., 11/10, стр. 1
31 715 856 ₽
Свернуть
ID: as102254

1-комн. квартира 26 м², 18 этаж - High Life

ЮАО Даниловский Летниковская ул., 11/10, стр. 1
Павелецкая
31 715 856 ₽
Площадь 25 м²
Этаж 18
1 комната
Без отделки
 Константин Андрюшин
Константин Андрюшин
Директор направления по продажам новостроек
2-комн. квартира 55 м², 27 этаж - «Level Мичуринский»
ЗАО Очаково-Матвеевское Озёрная ул.
30 513 193 ₽
Свернуть
ID: as101433

2-комн. квартира 55 м², 27 этаж - «Level Мичуринский»

ЗАО Очаково-Матвеевское Озёрная ул.
30 513 193 ₽
Площадь 55 м²
Этаж 27
2 комнаты
Без отделки
2-комн. квартира 40 м², 40 этаж - «Level Мичуринский»
ЗАО Очаково-Матвеевское Озёрная ул.
24 264 035 ₽
Свернуть
ID: as101452

2-комн. квартира 40 м², 40 этаж - «Level Мичуринский»

ЗАО Очаково-Матвеевское Озёрная ул.
24 264 035 ₽
Площадь 40 м²
Этаж 40
2 комнаты
Без отделки
2-комн. квартира 37 м², 24 этаж - «Level Мичуринский»
ЗАО Очаково-Матвеевское Озёрная ул.
25 799 403 ₽
Свернуть
ID: as101462

2-комн. квартира 37 м², 24 этаж - «Level Мичуринский»

ЗАО Очаково-Матвеевское Озёрная ул.
25 799 403 ₽
Площадь 37 м²
Этаж 24
2 комнаты
Без отделки
1-комн. квартира 40 м², 25 этаж - Life Варшавская
ЮАО Москворечье-Сабурово 2-й Котляковский пер, вл. 1
27 156 564 ₽
Свернуть
ID: as97921

1-комн. квартира 40 м², 25 этаж - Life Варшавская

ЮАО Москворечье-Сабурово 2-й Котляковский пер, вл. 1
27 156 564 ₽
Площадь 39 м²
Этаж 25
1 комната
Без отделки
 Дмитрий Щеголев
Дмитрий Щеголев
Руководитель отдела продаж новостроек
1-комн. квартира 39 м², 4 этаж - Life Варшавская
ЮАО Москворечье-Сабурово 2-й Котляковский пер, вл. 1
25 026 771 ₽
Свернуть
ID: as100347

1-комн. квартира 39 м², 4 этаж - Life Варшавская

ЮАО Москворечье-Сабурово 2-й Котляковский пер, вл. 1
25 026 771 ₽
Площадь 39 м²
Этаж 4
1 комната
Без отделки
1-комн. квартира 43 м², 24 этаж - Life Варшавская
ЮАО Москворечье-Сабурово 2-й Котляковский пер, вл. 1
27 973 404 ₽
Свернуть
ID: as62726

1-комн. квартира 43 м², 24 этаж - Life Варшавская

ЮАО Москворечье-Сабурово 2-й Котляковский пер, вл. 1
27 973 404 ₽
Площадь 43 м²
Этаж 24
1 комната
Без отделки
1-комн. квартира 26 м², 6 этаж - High Life
ЮАО Даниловский Летниковская ул., 11/10, стр. 1
28 031 247 ₽
Свернуть
ID: as72037

1-комн. квартира 26 м², 6 этаж - High Life

ЮАО Даниловский Летниковская ул., 11/10, стр. 1
Павелецкая
28 031 247 ₽
Площадь 25 м²
Этаж 6
1 комната
Без отделки
 Константин Андрюшин
Константин Андрюшин
Директор направления по продажам новостроек

Отзывы застройщиков о NF GROUP

/
Башня «Федерации» рекомендует международную консалтинговую компанию NF GROUP как верного и профессионального партнера, обладающего высочайшей экспертизой и передовыми знаниями в сфере элитной недвижимости.
Читать весь отзыв
Смирнов М. Ю.
Смирнов М. Ю.
Генеральный директор
«Центр-Инвест» выражает особую благодарность консалтинговой компании NF GROUP за ответственный и грамотный подход, а также исключительное качество услуг.
Читать весь отзыв
Задорожная Джанет Бекманбетовна
Задорожная Джанет Бекманбетовна
Руководитель проектов продаж Департамента продаж премиальных проектов
Благодарим NF GROUP за внимательное отношение к интересам нашей компании и непревзойденный профессионализм.
Читать весь отзыв
Непейвода А.А.
Непейвода А.А.
Руководитель департамента маркетинга и продаж
Благодарим команду NF GROUP за многолетнее успешное сотрудничество и партнерские отношения в работе.
Читать весь отзыв
Дивеева О.А.
Дивеева О.А.
Директор по продажам Capital Group

Получите консультацию эксперта NF GROUP

Как вам удобнее общаться?
Дмитрий Щеголев
Дмитрий Щеголев
Руководитель отдела продаж новостроек

Вы смотрели

/
Жилой комплекс «ВЕЕР»
ЗАО Можайский Верейская ул., 29
Свернуть
ID: id84472

Жилой комплекс «ВЕЕР»

ЗАО Можайский Верейская ул., 29
Срок сдачи: 3 квартал 2028 г.
Площадь 20-93 м²
Этажей: 61
Позвонить
Жилой комплекс «Сити Бэй»
СЗАО Покровское-Стрешнево Волоколамское ш., 95, к. 4
Свернуть
ID: id89554

Жилой комплекс «Сити Бэй»

СЗАО Покровское-Стрешнево Волоколамское ш., 95, к. 4
Срок сдачи: 2025 г.
Площадь 28-132 м²
Этажей: 59
Позвонить
3-комн. квартира 79 м², 19 этаж - City Bay
СЗАО Покровское-Стрешнево Волоколамское ш., 95, к. 4
27 420 126 ₽
Свернуть
ID: as94290

3-комн. квартира 79 м², 19 этаж - City Bay

СЗАО Покровское-Стрешнево Волоколамское ш., 95, к. 4
27 420 126 ₽
Площадь 78 м²
Этаж 19
3 комнаты
Без отделки
 Константин Андрюшин
Константин Андрюшин
Директор направления по продажам новостроек
Позвонить
Квартира 23 м², 30 этаж - VEER
ЗАО Можайский ул. Верейская, влд.29
16 992 690 ₽
Свернуть
ID: as87847

Квартира 23 м², 30 этаж - VEER

ЗАО Можайский ул. Верейская, влд.29
16 992 690 ₽
Площадь 23 м²
Этаж 30
Без отделки
 Дмитрий Щеголев
Дмитрий Щеголев
Руководитель отдела продаж новостроек
Позвонить
1-комн. квартира 39 м², 34 этаж - «Сити Бэй»
СЗАО Покровское-Стрешнево Волоколамское ш., 95, к. 4
22 378 356 ₽
Свернуть
ID: as94141

1-комн. квартира 39 м², 34 этаж - «Сити Бэй»

СЗАО Покровское-Стрешнево Волоколамское ш., 95, к. 4
22 378 356 ₽
Площадь 39 м²
Этаж 34
1 комната
Без отделки
 Дмитрий Щеголев
Дмитрий Щеголев
Руководитель отдела продаж новостроек
Позвонить
Квартира 23 м², 29 этаж - VEER
ЗАО Можайский Верейская ул., 29
16 953 080 ₽
Свернуть
ID: as88082

Квартира 23 м², 29 этаж - VEER

ЗАО Можайский Верейская ул., 29
16 953 080 ₽
Площадь 23 м²
Этаж 29
Без отделки
 Дмитрий Щеголев
Дмитрий Щеголев
Руководитель отдела продаж новостроек
Позвонить
3-комн. квартира 143 м², 4 этаж - «Коллекция Лужники»
ЦАО Хамовники Лужнецкая наб, 2/4, стр. 1
378 935 000 ₽
Свернуть
ID: as89474

3-комн. квартира 143 м², 4 этаж - «Коллекция Лужники»

ЦАО Хамовники Лужнецкая наб, 2/4, стр. 1
378 935 000 ₽
Площадь 143 м²
Этаж 4
3 комнаты
Без отделки
 Константин Андрюшин
Константин Андрюшин
Директор направления по продажам новостроек
Позвонить
2-комн. квартира 54 м², 52 этаж - «Сити Бэй»
СЗАО Покровское-Стрешнево Волоколамское ш., 95, к. 4
24 916 958 ₽
Свернуть
ID: as94159

2-комн. квартира 54 м², 52 этаж - «Сити Бэй»

СЗАО Покровское-Стрешнево Волоколамское ш., 95, к. 4
24 916 958 ₽
Площадь 54 м²
Этаж 52
2 комнаты
Без отделки
 Дмитрий Щеголев
Дмитрий Щеголев
Руководитель отдела продаж новостроек
Позвонить
1-комн. квартира 41 м², 28 этаж - City Bay
СЗАО Покровское-Стрешнево Волоколамское ш., 95, к. 4
18 693 666 ₽
Свернуть
ID: as90604

1-комн. квартира 41 м², 28 этаж - City Bay

СЗАО Покровское-Стрешнево Волоколамское ш., 95, к. 4
18 693 666 ₽
Площадь 41 м²
Этаж 28
1 комната
Без отделки
 Константин Андрюшин
Константин Андрюшин
Директор направления по продажам новостроек
Позвонить
1-комн. квартира 34 м², 36 этаж - City Bay
СЗАО Покровское-Стрешнево Волоколамское ш., 95, к. 4
13 878 856 ₽
Свернуть
ID: as93819

1-комн. квартира 34 м², 36 этаж - City Bay

СЗАО Покровское-Стрешнево Волоколамское ш., 95, к. 4
13 878 856 ₽
Площадь 33 м²
Этаж 36
1 комната
Без отделки
Позвонить
NF Group
Авторизация
Мы используем файлы cookie, чтобы улучшить сервис для вас.
Соглашение об использовании