Москва
Санкт-Петербург
+7 (495) 032-68-64 Продать объект Продать объект
Москва
Санкт-Петербург
О компании Аналитика Стать партнёром Карьера Контакты
SET (Сет)
NF Group
NF Group
NF Group
NF Group
NF Group
NF Group
NF Group
NF Group
NF Group
NF Group
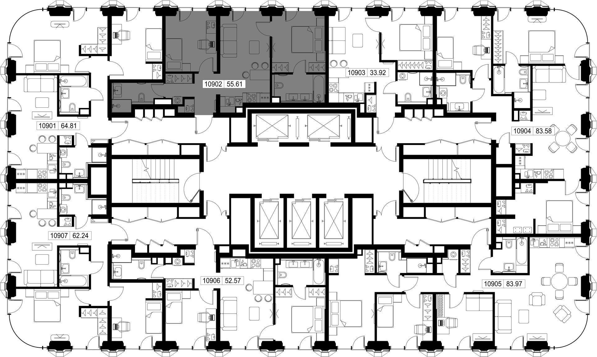
Планировка

2-комн. квартира 56 м², 9 этаж - SET

Этажей 52 Срок сдачи 3 квартал 2028 г.
28 975 590
521 049  ₽/м²
375 358
6 749  $/м²
316 474
5 690  €/м²
$
Whatsapp
28 975 590
521 049  ₽/м²
375 358
6 749  $/м²
316 474
5 690  €/м²
$
ID as90236
 Константин Андрюшин
Константин Андрюшин
Директор направления по продажам новостроек
NF Group
Предложите нам свою цену, и мы свяжемся с вами

Описание

Жилой комплекс бизнес-класса SET расположен в одном из самых престижных районов Москвы, рядом с рекой Сетунь.

Приобретение квартиры в SET — это новый этап в жизни вашей семьи, который откроет перед вами множество возможностей для развития.

Комплекс находится в живописном месте, рядом с рекой Сетунь и основными транспортными артериями города. Всего в нескольких минутах ходьбы от дома расположено метро «Давыдково», а в трёх минутах — природный парк «Долина реки Сетунь».

Проект SET был разработан известным архитектором Сергеем Чобаном. Башни комплекса привлекают внимание своим необычным и элегантным дизайном, напоминающим авангардные здания начала XX века.

В квартирах много света благодаря панорамному остеклению, а террасы и фасады с алюминиевыми кассетами создают интересные световые эффекты.

Лобби комплекса оформлено в светлых тонах и создаёт уютную атмосферу. Здесь можно отдохнуть, выпить кофе или провести деловую встречу.

Территория комплекса благоустроена в скандинавском стиле. Во дворе есть разнообразные зоны отдыха, включая шезлонги, рукотворный водоём, площадку для воркаута и игровую зону для детей.

В комплексе есть всё необходимое для комфортной жизни: школа, детский сад и парковка.

Рядом с комплексом расположены престижные учебные заведения и места для отдыха, такие как бизнес-школа «Сколково», МГУ, активити-парк The Rink, парк «Мещерский» и спортивная трасса Гребной Канал.

Характеристики

О квартире

Тип сделки
Продажа
Отделка
Под отделку
Тип объекта
Квартира
Этаж
9 из 52
Общая площадь
56 м²
Уровней
1
Высота потолков
2.95 м

О жилом комплексе

Площадь квартир
от 29 до 101 м²
Строится
3 кв. 2028
Этажность
52
Класс
Бизнес

Адрес

Город Москва
Округ ЗАО
Район Можайский
Адрес Верейская ул., 29, стр. 32Б
Объекты рядом

Все предложения в категориях

Элитная недвижимость в Подмосковье 7662 Элитная недвижимость в Москве 5746 Элитные квартиры в Москве и Подмосковье 5605 Элитные квартиры в Москве 5350 Продажа квартир с базовой ценой в рублях 5305 Квартиры в новостройках (ЖК) Москвы 4973 Строящиеся квартиры в Москве 4338 Квартиры на этапе строительства в новостройках 4329 Квартиры под отделку в Москве 4042 Квартиры без отделки от застройщика 3929 Квартиры под отделку в строящихся домах 3466 Квартиры в пределах МКАД 2931 Недвижимость бизнес-класса 1682 Квартиры бизнес-класса от застройщика 1647 Квартиры в ЗАО 1606 Квартиры на западе Москвы 1547 Двухкомнатные квартиры в Москве 1534 Строящиеся квартиры в ЗАО 1487 Двухкомнатные квартиры в новостройках 1484 Недвижимость от застройщика МР Групп 1398 Квартиры от застройщика МР Групп 1385 Двухкомнатные квартиры в строящихся доах 1351 Двухкомнатные квартиры без отделки в Москве 1273 Квартиры под отделку в ЗАО 904 Купить квартиру площадью 60 кв. м. в Москве 547 Двухкомнатные квартиры в ЗАО 465 Квартиры в Можайском районе Москвы 228

Получите подробную презентацию объекта

NF Group

Инфраструктура района

Преимущества
Крупные парковые зоны по соседству (Кунцевский лесопарк, Суворовский парк); цены на недвижимость ниже средних по сравнению с другими районами, равноудаленными от центра
Образование
13 общеобразовательных школ, Западный комплекс непрерывного образования
Инфраструктура
Более 10 торговых центров, в том числе крупный ТРЦ «Вегас Кунцево» с большим выбором кафе, ресторанов, магазинов, бытовых сервисов и развлекательных заведений
Культура
К культурным объектам района относят Храм Серафима Саровского в Кунцеве (начало 20 века) и Храм Спаса Нерукотворного Образа на Сетуни (17 век), а также театр «Жар-Птица» и три кинотеатра
Спорт
В Можайском районе находится универсальный дворец спорта и хоккейная арена «Крылья Советов», большой СК «Кунцево» с бассейном и стадионом, стадион «Сетунь Парк», несколько фитнес-клубов с банными комплексами и бассейнами
Мед. учреждения
2 детские и 3 взрослые поликлиники, клиническая больница, более 10 частных медценров и стоматологий
Все
Магазины и услуги
Развлечения
Образование
Спорт и здоровье

Записаться на экскурсию по объекту

Подберите ипотеку

Подавая заявку в несколько банков, вы увеличиваете шанс на одобрение ипотеки
Стоимость недвижимости
20 млн.
950 млн.
Первоначальный взнос
20 %
90 %
Срок
1 год
30 лет
Процентная ставка
3%
100%
Сумма кредита
524 700 000 ₽
Ежемесячный платеж
524 700 000 ₽
индивидуальный %
до 30 лет
индивидуальный %
до 30 лет
индивидуальный %
до 30 лет
индивидуальный %
до 30 лет
индивидуальный %
до 35 лет
индивидуальный %
до 30 лет
NF Group
Особые условия по ипотеке для клиентов NF GROUP

Новостройка SET

Жилой комплекс бизнес-класса SET расположен в одном из самых престижных районов Москвы, рядом с рекой Сетунь.

Приобретение квартиры в SET — это новый этап в жизни вашей семьи, который откроет перед вами множество возможностей для развития.

Комплекс находится в живописном месте, рядом с рекой Сетунь и основными транспортными артериями города. Всего в нескольких минутах ходьбы от дома расположено метро «Давыдково», а в трёх минутах — природный парк «Долина реки Сетунь».

Строится 3 кв. 2028
Этажей 52
Все предложения в этом комплексе
NF Group

Посмотрите похожие предложения

/
3-комн. квартира 77 м², 24 этаж - City Bay
СЗАО Покровское-Стрешнево Волоколамское ш., 95, к. 4
32 777 845 ₽
Свернуть
ID: as90407

3-комн. квартира 77 м², 24 этаж - City Bay

СЗАО Покровское-Стрешнево Волоколамское ш., 95, к. 4
32 777 845 ₽
Площадь 77 м²
Этаж 24
3 комнаты
Без отделки
 Дмитрий Щеголев
Дмитрий Щеголев
Руководитель отдела продаж новостроек
WhatsApp Позвонить
2-комн. квартира 62 м², 16 этаж - City Bay
СЗАО Покровское-Стрешнево Волоколамское ш., 95, к. 4
27 464 725 ₽
Свернуть
ID: as90368

2-комн. квартира 62 м², 16 этаж - City Bay

СЗАО Покровское-Стрешнево Волоколамское ш., 95, к. 4
27 464 725 ₽
Площадь 61 м²
Этаж 16
2 комнаты
Без отделки
 Дмитрий Щеголев
Дмитрий Щеголев
Руководитель отдела продаж новостроек
WhatsApp Позвонить
2-комн. квартира 56 м², 23 этаж - City Bay
СЗАО Покровское-Стрешнево Волоколамское ш., 95, к. 4
26 744 372 ₽
Свернуть
ID: as90391

2-комн. квартира 56 м², 23 этаж - City Bay

СЗАО Покровское-Стрешнево Волоколамское ш., 95, к. 4
26 744 372 ₽
Площадь 56 м²
Этаж 23
2 комнаты
Без отделки
 Дмитрий Щеголев
Дмитрий Щеголев
Руководитель отдела продаж новостроек
WhatsApp Позвонить
2-комн. квартира 62 м², 13 этаж - City Bay
СЗАО Покровское-Стрешнево Волоколамское ш., 95, к. 4
27 228 120 ₽
Свернуть
ID: as90393

2-комн. квартира 62 м², 13 этаж - City Bay

СЗАО Покровское-Стрешнево Волоколамское ш., 95, к. 4
27 228 120 ₽
Площадь 61 м²
Этаж 13
2 комнаты
Без отделки
 Дмитрий Щеголев
Дмитрий Щеголев
Руководитель отдела продаж новостроек
WhatsApp Позвонить
2-комн. квартира 58 м², 20 этаж - City Bay
СЗАО Покровское-Стрешнево Волоколамское ш., 95, к. 4
24 985 370 ₽
Свернуть
ID: as90412

2-комн. квартира 58 м², 20 этаж - City Bay

СЗАО Покровское-Стрешнево Волоколамское ш., 95, к. 4
24 985 370 ₽
Площадь 57 м²
Этаж 20
2 комнаты
Без отделки
 Дмитрий Щеголев
Дмитрий Щеголев
Руководитель отдела продаж новостроек
WhatsApp Позвонить
2-комн. квартира 81 м², 8 этаж - City Bay
СЗАО Покровское-Стрешнево Волоколамское ш., 95, к. 4
32 925 364 ₽
Свернуть
ID: as90384

2-комн. квартира 81 м², 8 этаж - City Bay

СЗАО Покровское-Стрешнево Волоколамское ш., 95, к. 4
32 925 364 ₽
Площадь 80 м²
Этаж 8
2 комнаты
Без отделки
 Дмитрий Щеголев
Дмитрий Щеголев
Руководитель отдела продаж новостроек
WhatsApp Позвонить
2-комн. квартира 65 м², 8 этаж - City Bay
СЗАО Покровское-Стрешнево Волоколамское ш., 95, к. 4
25 540 551 ₽
Свернуть
ID: as90401

2-комн. квартира 65 м², 8 этаж - City Bay

СЗАО Покровское-Стрешнево Волоколамское ш., 95, к. 4
25 540 551 ₽
Площадь 64 м²
Этаж 8
2 комнаты
Без отделки
 Дмитрий Щеголев
Дмитрий Щеголев
Руководитель отдела продаж новостроек
WhatsApp Позвонить
1-комн. квартира 26 м², 12 этаж - High Life
ЮАО Даниловский Летниковская ул., 11/10, стр. 1
31 371 990 ₽
Свернуть
ID: as89253

1-комн. квартира 26 м², 12 этаж - High Life

ЮАО Даниловский Летниковская ул., 11/10, стр. 1
Павелецкая
31 371 990 ₽
Площадь 25 м²
Этаж 12
1 комната
Без отделки
 Константин Андрюшин
Константин Андрюшин
Директор направления по продажам новостроек
WhatsApp Позвонить
1-комн. квартира 43 м², 16 этаж - Portland
ЮВАО Печатники Южнопортовая ул.
31 385 240 ₽
Свернуть
ID: as85701

1-комн. квартира 43 м², 16 этаж - Portland

ЮВАО Печатники Южнопортовая ул.
31 385 240 ₽
Площадь 42 м²
Этаж 16
1 комната
Без отделки
 Константин Андрюшин
Константин Андрюшин
Директор направления по продажам новостроек
WhatsApp Позвонить
1-комн. квартира 40 м², 4 этаж - City Bay
СЗАО Покровское-Стрешнево Волоколамское ш., 95, к. 4
24 908 020 ₽
Свернуть
ID: as93636

1-комн. квартира 40 м², 4 этаж - City Bay

СЗАО Покровское-Стрешнево Волоколамское ш., 95, к. 4
24 908 020 ₽
Площадь 39 м²
Этаж 4
1 комната
Без отделки
 Дмитрий Щеголев
Дмитрий Щеголев
Руководитель отдела продаж новостроек
WhatsApp Позвонить

Отзывы застройщиков о NF GROUP

/
Башня «Федерации» рекомендует международную консалтинговую компанию NF GROUP как верного и профессионального партнера, обладающего высочайшей экспертизой и передовыми знаниями в сфере элитной недвижимости.
Читать весь отзыв
Смирнов М. Ю.
Смирнов М. Ю.
Генеральный директор
«Центр-Инвест» выражает особую благодарность консалтинговой компании NF GROUP за ответственный и грамотный подход, а также исключительное качество услуг.
Читать весь отзыв
Задорожная Джанет Бекманбетовна
Задорожная Джанет Бекманбетовна
Руководитель проектов продаж Департамента продаж премиальных проектов
Благодарим NF GROUP за внимательное отношение к интересам нашей компании и непревзойденный профессионализм.
Читать весь отзыв
Непейвода А.А.
Непейвода А.А.
Руководитель департамента маркетинга и продаж
Благодарим команду NF GROUP за многолетнее успешное сотрудничество и партнерские отношения в работе.
Читать весь отзыв
Дивеева О.А.
Дивеева О.А.
Директор по продажам Capital Group

Получите консультацию эксперта NF GROUP

Как вам удобнее общаться?
Константин Андрюшин
Константин Андрюшин
Директор направления по продажам новостроек
NF Group
Авторизация
Мы используем файлы cookie, чтобы улучшить сервис для вас.
Соглашение об использовании