+7 (495) 032-68-64 Продать объект Продать объект
О компании Аналитика Стать партнёром Карьера Контакты
Opus (Опус)
NF Group
NF Group
NF Group
NF Group
NF Group
NF Group
NF Group
NF Group
NF Group
NF Group
NF Group
NF Group
NF Group
NF Group
NF Group
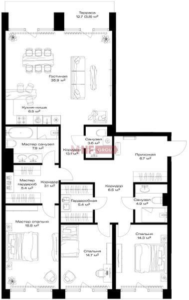
Планировка

3-комн. квартира 151 м², 5 этаж - Opus

Пролетарская, Крестьянская застава
Этажей 11 Срок сдачи 1 квартал 2026 г.
194 213 760
1 289 600  ₽/м²
2 515 904
16 705  $/м²
2 121 221
14 085  €/м²
$
Whatsapp
194 213 760
1 289 600  ₽/м²
2 515 904
16 705  $/м²
2 121 221
14 085  €/м²
$
ID as81952
 Константин Андрюшин
Константин Андрюшин
Директор направления по продажам новостроек
NF Group
Предложите нам свою цену, и мы свяжемся с вами

Описание

Расположение: «Опус» – клубный дом класса deluxe, расположенный на Дербеневской набережной, в одном из живописных уголков столицы, где Москва-река петляет среди исторических зданий. Суета городской жизни здесь отходит на второй план, уступая место спокойствию и умиротворению. Благодаря удачному местоположению жители «Опуса» смогут наслаждаться комфортом и привилегиями центра Москвы: потребуется несколько минут, чтобы доехать до Садового кольца на личном транспорте, откуда можно быстро попасть в парк Горького или свернуть на Большую Ордынку. Дорога до Кремля займет всего 17 минут. Ближайшая станция метро «Павелецкая» находится в 15 минутах пешком.

Архитектура: Авторы проекта, архитектурное бюро «Цимайло Ляшенко и партнеры», создали гармоничное пространство, в котором элегантность классических форм и современная функциональность идеально дополняют друг друга. Водная стихия активно присутствует в архитектуре: ступенчатые каскады фасадов напоминают величественный водопад, а панорамные окна отражают быстрые воды Москвы-реки и оживляют симфонию стали и матового архитектурного бетона игрой разноцветных бликов. Само здание повторяет изгибы набережной и извивается изящной волной. 

Предложение: В жилом комплексе «Опус» представлено всего 188 лотов. Планировки варьируются от просторных однокомнатных квартир площадью 50 квадратных метров до роскошных резиденций с тремя спальнями, превышающих 266 квадратных метров. Особое внимание уделено эргономике пространства, чтобы обеспечить наилучшую функциональность и комфорт для жителей. Практически все квартиры могут похвастаться превосходными видовыми характеристиками: из панорамных окон будущие резиденты смогут любоваться Москвой-рекой, Крутицким подворьем, Симоновским валом и малоэтажной застройкой центра столицы. На просторных террасах можно не только расслабиться и восстановить силы после трудового дня, но и организовать уютный зеленый уголок. Верхние этажи занимают пентхаусы, где можно установить настоящий дровяной камин.

Внутренняя инфраструктура: Жилой комплекс «Опус» предлагает своим жителям разнообразные возможности для досуга и комфортного проживания. Просторные холлы и зоны отдыха, облицованные изысканными материалами, поражают своей изящностью и вниманием к каждой детали. Для активного отдыха предусмотрена спортивная зона с современным оборудованием и всесезонной площадкой, которая зимой превращается в каток. Самые маленькие жители комплекса с радостью проведут время на безопасной детской игровой площадке, по форме напоминающей драгоценную жемчужину. Ландшафтный дизайн территории гармонично сочетает элементы воды, зелени и городской среды, создавая уединенные уголки для прогулок и отдыха на свежем воздухе. 

Район: «Опус» находится в одном из самых престижных и развивающихся районов Москвы – Замоскворечье. В пешей доступности от комплекса расположены музеи, театры, рестораны, бутики, а также обновленное городское пространство Павелецкой площади и большой торговый центр «Павелецкая Плаза». Близость к Москва-реке делает район особенно привлекательным для любителей прогулок на свежем воздухе и велосипедных прогулок. Здесь можно наслаждаться тишиной и уютом, не отказывая себе в возможностях центра Москвы.

Характеристики

О квартире

Тип сделки
Продажа
Отделка
Под отделку
Тип объекта
Квартира
Этаж
5 из 11
Общая площадь
151 м²
Уровней
1
Высота потолков
3.65 м

О жилом комплексе

Количество лотов
188
Площадь квартир
от 56 до 435 м²
Строится
1 кв. 2026
Этажность
11
Тип паркинга
Подземный
Класс
Элит

Адрес

Город Москва
Округ ЮАО
Район Даниловский
Адрес Дербеневская ул., 1
Объекты рядом

Все предложения в категориях

Элитная недвижимость в Подмосковье 7662 Элитная недвижимость в Москве 5746 Элитные квартиры в Москве и Подмосковье 5605 Элитные квартиры в Москве 5350 Продажа квартир с базовой ценой в рублях 5305 Квартиры в новостройках (ЖК) Москвы 4973 Строящиеся квартиры в Москве 4338 Квартиры на этапе строительства в новостройках 4329 Квартиры под отделку в Москве 4042 Квартиры без отделки от застройщика 3929 Квартиры под отделку в строящихся домах 3466 Трехкомнатные квартиры в Москве 1527 Квартиры в пределах ТТК 1509 Трехкомнатные квартиры в новостройке 1427 Трехкомнатные квартиры в строящихся доах 1197 Трехкомнатные квартиры без отделки в Москве 1054 Квартиры на Таганско-Краснопресненской линии метро (Фиолетовая ветка) 497 Квартиры в ЮАО Москвы 353 Квартиры в районе Даниловский 312 Строящиеся квартиры в районе Даниловский 305 Квартиры без отделки в районе Даниловский 291 Купить квартиру площадью 150 кв. м. в Москве 274 Квартиры на Люблинско-Дмитровской линии метро (Салатовая ветка) 235 Трехкомнатные квартиры в районе Даниловский 91 Продажа квартир у метро Крестьянская застава 86 Продажа квартир у метро Пролетарская 86 Квартиры под отделку у метро Пролетарская 85 Строящиеся квартиры у метро Пролетарская 85 Квартиры под отделку у метро Крестьянская застава 85 Строящиеся квартиры у метро Крестьянская застава 85 Трехкомнатные квартиры у метро Пролетарская 36 Трехкомнатные квартиры у метро Крестьянская застава 35

Получите подробную презентацию объекта

NF Group

Инфраструктура района

Преимущества
Единственный район Москвы, располагающийся на обеих сторонах Москвы-реки; насыщенная культурная жизнь
Образование
9 общеобразовательных школ, 3 гимназии, 18 детских садов
Инфраструктура
6 торговых центров, 22 салона красоты, боле 50 кафе и ресторанов
Культура
Стадион им. Эдуарда Стрельцова («Торпедо»), завод ЗИЛ, конструктивистский жилой комплекс на Восточной улице (памятник архитектуры начала 20-го века), Даниловский рынок, Данилов монастырь (13 век), 4 православных храма (16-20 века), 4 кинотеатра, 6 библиотек, зоопарк, несколько театров
Спорт
3 плавательных бассейна, 11 фитнес-клубов
Мед. учреждения
детская и 2 взрослые поликлиники, более 30 медцентров, 22 стоматологии
Все
Магазины и услуги
Развлечения
Образование
Спорт и здоровье

Записаться на экскурсию по объекту

Подберите ипотеку

Подавая заявку в несколько банков, вы увеличиваете шанс на одобрение ипотеки
Стоимость недвижимости
20 млн.
950 млн.
Первоначальный взнос
20 %
90 %
Срок
1 год
30 лет
Процентная ставка
3%
100%
Сумма кредита
524 700 000 ₽
Ежемесячный платеж
524 700 000 ₽
индивидуальный %
до 30 лет
индивидуальный %
до 30 лет
индивидуальный %
до 30 лет
индивидуальный %
до 30 лет
индивидуальный %
до 35 лет
индивидуальный %
до 30 лет
NF Group
Особые условия по ипотеке для клиентов NF GROUP

Новостройка Opus

Расположение: «Опус» – клубный дом класса deluxe, расположенный на Дербеневской набережной, в одном из живописных уголков столицы, где Москва-река петляет среди исторических зданий. Суета городской жизни здесь отходит на второй план, уступая место спокойствию и умиротворению. Благодаря удачному местоположению жители «Опуса» смогут наслаждаться комфортом и привилегиями центра Москвы: потребуется несколько минут, чтобы доехать до Садового кольца на личном транспорте, откуда можно быстро попасть в парк Горького или свернуть на Большую Ордынку. Дорога до Кремля займет всего 17 минут. Ближайшая станция метро «Павелецкая» находится в 15 минутах пешком.

Площадь 22121 м²
Строится 1 кв. 2026
Этажей 11
Квартир 188
Все предложения в этом комплексе
NF Group

Посмотрите похожие предложения

/
Только в NF GROUP
6-комн. квартира 248 м², 4 этаж - «Большая Якиманка, 17/2стр2»
ЦАО Якиманка Якиманка Б. улица, 17/2 стр. 2
210 000 000 ₽ 185 000 000 ₽
Свернуть
ID: as97684

6-комн. квартира 248 м², 4 этаж - «Большая Якиманка, 17/2стр2»

ЦАО Якиманка Якиманка Б. улица, 17/2 стр. 2
Третьяковская, Полянка, Октябрьская
210 000 000 ₽ 185 000 000 ₽
Площадь 248 м²
Этаж 4
5 спален
6 комнат
С отделкой
 Артем Каграманов
Артем Каграманов
Старший консультант
WhatsApp Позвонить
Только в NF GROUP Панорамная 10-комнатная квартира
10-комн. квартира 560 м², 4 этаж - «Алые Паруса 79Б»
СЗАО Щукино Авиационная ул., 79Б
210 000 000 ₽
Свернуть
ID: as23813

10-комн. квартира 560 м², 4 этаж - «Алые Паруса 79Б»

СЗАО Щукино Авиационная ул., 79Б
210 000 000 ₽
Площадь 560 м²
Этаж 4
5 спален
10 комнат
С мебелью
 Ирина Воробьева
Ирина Воробьева
Старший консультант по городской недвижимости
WhatsApp Позвонить
3-комн. квартира 178 м², 6 этаж - «Дом на Озерковской»
ЦАО Замоскворечье Озерковская наб., 52А
199 000 000 ₽ 185 000 000 ₽
Свернуть
ID: as97131

3-комн. квартира 178 м², 6 этаж - «Дом на Озерковской»

ЦАО Замоскворечье Озерковская наб., 52А
Таганская, Павелецкая, Новокузнецкая
199 000 000 ₽ 185 000 000 ₽
Площадь 178 м²
Этаж 6
1 спальня
3 комнаты
С мебелью
 Инна Гайкевич
Инна Гайкевич
Старший консультант
WhatsApp Позвонить
Вид на Сити
3-комн. квартира 146 м², 9 этаж - «Триумф Палас»
САО Хорошёвский Чапаевский пер., 3
2 300 000 $ 2 200 000 $
Свернуть
ID: as47196

3-комн. квартира 146 м², 9 этаж - «Триумф Палас»

САО Хорошёвский Чапаевский пер., 3
2 300 000 $ 2 200 000 $
Площадь 145 м²
Этаж 9
2 спальни
3 комнаты
С мебелью
WhatsApp Позвонить
3-комн. квартира 184 м², 3 этаж - «Дом на Смоленской Набережной»
ЦАО Арбат Новопесковский М. переулок, 8
223 863 760 ₽ 190 000 000 ₽
Свернуть
ID: as27365

3-комн. квартира 184 м², 3 этаж - «Дом на Смоленской Набережной»

ЦАО Арбат Новопесковский М. переулок, 8
Смоленская, Арбатская
223 863 760 ₽ 190 000 000 ₽
Площадь 183 м²
Этаж 3
2 спальни
3 комнаты
С мебелью
WhatsApp Позвонить
3-комн. квартира 145 м², 4 этаж - «Дом с французскими окнами»
ЦАО Хамовники Зачатьевский 1-й переулок, 6 стр. 1
260 000 000 ₽ 185 000 000 ₽
Свернуть
ID: as6806

3-комн. квартира 145 м², 4 этаж - «Дом с французскими окнами»

ЦАО Хамовники Зачатьевский 1-й переулок, 6 стр. 1
260 000 000 ₽ 185 000 000 ₽
Площадь 145 м²
Этаж 4
2 спальни
3 комнаты
С мебелью
 Наталия Макарова
Наталия Макарова
Консультант по городской недвижимости
WhatsApp Позвонить
4-комн. квартира 118 м², 33 этаж - River Park Кутузовский
ЗАО Дорогомилово Кутузовский проезд, 16
196 614 710 ₽
Свернуть
ID: as85357

4-комн. квартира 118 м², 33 этаж - River Park Кутузовский

ЗАО Дорогомилово Кутузовский проезд, 16
196 614 710 ₽
Площадь 118 м²
Этаж 33
3 спальни
4 комнаты
С мебелью
 Константин Андрюшин
Константин Андрюшин
Директор направления по продажам новостроек
WhatsApp Позвонить
3-комн. квартира 194 м², 9 этаж - Opus
ЮАО Даниловский Дербеневская ул., 1
209 558 124 ₽
Свернуть
ID: as89060

3-комн. квартира 194 м², 9 этаж - Opus

ЮАО Даниловский Дербеневская ул., 1
209 558 124 ₽
Площадь 194 м²
Этаж 9
3 комнаты
Без отделки
 Константин Андрюшин
Константин Андрюшин
Директор направления по продажам новостроек
WhatsApp Позвонить
3-комн. квартира 148 м², 24 этаж - High Life
ЮАО Даниловский Летниковская ул., 11/10, стр. 1
183 604 980 ₽
Свернуть
ID: as89213

3-комн. квартира 148 м², 24 этаж - High Life

ЮАО Даниловский Летниковская ул., 11/10, стр. 1
Павелецкая
183 604 980 ₽
Площадь 148 м²
Этаж 24
3 комнаты
Без отделки
 Константин Андрюшин
Константин Андрюшин
Директор направления по продажам новостроек
WhatsApp Позвонить
3-комн. квартира 209 м², 3 этаж - Opus
ЮАО Даниловский Дербеневская ул., 1
214 341 552 ₽
Свернуть
ID: as87083

3-комн. квартира 209 м², 3 этаж - Opus

ЮАО Даниловский Дербеневская ул., 1
214 341 552 ₽
Площадь 208 м²
Этаж 3
3 комнаты
Без отделки
 Константин Андрюшин
Константин Андрюшин
Директор направления по продажам новостроек
WhatsApp Позвонить

Отзывы застройщиков о NF GROUP

/
Башня «Федерации» рекомендует международную консалтинговую компанию NF GROUP как верного и профессионального партнера, обладающего высочайшей экспертизой и передовыми знаниями в сфере элитной недвижимости.
Читать весь отзыв
Смирнов М. Ю.
Смирнов М. Ю.
Генеральный директор
«Центр-Инвест» выражает особую благодарность консалтинговой компании NF GROUP за ответственный и грамотный подход, а также исключительное качество услуг.
Читать весь отзыв
Задорожная Джанет Бекманбетовна
Задорожная Джанет Бекманбетовна
Руководитель проектов продаж Департамента продаж премиальных проектов
Благодарим NF GROUP за внимательное отношение к интересам нашей компании и непревзойденный профессионализм.
Читать весь отзыв
Непейвода А.А.
Непейвода А.А.
Руководитель департамента маркетинга и продаж
Благодарим команду NF GROUP за многолетнее успешное сотрудничество и партнерские отношения в работе.
Читать весь отзыв
Дивеева О.А.
Дивеева О.А.
Директор по продажам Capital Group

Получите консультацию эксперта NF GROUP

Как вам удобнее общаться?
Константин Андрюшин
Константин Андрюшин
Директор направления по продажам новостроек
NF Group
Авторизация
Мы используем файлы cookie, чтобы улучшить сервис для вас.
Соглашение об использовании