Москва
Санкт-Петербург
+7 (495) 032-68-64 Продать объект Продать объект
Москва
Санкт-Петербург
О компании Аналитика Стать партнёром Карьера Контакты
«Обыденский 1» (Obydenskiy 1)
NF Group
NF Group
NF Group
NF Group
NF Group
NF Group
NF Group
NF Group
NF Group
NF Group
NF Group
NF Group
NF Group
NF Group
NF Group
NF Group
NF Group
NF Group
NF Group
NF Group
Планировки

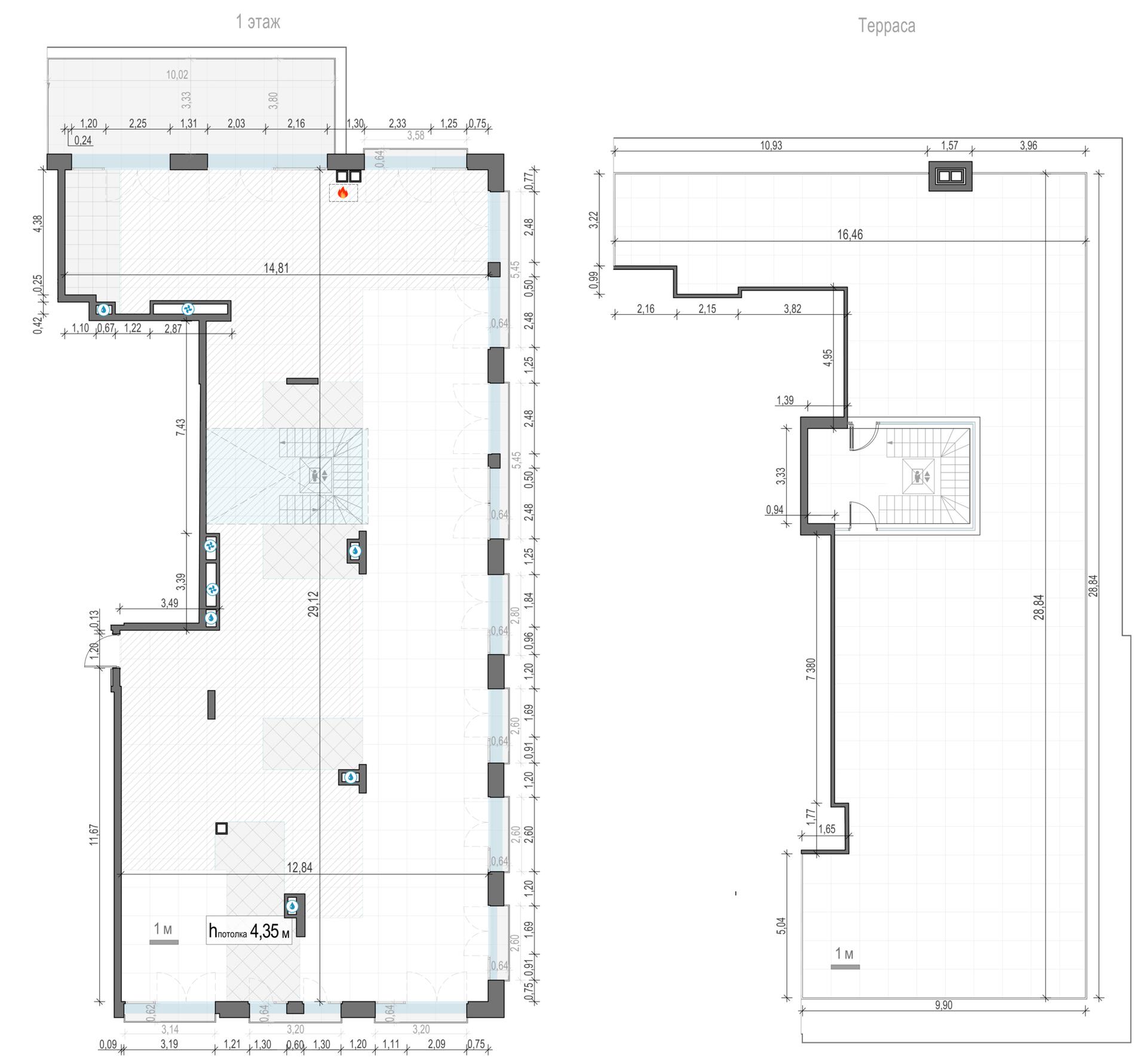
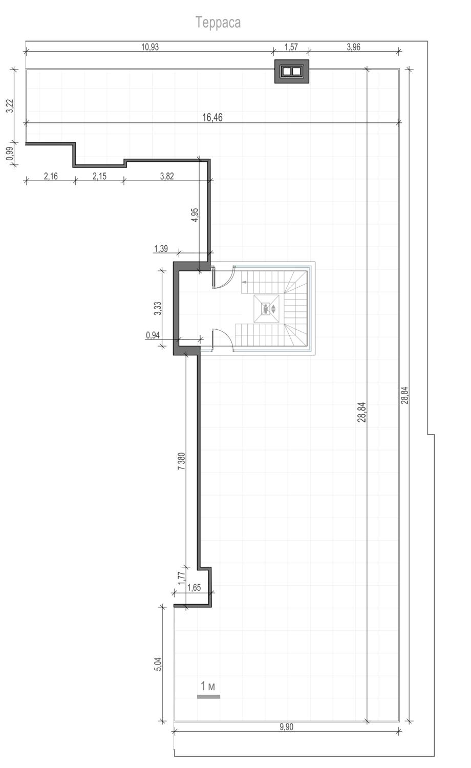
4-комн. пентхаус 348 м², 6 этаж - «Обыденский 1»

Кропоткинская
Площадь 349 м² Этаж 6 4 комнаты Без отделки
3 774 980 000
10 832 080  ₽/м²
51 470 917
147 692  $/м²
43 945 346
126 098  €/м²
$
3 774 980 000
10 832 080  ₽/м²
51 470 917
147 692  $/м²
43 945 346
126 098  €/м²
$
ID as59122
 Константин Андрюшин
Константин Андрюшин
Директор направления по продажам новостроек
NF Group
Предложите нам свою цену, и мы свяжемся с вами

Описание

«Обыденский № 1» — самый приватный дом в лучшей части Остоженки. Расположен в одноимённом переулке, в глубине квартала, в самом тихом месте престижного района Москвы.

Это настоящий клубный дом всего на 26 квартир, ситихаусов, вилл и пентхаусов. Он обладает уникальной для домов такого типа собственной насыщенной инфраструктурой: Lounge с библиотекой для отдыха и встреч с гостями и соседями; лобби-бар, где можно выпить кофе или взять его с собой; бесплатный фитнес только для жителей дома по стандарту Fit Lab; уникальное детское развивающее пространство по стандарту Kid’s Lab — игровая площадка во дворе и детская комната; уютный внутренний двор-сад.

«Обыденский № 1» — красивый, изысканный дом с просторным двухуровневым, светлым, шикарным лобби с потолками 6,5 м и дорогой отделкой.

Из окон большинства лотов открываются прекрасные виды на храм Христа Спасителя, Кремль, храм пророка Илии, тихие улочки Остоженки.

Рядом есть всё для здорового и активного образа жизни (пробежки и велопрогулки): набережные центра Москвы с велодорожками, парки «Музеон», Парк Горького и Нескучный Сад, образующие променад длиной более 8 км.

Характеристики

О пентхаусе

Тип сделки
Продажа
Отделка
Под отделку
Тип объекта
Пентхаус
Этаж
6 из 6
Общая площадь
349 м²
Уровней
1
Высота потолков
4.35 м

О жилом комплексе

Количество лотов
26
Площадь квартир
от 82 до 503 м²
Строится
2 кв. 2026
Этажность
6
Тип паркинга
Подземный
Класс
Элит

Адрес

Город Москва
Округ ЦАО
Район Хамовники
Адрес 1-й Обыденский пер, 3
Объекты рядом

Все предложения в категориях

Элитная недвижимость в Подмосковье 7447 Элитные квартиры в Москве и Подмосковье 7447 Элитная недвижимость в Москве 5514 Элитные квартиры в Москве 5131 Продажа квартир с базовой ценой в рублях 4854 Квартиры в новостройках (ЖК) Москвы 4745 Строящиеся квартиры в Москве 4174 Квартиры на этапе строительства в новостройках 4164 Квартиры под отделку в Москве 3579 Квартиры без отделки от застройщика 3487 Квартиры под отделку в строящихся домах 3157 Недвижимость в центре Москвы 2106 Продажа элитных квартир в центре Москвы 1831 Квартиры в центре в москве 1827 Новостройки в центре Москвы 1634 Элитные квартиры в новостройке в центре Москвы 1574 Строящиеся квартиры в ЦАО 1346 Квартиры под отделку в ЦАО 1260 Квартиры в пределах Садового кольца 823 Недвижимость класса де люкс 705 Четырехкомнатные квартиры в Москве 600 Четырехкомнатные квартиры в новостройке 492 Четырехкомнатные квартиры в строящихся доах 439 Недвижимость в Хамовниках 394 Четырехкомнатные квартиры без отделки в Москве 377 Квартиры на Сокольнической линии метро (Красная ветка) 371 Квартиры в Хамовниках 320 Четырехкомнатные квартиры в центре Москвы 259 Продажа квартиры под отделку в Хамовниках 256 Продажа строящихся квартир в районе Хамовники 247 Квартиры в новостройках в Хамовниках 247 Пентхаусы в Замоскворечье 188 Пентхаусы в Москве 188 Пентхаусы в новостройках Москвы 133 Пентхаусы в центре Москвы 117 Продажа пентхаусов под отделку 112 Продажа строящихся пентхаусов 95 Пентхаусы под отделку в ЦАО 79 Четырехкомнатные квартиры в районе Хамовники 62 Продажа квартир у метро Кропоткинская 46 Четырехкомнатные пентхаусы в Москве 40 Четырехкомнатные пентхаусы под отделку в Москве 31 Четырехкомнатные пентхаусы в ЦАО 30 Пентхаусы в Хамовниках 24 Продажа строящихся квартир у метро Кропоткинская 23 Продажа квартир под отделку у метро Кропоткинская 19 Продажа пентхаусов под отделку в Хамовниках 18 Четырехкомнатные квартиры у метро Кропоткинская 13 Пентхаусы у метро Кропоткинская 7 Четырехкомнатные пентхаусы в районе Хамовники 7

Получите подробную презентацию объекта

NF Group

Инфраструктура района

Преимущества
Хамовники – самый семейный район центра Москвы. Он славится ведущими учебными заведениями, тихими переулками, скверами, прогулочными зонами у набережных и крупными парками (Усадьба Трубецких в Хамовниках, Парк Горького, Музеон, Нескучный сад, Новодевичий парк, природный заказник «Воробьевы Горы»).
Образование
Более 20 общеобразовательных школ и детских садов, в том числе с углубленным изучением отдельных предметов, Здесь находятся ведущие вузы: Первый МГМУ им. Сеченова, Дипломатическая академия МИД, МПГУ и Академия народного хозяйства и государственной службы при президенте РФ.
Инфраструктура
14 торгово-развлекательных центров, множество сетевых супермаркетов, более 15 студий красоты, кафе и рестораны на любой вкус (от заведений быстрого питания до уникальных ресторанов с высокой кухней и эксклюзивными интерьерами, например, итальянский ресторан Cantinetta Antinori)
Культура
Государственный музей им. А. С. Пушкина, Литературный музей А. С. Пушкина, выставочные залы РАХ, Музей Москвы, усадьба Л. Н. Толстого и Государственный музей Л. Н. Толстого, галерея МАММ, Новодевичий и Зачатьевский монастыри (16 век), Храм Христа Спасителя и Храм Николая Чудотворца в Хамовниках.
Спорт
Район располагает удобными велодорожками и зелеными зонами, где можно заниматься спортом. К услугам резидентов несколько крупных катков в близлежащих парках,12 фитнес-клубов с бассейнами и спа-зонами и спорткомплекс «Лужники».
Мед. учреждения
В Хамовниках представлен широкий спектр медицинских учреждений разного профиля, в том числе стоматологии премиум-класса, косметологические салоны и клиники эстетической хирургии
Все
Магазины и услуги
Развлечения
Образование
Спорт и здоровье

Записаться на экскурсию по объекту

Подберите ипотеку

Подавая заявку в несколько банков, вы увеличиваете шанс на одобрение ипотеки
Стоимость недвижимости
20 млн.
950 млн.
Первоначальный взнос
20 %
90 %
Срок
1 год
30 лет
Процентная ставка
3%
100%
Сумма кредита
524 700 000 ₽
Ежемесячный платеж
524 700 000 ₽
индивидуальный %
до 30 лет
индивидуальный %
до 30 лет
индивидуальный %
до 30 лет
индивидуальный %
до 30 лет
индивидуальный %
до 35 лет
индивидуальный %
до 30 лет
NF Group
Особые условия по ипотеке для клиентов NF GROUP

Новостройка «Обыденский 1»

«Обыденский № 1» — самый приватный дом в лучшей части Остоженки. Расположен в одноимённом переулке, в глубине квартала, в самом тихом месте престижного района Москвы.

Это настоящий клубный дом всего на 26 квартир, ситихаусов, вилл и пентхаусов. Он обладает уникальной для домов такого типа собственной насыщенной инфраструктурой: Lounge с библиотекой для отдыха и встреч с гостями и соседями; лобби-бар, где можно выпить кофе или взять его с собой; бесплатный фитнес только для жителей дома по стандарту Fit Lab; уникальное детское развивающее пространство по стандарту Kid’s Lab — игровая площадка во дворе и детская комната; уютный внутренний двор-сад.

Строится 2 кв. 2026
Этажей 6
Квартир 26
Все предложения в этом комплексе
NF Group

Посмотрите похожие предложения

/
6-комн. пентхаус 422 м², 6 этаж - Armani/Casa Moscow Residences
ЦАО Якиманка Старомонетный пер., 19/11, стр. 1
Цена по запросу
Свернуть
ID: as48124

6-комн. пентхаус 422 м², 6 этаж - Armani/Casa Moscow Residences

ЦАО Якиманка Старомонетный пер., 19/11, стр. 1
Цена по запросу
Площадь 421 м²
Этаж 6
4 спальни
6 комнат
С отделкой
 Константин Андрюшин
Константин Андрюшин
Директор направления по продажам новостроек
5-комн. пентхаус 479 м², 8 этаж - «Никитский 6»
ЦАО Арбат Никитский б-р, 6/20
Цена по запросу
Свернуть
ID: as89412

5-комн. пентхаус 479 м², 8 этаж - «Никитский 6»

ЦАО Арбат Никитский б-р, 6/20
Арбатская
Цена по запросу
Площадь 479 м²
Этаж 8
4 спальни
5 комнат
С отделкой
 Константин Андрюшин
Константин Андрюшин
Директор направления по продажам новостроек
Пентхаус 620 м², 6 этаж - «Левенсон»
ЦАО Пресненский Трёхпрудный пер., 9
Цена по запросу
Свернуть
ID: as84642

Пентхаус 620 м², 6 этаж - «Левенсон»

ЦАО Пресненский Трёхпрудный пер., 9
Цена по запросу
Площадь 620 м²
Этаж 6
4 спальни
С отделкой
 Константин Андрюшин
Константин Андрюшин
Директор направления по продажам новостроек

Отзывы застройщиков о NF GROUP

/
Башня «Федерации» рекомендует международную консалтинговую компанию NF GROUP как верного и профессионального партнера, обладающего высочайшей экспертизой и передовыми знаниями в сфере элитной недвижимости.
Читать весь отзыв
Смирнов М. Ю.
Смирнов М. Ю.
Генеральный директор
«Центр-Инвест» выражает особую благодарность консалтинговой компании NF GROUP за ответственный и грамотный подход, а также исключительное качество услуг.
Читать весь отзыв
Задорожная Джанет Бекманбетовна
Задорожная Джанет Бекманбетовна
Руководитель проектов продаж Департамента продаж премиальных проектов
Благодарим NF GROUP за внимательное отношение к интересам нашей компании и непревзойденный профессионализм.
Читать весь отзыв
Непейвода А.А.
Непейвода А.А.
Руководитель департамента маркетинга и продаж
Благодарим команду NF GROUP за многолетнее успешное сотрудничество и партнерские отношения в работе.
Читать весь отзыв
Дивеева О.А.
Дивеева О.А.
Директор по продажам Capital Group

Получите консультацию эксперта NF GROUP

Как вам удобнее общаться?
Константин Андрюшин
Константин Андрюшин
Директор направления по продажам новостроек
NF Group
Авторизация
Мы используем файлы cookie, чтобы улучшить сервис для вас.
Соглашение об использовании