+7 (495) 032-68-64 Продать объект Продать объект
О компании Аналитика Стать партнёром Карьера Контакты
«МИРА» (MIRA)
NF Group
NF Group
NF Group
NF Group
NF Group
NF Group
NF Group
NF Group
NF Group
NF Group
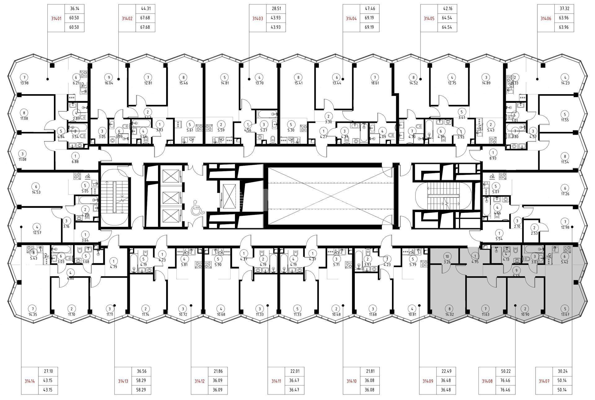
Планировка

3-комн. квартира 76 м², 14 этаж - «МИРА»

Выставочный центр, ВДНХ
Этажей 24 Срок сдачи 2 квартал 2027 г.
51 161 144
669 122  ₽/м²
637 717
8 340  $/м²
556 191
7 274  €/м²
$
51 161 144
669 122  ₽/м²
637 717
8 340  $/м²
556 191
7 274  €/м²
$
ID as92326
 Дмитрий Щеголев
Дмитрий Щеголев
Руководитель отдела продаж новостроек
NF Group
Предложите нам свою цену, и мы свяжемся с вами

Описание

МИRА — премиальный квартал на ВДНХ

Расположение:  
Жилой комплекс строится в Алексеевском районе Москвы, на второй линии домов. В шаговой доступности — Парк Акведук, река Яуза и памятник «Рабочий и колхозница». 16 минут пешком до метро ВДНХ, 14 минут до станции монорельса на ул. Сергея Эйзенштейна.

Архитектура:  
Концепция разработана бюро Kleinewelt Architekten. Здания гармонично вписываются в окружение. Фасады трех корпусов выполнены в темно-сером, нежно-розовом и светло-сером оттенках.

Благоустройство:  
Концепция от бюро «ДРУЖБА» в стиле «Лесная тропа». Внутренний двор с детскими и спортивными площадками, чайным домиком, зоной для работы и отдыха. Главная площадь с фонтаном.

Лобби:  
Дизайн от GAAG STUDIO. Элегантные лобби в теплых тонах с элементами стекла и металла. Просторное лобби второго корпуса с гардеробной, кухней, переговорной и лаундж-зоной с камином.

Квартиры:  
Большой выбор планировок, квартиры с террасами и панорамными окнами. Система «Умная квартира» с контролем доступа, управлением освещением и защитой от протечек.

Инфраструктура:  
В районе — парки, магазины, гимназии, детские сады, кафе, фитнес-центры. В квартале — 2 ресторана, 3 кафе, фитнес-студия. Подземный паркинг на 330 мест, станции для подкачки шин, гостевая парковка, места для электромобилей.

Характеристики

О квартире

Тип сделки
Продажа
Отделка
Под отделку
Тип объекта
Квартира
Этаж
14 из 24
Общая площадь
76 м²
Уровней
1
Высота потолков
3.1 м

О жилом комплексе

Площадь квартир
от 28 до 106 м²
Строится
2 кв. 2027
Этажность
24
Класс
Премиум

Адрес

Округ СВАО
Район Алексеевский
Адрес проспект Мира, 186Ас1
Выставочный центр, ВДНХ
Объекты рядом

Все предложения в категориях

Получите подробную презентацию объекта

NF Group

Записаться на экскурсию по объекту

Подберите ипотеку

Подавая заявку в несколько банков, вы увеличиваете шанс на одобрение ипотеки
Стоимость недвижимости
20 млн.
950 млн.
Первоначальный взнос
20 %
90 %
Срок
1 год
30 лет
Процентная ставка
3%
100%
Сумма кредита
524 700 000 ₽
Ежемесячный платеж
524 700 000 ₽
индивидуальный %
до 30 лет
индивидуальный %
до 30 лет
индивидуальный %
до 30 лет
индивидуальный %
до 30 лет
индивидуальный %
до 35 лет
индивидуальный %
до 30 лет
NF Group
Особые условия по ипотеке для клиентов NF GROUP

Новостройка «МИРА»

МИRА — премиальный квартал на ВДНХ

Расположение:  
Жилой комплекс строится в Алексеевском районе Москвы, на второй линии домов. В шаговой доступности — Парк Акведук, река Яуза и памятник «Рабочий и колхозница». 16 минут пешком до метро ВДНХ, 14 минут до станции монорельса на ул. Сергея Эйзенштейна.

Строится 2 кв. 2027
Этажей 24
Все предложения в этом комплексе
NF Group

Посмотрите похожие предложения

/
Квартира 28 м², 9 этаж - «МИРА»
СВАО Алексеевский проспект Мира, 186Ас1
22 272 049 ₽
Свернуть
ID: as91470

Квартира 28 м², 9 этаж - «МИРА»

СВАО Алексеевский проспект Мира, 186Ас1
Выставочный центр, ВДНХ
22 272 049 ₽
Площадь 28 м²
Этаж 9
Без отделки
 Дмитрий Щеголев
Дмитрий Щеголев
Руководитель отдела продаж новостроек
1-комн. квартира 38 м², 13 этаж - «МИРА»
СВАО Алексеевский проспект Мира, 186Ас1
26 231 317 ₽
Свернуть
ID: as91432

1-комн. квартира 38 м², 13 этаж - «МИРА»

СВАО Алексеевский проспект Мира, 186Ас1
Выставочный центр, ВДНХ
26 231 317 ₽
Площадь 37 м²
Этаж 13
1 комната
Без отделки
 Дмитрий Щеголев
Дмитрий Щеголев
Руководитель отдела продаж новостроек
3-комн. квартира 84 м², 8 этаж - «МИРА»
СВАО Алексеевский проспект Мира, 186Ас1
52 068 572 ₽
Свернуть
ID: as92329

3-комн. квартира 84 м², 8 этаж - «МИРА»

СВАО Алексеевский проспект Мира, 186Ас1
Выставочный центр, ВДНХ
52 068 572 ₽
Площадь 84 м²
Этаж 8
3 комнаты
Без отделки
 Дмитрий Щеголев
Дмитрий Щеголев
Руководитель отдела продаж новостроек
1-комн. квартира 46 м², 7 этаж - «МИРА»
СВАО Алексеевский проспект Мира, 186Ас1
30 084 354 ₽
Свернуть
ID: as92474

1-комн. квартира 46 м², 7 этаж - «МИРА»

СВАО Алексеевский проспект Мира, 186Ас1
Выставочный центр, ВДНХ
30 084 354 ₽
Площадь 45 м²
Этаж 7
1 комната
Без отделки
 Дмитрий Щеголев
Дмитрий Щеголев
Руководитель отдела продаж новостроек
3-комн. квартира 90 м², 15 этаж - «МИРА»
СВАО Алексеевский проспект Мира, 186Ас1
61 486 438 ₽
Свернуть
ID: as91189

3-комн. квартира 90 м², 15 этаж - «МИРА»

СВАО Алексеевский проспект Мира, 186Ас1
Выставочный центр, ВДНХ
61 486 438 ₽
Площадь 90 м²
Этаж 15
3 комнаты
Без отделки
 Дмитрий Щеголев
Дмитрий Щеголев
Руководитель отдела продаж новостроек
1-комн. квартира 40 м², 6 этаж - «МИРА»
СВАО Алексеевский проспект Мира, 186Ас1
26 142 152 ₽
Свернуть
ID: as91450

1-комн. квартира 40 м², 6 этаж - «МИРА»

СВАО Алексеевский проспект Мира, 186Ас1
Выставочный центр, ВДНХ
26 142 152 ₽
Площадь 40 м²
Этаж 6
1 комната
Без отделки
 Дмитрий Щеголев
Дмитрий Щеголев
Руководитель отдела продаж новостроек
3-комн. квартира 92 м², 6 этаж - «МИРА»
СВАО Алексеевский проспект Мира, 186Ас1
56 389 346 ₽
Свернуть
ID: as91442

3-комн. квартира 92 м², 6 этаж - «МИРА»

СВАО Алексеевский проспект Мира, 186Ас1
Выставочный центр, ВДНХ
56 389 346 ₽
Площадь 91 м²
Этаж 6
3 комнаты
Без отделки
 Дмитрий Щеголев
Дмитрий Щеголев
Руководитель отдела продаж новостроек
1-комн. квартира 34 м², 9 этаж - «МИРА»
СВАО Алексеевский проспект Мира, 186Ас1
24 944 332 ₽
Свернуть
ID: as91181

1-комн. квартира 34 м², 9 этаж - «МИРА»

СВАО Алексеевский проспект Мира, 186Ас1
Выставочный центр, ВДНХ
24 944 332 ₽
Площадь 33 м²
Этаж 9
1 комната
Без отделки
 Дмитрий Щеголев
Дмитрий Щеголев
Руководитель отдела продаж новостроек
3-комн. квартира 92 м², 12 этаж - «МИРА»
СВАО Алексеевский проспект Мира, 186Ас1
56 187 426 ₽
Свернуть
ID: as91978

3-комн. квартира 92 м², 12 этаж - «МИРА»

СВАО Алексеевский проспект Мира, 186Ас1
Выставочный центр, ВДНХ
56 187 426 ₽
Площадь 91 м²
Этаж 12
3 комнаты
Без отделки
 Дмитрий Щеголев
Дмитрий Щеголев
Руководитель отдела продаж новостроек
1-комн. квартира 45 м², 13 этаж - «МИРА»
СВАО Алексеевский проспект Мира, 186Ас1
28 458 382 ₽
Свернуть
ID: as92254

1-комн. квартира 45 м², 13 этаж - «МИРА»

СВАО Алексеевский проспект Мира, 186Ас1
Выставочный центр, ВДНХ
28 458 382 ₽
Площадь 45 м²
Этаж 13
1 комната
Без отделки
 Дмитрий Щеголев
Дмитрий Щеголев
Руководитель отдела продаж новостроек

Отзывы застройщиков о NF GROUP

/
Башня «Федерации» рекомендует международную консалтинговую компанию NF GROUP как верного и профессионального партнера, обладающего высочайшей экспертизой и передовыми знаниями в сфере элитной недвижимости.
Читать весь отзыв
Смирнов М. Ю.
Смирнов М. Ю.
Генеральный директор
«Центр-Инвест» выражает особую благодарность консалтинговой компании NF GROUP за ответственный и грамотный подход, а также исключительное качество услуг.
Читать весь отзыв
Задорожная Джанет Бекманбетовна
Задорожная Джанет Бекманбетовна
Руководитель проектов продаж Департамента продаж премиальных проектов
Благодарим NF GROUP за внимательное отношение к интересам нашей компании и непревзойденный профессионализм.
Читать весь отзыв
Непейвода А.А.
Непейвода А.А.
Руководитель департамента маркетинга и продаж
Благодарим команду NF GROUP за многолетнее успешное сотрудничество и партнерские отношения в работе.
Читать весь отзыв
Дивеева О.А.
Дивеева О.А.
Директор по продажам Capital Group

Получите консультацию эксперта NF GROUP

Как вам удобнее общаться?
Дмитрий Щеголев
Дмитрий Щеголев
Руководитель отдела продаж новостроек
NF Group
Авторизация
Мы используем файлы cookie, чтобы улучшить сервис для вас.
Соглашение об использовании