+7 (495) 032-68-64 Продать объект Продать объект
О компании Аналитика Стать партнёром Карьера Контакты
City Bay (Сити Бэй)
NF Group
NF Group
NF Group
NF Group
NF Group
NF Group
NF Group
NF Group
NF Group
NF Group
NF Group
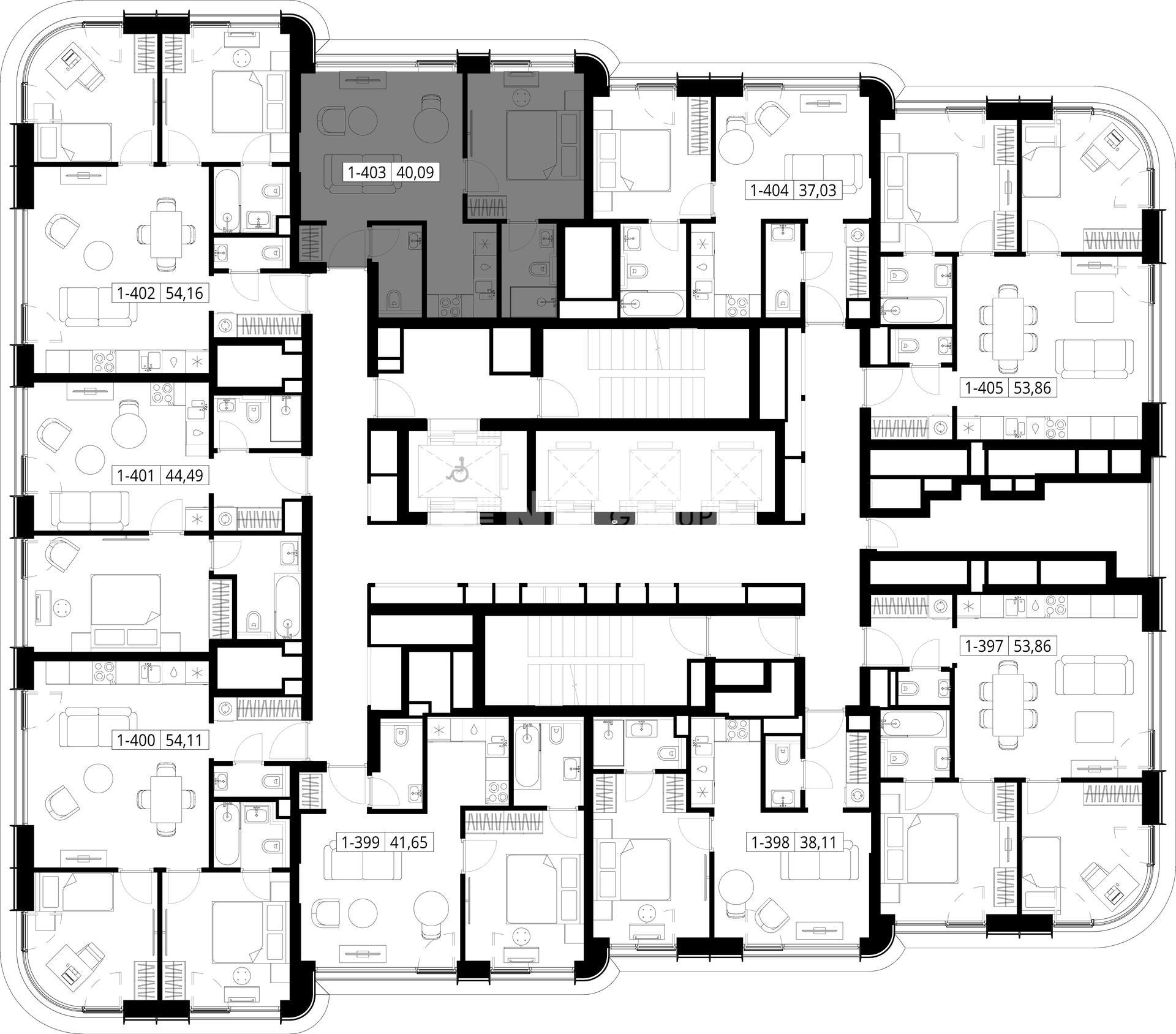
Планировка

1-комн. квартира 40 м², 44 этаж - City Bay

Этажей 53 Срок сдачи 2025 г.
21 468 014
543 494  ₽/м²
282 380
7 148  $/м²
235 976
5 974  €/м²
$
Whatsapp
21 468 014
543 494  ₽/м²
282 380
7 148  $/м²
235 976
5 974  €/м²
$
ID as90717
 Дмитрий Щеголев
Дмитрий Щеголев
Руководитель отдела продаж новостроек
NF Group
Предложите нам свою цену, и мы свяжемся с вами

Описание

Концепция жилого комплекса City Вау - настоящий город в городе с отлично развитой инфраструктурой и собственной благоустроенной набережной.

Характеристики

О квартире

Тип сделки
Продажа
Отделка
Под отделку
Тип объекта
Квартира
Этаж
44 из 53
Общая площадь
40 м²
Уровней
1
Высота потолков
2.85 м

О жилом комплексе

Площадь квартир
от 31 до 133 м²
Строится
2025
Этажность
53
Класс
Бизнес

Адрес

Город Москва
Округ СЗАО
Район Покровское-Стрешнево
Адрес Волоколамское ш., 95, к. 4
Объекты рядом

Все предложения в категориях

Элитная недвижимость в Подмосковье 7161 Элитная недвижимость в Москве 5275 Элитные квартиры в Москве и Подмосковье 5135 Элитные квартиры в Москве 4882 Продажа квартир с базовой ценой в рублях 4830 Квартиры в новостройках (ЖК) Москвы 4511 Строящиеся квартиры в Москве 3833 Квартиры в строящихся новостройках 3824 Квартиры под отделку в Москве 3541 Квартиры без отделки от застройщика 3425 Квартиры в пределах МКАД 2917 Квартиры под отделку в строящихся домах 2911 Недвижимость бизнес-класса 1597 Квартиры бизнес-класса от застройщика 1565 Недвижимость от застройщика МР Групп 1156 Квартиры от застройщика МР Групп 1143 Квартиры в СЗАО 942 Квартиры под отделку в СЗАО 910 Вторичное жилье: однокомнатные квартиры в Москве 821 Квартиры в районе Покровское-Стрешнево 811 Квартиры в новостройках в районе Покровское-Стрешнево 806 Однокомнатные элитные квартиры 780 Однокомнатные квартиры в новостройках 776 Однокомнатные квартиры с отделкой 701 Строящиеся однокомнатные квартиры 673 Купить квартиру площадью 40 кв. м. в Москве 548

Получите подробную презентацию объекта

NF Group

Инфраструктура района

Преимущества
На границе Войковского района и района Покровское-Стрешнево расположен одноименный лесопарк, в котором находится объект культурного наследия «Усадьба Покровское-Стрешнево», а также беседки, детские и спортивные площадки, обустроенные пляжи. В пешей доступности - Химкинское водохранилище
Образование
17 общеобразовательных школ, частная Англо-американская школа, 9 детских садов, включая частные
Инфраструктура
ТЦ «Покровское-Стрешнево», 11 салонов красоты и спа, 4 крупных фермерских рынка
Культура
3 православных храма (17-19 века), 2 театра, кинотеатр, несколько библиотек
Спорт
Широкие возможности для занятий спортом в парке; более 20 фитнес-клубов в окрестностях района
Мед. учреждения
5 крупных государственных медцентров, 2 частные многопрофильные клиники, 7 стоматологий
Все
Магазины и услуги
Развлечения
Образование
Спорт и здоровье

Записаться на экскурсию по объекту

Подберите ипотеку

Подавая заявку в несколько банков, вы увеличиваете шанс на одобрение ипотеки
Стоимость недвижимости
20 млн.
950 млн.
Первоначальный взнос
20 %
90 %
Срок
1 год
30 лет
Процентная ставка
3%
100%
Сумма кредита
524 700 000 ₽
Ежемесячный платеж
524 700 000 ₽
индивидуальный %
до 30 лет
индивидуальный %
до 30 лет
индивидуальный %
до 30 лет
индивидуальный %
до 30 лет
индивидуальный %
до 35 лет
индивидуальный %
до 30 лет
NF Group
Особые условия по ипотеке для клиентов NF GROUP

Новостройка City Bay

Жилой комплекс City Bay — это современный квартал бизнес-класса, расположенный на берегу Спасского затона. Он находится в районе Покровское — Стрешнево на северо-западе Москвы.

Из комплекса удобно выезжать на МКАД, а рядом расположена станция МЦД «Трикотажная». Это позволяет жителям удобно пользоваться существующей транспортной и социальной инфраструктурой.

NF Group

Посмотрите похожие предложения

/
1-комн. квартира 38 м², 29 этаж - City Bay
СЗАО Покровское-Стрешнево Волоколамское ш., 95, к. 4
20 939 346 ₽
Свернуть
ID: as90666

1-комн. квартира 38 м², 29 этаж - City Bay

СЗАО Покровское-Стрешнево Волоколамское ш., 95, к. 4
20 939 346 ₽
Площадь 37 м²
Этаж 29
1 комната
Без отделки
 Дмитрий Щеголев
Дмитрий Щеголев
Руководитель отдела продаж новостроек
WhatsApp Позвонить
1-комн. квартира 32 м², 9 этаж - PRIDE
СВАО Марьина Роща ул. Полковая, вл. 1
23 582 230 ₽
Свернуть
ID: as73564

1-комн. квартира 32 м², 9 этаж - PRIDE

СВАО Марьина Роща ул. Полковая, вл. 1
Савёловская
23 582 230 ₽
Площадь 32 м²
Этаж 9
1 комната
Без отделки
 Дмитрий Щеголев
Дмитрий Щеголев
Руководитель отдела продаж новостроек
WhatsApp Позвонить
1-комн. квартира 44 м², 17 этаж - Sky Garden
СЗАО Покровское-Стрешнево Строительный проезд, д.9
21 020 636 ₽
Свернуть
ID: as73306

1-комн. квартира 44 м², 17 этаж - Sky Garden

СЗАО Покровское-Стрешнево Строительный проезд, д.9
21 020 636 ₽
Площадь 44 м²
Этаж 17
1 комната
С отделкой
 Дмитрий Щеголев
Дмитрий Щеголев
Руководитель отдела продаж новостроек
WhatsApp Позвонить
1-комн. квартира 52 м², 28 этаж - Sky Garden
СЗАО Покровское-Стрешнево Строительный проезд, д.9
24 162 732 ₽
Свернуть
ID: as76618

1-комн. квартира 52 м², 28 этаж - Sky Garden

СЗАО Покровское-Стрешнево Строительный проезд, д.9
24 162 732 ₽
Площадь 51 м²
Этаж 28
1 комната
С отделкой
 Дмитрий Щеголев
Дмитрий Щеголев
Руководитель отдела продаж новостроек
WhatsApp Позвонить
1-комн. квартира 44 м², 9 этаж - Sky Garden
СЗАО Покровское-Стрешнево Строительный проезд, д.9
20 714 820 ₽
Свернуть
ID: as76795

1-комн. квартира 44 м², 9 этаж - Sky Garden

СЗАО Покровское-Стрешнево Строительный проезд, д.9
20 714 820 ₽
Площадь 44 м²
Этаж 9
1 комната
С отделкой
 Дмитрий Щеголев
Дмитрий Щеголев
Руководитель отдела продаж новостроек
WhatsApp Позвонить
1-комн. квартира 44 м², 2 этаж - Sky Garden
СЗАО Покровское-Стрешнево Строительный проезд, д.9
20 352 072 ₽
Свернуть
ID: as77693

1-комн. квартира 44 м², 2 этаж - Sky Garden

СЗАО Покровское-Стрешнево Строительный проезд, д.9
20 352 072 ₽
Площадь 44 м²
Этаж 2
1 комната
С отделкой
 Дмитрий Щеголев
Дмитрий Щеголев
Руководитель отдела продаж новостроек
WhatsApp Позвонить
1-комн. квартира 36 м², 22 этаж - Sky Garden
СЗАО Покровское-Стрешнево Строительный проезд, д.9
19 931 016 ₽
Свернуть
ID: as78956

1-комн. квартира 36 м², 22 этаж - Sky Garden

СЗАО Покровское-Стрешнево Строительный проезд, д.9
19 931 016 ₽
Площадь 35 м²
Этаж 22
1 комната
С отделкой
 Дмитрий Щеголев
Дмитрий Щеголев
Руководитель отдела продаж новостроек
WhatsApp Позвонить
1-комн. квартира 43 м², 12 этаж - City Bay
СЗАО Покровское-Стрешнево Волоколамское ш., 95, к. 4
23 099 164 ₽
Свернуть
ID: as93513

1-комн. квартира 43 м², 12 этаж - City Bay

СЗАО Покровское-Стрешнево Волоколамское ш., 95, к. 4
23 099 164 ₽
Площадь 43 м²
Этаж 12
1 комната
Без отделки
 Константин Андрюшин
Константин Андрюшин
Директор направления по продажам новостроек
WhatsApp Позвонить
1-комн. квартира 45 м², 4 этаж - City Bay
СЗАО Покровское-Стрешнево Волоколамское ш., 95, к. 4
21 968 611 ₽
Свернуть
ID: as93950

1-комн. квартира 45 м², 4 этаж - City Bay

СЗАО Покровское-Стрешнево Волоколамское ш., 95, к. 4
21 968 611 ₽
Площадь 44 м²
Этаж 4
1 комната
Без отделки
 Дмитрий Щеголев
Дмитрий Щеголев
Руководитель отдела продаж новостроек
WhatsApp Позвонить
1-комн. квартира 38 м², 13 этаж - City Bay
СЗАО Покровское-Стрешнево Волоколамское ш., 95, к. 4
19 800 188 ₽
Свернуть
ID: as94171

1-комн. квартира 38 м², 13 этаж - City Bay

СЗАО Покровское-Стрешнево Волоколамское ш., 95, к. 4
19 800 188 ₽
Площадь 38 м²
Этаж 13
1 комната
Без отделки
 Дмитрий Щеголев
Дмитрий Щеголев
Руководитель отдела продаж новостроек
WhatsApp Позвонить

Отзывы застройщиков о NF GROUP

/
Башня «Федерации» рекомендует международную консалтинговую компанию NF GROUP как верного и профессионального партнера, обладающего высочайшей экспертизой и передовыми знаниями в сфере элитной недвижимости.
Читать весь отзыв
Смирнов М. Ю.
Смирнов М. Ю.
Генеральный директор
«Центр-Инвест» выражает особую благодарность консалтинговой компании NF GROUP за ответственный и грамотный подход, а также исключительное качество услуг.
Читать весь отзыв
Задорожная Джанет Бекманбетовна
Задорожная Джанет Бекманбетовна
Руководитель проектов продаж Департамента продаж премиальных проектов
Благодарим NF GROUP за внимательное отношение к интересам нашей компании и непревзойденный профессионализм.
Читать весь отзыв
Непейвода А.А.
Непейвода А.А.
Руководитель департамента маркетинга и продаж
Благодарим команду NF GROUP за многолетнее успешное сотрудничество и партнерские отношения в работе.
Читать весь отзыв
Дивеева О.А.
Дивеева О.А.
Директор по продажам Capital Group

Получите консультацию эксперта NF GROUP

Как вам удобнее общаться?
Дмитрий Щеголев
Дмитрий Щеголев
Руководитель отдела продаж новостроек
NF Group
Авторизация
Мы используем файлы cookie, чтобы улучшить сервис для вас.
Соглашение об использовании