Москва
Санкт-Петербург
+7 (495) 032-68-64 Продать объект Продать объект
Москва
Санкт-Петербург
О компании Аналитика Стать партнёром Карьера Контакты
«Сити Бэй» (City Bay)
NF Group
NF Group
NF Group
NF Group
NF Group
NF Group
NF Group
NF Group
NF Group
NF Group
NF Group
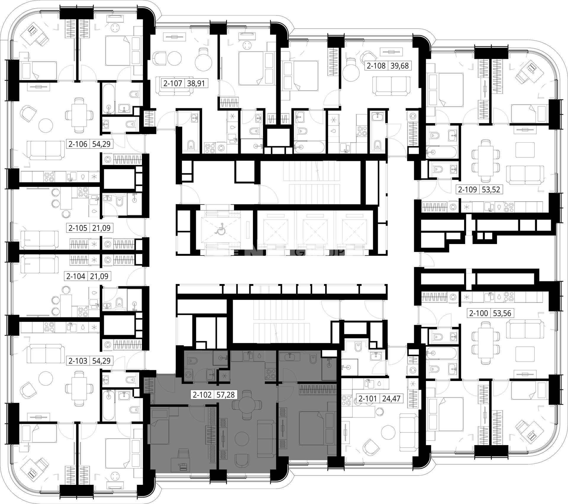
Планировка

2-комн. квартира 57 м², 12 этаж - «Сити Бэй»

Этажей 53 Срок сдачи 2025 г.
27 445 074
482 338  ₽/м²
342 099
6 012  $/м²
298 365
5 243  €/м²
$
27 445 074
482 338  ₽/м²
342 099
6 012  $/м²
298 365
5 243  €/м²
$
ID as94336
 Дмитрий Щеголев
Дмитрий Щеголев
Руководитель отдела продаж новостроек
NF Group
Предложите нам свою цену, и мы свяжемся с вами

Описание

Концепция жилого комплекса City Вау - настоящий город в городе с отлично развитой инфраструктурой и собственной благоустроенной набережной.

Характеристики

О квартире

Тип сделки
Продажа
Отделка
Под отделку
Тип объекта
Квартира
Этаж
12 из 53
Общая площадь
57 м²
Уровней
1
Высота потолков
2.85 м

О жилом комплексе

Площадь квартир
от 29 до 133 м²
Строится
2025
Этажность
53
Класс
Бизнес

Адрес

Город Москва
Округ СЗАО
Район Покровское-Стрешнево
Адрес Волоколамское ш., 95, к. 4
Объекты рядом

Все предложения в категориях

Элитная недвижимость в Подмосковье 7724 Элитная недвижимость в Москве 5829 Элитные квартиры в Москве и Подмосковье 5686 Элитные квартиры в Москве 5431 Продажа квартир с базовой ценой в рублях 5388 Квартиры в новостройках (ЖК) Москвы 5053 Строящиеся квартиры в Москве 4354 Квартиры на этапе строительства в новостройках 4343 Квартиры под отделку в Москве 4121 Квартиры без отделки от застройщика 4010 Квартиры под отделку в строящихся домах 3481 Квартиры в пределах МКАД 3022 Недвижимость бизнес-класса 1784 Квартиры бизнес-класса от застройщика 1746 Двухкомнатные квартиры в Москве 1536 Недвижимость от застройщика МР Групп 1496 Квартиры от застройщика МР Групп 1482 Двухкомнатные квартиры в новостройках 1481 Двухкомнатные квартиры в строящихся доах 1317 Двухкомнатные квартиры без отделки в Москве 1271 Квартиры в СЗАО 924 Квартиры под отделку в СЗАО 890 Квартиры в районе Покровское-Стрешнево 795 Квартиры в новостройках в районе Покровское-Стрешнево 788 Купить квартиру площадью 60 кв. м. в Москве 563

Получите подробную презентацию объекта

NF Group

Инфраструктура района

Преимущества
На границе Войковского района и района Покровское-Стрешнево расположен одноименный лесопарк, в котором находится объект культурного наследия «Усадьба Покровское-Стрешнево», а также беседки, детские и спортивные площадки, обустроенные пляжи. В пешей доступности - Химкинское водохранилище
Образование
17 общеобразовательных школ, частная Англо-американская школа, 9 детских садов, включая частные
Инфраструктура
ТЦ «Покровское-Стрешнево», 11 салонов красоты и спа, 4 крупных фермерских рынка
Культура
3 православных храма (17-19 века), 2 театра, кинотеатр, несколько библиотек
Спорт
Широкие возможности для занятий спортом в парке; более 20 фитнес-клубов в окрестностях района
Мед. учреждения
5 крупных государственных медцентров, 2 частные многопрофильные клиники, 7 стоматологий
Все
Магазины и услуги
Развлечения
Образование
Спорт и здоровье

Записаться на экскурсию по объекту

Подберите ипотеку

Подавая заявку в несколько банков, вы увеличиваете шанс на одобрение ипотеки
Стоимость недвижимости
20 млн.
950 млн.
Первоначальный взнос
20 %
90 %
Срок
1 год
30 лет
Процентная ставка
3%
100%
Сумма кредита
524 700 000 ₽
Ежемесячный платеж
524 700 000 ₽
индивидуальный %
до 30 лет
индивидуальный %
до 30 лет
индивидуальный %
до 30 лет
индивидуальный %
до 30 лет
индивидуальный %
до 35 лет
индивидуальный %
до 30 лет
NF Group
Особые условия по ипотеке для клиентов NF GROUP

Новостройка «Сити Бэй»

Жилой комплекс City Bay — это современный квартал бизнес-класса, расположенный на берегу Спасского затона. Он находится в районе Покровское — Стрешнево на северо-западе Москвы.

Из комплекса удобно выезжать на МКАД, а рядом расположена станция МЦД «Трикотажная». Это позволяет жителям удобно пользоваться существующей транспортной и социальной инфраструктурой.

NF Group

Посмотрите похожие предложения

/
1-комн. квартира 24 м², 16 этаж - High Life
ЮАО Даниловский Летниковская ул., 11/10, стр. 1
30 634 200 ₽
Свернуть
ID: as73517

1-комн. квартира 24 м², 16 этаж - High Life

ЮАО Даниловский Летниковская ул., 11/10, стр. 1
Павелецкая
30 634 200 ₽
Площадь 24 м²
Этаж 16
1 комната
Без отделки
 Константин Андрюшин
Константин Андрюшин
Директор направления по продажам новостроек
1-комн. квартира 24 м², 21 этаж - High Life
ЮАО Даниловский Летниковская ул., 11/10, стр. 1
30 851 604 ₽
Свернуть
ID: as74056

1-комн. квартира 24 м², 21 этаж - High Life

ЮАО Даниловский Летниковская ул., 11/10, стр. 1
Павелецкая
30 851 604 ₽
Площадь 24 м²
Этаж 21
1 комната
Без отделки
 Константин Андрюшин
Константин Андрюшин
Директор направления по продажам новостроек
Квартира 26 м², 13 этаж - Level Академическая
ЮЗАО Академический Профсоюзная ул., 2/22
23 493 998 ₽
Свернуть
ID: as101470

Квартира 26 м², 13 этаж - Level Академическая

ЮЗАО Академический Профсоюзная ул., 2/22
23 493 998 ₽
Площадь 25 м²
Этаж 13
Без отделки
2-комн. квартира 55 м², 27 этаж - «Level Мичуринский»
ЗАО Очаково-Матвеевское Озёрная ул.
30 513 193 ₽
Свернуть
ID: as101433

2-комн. квартира 55 м², 27 этаж - «Level Мичуринский»

ЗАО Очаково-Матвеевское Озёрная ул.
30 513 193 ₽
Площадь 55 м²
Этаж 27
2 комнаты
Без отделки
2-комн. квартира 40 м², 40 этаж - «Level Мичуринский»
ЗАО Очаково-Матвеевское Озёрная ул.
24 264 035 ₽
Свернуть
ID: as101452

2-комн. квартира 40 м², 40 этаж - «Level Мичуринский»

ЗАО Очаково-Матвеевское Озёрная ул.
24 264 035 ₽
Площадь 40 м²
Этаж 40
2 комнаты
Без отделки
2-комн. квартира 37 м², 24 этаж - «Level Мичуринский»
ЗАО Очаково-Матвеевское Озёрная ул.
25 799 403 ₽
Свернуть
ID: as101462

2-комн. квартира 37 м², 24 этаж - «Level Мичуринский»

ЗАО Очаково-Матвеевское Озёрная ул.
25 799 403 ₽
Площадь 37 м²
Этаж 24
2 комнаты
Без отделки
1-комн. квартира 40 м², 25 этаж - Life Варшавская
ЮАО Москворечье-Сабурово 2-й Котляковский пер, вл. 1
27 156 564 ₽
Свернуть
ID: as97921

1-комн. квартира 40 м², 25 этаж - Life Варшавская

ЮАО Москворечье-Сабурово 2-й Котляковский пер, вл. 1
27 156 564 ₽
Площадь 39 м²
Этаж 25
1 комната
Без отделки
 Дмитрий Щеголев
Дмитрий Щеголев
Руководитель отдела продаж новостроек
1-комн. квартира 39 м², 4 этаж - Life Варшавская
ЮАО Москворечье-Сабурово 2-й Котляковский пер, вл. 1
25 026 771 ₽
Свернуть
ID: as100347

1-комн. квартира 39 м², 4 этаж - Life Варшавская

ЮАО Москворечье-Сабурово 2-й Котляковский пер, вл. 1
25 026 771 ₽
Площадь 39 м²
Этаж 4
1 комната
Без отделки
1-комн. квартира 43 м², 24 этаж - Life Варшавская
ЮАО Москворечье-Сабурово 2-й Котляковский пер, вл. 1
27 973 404 ₽
Свернуть
ID: as62726

1-комн. квартира 43 м², 24 этаж - Life Варшавская

ЮАО Москворечье-Сабурово 2-й Котляковский пер, вл. 1
27 973 404 ₽
Площадь 43 м²
Этаж 24
1 комната
Без отделки
1-комн. квартира 26 м², 6 этаж - High Life
ЮАО Даниловский Летниковская ул., 11/10, стр. 1
28 031 247 ₽
Свернуть
ID: as72037

1-комн. квартира 26 м², 6 этаж - High Life

ЮАО Даниловский Летниковская ул., 11/10, стр. 1
Павелецкая
28 031 247 ₽
Площадь 25 м²
Этаж 6
1 комната
Без отделки
 Константин Андрюшин
Константин Андрюшин
Директор направления по продажам новостроек

Отзывы застройщиков о NF GROUP

/
Башня «Федерации» рекомендует международную консалтинговую компанию NF GROUP как верного и профессионального партнера, обладающего высочайшей экспертизой и передовыми знаниями в сфере элитной недвижимости.
Читать весь отзыв
Смирнов М. Ю.
Смирнов М. Ю.
Генеральный директор
«Центр-Инвест» выражает особую благодарность консалтинговой компании NF GROUP за ответственный и грамотный подход, а также исключительное качество услуг.
Читать весь отзыв
Задорожная Джанет Бекманбетовна
Задорожная Джанет Бекманбетовна
Руководитель проектов продаж Департамента продаж премиальных проектов
Благодарим NF GROUP за внимательное отношение к интересам нашей компании и непревзойденный профессионализм.
Читать весь отзыв
Непейвода А.А.
Непейвода А.А.
Руководитель департамента маркетинга и продаж
Благодарим команду NF GROUP за многолетнее успешное сотрудничество и партнерские отношения в работе.
Читать весь отзыв
Дивеева О.А.
Дивеева О.А.
Директор по продажам Capital Group

Получите консультацию эксперта NF GROUP

Как вам удобнее общаться?
Дмитрий Щеголев
Дмитрий Щеголев
Руководитель отдела продаж новостроек
NF Group
Авторизация
Мы используем файлы cookie, чтобы улучшить сервис для вас.
Соглашение об использовании