+7 (495) 032-68-64 Продать объект Продать объект
О компании Аналитика Стать партнёром Карьера Контакты
City Bay (Сити Бэй)
NF Group
NF Group
NF Group
NF Group
NF Group
NF Group
NF Group
NF Group
NF Group
NF Group
NF Group
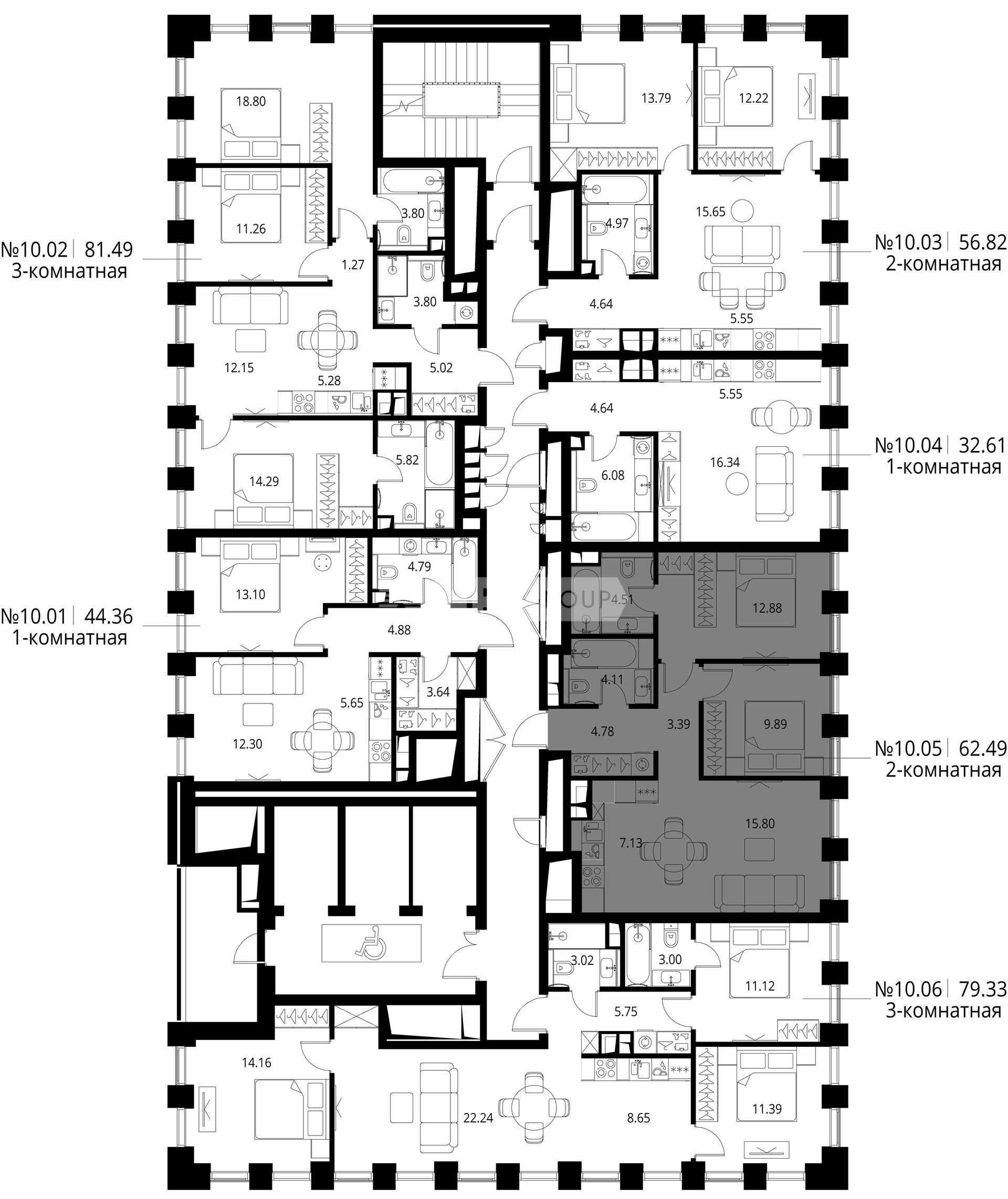
Планировка

2-комн. квартира 62 м², 10 этаж - City Bay

Этажей 27 Срок сдачи 2027 г.
27 603 251
441 722  ₽/м²
357 512
5 721  $/м²
300 221
4 804  €/м²
$
Whatsapp
27 603 251
441 722  ₽/м²
357 512
5 721  $/м²
300 221
4 804  €/м²
$
ID as93721
 Дмитрий Щеголев
Дмитрий Щеголев
Руководитель отдела продаж новостроек
NF Group
Предложите нам свою цену, и мы свяжемся с вами

Описание

Концепция жилого комплекса City Вау - настоящий город в городе с отлично развитой инфраструктурой и собственной благоустроенной набережной.

Характеристики

О квартире

Тип сделки
Продажа
Отделка
Под отделку
Тип объекта
Квартира
Этаж
10 из 27
Общая площадь
62 м²
Уровней
1

О жилом комплексе

Площадь квартир
от 31 до 133 м²
Строится
2027
Этажность
27
Класс
Бизнес

Адрес

Город Москва
Округ СЗАО
Район Покровское-Стрешнево
Адрес Волоколамское ш., 95, к. 4
Объекты рядом

Все предложения в категориях

Элитная недвижимость в Подмосковье 7583 Элитная недвижимость в Москве 5680 Элитные квартиры в Москве и Подмосковье 5540 Элитные квартиры в Москве 5284 Продажа квартир с базовой ценой в рублях 5240 Квартиры в новостройках (ЖК) Москвы 4906 Строящиеся квартиры в Москве 4270 Квартиры в строящихся новостройках 4261 Квартиры под отделку в Москве 3975 Квартиры без отделки от застройщика 3861 Квартиры под отделку в строящихся домах 3397 Квартиры в пределах МКАД 2858 Недвижимость бизнес-класса 1594 Квартиры бизнес-класса от застройщика 1560 Двухкомнатные квартиры в Москве 1509 Двухкомнатные квартиры в новостройках 1459 Двухкомнатные квартиры в строящихся доах 1325 Недвижимость от застройщика МР Групп 1322 Квартиры от застройщика МР Групп 1309 Двухкомнатные квартиры без отделки в Москве 1248 Квартиры в СЗАО 943 Квартиры под отделку в СЗАО 910 Квартиры в районе Покровское-Стрешнево 812 Квартиры в новостройках в районе Покровское-Стрешнево 805 Купить квартиру площадью 60 кв. м. в Москве 533

Получите подробную презентацию объекта

NF Group

Инфраструктура района

Преимущества
На границе Войковского района и района Покровское-Стрешнево расположен одноименный лесопарк, в котором находится объект культурного наследия «Усадьба Покровское-Стрешнево», а также беседки, детские и спортивные площадки, обустроенные пляжи. В пешей доступности - Химкинское водохранилище
Образование
17 общеобразовательных школ, частная Англо-американская школа, 9 детских садов, включая частные
Инфраструктура
ТЦ «Покровское-Стрешнево», 11 салонов красоты и спа, 4 крупных фермерских рынка
Культура
3 православных храма (17-19 века), 2 театра, кинотеатр, несколько библиотек
Спорт
Широкие возможности для занятий спортом в парке; более 20 фитнес-клубов в окрестностях района
Мед. учреждения
5 крупных государственных медцентров, 2 частные многопрофильные клиники, 7 стоматологий
Все
Магазины и услуги
Развлечения
Образование
Спорт и здоровье

Записаться на экскурсию по объекту

Подберите ипотеку

Подавая заявку в несколько банков, вы увеличиваете шанс на одобрение ипотеки
Стоимость недвижимости
20 млн.
950 млн.
Первоначальный взнос
20 %
90 %
Срок
1 год
30 лет
Процентная ставка
3%
100%
Сумма кредита
524 700 000 ₽
Ежемесячный платеж
524 700 000 ₽
индивидуальный %
до 30 лет
индивидуальный %
до 30 лет
индивидуальный %
до 30 лет
индивидуальный %
до 30 лет
индивидуальный %
до 35 лет
индивидуальный %
до 30 лет
NF Group
Особые условия по ипотеке для клиентов NF GROUP

Новостройка City Bay

Жилой комплекс City Bay — это современный квартал бизнес-класса, расположенный на берегу Спасского затона. Он находится в районе Покровское — Стрешнево на северо-западе Москвы.

Из комплекса удобно выезжать на МКАД, а рядом расположена станция МЦД «Трикотажная». Это позволяет жителям удобно пользоваться существующей транспортной и социальной инфраструктурой.

NF Group

Посмотрите похожие предложения

/
2-комн. квартира 68 м², 2 этаж - City Bay
СЗАО Покровское-Стрешнево Волоколамское ш., 95, к. 4
25 222 430 ₽
Свернуть
ID: as93655

2-комн. квартира 68 м², 2 этаж - City Bay

СЗАО Покровское-Стрешнево Волоколамское ш., 95, к. 4
25 222 430 ₽
Площадь 68 м²
Этаж 2
2 комнаты
Без отделки
 Дмитрий Щеголев
Дмитрий Щеголев
Руководитель отдела продаж новостроек
WhatsApp Позвонить
1-комн. квартира 50 м², 2 этаж - City Bay
СЗАО Покровское-Стрешнево Волоколамское ш., 95, к. 4
29 044 313 ₽
Свернуть
ID: as93633

1-комн. квартира 50 м², 2 этаж - City Bay

СЗАО Покровское-Стрешнево Волоколамское ш., 95, к. 4
29 044 313 ₽
Площадь 49 м²
Этаж 2
1 комната
Без отделки
 Дмитрий Щеголев
Дмитрий Щеголев
Руководитель отдела продаж новостроек
WhatsApp Позвонить
1-комн. квартира 38 м², 3 этаж - PRIDE
СВАО Марьина Роща ул. Полковая, вл. 1
27 787 028 ₽
Свернуть
ID: as85184

1-комн. квартира 38 м², 3 этаж - PRIDE

СВАО Марьина Роща ул. Полковая, вл. 1
Савёловская
27 787 028 ₽
Площадь 38 м²
Этаж 3
1 комната
Без отделки
 Дмитрий Щеголев
Дмитрий Щеголев
Руководитель отдела продаж новостроек
WhatsApp Позвонить
1-комн. квартира 41 м², 3 этаж - Slava
САО Беговой Ленинградский пр-кт, вл. 8
28 908 187 ₽
Свернуть
ID: as88400

1-комн. квартира 41 м², 3 этаж - Slava

САО Беговой Ленинградский пр-кт, вл. 8
Белорусская
28 908 187 ₽
Площадь 40 м²
Этаж 3
1 комната
Без отделки
 Дмитрий Щеголев
Дмитрий Щеголев
Руководитель отдела продаж новостроек
WhatsApp Позвонить
2-комн. квартира 59 м², 4 этаж - City Bay
СЗАО Покровское-Стрешнево Волоколамское ш., 95, к. 4
27 500 364 ₽
Свернуть
ID: as93935

2-комн. квартира 59 м², 4 этаж - City Bay

СЗАО Покровское-Стрешнево Волоколамское ш., 95, к. 4
27 500 364 ₽
Площадь 58 м²
Этаж 4
2 комнаты
Без отделки
 Дмитрий Щеголев
Дмитрий Щеголев
Руководитель отдела продаж новостроек
WhatsApp Позвонить
1-комн. квартира 40 м², 4 этаж - City Bay
СЗАО Покровское-Стрешнево Волоколамское ш., 95, к. 4
24 908 020 ₽
Свернуть
ID: as93636

1-комн. квартира 40 м², 4 этаж - City Bay

СЗАО Покровское-Стрешнево Волоколамское ш., 95, к. 4
24 908 020 ₽
Площадь 39 м²
Этаж 4
1 комната
Без отделки
 Дмитрий Щеголев
Дмитрий Щеголев
Руководитель отдела продаж новостроек
WhatsApp Позвонить
2-комн. квартира 64 м², 5 этаж - City Bay
СЗАО Покровское-Стрешнево Волоколамское ш., 95, к. 4
24 532 890 ₽
Свернуть
ID: as90382

2-комн. квартира 64 м², 5 этаж - City Bay

СЗАО Покровское-Стрешнево Волоколамское ш., 95, к. 4
24 532 890 ₽
Площадь 64 м²
Этаж 5
2 комнаты
Без отделки
 Константин Андрюшин
Константин Андрюшин
Директор направления по продажам новостроек
WhatsApp Позвонить
2-комн. квартира 65 м², 7 этаж - City Bay
СЗАО Покровское-Стрешнево Волоколамское ш., 95, к. 4
29 098 644 ₽
Свернуть
ID: as90489

2-комн. квартира 65 м², 7 этаж - City Bay

СЗАО Покровское-Стрешнево Волоколамское ш., 95, к. 4
29 098 644 ₽
Площадь 64 м²
Этаж 7
2 комнаты
Без отделки
 Дмитрий Щеголев
Дмитрий Щеголев
Руководитель отдела продаж новостроек
WhatsApp Позвонить
2-комн. квартира 65 м², 7 этаж - City Bay
СЗАО Покровское-Стрешнево Волоколамское ш., 95, к. 4
28 597 520 ₽
Свернуть
ID: as93943

2-комн. квартира 65 м², 7 этаж - City Bay

СЗАО Покровское-Стрешнево Волоколамское ш., 95, к. 4
28 597 520 ₽
Площадь 64 м²
Этаж 7
2 комнаты
Без отделки
 Дмитрий Щеголев
Дмитрий Щеголев
Руководитель отдела продаж новостроек
WhatsApp Позвонить
2-комн. квартира 65 м², 2 этаж - City Bay
СЗАО Покровское-Стрешнево Волоколамское ш., 95, к. 4
25 244 595 ₽
Свернуть
ID: as94308

2-комн. квартира 65 м², 2 этаж - City Bay

СЗАО Покровское-Стрешнево Волоколамское ш., 95, к. 4
25 244 595 ₽
Площадь 65 м²
Этаж 2
2 комнаты
Без отделки
 Дмитрий Щеголев
Дмитрий Щеголев
Руководитель отдела продаж новостроек
WhatsApp Позвонить

Отзывы застройщиков о NF GROUP

/
Башня «Федерации» рекомендует международную консалтинговую компанию NF GROUP как верного и профессионального партнера, обладающего высочайшей экспертизой и передовыми знаниями в сфере элитной недвижимости.
Читать весь отзыв
Смирнов М. Ю.
Смирнов М. Ю.
Генеральный директор
«Центр-Инвест» выражает особую благодарность консалтинговой компании NF GROUP за ответственный и грамотный подход, а также исключительное качество услуг.
Читать весь отзыв
Задорожная Джанет Бекманбетовна
Задорожная Джанет Бекманбетовна
Руководитель проектов продаж Департамента продаж премиальных проектов
Благодарим NF GROUP за внимательное отношение к интересам нашей компании и непревзойденный профессионализм.
Читать весь отзыв
Непейвода А.А.
Непейвода А.А.
Руководитель департамента маркетинга и продаж
Благодарим команду NF GROUP за многолетнее успешное сотрудничество и партнерские отношения в работе.
Читать весь отзыв
Дивеева О.А.
Дивеева О.А.
Директор по продажам Capital Group

Получите консультацию эксперта NF GROUP

Как вам удобнее общаться?
Дмитрий Щеголев
Дмитрий Щеголев
Руководитель отдела продаж новостроек
NF Group
Авторизация
Мы используем файлы cookie, чтобы улучшить сервис для вас.
Соглашение об использовании