+7 (495) 032-68-64 Продать объект Продать объект
О компании Аналитика Стать партнёром Карьера Контакты
«Сити Бэй» (City Bay)
NF Group
NF Group
NF Group
NF Group
NF Group
NF Group
NF Group
NF Group
NF Group
NF Group
NF Group
Планировка

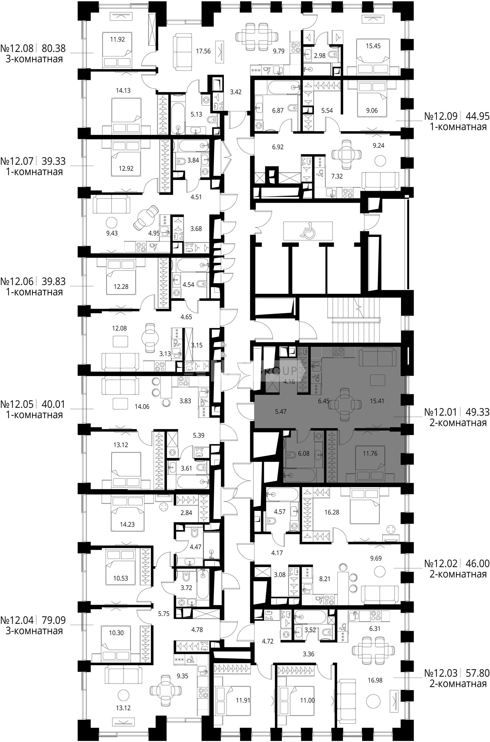
1-комн. квартира 49 м², 12 этаж - «Сити Бэй»

Этажей 26 Срок сдачи 2025 г.
19 898 999
403 385  ₽/м²
248 038
5 028  $/м²
216 329
4 385  €/м²
$
19 898 999
403 385  ₽/м²
248 038
5 028  $/м²
216 329
4 385  €/м²
$
ID as93589
 Константин Андрюшин
Константин Андрюшин
Директор направления по продажам новостроек
NF Group
Предложите нам свою цену, и мы свяжемся с вами

Описание

Концепция жилого комплекса City Вау - настоящий город в городе с отлично развитой инфраструктурой и собственной благоустроенной набережной.

Характеристики

О квартире

Тип сделки
Продажа
Отделка
Под отделку
Тип объекта
Квартира
Этаж
12 из 26
Общая площадь
49 м²
Уровней
1

О жилом комплексе

Площадь квартир
от 29 до 133 м²
Строится
2025
Этажность
26
Класс
Бизнес

Адрес

Город Москва
Округ СЗАО
Район Покровское-Стрешнево
Адрес Волоколамское ш., 95, к. 4
Объекты рядом

Все предложения в категориях

Элитная недвижимость в Подмосковье 7724 Элитная недвижимость в Москве 5829 Элитные квартиры в Москве и Подмосковье 5686 Элитные квартиры в Москве 5431 Продажа квартир с базовой ценой в рублях 5388 Квартиры в новостройках (ЖК) Москвы 5053 Строящиеся квартиры в Москве 4354 Квартиры на этапе строительства в новостройках 4343 Квартиры под отделку в Москве 4121 Квартиры без отделки от застройщика 4010 Квартиры под отделку в строящихся домах 3481 Квартиры в пределах МКАД 3022 Недвижимость бизнес-класса 1784 Квартиры бизнес-класса от застройщика 1746 Недвижимость от застройщика МР Групп 1496 Квартиры от застройщика МР Групп 1482 Вторичное жилье: однокомнатные квартиры в Москве 1021 Однокомнатные элитные квартиры 971 Однокомнатные квартиры в новостройках 967 Квартиры в СЗАО 924 Однокомнатные квартиры с отделкой 921 Квартиры под отделку в СЗАО 890 Строящиеся однокомнатные квартиры 873 Квартиры в районе Покровское-Стрешнево 795 Квартиры в новостройках в районе Покровское-Стрешнево 788 Купить квартиру площадью 50 кв. м. в Москве 550

Получите подробную презентацию объекта

NF Group

Инфраструктура района

Преимущества
На границе Войковского района и района Покровское-Стрешнево расположен одноименный лесопарк, в котором находится объект культурного наследия «Усадьба Покровское-Стрешнево», а также беседки, детские и спортивные площадки, обустроенные пляжи. В пешей доступности - Химкинское водохранилище
Образование
17 общеобразовательных школ, частная Англо-американская школа, 9 детских садов, включая частные
Инфраструктура
ТЦ «Покровское-Стрешнево», 11 салонов красоты и спа, 4 крупных фермерских рынка
Культура
3 православных храма (17-19 века), 2 театра, кинотеатр, несколько библиотек
Спорт
Широкие возможности для занятий спортом в парке; более 20 фитнес-клубов в окрестностях района
Мед. учреждения
5 крупных государственных медцентров, 2 частные многопрофильные клиники, 7 стоматологий
Все
Магазины и услуги
Развлечения
Образование
Спорт и здоровье

Записаться на экскурсию по объекту

Подберите ипотеку

Подавая заявку в несколько банков, вы увеличиваете шанс на одобрение ипотеки
Стоимость недвижимости
10 млн.
950 млн.
Первоначальный взнос
20 %
90 %
Срок
1 год
30 лет
Процентная ставка
3%
100%
Сумма кредита
524 700 000 ₽
Ежемесячный платеж
524 700 000 ₽
индивидуальный %
до 30 лет
индивидуальный %
до 30 лет
индивидуальный %
до 30 лет
индивидуальный %
до 30 лет
индивидуальный %
до 35 лет
индивидуальный %
до 30 лет
NF Group
Особые условия по ипотеке для клиентов NF GROUP

Новостройка «Сити Бэй»

Жилой комплекс City Bay — это современный квартал бизнес-класса, расположенный на берегу Спасского затона. Он находится в районе Покровское — Стрешнево на северо-западе Москвы.

Из комплекса удобно выезжать на МКАД, а рядом расположена станция МЦД «Трикотажная». Это позволяет жителям удобно пользоваться существующей транспортной и социальной инфраструктурой.

NF Group

Посмотрите похожие предложения

/
Квартира 26 м², 2 этаж - Moments
САО Щукино Волоколамское ш., 28
22 199 760 ₽
Свернуть
ID: as59693

Квартира 26 м², 2 этаж - Moments

САО Щукино Волоколамское ш., 28
22 199 760 ₽
Площадь 26 м²
Этаж 2
Без отделки
 Дмитрий Щеголев
Дмитрий Щеголев
Руководитель отдела продаж новостроек
Квартира 23 м², 34 этаж - «ВЕЕР»
ЗАО Можайский ул. Верейская, влд.29
18 736 380 ₽
Свернуть
ID: as88184

Квартира 23 м², 34 этаж - «ВЕЕР»

ЗАО Можайский ул. Верейская, влд.29
18 736 380 ₽
Площадь 23 м²
Этаж 34
Без отделки
 Дмитрий Щеголев
Дмитрий Щеголев
Руководитель отдела продаж новостроек
Квартира 22 м², 34 этаж - «ВЕЕР»
ЗАО Можайский ул. Верейская, влд.29
18 283 500 ₽
Свернуть
ID: as88208

Квартира 22 м², 34 этаж - «ВЕЕР»

ЗАО Можайский ул. Верейская, влд.29
18 283 500 ₽
Площадь 22 м²
Этаж 34
Без отделки
 Дмитрий Щеголев
Дмитрий Щеголев
Руководитель отдела продаж новостроек
1-комн. квартира 45 м², 17 этаж - Sky Garden
СЗАО Покровское-Стрешнево Строительный проезд, д.9
21 513 244 ₽
Свернуть
ID: as73307

1-комн. квартира 45 м², 17 этаж - Sky Garden

СЗАО Покровское-Стрешнево Строительный проезд, д.9
21 513 244 ₽
Площадь 45 м²
Этаж 17
1 комната
С отделкой
 Дмитрий Щеголев
Дмитрий Щеголев
Руководитель отдела продаж новостроек
1-комн. квартира 43 м², 13 этаж - Sky Garden
СЗАО Покровское-Стрешнево Строительный проезд, д.9
20 738 427 ₽
Свернуть
ID: as73885

1-комн. квартира 43 м², 13 этаж - Sky Garden

СЗАО Покровское-Стрешнево Строительный проезд, д.9
20 738 427 ₽
Площадь 43 м²
Этаж 13
1 комната
С отделкой
 Дмитрий Щеголев
Дмитрий Щеголев
Руководитель отдела продаж новостроек
1-комн. квартира 52 м², 2 этаж - Sky Garden
СЗАО Покровское-Стрешнево Строительный проезд, д.9
22 765 060 ₽
Свернуть
ID: as77689

1-комн. квартира 52 м², 2 этаж - Sky Garden

СЗАО Покровское-Стрешнево Строительный проезд, д.9
22 765 060 ₽
Площадь 51 м²
Этаж 2
1 комната
С отделкой
 Дмитрий Щеголев
Дмитрий Щеголев
Руководитель отдела продаж новостроек
1-комн. квартира 44 м², 14 этаж - Sky Garden
СЗАО Покровское-Стрешнево Строительный проезд, д.9
20 849 582 ₽
Свернуть
ID: as81803

1-комн. квартира 44 м², 14 этаж - Sky Garden

СЗАО Покровское-Стрешнево Строительный проезд, д.9
20 849 582 ₽
Площадь 44 м²
Этаж 14
1 комната
С отделкой
 Дмитрий Щеголев
Дмитрий Щеголев
Руководитель отдела продаж новостроек
1-комн. квартира 44 м², 22 этаж - Sky Garden
СЗАО Покровское-Стрешнево Строительный проезд, д.9
21 267 714 ₽
Свернуть
ID: as81808

1-комн. квартира 44 м², 22 этаж - Sky Garden

СЗАО Покровское-Стрешнево Строительный проезд, д.9
21 267 714 ₽
Площадь 44 м²
Этаж 22
1 комната
С отделкой
 Дмитрий Щеголев
Дмитрий Щеголев
Руководитель отдела продаж новостроек
1-комн. квартира 44 м², 24 этаж - Sky Garden
СЗАО Покровское-Стрешнево Строительный проезд, д.9
21 362 744 ₽
Свернуть
ID: as81810

1-комн. квартира 44 м², 24 этаж - Sky Garden

СЗАО Покровское-Стрешнево Строительный проезд, д.9
21 362 744 ₽
Площадь 44 м²
Этаж 24
1 комната
С отделкой
 Дмитрий Щеголев
Дмитрий Щеголев
Руководитель отдела продаж новостроек
Квартира 24 м², 29 этаж - «Level Мичуринский»
ЗАО Очаково-Матвеевское Озёрная ул.
17 885 701 ₽
Свернуть
ID: as101465

Квартира 24 м², 29 этаж - «Level Мичуринский»

ЗАО Очаково-Матвеевское Озёрная ул.
17 885 701 ₽
Площадь 23 м²
Этаж 29
Без отделки

Отзывы застройщиков о NF GROUP

/
Башня «Федерации» рекомендует международную консалтинговую компанию NF GROUP как верного и профессионального партнера, обладающего высочайшей экспертизой и передовыми знаниями в сфере элитной недвижимости.
Читать весь отзыв
Смирнов М. Ю.
Смирнов М. Ю.
Генеральный директор
«Центр-Инвест» выражает особую благодарность консалтинговой компании NF GROUP за ответственный и грамотный подход, а также исключительное качество услуг.
Читать весь отзыв
Задорожная Джанет Бекманбетовна
Задорожная Джанет Бекманбетовна
Руководитель проектов продаж Департамента продаж премиальных проектов
Благодарим NF GROUP за внимательное отношение к интересам нашей компании и непревзойденный профессионализм.
Читать весь отзыв
Непейвода А.А.
Непейвода А.А.
Руководитель департамента маркетинга и продаж
Благодарим команду NF GROUP за многолетнее успешное сотрудничество и партнерские отношения в работе.
Читать весь отзыв
Дивеева О.А.
Дивеева О.А.
Директор по продажам Capital Group

Получите консультацию эксперта NF GROUP

Как вам удобнее общаться?
Константин Андрюшин
Константин Андрюшин
Директор направления по продажам новостроек

Вы смотрели

/
2-комн. квартира 48 м², 28 этаж - «Родина Парк»
ЗАО Можайский Верейская ул., 12
34 214 620 ₽
Свернуть
ID: as94908

2-комн. квартира 48 м², 28 этаж - «Родина Парк»

ЗАО Можайский Верейская ул., 12
34 214 620 ₽
Площадь 48 м²
Этаж 28
2 комнаты
Без отделки
 Константин Андрюшин
Константин Андрюшин
Директор направления по продажам новостроек
Позвонить
Жилой комплекс «Сидней Сити»
СЗАО Хорошево-Мневники Шеногина ул., 2
от 26 643 730 ₽
Свернуть
ID: id51273

Жилой комплекс «Сидней Сити»

СЗАО Хорошево-Мневники Шеногина ул., 2
Шелепиха
от 26 643 730 ₽
Год постройки: 1 квартал 2025 г.
Площадь 63-162 м²
Этажей: 45
Позвонить
Жилой комплекс West Garden
ЗАО Раменки Генерала Дорохова пр-кт, 39, к. 1В
от 23 250 000 ₽
Свернуть
ID: id46664

Жилой комплекс West Garden

ЗАО Раменки Генерала Дорохова пр-кт, 39, к. 1В
от 23 250 000 ₽
Год постройки: 2 квартал 2023 г.
Площадь 27-171 м²
Этажей: 15
Позвонить
Жилой комплекс «Сити Бэй»
СЗАО Покровское-Стрешнево Волоколамское ш., 95, к. 4
от 19 898 999 ₽
Свернуть
ID: id89554

Жилой комплекс «Сити Бэй»

СЗАО Покровское-Стрешнево Волоколамское ш., 95, к. 4
от 19 898 999 ₽
Срок сдачи: 2025 г.
Площадь 28-132 м²
Этажей: 59
Позвонить
1-комн. квартира 39 м², 12 этаж - «Сити Бэй»
СЗАО Покровское-Стрешнево Волоколамское ш., 95, к. 4
20 539 038 ₽
Свернуть
ID: as93199

1-комн. квартира 39 м², 12 этаж - «Сити Бэй»

СЗАО Покровское-Стрешнево Волоколамское ш., 95, к. 4
20 539 038 ₽
Площадь 39 м²
Этаж 12
1 комната
Без отделки
 Дмитрий Щеголев
Дмитрий Щеголев
Руководитель отдела продаж новостроек
Позвонить
Жилой комплекс «ВЕЕР»
ЗАО Можайский Верейская ул., 29
от 17 137 530 ₽
Свернуть
ID: id84472

Жилой комплекс «ВЕЕР»

ЗАО Можайский Верейская ул., 29
от 17 137 530 ₽
Срок сдачи: 3 квартал 2028 г.
Площадь 20-93 м²
Этажей: 61
Позвонить
3-комн. квартира 66 м², 9 этаж - Sydney City
СЗАО Хорошево-Мневники Шеногина ул., 2
50 916 040 ₽
Свернуть
ID: as92837

3-комн. квартира 66 м², 9 этаж - Sydney City

СЗАО Хорошево-Мневники Шеногина ул., 2
Шелепиха
50 916 040 ₽
Площадь 65 м²
Этаж 9
3 комнаты
Без отделки
 Константин Андрюшин
Константин Андрюшин
Директор направления по продажам новостроек
Позвонить
Комплекс апартаментов «Зорге 9»
САО Хорошёвский Зорге ул., 9
от 16 160 368 ₽
Свернуть
ID: id50231

Комплекс апартаментов «Зорге 9»

САО Хорошёвский Зорге ул., 9
от 16 160 368 ₽
Год постройки: 3 квартал 2023 г.
Площадь 26-148 м²
Этажей: 21
Позвонить
1-комн. квартира 39 м², 18 этаж - Sydney City
СЗАО Хорошево-Мневники Шеногина ул., 2
21 453 791 ₽
Свернуть
ID: as81637

1-комн. квартира 39 м², 18 этаж - Sydney City

СЗАО Хорошево-Мневники Шеногина ул., 2
Шелепиха
21 453 791 ₽
Площадь 39 м²
Этаж 18
1 комната
Без отделки
 Константин Андрюшин
Константин Андрюшин
Директор направления по продажам новостроек
Позвонить
4-комн. квартира 98 м², 12 этаж - West Garden
ЗАО Раменки Генерала Дорохова пр-кт, к16
66 710 000 ₽
Свернуть
ID: as54624

4-комн. квартира 98 м², 12 этаж - West Garden

ЗАО Раменки Генерала Дорохова пр-кт, к16
66 710 000 ₽
Площадь 98 м²
Этаж 12
4 комнаты
Без отделки
 Константин Андрюшин
Константин Андрюшин
Директор направления по продажам новостроек
Позвонить
NF Group
Авторизация
Мы используем файлы cookie, чтобы улучшить сервис для вас.
Соглашение об использовании