+7 (495) 032-68-64 Продать объект Продать объект
О компании Аналитика Стать партнёром Карьера Контакты
City Bay (Сити Бэй)
NF Group
NF Group
NF Group
NF Group
NF Group
NF Group
NF Group
NF Group
NF Group
NF Group
NF Group
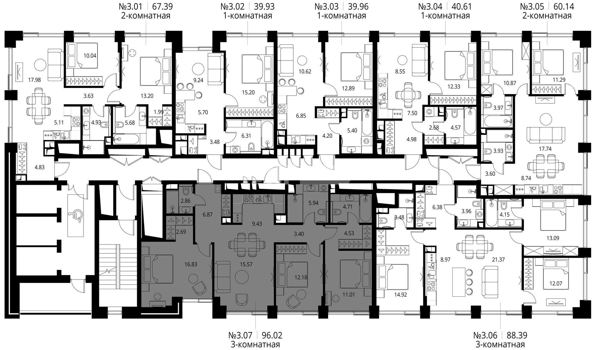
Планировка

3-комн. квартира 96 м², 3 этаж - City Bay

Этажей 27 Срок сдачи 2027 г.
32 089 509
334 196  ₽/м²
399 219
4 157  $/м²
340 841
3 549  €/м²
$
Whatsapp
32 089 509
334 196  ₽/м²
399 219
4 157  $/м²
340 841
3 549  €/м²
$
ID as93412
 Дмитрий Щеголев
Дмитрий Щеголев
Руководитель отдела продаж новостроек
NF Group
Предложите нам свою цену, и мы свяжемся с вами

Описание

Концепция жилого комплекса City Вау - настоящий город в городе с отлично развитой инфраструктурой и собственной благоустроенной набережной.

Характеристики

О квартире

Тип сделки
Продажа
Отделка
Под отделку
Тип объекта
Квартира
Этаж
3 из 27
Общая площадь
96 м²
Уровней
1

О жилом комплексе

Площадь квартир
от 29 до 133 м²
Строится
2027
Этажность
27
Класс
Бизнес

Адрес

Город Москва
Округ СЗАО
Район Покровское-Стрешнево
Адрес Волоколамское ш., 95, к. 4

Все предложения в категориях

Коммерческая недвижимость в Москве 18863 Элитная недвижимость в Подмосковье 8234 Элитная недвижимость в Москве 6558 Продажа квартир с базовой ценой в рублях 6558 Элитные квартиры в Москве и Подмосковье 6436 Элитные квартиры в Москве 6195 Квартиры в новостройках (ЖК) Москвы 5834 Строящиеся квартиры в Москве 5180 Квартиры под отделку в Москве 4857 Квартиры под отделку в строящихся домах 4228 Квартиры в пределах МКАД 4022 Недвижимость от застройщика МР Групп 2025 Квартиры от застройщика МР Групп 2013 Трехкомнатные квартиры в Москве 1510 Трехкомнатные квартиры в новостройке 1422 Квартиры в СЗАО 1349 Квартиры под отделку в СЗАО 1304 Трехкомнатные квартиры в строящихся доах 1213 Квартиры в районе Покровское-Стрешнево 1150 Трехкомнатные квартиры без отделки в Москве 1067 Купить квартиру площадью 100 кв. м. в Москве 522 Трехкомнатные квартиры в СЗАО 199

Получите подробную презентацию объекта

NF Group

Инфраструктура района

Преимущества
На границе Войковского района и района Покровское-Стрешнево расположен одноименный лесопарк, в котором находится объект культурного наследия «Усадьба Покровское-Стрешнево», а также беседки, детские и спортивные площадки, обустроенные пляжи. В пешей доступности - Химкинское водохранилище
Образование
17 общеобразовательных школ, частная Англо-американская школа, 9 детских садов, включая частные
Инфраструктура
ТЦ «Покровское-Стрешнево», 11 салонов красоты и спа, 4 крупных фермерских рынка
Культура
3 православных храма (17-19 века), 2 театра, кинотеатр, несколько библиотек
Спорт
Широкие возможности для занятий спортом в парке; более 20 фитнес-клубов в окрестностях района
Мед. учреждения
5 крупных государственных медцентров, 2 частные многопрофильные клиники, 7 стоматологий
Все
Магазины и услуги
Развлечения
Образование
Спорт и здоровье

Записаться на экскурсию по объекту

Подберите ипотеку

Подавая заявку в несколько банков, вы увеличиваете шанс на одобрение ипотеки
Стоимость недвижимости
20 млн.
950 млн.
Первоначальный взнос
20 %
90 %
Срок
1 год
30 лет
Процентная ставка
3%
100%
Сумма кредита
524 700 000 ₽
Ежемесячный платеж
524 700 000 ₽
индивидуальный %
до 30 лет
индивидуальный %
до 30 лет
индивидуальный %
до 30 лет
индивидуальный %
до 30 лет
индивидуальный %
до 35 лет
индивидуальный %
до 30 лет
NF Group
Особые условия по ипотеке для клиентов NF GROUP

Новостройка City Bay

Жилой комплекс City Bay — это современный квартал бизнес-класса, расположенный на берегу Спасского затона. Он находится в районе Покровское — Стрешнево на северо-западе Москвы.

Из комплекса удобно выезжать на МКАД, а рядом расположена станция МЦД «Трикотажная». Это позволяет жителям удобно пользоваться существующей транспортной и социальной инфраструктурой.

NF Group

Посмотрите похожие предложения

/
2-комн. квартира 46 м², 4 этаж - HideOUT
ЗАО Раменки пр-д 3-й Сетуньский, 10
30 952 048 ₽
Свернуть
ID: as96256

2-комн. квартира 46 м², 4 этаж - HideOUT

ЗАО Раменки пр-д 3-й Сетуньский, 10
30 952 048 ₽
Площадь 46 м²
Этаж 4
2 комнаты
Без отделки
 Дмитрий Щеголев
Дмитрий Щеголев
Руководитель отдела продаж новостроек
WhatsApp Позвонить
1-комн. квартира 43 м², 3 этаж - Portland
ЮВАО Печатники Южнопортовая ул., 42, стр. 1
31 388 770 ₽
Свернуть
ID: as72020

1-комн. квартира 43 м², 3 этаж - Portland

ЮВАО Печатники Южнопортовая ул., 42, стр. 1
31 388 770 ₽
Площадь 42 м²
Этаж 3
1 комната
Без отделки
WhatsApp Позвонить
2-комн. квартира 84 м², 24 этаж - Sky Garden
СЗАО Покровское-Стрешнево Строительный проезд, д.9
28 345 918 ₽
Свернуть
ID: as72140

2-комн. квартира 84 м², 24 этаж - Sky Garden

СЗАО Покровское-Стрешнево Строительный проезд, д.9
28 345 918 ₽
Площадь 83 м²
Этаж 24
2 комнаты
Без отделки
 Дмитрий Щеголев
Дмитрий Щеголев
Руководитель отдела продаж новостроек
WhatsApp Позвонить
2-комн. квартира 84 м², 33 этаж - Sky Garden
СЗАО Покровское-Стрешнево Строительный проезд, д.9
28 616 782 ₽
Свернуть
ID: as81787

2-комн. квартира 84 м², 33 этаж - Sky Garden

СЗАО Покровское-Стрешнево Строительный проезд, д.9
28 616 782 ₽
Площадь 83 м²
Этаж 33
2 комнаты
Без отделки
 Дмитрий Щеголев
Дмитрий Щеголев
Руководитель отдела продаж новостроек
WhatsApp Позвонить
1-комн. квартира 43 м², 7 этаж - Famous
ЗАО Филевский Парк пр-д Багратионовский, 5
30 598 042 ₽
Свернуть
ID: as83083

1-комн. квартира 43 м², 7 этаж - Famous

ЗАО Филевский Парк пр-д Багратионовский, 5
30 598 042 ₽
Площадь 42 м²
Этаж 7
1 комната
Без отделки
 Дмитрий Щеголев
Дмитрий Щеголев
Руководитель отдела продаж новостроек
WhatsApp Позвонить
1-комн. квартира 42 м², 28 этаж - Moments
СЗАО Щукино Волоколамское ш., 28
28 480 650 ₽
Свернуть
ID: as83652

1-комн. квартира 42 м², 28 этаж - Moments

СЗАО Щукино Волоколамское ш., 28
28 480 650 ₽
Площадь 42 м²
Этаж 28
1 комната
Без отделки
 Дмитрий Щеголев
Дмитрий Щеголев
Руководитель отдела продаж новостроек
WhatsApp Позвонить
2-комн. квартира 63 м², 16 этаж - Moments
САО Щукино Волоколамское ш., 28
36 422 820 ₽
Свернуть
ID: as83263

2-комн. квартира 63 м², 16 этаж - Moments

САО Щукино Волоколамское ш., 28
36 422 820 ₽
Площадь 63 м²
Этаж 16
2 комнаты
Без отделки
 Дмитрий Щеголев
Дмитрий Щеголев
Руководитель отдела продаж новостроек
WhatsApp Позвонить
1-комн. квартира 43 м², 3 этаж - Portland
ЮВАО Печатники Южнопортовая ул., 42, стр. 1
31 785 880 ₽
Свернуть
ID: as65808

1-комн. квартира 43 м², 3 этаж - Portland

ЮВАО Печатники Южнопортовая ул., 42, стр. 1
31 785 880 ₽
Площадь 42 м²
Этаж 3
1 комната
Без отделки
WhatsApp Позвонить
2-комн. квартира 77 м², 38 этаж - Sky Garden
СЗАО Покровское-Стрешнево Строительный проезд, д.9
27 714 855 ₽
Свернуть
ID: as82404

2-комн. квартира 77 м², 38 этаж - Sky Garden

СЗАО Покровское-Стрешнево Строительный проезд, д.9
27 714 855 ₽
Площадь 76 м²
Этаж 38
2 комнаты
Без отделки
 Дмитрий Щеголев
Дмитрий Щеголев
Руководитель отдела продаж новостроек
WhatsApp Позвонить
2-комн. квартира 59 м², 2 этаж - SET
ЗАО Можайский Верейская ул., 29, стр. 32Б
28 179 200 ₽
Свернуть
ID: as93144

2-комн. квартира 59 м², 2 этаж - SET

ЗАО Можайский Верейская ул., 29, стр. 32Б
SET
28 179 200 ₽
Площадь 59 м²
Этаж 2
2 комнаты
Без отделки
 Дмитрий Щеголев
Дмитрий Щеголев
Руководитель отдела продаж новостроек
WhatsApp Позвонить

Отзывы застройщиков о NF GROUP

/
Башня «Федерации» рекомендует международную консалтинговую компанию NF GROUP как верного и профессионального партнера, обладающего высочайшей экспертизой и передовыми знаниями в сфере элитной недвижимости.
Читать весь отзыв
Смирнов М. Ю.
Смирнов М. Ю.
Генеральный директор
«Центр-Инвест» выражает особую благодарность консалтинговой компании NF GROUP за ответственный и грамотный подход, а также исключительное качество услуг.
Читать весь отзыв
Задорожная Джанет Бекманбетовна
Задорожная Джанет Бекманбетовна
Руководитель проектов продаж Департамента продаж премиальных проектов
Благодарим NF GROUP за внимательное отношение к интересам нашей компании и непревзойденный профессионализм.
Читать весь отзыв
Непейвода А.А.
Непейвода А.А.
Руководитель департамента маркетинга и продаж
Благодарим команду NF GROUP за многолетнее успешное сотрудничество и партнерские отношения в работе.
Читать весь отзыв
Дивеева О.А.
Дивеева О.А.
Директор по продажам Capital Group

Получите консультацию эксперта NF GROUP

Как вам удобнее общаться?
Дмитрий Щеголев
Дмитрий Щеголев
Руководитель отдела продаж новостроек
NF Group
Авторизация
Мы используем файлы cookie, чтобы улучшить сервис для вас.
Соглашение об использовании