+7 (495) 032-68-64 Продать объект Продать объект
О компании Аналитика Стать партнёром Карьера Контакты
«Президент» (Prezident)
NF Group
NF Group
NF Group
NF Group
NF Group
NF Group
NF Group
NF Group

Дом 365 м² в коттеджном поселке «Президент»

hs9923138 Сосенское
ш. Калужское, 8 км oт МКАД
76 500 000
209 589  ₽/м²
959 496
2 628  $/м²
829 794
2 273  €/м²
$
76 500 000
209 589  ₽/м²
959 496
2 628  $/м²
829 794
2 273  €/м²
$
ID hs9923138
 Татьяна Алексеева
Татьяна Алексеева
Директор по загородной недвижимости
NF Group
Предложите нам свою цену, и мы свяжемся с вами

Характеристики

Об объекте

Общая площадь
365 м²
Участок
11 сот
Этажность
2
Спален
5
Санузлов
3
Газ
Магистральный
Водопровод
Центральное
Канализация
Центральная

О поселке

Общая площадь
3 822 м²
Предложений на продажу
8
Площадь предложений
274 - 1 330 м²
Площадь участков
8 - 80 сот.

Адрес

Регион Москва
Район Сосенское
Город Москва
Шоссе Калужское
Расстояние до МКАД 8 км
Направление Юго-запад
Объекты рядом

Описание

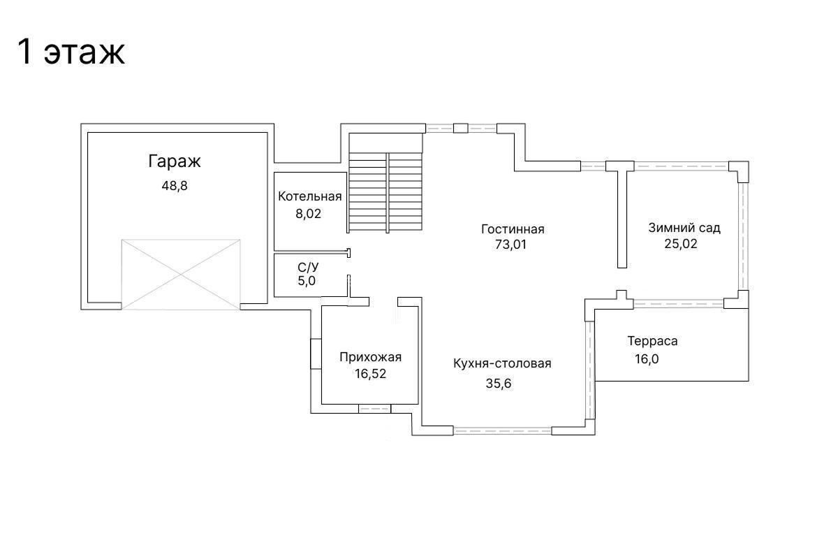
Планировка

1 этаж: прихожая, с/у, котельная, кухня-гостиная столовая единым пространством, зимний сад (спальня), гараж на 2 авто;
2 этаж: мастер-спальня с гардеробной и с/у, три спальни, с/у, кладовая-гардеробная

Описание дома

К продаже предлагается великолепный двухэтажный дом площадью 365 кв.м., расположенный в одном из самых престижных
коттеджных поселков бизнес-класса Новой Москвы.
Дом построен из кирпича с дополнительным утеплением, что гарантирует превосходную тепло- и звукоизоляцию.
Престижный Фасад - внешняя отделка выполнена натуральным дагестанским песчаником, что придает строению монументальный, благородный и дорогой внешний вид.
Мультипроектная разводка коммуникаций позволяет вам легко вносить корректировки в планировку внутренних перегородок и
расположение розеток/сантехники без дорогостоящих переделок.
Городские поселковые коммуникации заведены в дом, высокоскоростной интернет

Описание участка

11 соток с уже выполненным основанием под забор (с облицованными столбами) — готовность к быстрому финишному обустройству ограждения.

Описание поселка

Коттеджный посёлок расположен в 8 км от МКАД по Калужскому шоссе, на территории необыкновенного по красоте лесного массива.Особенность поселка «ПРЕЗИДЕНТ» - особое ландшафтное решение позволяющее создавать эффект «собственного мирка», избегая присущее многим поселкам ощущения тесноты.

Получите подробную презентацию объекта

NF Group

Инфраструктура поселка «Президент» (Prezident)

Все
Магазины и услуги
Развлечения
Образование
Спорт и здоровье

Поселок «Президент» (Prezident)

Предложений в продажу 8
Площадь предложений 274 - 1 330 м²
Площадь участков 8 - 80 сот.
Посмотреть 8 предложений
NF Group
NF Group
Получите презентацию всех предложений в «Президент» (Prezident)

Получите консультацию эксперта NF GROUP

Как вам удобнее общаться?
Татьяна Алексеева
Татьяна Алексеева
Директор по загородной недвижимости
Татьяна работает в компании с 2016 года. В первый год работы в департаменте загородной недвижимости была удостоена звания «Прорыв года», в 2021 году получила награду «ТОП-брокер года». С 2022 года Татьяна занимает должность Директора загородной недвижимости. В ее зону ответственности входит стратегическое развитие направления загородной недвижимости, формирование положительного имиджа компании, а также поиск и развитие перспективных проектов.

Посмотрите похожие предложения

/
Дом 274 м² в коттеджном поселке «Президент»
Сосенское Калужское, 8 км от МКАД
85 000 000 ₽
Свернуть
ID: hs9917873

Дом 274 м² в коттеджном поселке «Президент»

Сосенское Калужское, 8 км от МКАД
85 000 000 ₽
Площадь 274 м²
Участок 9 сот.
5 спален
С отделкой
Дом 365 м² в коттеджном поселке «Президент»
Сосенское Калужское, 8 км от МКАД
79 000 000 ₽
Свернуть
ID: hs9923140

Дом 365 м² в коттеджном поселке «Президент»

Сосенское Калужское, 8 км от МКАД
79 000 000 ₽
Площадь 365 м²
Участок 11 сот.
5 спален
Без отделки
Дом 230 м² в коттеджном поселке «Синергия»
Сосенское Калужское, 7 км от МКАД
75 000 000 ₽
Свернуть
ID: hs9922705

Дом 230 м² в коттеджном поселке «Синергия»

Сосенское Калужское, 7 км от МКАД
75 000 000 ₽
Площадь 230 м²
Участок 5 сот.
6 спален
С мебелью
NF Group
Авторизация
Мы используем файлы cookie, чтобы улучшить сервис для вас.
Соглашение об использовании