Москва
Санкт-Петербург
+7 (495) 032-68-64 Продать объект Продать объект
Москва
Санкт-Петербург
О компании Аналитика Стать партнёром Карьера Контакты
Никитский б-р. д. 6 (Nikitskijj b-r. d. 6)
NF Group
NF Group
NF Group
NF Group
NF Expert
Наши эксперты ответят на все ваши вопросы
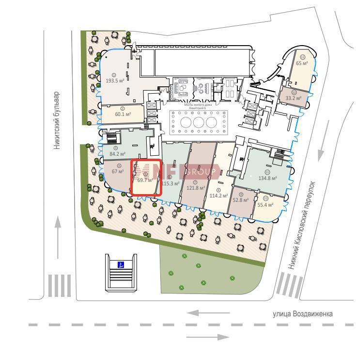
Планировка

Никитский б-р. д. 6, торговая площадь 132.3 м² - аренда

Боровицкая, Библиотека имени Ленина, Арбатская, Александровский сад
3 350 000
42 368
36 437
$
/мес.
3 350 000
42 368
36 437
$
/мес.
ID r137100
 Ирина Козина
Ирина Козина
Директор направления стрит-ретейла
NF Group
Предложите нам свою цену, и мы свяжемся с вами

Характеристики

Об объекте

Тип сделки
Аренда
Стадия строительства
Построен
Площадь в аренду
132.30 м²
Витрины
Нет
Входная группа
Отдельный вход
НДС
не применим

О здании

Предложений в аренду
3
Площадь предложений
35.00 - 193.50 м²

Адрес

Город Москва
Округ ЦАО
Адрес Никитский б-р, 6
Объекты рядом

Описание

Помещение свободного назначения формата Street Retail в ЦАО Москвы. 4 минуты пешком до станции метро Арбатская. Клубный дом de luxe класса «Никитский 6», расположен на пересечении улицы Воздвиженка и Никитского бульвара. В пяти минутах ходьбы - Большая Никитская улица и район Патриарших прудов. В доме 57 квартир и четыре пентхауса.
Готовность декабрь 2025 г.-январь 2026 г.

Получите подробную презентацию объекта

NF Group

Инфраструктура

Все
Преимущества
Образование
Культура
Спорт
Инфраструктура
Мед. учреждения

Торговое помещение Никитский б-р. д. 6 (Nikitskijj b-r. d. 6)

Помещение свободного назначения формата Street Retail в ЦАО Москвы. 4 минуты пешком до станции метро Арбатская. Клубный дом de luxe класса «Никитский 6», расположен на пересечении улицы Воздвиженка и Никитского бульвара. В пяти минутах ходьбы - Большая Никитская улица и район Патриарших прудов. В доме 57 квартир и четыре пентхауса.
Готовность декабрь 2025 г.-январь 2026 г.
Предложений в аренду 3
Площадь предложений 35 - 194 м²
Подробнее
NF Group
NF Group
Выбирайте помещение на основе Big Data

Посмотрите похожие предложения

/
БЦ Белая Площадь, Лесная д.5, торговая площадь 197.0 м² - аренда
Москва Лесная ул., 5
3 500 000 ₽ в месяц
Свернуть
ID: r137942

БЦ Белая Площадь, Лесная д.5, торговая площадь 197.0 м² - аренда

Москва Лесная ул., 5
Белорусская
3 500 000 ₽ в месяц
Площадь 197 м²
Мощность 54 кВт
Кузнецкий мост д. 3, торговая площадь 108.0 м² - аренда
Москва Кузнецкий Мост ул., 3
3 700 000 ₽ в месяц
Свернуть
ID: r138199

Кузнецкий мост д. 3, торговая площадь 108.0 м² - аренда

Москва Кузнецкий Мост ул., 3
Лубянка, Кузнецкий Мост
3 700 000 ₽ в месяц
Площадь 108 м²
Мощность 15 кВт
Ул. Маросейка, д. 4/2, торговая площадь 166.0 м² - аренда
Москва Басманный Маросейка ул., 4/2
3 800 000 ₽ в месяц
Свернуть
ID: r130019

Ул. Маросейка, д. 4/2, торговая площадь 166.0 м² - аренда

Москва Басманный Маросейка ул., 4/2
Китай-город
3 800 000 ₽ в месяц
Площадь 166 м²
Витрины
Мощность 70 кВт
БЦ Tupolev Plaza, торговая площадь 969.0 м² - аренда
Москва Академика Туполева наб, 15, к. 17
2 955 450 ₽ в месяц
Свернуть
ID: r133162

БЦ Tupolev Plaza, торговая площадь 969.0 м² - аренда

Москва Академика Туполева наб, 15, к. 17
2 955 450 ₽ в месяц
Площадь 969 м²
С отделкой
Витрины
ЖК A-Residence, Садовническая д. 82, торговая площадь 469.0 м² - аренда
Москва Садовническая ул., 82
2 918 746 ₽ в месяц
Свернуть
ID: r138193

ЖК A-Residence, Садовническая д. 82, торговая площадь 469.0 м² - аренда

Москва Садовническая ул., 82
Павелецкая
2 918 746 ₽ в месяц
Площадь 469 м²
Сколково Парк Деловой квартал, торговая площадь 726.85 м² - аренда
Москва Сколковское ш., 43
3 691 618 ₽ в месяц
Свернуть
ID: r134597

Сколково Парк Деловой квартал, торговая площадь 726.85 м² - аренда

Москва Сколковское ш., 43
Славянский Бульвар
3 691 618 ₽ в месяц
Площадь 726 м²
Мясницкая ул., 13 стр. 2, торговая площадь 499.0 м² - аренда
Москва Мясницкая ул., 13, стр. 2
3 600 000 ₽ в месяц
Свернуть
ID: r137199

Мясницкая ул., 13 стр. 2, торговая площадь 499.0 м² - аренда

Москва Мясницкая ул., 13, стр. 2
Чистые Пруды, Тургеневская, Сретенский Бульвар
3 600 000 ₽ в месяц
Площадь 499 м²
Мощность 200 кВт
Тверская, д.4, торговая площадь 410.0 м² - аренда
Москва Тверской Тверская ул., 4
3 500 000 ₽ в месяц
Свернуть
ID: r136366

Тверская, д.4, торговая площадь 410.0 м² - аренда

Москва Тверской Тверская ул., 4
Театральная, Площадь Революции, Охотный Ряд
3 500 000 ₽ в месяц
Площадь 410 м²
С отделкой
Витрины
Мощность 28 кВт
Старопетровский пр-д, д.8, торговая площадь 900.0 м² - аренда
Москва
3 150 000 ₽ в месяц
Свернуть
ID: r132425

Старопетровский пр-д, д.8, торговая площадь 900.0 м² - аренда

Москва
Войковская, Балтийская
3 150 000 ₽ в месяц
Площадь 900 м²
Витрины
Большая Никитская, д. 12/1, торговая площадь 248.9 м² - аренда
Москва Большая Никитская ул., 12
3 500 000 ₽ в месяц
Свернуть
ID: r133434

Большая Никитская, д. 12/1, торговая площадь 248.9 м² - аренда

Москва Большая Никитская ул., 12
Боровицкая, Библиотека имени Ленина, Арбатская, Александровский сад
3 500 000 ₽ в месяц
Площадь 248 м²
Витрины
Мощность 100 кВт
Нам доверяют во всем мире
Лидеры в сфере недвижимости
Управляющая компания года
В управлении 73 млн м² и 150 млрд инвестиций
Самая большая цитируемость в мире
Более 400 экспертов в России

Получите консультацию эксперта NF GROUP

Как вам удобнее общаться?
Ирина Козина
Ирина Козина
Директор направления стрит-ретейла
NF Group
Авторизация
Мы используем файлы cookie, чтобы улучшить сервис для вас.
Соглашение об использовании