+7 (495) 032-68-64 Продать объект Продать объект
О компании Аналитика Стать партнёром Карьера Контакты
Трифоновская, 12 (Trifonovskaya, 12)
NF Group
NF Group
NF Group
NF Group
NF Expert
Наши эксперты ответят на все ваши вопросы
Планировки

Трифоновская, 12, торговая площадь 1208.3 м² - продажа

Марьина Роща
Площадь 1 208 м² Мощность 35 кВт
200 000 000
165 521  ₽/м²
2 790 645
2 309  $/м²
2 401 032
1 987  €/м²
$
200 000 000
165 521  ₽/м²
2 790 645
2 309  $/м²
2 401 032
1 987  €/м²
$
ID s225190
 Ирина Козина
Ирина Козина
Директор направления стрит-ретейла
NF Group
Предложите нам свою цену, и мы свяжемся с вами

Характеристики

Об объекте

Тип сделки
Продажа
Стадия строительства
Построен
Площадь в продажу
1 208.30 м²
Витрины
Нет
Входная группа
Отдельный вход
НДС
включен
Высота потолков
от 1.8 до 2.7 м
Мощность электроэнергии
35 кВт

О здании

Предложений в аренду
1
Предложений в продажу
1
Площадь предложений
1 208.30 м²

Адрес

Город Москва
Округ СВАО
Район Марьина Роща
Адрес Трифоновская улица, 12
Объекты рядом

Описание

Предлагается помещение на первой линии домов в крупном жилом массиве. Отличная видимость, хороший рекламный потенциал. Интенсивный пешеходный трафик.
10 минут пешком от ст. метро «Марьина Роща» и «Достоевская».
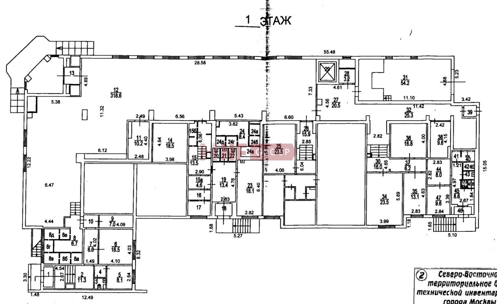
Распределение площади:
1 этаж 776,4 кв. м,
Подвал 431,9 кв. м. нет возможности использовать под коммерческую деятельность
Входная группа: отдельный вход.
Высота потолков:
1 этаж 2,7 м
Подвал 1,8 м
Мощность: 35 кВт.

Получите подробную презентацию объекта

NF Group

Инфраструктура района

Образование
Более 20 образовательных центров, среди которых Российская академия путей сообщения, Международная академия бизнеса и управления, Институт математики и информатики МГПУ; 6 центров развития и дополнительного образования
Инфраструктура
Более 20 кафе и ресторанов, 6 торговых центров, 9 салонов красоты
Культура
Театр «Сатирикон», Центральный Музей Вооруженных Сил РФ, Еврейский музей, Центр толерантности, центр «Планета КВН», Музей железнодорожного транспорта, 3 библиотеки, 3 кинотеатра
Преимущества
Удобная транспортная сеть (быстрый доступ к ТТК, проспекту Мира и Бутырской улице, переходящей в Дмитровское шоссе); хорошо развитая социальная инфраструктура
Спорт
Большой плавательный бассейн , 8 фитнес-клубов, в том числе World Class и клуб единоборств
Мед. учреждения
22 частных медцентра, 19 стоматологий
Все
Преимущества
Образование
Культура
Спорт
Инфраструктура
Мед. учреждения

Жилой комплекс Трифоновская, 12 (Trifonovskaya, 12)

Предлагается помещение на первой линии домов в крупном жилом массиве. Отличная видимость, хороший рекламный потенциал. Интенсивный пешеходный трафик.
10 минут пешком от ст. метро «Марьина Роща» и «Достоевская».
Распределение площади:
1 этаж 776,4 кв. м,
Подвал 431,9 кв. м. нет возможности использовать под коммерческую деятельность
Входная группа: отдельный вход.
Высота потолков:
1 этаж 2,7 м
Подвал 1,8 м
Мощность: 35 кВт.
Предложений в аренду 1
Предложений в продажу 1
Площадь предложений 1 208 м²
Подробнее
NF Group
NF Group
Выбирайте помещение на основе Big Data

Посмотрите похожие предложения

/
Мясницкая, д.7 с.10, торговая площадь 222.0 м² - продажа
Москва Красносельский Мясницкая ул., 7, стр. 10
200 000 000 ₽
Свернуть
ID: s226470

Мясницкая, д.7 с.10, торговая площадь 222.0 м² - продажа

Москва Красносельский Мясницкая ул., 7, стр. 10
Лубянка, Кузнецкий Мост
200 000 000 ₽
Площадь 222 м²
Мощность 120 кВт
Арендаторы Здрасьте!Нам по пасте
Окупаемость по запросу
НДС не применим
Кожевническая, д.22, торговая площадь 306.0 м² - продажа
Москва Даниловский Кожевническая ул., 22
217 000 000 ₽
Свернуть
ID: s230112

Кожевническая, д.22, торговая площадь 306.0 м² - продажа

Москва Даниловский Кожевническая ул., 22
Павелецкая
217 000 000 ₽
Площадь 306 м²
Мощность 280 кВт
ЖК Тишинский бульвар, торговая площадь 103.0 м² - продажа
Москва Электрический пер, 3/10, стр. 3
183 760 000 ₽
Свернуть
ID: s238283

ЖК Тишинский бульвар, торговая площадь 103.0 м² - продажа

Москва Электрический пер, 3/10, стр. 3
Белорусская
183 760 000 ₽
Площадь 103 м²
ЖК Тишинский бульвар, торговая площадь 128.3 м² - продажа
Москва Электрический пер, 3/10, стр. 3
217 270 000 ₽
Свернуть
ID: s238287

ЖК Тишинский бульвар, торговая площадь 128.3 м² - продажа

Москва Электрический пер, 3/10, стр. 3
Белорусская
217 270 000 ₽
Площадь 128 м²
Комсомольский пр-кт., д.15 стр.2, торговая площадь 386.7 м² - продажа
Москва Хамовники Комсомольский пр-кт, 15, стр. 2
199 000 000 ₽
Свернуть
ID: s233603

Комсомольский пр-кт., д.15 стр.2, торговая площадь 386.7 м² - продажа

Москва Хамовники Комсомольский пр-кт, 15, стр. 2
Фрунзенская
199 000 000 ₽
Площадь 386 м²
Мощность 100 кВт
Арендаторы ДОДО пицца, цоколь вакантный
Окупаемость по запросу
НДС не применим
ул. Крылатская, д.33, к2, торговая площадь 650.8 м² - продажа
Москва Крылатское Крылатская ул., 33, к. 3
178 500 000 ₽
Свернуть
ID: s230769

ул. Крылатская, д.33, к2, торговая площадь 650.8 м² - продажа

Москва Крылатское Крылатская ул., 33, к. 3
Крылатское
178 500 000 ₽
Площадь 650 м²
Мощность 350 кВт
Арендаторы “HUAWEI”
Окупаемость 8 лет
НДС включен
Покровка, д. 7/9-11 к.1, торговая площадь 315.1 м² - продажа
Москва Басманный Покровка ул., 7/9-11, к. 1
213 500 000 ₽
Свернуть
ID: s230442

Покровка, д. 7/9-11 к.1, торговая площадь 315.1 м² - продажа

Москва Басманный Покровка ул., 7/9-11, к. 1
Китай-город
213 500 000 ₽
Площадь 315 м²
Мощность 30 кВт
Арендаторы Универмаг Покровка 7/9
Окупаемость 11 лет
НДС не применим
Пр-т Мира, д.57с1, торговая площадь 363.9 м² - продажа
Москва Мещанский Мира пр-кт, 57, стр. 1
180 000 000 ₽
Свернуть
ID: s230829

Пр-т Мира, д.57с1, торговая площадь 363.9 м² - продажа

Москва Мещанский Мира пр-кт, 57, стр. 1
Проспект Мира
180 000 000 ₽
Площадь 363 м²
Мощность 100 кВт
Арендаторы Магнолия
Окупаемость по запросу
НДС не применим
1-ая Тверская-Ямская, д.27, торговая площадь 315.1 м² - продажа
Москва Басманный Тверская-Ямская 1-я улица, 27
225 000 000 ₽
Свернуть
ID: s219130

1-ая Тверская-Ямская, д.27, торговая площадь 315.1 м² - продажа

Москва Басманный Тверская-Ямская 1-я улица, 27
Белорусская, Маяковская
225 000 000 ₽
Площадь 315 м²
Мощность 120 кВт
Арендаторы HARATS
Окупаемость 12 лет
НДС не применим
Калашный переулок, 5, торговая площадь 169.0 м² - продажа
Москва Калашный пер, 5
209 684 000 ₽
Свернуть
ID: s235341

Калашный переулок, 5, торговая площадь 169.0 м² - продажа

Москва Калашный пер, 5
Боровицкая, Библиотека имени Ленина, Арбатская, Александровский сад
209 684 000 ₽
Площадь 169 м²
Мощность 100 кВт
Нам доверяют во всем мире
Лидеры в сфере недвижимости
Управляющая компания года
В управлении 73 млн м² и 150 млрд инвестиций
Самая большая цитируемость в мире
Более 400 экспертов в России

Получите консультацию эксперта NF GROUP

Как вам удобнее общаться?
Ирина Козина
Ирина Козина
Директор направления стрит-ретейла
Ирина имеет 15-летний опыт работы в области недвижимости, в команде NF GROUP c февраля 2015 года, начав с должности консультанта.

Специализируется на работе с крупными российскими и иностранными компаниями-девелоперами, а также с частными собственниками и инвесторами.

На позиции директора направления Street Retail Ирина отвечает за сопровождение ключевых сделок по аренде и продаже помещений формата Street Retail, координацию работы департамента, взаимодействие с другими подразделениями компании.

Вы смотрели

/
2-комн. квартира 57 м², 33 этаж - «Сидней Сити»
СЗАО Хорошево-Мневники Шеногина ул., 2
46 877 130 ₽
Свернуть
ID: as86590

2-комн. квартира 57 м², 33 этаж - «Сидней Сити»

СЗАО Хорошево-Мневники Шеногина ул., 2
Шелепиха
46 877 130 ₽
Площадь 57 м²
Этаж 33
2 комнаты
Без отделки
 Дмитрий Щеголев
Дмитрий Щеголев
Руководитель отдела продаж новостроек
2-комн. квартира 54 м², 37 этаж - «Сидней Сити»
СЗАО Хорошево-Мневники Шеногина ул., 2
45 812 700 ₽
Свернуть
ID: as81661

2-комн. квартира 54 м², 37 этаж - «Сидней Сити»

СЗАО Хорошево-Мневники Шеногина ул., 2
Шелепиха
45 812 700 ₽
Площадь 54 м²
Этаж 37
2 комнаты
Без отделки
 Дмитрий Щеголев
Дмитрий Щеголев
Руководитель отдела продаж новостроек
2-комн. квартира 57 м², 11 этаж - «Сидней Сити»
СЗАО Хорошево-Мневники Шеногина ул., 2
47 504 240 ₽
Свернуть
ID: as86560

2-комн. квартира 57 м², 11 этаж - «Сидней Сити»

СЗАО Хорошево-Мневники Шеногина ул., 2
Шелепиха
47 504 240 ₽
Площадь 57 м²
Этаж 11
2 комнаты
С отделкой
 Дмитрий Щеголев
Дмитрий Щеголев
Руководитель отдела продаж новостроек
2-комн. квартира 56 м², 12 этаж - «Сидней Сити»
СЗАО Хорошево-Мневники Шеногина ул., 2
45 935 790 ₽
Свернуть
ID: as86562

2-комн. квартира 56 м², 12 этаж - «Сидней Сити»

СЗАО Хорошево-Мневники Шеногина ул., 2
Шелепиха
45 935 790 ₽
Площадь 55 м²
Этаж 12
2 комнаты
С отделкой
 Дмитрий Щеголев
Дмитрий Щеголев
Руководитель отдела продаж новостроек
NF Group
Авторизация
Мы используем файлы cookie, чтобы улучшить сервис для вас.
Соглашение об использовании