Москва
Санкт-Петербург
+7 (495) 032-68-64 Продать объект Продать объект
Москва
Санкт-Петербург
О компании Аналитика Стать партнёром Карьера Контакты
Снежная д. 26 (Snezhnaya d. 26)
NF Group
NF Group
NF Group
NF Group
NF Expert
Наши эксперты ответят на все ваши вопросы
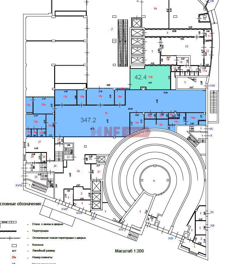
Планировка

Снежная д. 26, торговая площадь 347.2 м² - аренда

Свиблово
1 736 000
22 813
19 570
$
/мес.
Whatsapp
1 736 000
22 813
19 570
$
/мес.
ID r137420
 Ирина Козина
Ирина Козина
Директор направления стрит-ретейла
NF Group
Предложите нам свою цену, и мы свяжемся с вами

Характеристики

Об объекте

Тип сделки
Аренда
Стадия строительства
Построен
Площадь в аренду
347.20 м²
Витрины
Нет
Входная группа
Общий вход
НДС
не применим
Отделка
С отделкой

Адрес

Город Москва
Округ СВАО
Адрес Снежная ул., 26

Описание

Помещение на 1 этаже ТЦ Снежная, 26 в СВАО Москвы. 1 минута пешком до станции метро Свиблово. Активный трафик от метро. Возможность размещения рекламной вывески на фасаде ТЦ. На данный момент арендатор: Банк.
Помещение свободно с 01.04.2026 г.

Получите подробную презентацию объекта

NF Group

Инфраструктура

Все
Преимущества
Образование
Культура
Спорт
Инфраструктура
Мед. учреждения
NF Group
Выбирайте помещение на основе Big Data

Посмотрите похожие предложения

/
Б. Садовая, д. 6 стр.2, торговая площадь 243.0 м² - аренда
Москва Пресненский Большая Садовая ул., 6, стр. 2
1 700 000 ₽ в месяц
Свернуть
ID: r130648

Б. Садовая, д. 6 стр.2, торговая площадь 243.0 м² - аренда

Москва Пресненский Большая Садовая ул., 6, стр. 2
Маяковская
1 700 000 ₽ в месяц
Площадь 243 м²
Витрины
Мощность 100 кВт
WhatsApp Позвонить
Петровка д. 26 стр. 3, торговая площадь 200.8 м² - аренда
Москва Петровка ул., 26, стр. 3
1 800 000 ₽ в месяц
Свернуть
ID: r138048

Петровка д. 26 стр. 3, торговая площадь 200.8 м² - аренда

Москва Петровка ул., 26, стр. 3
Чеховская, Тверская, Пушкинская
1 800 000 ₽ в месяц
Площадь 200 м²
Мощность 76 кВт
WhatsApp Позвонить
Русаковская, 27, торговая площадь 1012.2 м² - аренда
Москва Русаковская улица, 27
1 800 000 ₽ в месяц
Свернуть
ID: r128502

Русаковская, 27, торговая площадь 1012.2 м² - аренда

Москва Русаковская улица, 27
Сокольники
1 800 000 ₽ в месяц
Площадь 1 012 м²
Витрины
Мощность 204 кВт
WhatsApp Позвонить
Цветной бульвар, д. 20, торговая площадь 210.5 м² - аренда
Москва Мещанский Цветной бульвар, д.20/1
1 800 000 ₽ в месяц
Свернуть
ID: r134211

Цветной бульвар, д. 20, торговая площадь 210.5 м² - аренда

Москва Мещанский Цветной бульвар, д.20/1
Цветной Бульвар, Трубная
1 800 000 ₽ в месяц
Площадь 210 м²
Мощность 100 кВт
WhatsApp Позвонить
Калашный переулок, 5, торговая площадь 169.0 м² - аренда
Москва Калашный пер, 5
1 690 000 ₽ в месяц
Свернуть
ID: r135341

Калашный переулок, 5, торговая площадь 169.0 м² - аренда

Москва Калашный пер, 5
Боровицкая, Библиотека имени Ленина, Арбатская, Александровский сад
1 690 000 ₽ в месяц
Площадь 169 м²
С отделкой
Мощность 100 кВт
WhatsApp Позвонить
Большая Дорогомиловская д. 1, торговая площадь 400.0 м² - аренда
Москва Большая Дорогомиловская ул., 1
1 775 000 ₽ в месяц
Свернуть
ID: r136345

Большая Дорогомиловская д. 1, торговая площадь 400.0 м² - аренда

Москва Большая Дорогомиловская ул., 1
Киевская
1 775 000 ₽ в месяц
Площадь 400 м²
С отделкой
WhatsApp Позвонить
БЦ Fili Residence, Кастанаевская, 16, к. 1, торговая площадь 248.0 м² - аренда
Москва Кастанаевская ул., 16, с1
1 550 000 ₽ в месяц
Свернуть
ID: r136140

БЦ Fili Residence, Кастанаевская, 16, к. 1, торговая площадь 248.0 м² - аренда

Москва Кастанаевская ул., 16, с1
Багратионовская
1 550 000 ₽ в месяц
Площадь 248 м²
WhatsApp Позвонить
Проспект Мира д. 48 стр. 6, торговая площадь 186.3 м² - аренда
Москва Мещанский Мира пр-кт, 48, стр. 6
1 500 000 ₽ в месяц
Свернуть
ID: r136065

Проспект Мира д. 48 стр. 6, торговая площадь 186.3 м² - аренда

Москва Мещанский Мира пр-кт, 48, стр. 6
Проспект Мира
1 500 000 ₽ в месяц
Площадь 186 м²
С отделкой
Мощность 50 кВт
WhatsApp Позвонить
Калужская пл. д.1 корп.1, торговая площадь 239.0 м² - аренда
Москва Калужская пл, 1, к. 1
1 550 000 ₽ в месяц
Свернуть
ID: r134213

Калужская пл. д.1 корп.1, торговая площадь 239.0 м² - аренда

Москва Калужская пл, 1, к. 1
Октябрьская
1 550 000 ₽ в месяц
Площадь 239 м²
WhatsApp Позвонить
Б.Тульская, д.2, торговая площадь 360.0 м² - аренда
Москва Большая Тульская ул., 2
1 800 000 ₽ в месяц
Свернуть
ID: r132226

Б.Тульская, д.2, торговая площадь 360.0 м² - аренда

Москва Большая Тульская ул., 2
Тульская
1 800 000 ₽ в месяц
Площадь 360 м²
Мощность 180 кВт
WhatsApp Позвонить
Нам доверяют во всем мире
Лидеры в сфере недвижимости
Управляющая компания года
В управлении 73 млн м² и 150 млрд инвестиций
Самая большая цитируемость в мире
Более 400 экспертов в России

Получите консультацию эксперта NF GROUP

Как вам удобнее общаться?
Ирина Козина
Ирина Козина
Директор направления стрит-ретейла
Ирина имеет 15-летний опыт работы в области недвижимости, в команде NF GROUP c февраля 2015 года, начав с должности консультанта.

Специализируется на работе с крупными российскими и иностранными компаниями-девелоперами, а также с частными собственниками и инвесторами.

На позиции директора направления Street Retail Ирина отвечает за сопровождение ключевых сделок по аренде и продаже помещений формата Street Retail, координацию работы департамента, взаимодействие с другими подразделениями компании.
NF Group
Авторизация
Мы используем файлы cookie, чтобы улучшить сервис для вас.
Соглашение об использовании