Москва
Санкт-Петербург
+7 (495) 032-68-64 Продать объект Продать объект
Москва
Санкт-Петербург
О компании Аналитика Стать партнёром Карьера Контакты
Никитский б-р. д. 6 (Nikitskijj b-r. d. 6)
NF Group
NF Group
NF Group
NF Group
NF Group
NF Expert
Наши эксперты ответят на все ваши вопросы
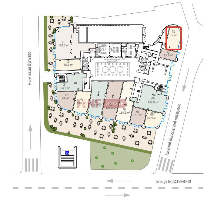
Планировка

Никитский б-р. д. 6, торговая площадь 63.2 м² - аренда

Боровицкая, Библиотека имени Ленина, Арбатская, Александровский сад
1 650 000
21 732
18 527
$
/мес.
Whatsapp
1 650 000
21 732
18 527
$
/мес.
ID r137109
 Ирина Козина
Ирина Козина
Директор направления стрит-ретейла
NF Group
Предложите нам свою цену, и мы свяжемся с вами

Характеристики

Об объекте

Тип сделки
Аренда
Стадия строительства
Построен
Площадь в аренду
63.20 м²
Витрины
Нет
Входная группа
Отдельный вход
НДС
не применим

О здании

Предложений в аренду
4
Площадь предложений
35.00 - 193.50 м²

Адрес

Город Москва
Округ ЦАО
Адрес Никитский б-р, 6
Объекты рядом

Описание

Помещение свободного назначения формата Street Retail в ЦАО Москвы. 4 минуты пешком до станции метро Арбатская. Клубный дом de luxe класса «Никитский 6», расположен на пересечении улицы Воздвиженка и Никитского бульвара. В пяти минутах ходьбы - Большая Никитская улица и район Патриарших прудов. В доме 57 квартир и четыре пентхауса.
Готовность декабрь 2025 г.-январь 2026 г.

Получите подробную презентацию объекта

NF Group

Инфраструктура

Все
Преимущества
Образование
Культура
Спорт
Инфраструктура
Мед. учреждения

Торговое помещение Никитский б-р. д. 6 (Nikitskijj b-r. d. 6)

Помещение свободного назначения формата Street Retail в ЦАО Москвы. 4 минуты пешком до станции метро Арбатская. Клубный дом de luxe класса «Никитский 6», расположен на пересечении улицы Воздвиженка и Никитского бульвара. В пяти минутах ходьбы - Большая Никитская улица и район Патриарших прудов. В доме 57 квартир и четыре пентхауса.
Готовность декабрь 2025 г.-январь 2026 г.
Предложений в аренду 4
Площадь предложений 35 - 194 м²
Подробнее
NF Group
NF Group
Выбирайте помещение на основе Big Data

Посмотрите похожие предложения

/
Кожевническая, д.22, торговая площадь 306.0 м² - аренда
Москва Даниловский Кожевническая ул., 22
1 500 000 ₽ в месяц
Свернуть
ID: r130112

Кожевническая, д.22, торговая площадь 306.0 м² - аренда

Москва Даниловский Кожевническая ул., 22
Павелецкая
1 500 000 ₽ в месяц
Площадь 306 м²
Мощность 280 кВт
WhatsApp Позвонить
Проспект Мира д. 48 стр. 6, торговая площадь 186.3 м² - аренда
Москва Мещанский Мира пр-кт, 48, стр. 6
1 500 000 ₽ в месяц
Свернуть
ID: r136065

Проспект Мира д. 48 стр. 6, торговая площадь 186.3 м² - аренда

Москва Мещанский Мира пр-кт, 48, стр. 6
Проспект Мира
1 500 000 ₽ в месяц
Площадь 186 м²
С отделкой
Мощность 50 кВт
WhatsApp Позвонить
Русаковская, 27, торговая площадь 1012.2 м² - аренда
Москва Русаковская улица, 27
1 800 000 ₽ в месяц
Свернуть
ID: r128502

Русаковская, 27, торговая площадь 1012.2 м² - аренда

Москва Русаковская улица, 27
Сокольники
1 800 000 ₽ в месяц
Площадь 1 012 м²
Витрины
Мощность 204 кВт
WhatsApp Позвонить
Калужская пл. д.1 корп.1, торговая площадь 239.0 м² - аренда
Москва Калужская пл, 1, к. 1
1 550 000 ₽ в месяц
Свернуть
ID: r134213

Калужская пл. д.1 корп.1, торговая площадь 239.0 м² - аренда

Москва Калужская пл, 1, к. 1
Октябрьская
1 550 000 ₽ в месяц
Площадь 239 м²
WhatsApp Позвонить
Калашный переулок, 5, торговая площадь 169.0 м² - аренда
Москва Калашный пер, 5
1 690 000 ₽ в месяц
Свернуть
ID: r135341

Калашный переулок, 5, торговая площадь 169.0 м² - аренда

Москва Калашный пер, 5
Боровицкая, Библиотека имени Ленина, Арбатская, Александровский сад
1 690 000 ₽ в месяц
Площадь 169 м²
С отделкой
Мощность 100 кВт
WhatsApp Позвонить
Большая Дорогомиловская д. 1, торговая площадь 400.0 м² - аренда
Москва Большая Дорогомиловская ул., 1
1 775 000 ₽ в месяц
Свернуть
ID: r136345

Большая Дорогомиловская д. 1, торговая площадь 400.0 м² - аренда

Москва Большая Дорогомиловская ул., 1
Киевская
1 775 000 ₽ в месяц
Площадь 400 м²
С отделкой
WhatsApp Позвонить
БЦ Fili Residence, Кастанаевская, 16, к. 1, торговая площадь 248.0 м² - аренда
Москва Кастанаевская ул., 16, с1
1 550 000 ₽ в месяц
Свернуть
ID: r136140

БЦ Fili Residence, Кастанаевская, 16, к. 1, торговая площадь 248.0 м² - аренда

Москва Кастанаевская ул., 16, с1
Багратионовская
1 550 000 ₽ в месяц
Площадь 248 м²
WhatsApp Позвонить
ЖК A-Residence, Садовническая д. 82, торговая площадь 283.0 м² - аренда
Москва Садовническая ул., 82
1 761 204 ₽ в месяц
Свернуть
ID: r138194

ЖК A-Residence, Садовническая д. 82, торговая площадь 283.0 м² - аренда

Москва Садовническая ул., 82
Павелецкая
1 761 204 ₽ в месяц
Площадь 283 м²
WhatsApp Позвонить
Снежная д. 26, торговая площадь 347.2 м² - аренда
Москва Снежная ул., 26
1 736 000 ₽ в месяц
Свернуть
ID: r137420

Снежная д. 26, торговая площадь 347.2 м² - аренда

Москва Снежная ул., 26
Свиблово
1 736 000 ₽ в месяц
Площадь 347 м²
С отделкой
WhatsApp Позвонить
Б. Садовая, д. 6 стр.2, торговая площадь 243.0 м² - аренда
Москва Пресненский Большая Садовая ул., 6, стр. 2
1 700 000 ₽ в месяц
Свернуть
ID: r130648

Б. Садовая, д. 6 стр.2, торговая площадь 243.0 м² - аренда

Москва Пресненский Большая Садовая ул., 6, стр. 2
Маяковская
1 700 000 ₽ в месяц
Площадь 243 м²
Витрины
Мощность 100 кВт
WhatsApp Позвонить
Нам доверяют во всем мире
Лидеры в сфере недвижимости
Управляющая компания года
В управлении 73 млн м² и 150 млрд инвестиций
Самая большая цитируемость в мире
Более 400 экспертов в России

Получите консультацию эксперта NF GROUP

Как вам удобнее общаться?
Ирина Козина
Ирина Козина
Директор направления стрит-ретейла
Ирина имеет 15-летний опыт работы в области недвижимости, в команде NF GROUP c февраля 2015 года, начав с должности консультанта.

Специализируется на работе с крупными российскими и иностранными компаниями-девелоперами, а также с частными собственниками и инвесторами.

На позиции директора направления Street Retail Ирина отвечает за сопровождение ключевых сделок по аренде и продаже помещений формата Street Retail, координацию работы департамента, взаимодействие с другими подразделениями компании.
NF Group
Авторизация
Мы используем файлы cookie, чтобы улучшить сервис для вас.
Соглашение об использовании