Москва
Санкт-Петербург
+7 (495) 032-68-64 Продать объект Продать объект
Москва
Санкт-Петербург
О компании Аналитика Стать партнёром Карьера Контакты
Никитский б-р. д. 6 (Nikitskijj b-r. d. 6)
NF Group
NF Group
NF Group
NF Group
NF Group
NF Expert
Наши эксперты ответят на все ваши вопросы
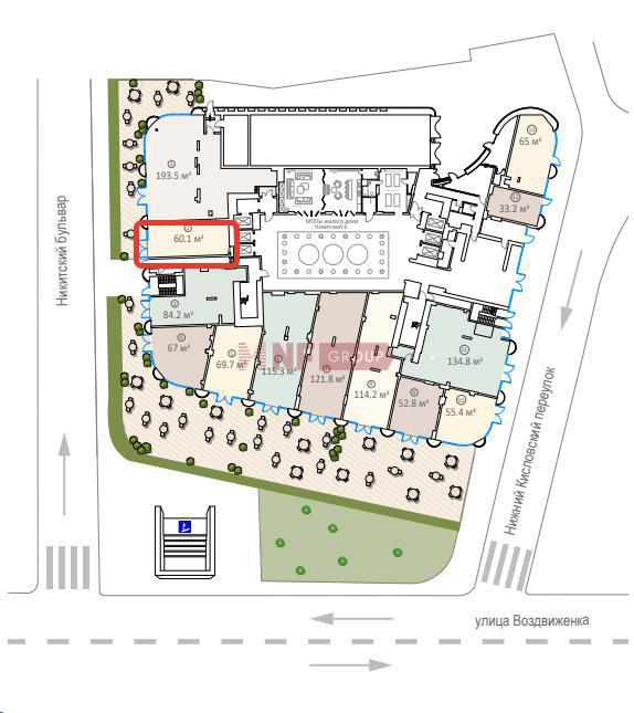
Планировка

Никитский б-р. д. 6, торговая площадь 60.1 м² - аренда

Боровицкая, Библиотека имени Ленина, Арбатская, Александровский сад
1 900 000
25 024
21 334
$
/мес.
Whatsapp
1 900 000
25 024
21 334
$
/мес.
ID r137102
 Ирина Козина
Ирина Козина
Директор направления стрит-ретейла
NF Group
Предложите нам свою цену, и мы свяжемся с вами

Характеристики

Об объекте

Тип сделки
Аренда
Стадия строительства
Построен
Площадь в аренду
60.10 м²
Витрины
Нет
Входная группа
Отдельный вход
НДС
не применим

О здании

Предложений в аренду
4
Площадь предложений
35.00 - 193.50 м²

Адрес

Город Москва
Округ ЦАО
Адрес Никитский б-р, 6
Объекты рядом

Описание

Помещение свободного назначения формата Street Retail в ЦАО Москвы. 4 минуты пешком до станции метро Арбатская. Клубный дом de luxe класса «Никитский 6», расположен на пересечении улицы Воздвиженка и Никитского бульвара. В пяти минутах ходьбы - Большая Никитская улица и район Патриарших прудов. В доме 57 квартир и четыре пентхауса.
Готовность декабрь 2025 г.-январь 2026 г.

Получите подробную презентацию объекта

NF Group

Инфраструктура

Все
Преимущества
Образование
Культура
Спорт
Инфраструктура
Мед. учреждения

Торговое помещение Никитский б-р. д. 6 (Nikitskijj b-r. d. 6)

Помещение свободного назначения формата Street Retail в ЦАО Москвы. 4 минуты пешком до станции метро Арбатская. Клубный дом de luxe класса «Никитский 6», расположен на пересечении улицы Воздвиженка и Никитского бульвара. В пяти минутах ходьбы - Большая Никитская улица и район Патриарших прудов. В доме 57 квартир и четыре пентхауса.
Готовность декабрь 2025 г.-январь 2026 г.
Предложений в аренду 4
Площадь предложений 35 - 194 м²
Подробнее
NF Group
NF Group
Выбирайте помещение на основе Big Data

Посмотрите похожие предложения

/
Русаковская, 27, торговая площадь 1012.2 м² - аренда
Москва Русаковская улица, 27
1 800 000 ₽ в месяц
Свернуть
ID: r128502

Русаковская, 27, торговая площадь 1012.2 м² - аренда

Москва Русаковская улица, 27
Сокольники
1 800 000 ₽ в месяц
Площадь 1 012 м²
Витрины
Мощность 204 кВт
WhatsApp Позвонить
Калашный переулок, 5, торговая площадь 169.0 м² - аренда
Москва Калашный пер, 5
1 690 000 ₽ в месяц
Свернуть
ID: r135341

Калашный переулок, 5, торговая площадь 169.0 м² - аренда

Москва Калашный пер, 5
Боровицкая, Библиотека имени Ленина, Арбатская, Александровский сад
1 690 000 ₽ в месяц
Площадь 169 м²
С отделкой
Мощность 100 кВт
WhatsApp Позвонить
Большая Дорогомиловская д. 1, торговая площадь 400.0 м² - аренда
Москва Большая Дорогомиловская ул., 1
1 775 000 ₽ в месяц
Свернуть
ID: r136345

Большая Дорогомиловская д. 1, торговая площадь 400.0 м² - аренда

Москва Большая Дорогомиловская ул., 1
Киевская
1 775 000 ₽ в месяц
Площадь 400 м²
С отделкой
WhatsApp Позвонить
ЖК A-Residence, Садовническая д. 82, торговая площадь 283.0 м² - аренда
Москва Садовническая ул., 82
1 761 204 ₽ в месяц
Свернуть
ID: r138194

ЖК A-Residence, Садовническая д. 82, торговая площадь 283.0 м² - аренда

Москва Садовническая ул., 82
Павелецкая
1 761 204 ₽ в месяц
Площадь 283 м²
WhatsApp Позвонить
Никитский б-р. д. 6, торговая площадь 63.2 м² - аренда
Москва Никитский б-р, 6
1 650 000 ₽ в месяц
Свернуть
ID: r137109

Никитский б-р. д. 6, торговая площадь 63.2 м² - аренда

Москва Никитский б-р, 6
Боровицкая, Библиотека имени Ленина, Арбатская, Александровский сад
1 650 000 ₽ в месяц
Площадь 63 м²
WhatsApp Позвонить
Снежная д. 26, торговая площадь 347.2 м² - аренда
Москва Снежная ул., 26
1 736 000 ₽ в месяц
Свернуть
ID: r137420

Снежная д. 26, торговая площадь 347.2 м² - аренда

Москва Снежная ул., 26
Свиблово
1 736 000 ₽ в месяц
Площадь 347 м²
С отделкой
WhatsApp Позвонить
Вильгельма Пика, 14, торговая площадь 540.0 м² - аренда
Москва Останкинский Вильгельма Пика улица, 14
1 996 666 ₽ в месяц
Свернуть
ID: r125705

Вильгельма Пика, 14, торговая площадь 540.0 м² - аренда

Москва Останкинский Вильгельма Пика улица, 14
Ботанический Сад
1 996 666 ₽ в месяц
Площадь 540 м²
WhatsApp Позвонить
Новослободская, д.19, торговая площадь 265.4 м² - аренда
Москва Тверской Новослободская ул., 19, стр. 1
1 975 000 ₽ в месяц
Свернуть
ID: r130616

Новослободская, д.19, торговая площадь 265.4 м² - аренда

Москва Тверской Новослободская ул., 19, стр. 1
Новослободская, Менделеевская
1 975 000 ₽ в месяц
Площадь 265 м²
Витрины
Мощность 70 кВт
WhatsApp Позвонить
Петровка д. 26 стр. 3, торговая площадь 200.8 м² - аренда
Москва Петровка ул., 26, стр. 3
1 800 000 ₽ в месяц
Свернуть
ID: r138048

Петровка д. 26 стр. 3, торговая площадь 200.8 м² - аренда

Москва Петровка ул., 26, стр. 3
Чеховская, Тверская, Пушкинская
1 800 000 ₽ в месяц
Площадь 200 м²
Мощность 76 кВт
WhatsApp Позвонить
Б. Садовая, д. 6 стр.2, торговая площадь 243.0 м² - аренда
Москва Пресненский Большая Садовая ул., 6, стр. 2
1 700 000 ₽ в месяц
Свернуть
ID: r130648

Б. Садовая, д. 6 стр.2, торговая площадь 243.0 м² - аренда

Москва Пресненский Большая Садовая ул., 6, стр. 2
Маяковская
1 700 000 ₽ в месяц
Площадь 243 м²
Витрины
Мощность 100 кВт
WhatsApp Позвонить
Нам доверяют во всем мире
Лидеры в сфере недвижимости
Управляющая компания года
В управлении 73 млн м² и 150 млрд инвестиций
Самая большая цитируемость в мире
Более 400 экспертов в России

Получите консультацию эксперта NF GROUP

Как вам удобнее общаться?
Ирина Козина
Ирина Козина
Директор направления стрит-ретейла
Ирина имеет 15-летний опыт работы в области недвижимости, в команде NF GROUP c февраля 2015 года, начав с должности консультанта.

Специализируется на работе с крупными российскими и иностранными компаниями-девелоперами, а также с частными собственниками и инвесторами.

На позиции директора направления Street Retail Ирина отвечает за сопровождение ключевых сделок по аренде и продаже помещений формата Street Retail, координацию работы департамента, взаимодействие с другими подразделениями компании.
NF Group
Авторизация
Мы используем файлы cookie, чтобы улучшить сервис для вас.
Соглашение об использовании