+7 (495) 032-68-64 Продать объект Продать объект
О компании Аналитика Стать партнёром Карьера Контакты
Ленинский, д.78
NF Group
NF Group
NF Group
NF Group
NF Group
NF Expert
Наши эксперты ответят на все ваши вопросы
Планировки

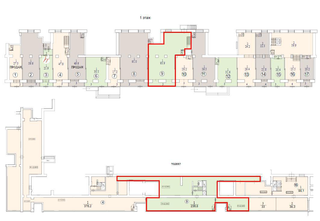
Ленинский, д.78, торговая площадь 307.2 м² - аренда

Университет
650 000
8 354
7 162
$
/мес.
650 000
8 354
7 162
$
/мес.
ID r129955
 Ирина Козина
Ирина Козина
Директор направления стрит-ретейла
NF Group
Предложите нам свою цену, и мы свяжемся с вами

Характеристики

Об объекте

Тип сделки
Аренда
Стадия строительства
Построен
Площадь в аренду
307.20 м²
Витрины
Да
Входная группа
отдельный вход
Арендатор
Цимлянские вина
Окупаемость
10 лет
НДС
включен
Высота потолков
от 2.6 до 4.6 м
Мощность электроэнергии
25 кВт

Адрес

Город Москва
Округ ЮЗАО
Район Ломоносовский
Адрес Ленинский пр-кт, 78
Объекты рядом

Описание

Помещения свободного назначения на 1-й фасадной линии Ленинского проспекта, одной из крупнейших магистралей города. В Гагаринском районе, входящем в состав ЮЗАО, исторически относящемуся к числу самых развитых и престижных столичных районов, проживает более 78 тысяч человек.
Перед помещениями расположен наземный пешеходный переход и остановки общественного транспорта. Помещения отлично визуализированы.
Вдоль фасада городская парковка.
Высокий рекламный потенциал.
Отдельный вход.
Панорамные витрины.
НДС 22% включены в ставку аренды.

Получите подробную презентацию объекта

NF Group

Инфраструктура района

Образование
Филиалы МГПУ, более 20 частных и государственных общеобразовательных школ, киношкола
Инфраструктура
4 салона красоты; большой выбор продуктовых супермаркетов; в ближайшем доступе 3 крупных ТРЦ
Культура
Храм Святых мучениц Веры Надежды и Любови и Матери Их Софии; 3 кинотеатра
Преимущества
Развитая социальная инфраструктура; удобная транспортная сеть; сквер, Удальцовские пруды и Народный парк на территории района; поблизости находится живописный Воронцовский парк (соседний район Новые Черемушки)
Спорт
9 фитнес-клубов с бассейнами и банными комплексами
Мед. учреждения
5 государственных поликлиник, несколько частных клиник и стоматологий
Все
Преимущества
Образование
Культура
Спорт
Инфраструктура
Мед. учреждения
NF Group
Выбирайте помещение на основе Big Data

Посмотрите похожие предложения

/
Башня Федерация, торговая площадь 92.0 м² - аренда
Москва Пресненский Пресненская набережная, 12
673 440 ₽ в месяц
Свернуть
ID: r132211

Башня Федерация, торговая площадь 92.0 м² - аренда

Москва Пресненский Пресненская набережная, 12
Деловой центр, Выставочная
673 440 ₽ в месяц
Площадь 92 м²
ЖК A-Residence, Садовническая д. 82, торговая площадь 102.3 м² - аренда
Москва Садовническая ул., 82
700 039 ₽ в месяц
Свернуть
ID: r138186

ЖК A-Residence, Садовническая д. 82, торговая площадь 102.3 м² - аренда

Москва Садовническая ул., 82
Павелецкая
700 039 ₽ в месяц
Площадь 102 м²
ЖК FORIVER, торговая площадь 139.7 м² - аренда
Москва Даниловский Симоновская наб, 3, к. 2
647 077 ₽ в месяц
Свернуть
ID: r131832

ЖК FORIVER, торговая площадь 139.7 м² - аренда

Москва Даниловский Симоновская наб, 3, к. 2
Автозаводская, Автозаводская
647 077 ₽ в месяц
Площадь 139 м²
Мощность 42 кВт
Земляной Вал, д. 25 , торговая площадь 65.1 м² - аренда
Москва Земляной Вал улица, 25
710 000 ₽ в месяц
Свернуть
ID: r133489

Земляной Вал, д. 25 , торговая площадь 65.1 м² - аренда

Москва Земляной Вал улица, 25
Чкаловская, Курская
710 000 ₽ в месяц
Площадь 65 м²
Витрины
Земляной Вал, д. 25 , торговая площадь 49.9 м² - аренда
Москва Земляной Вал улица, 25
720 000 ₽ в месяц
Свернуть
ID: r133490

Земляной Вал, д. 25 , торговая площадь 49.9 м² - аренда

Москва Земляной Вал улица, 25
Чкаловская, Курская
720 000 ₽ в месяц
Площадь 49 м²
Витрины
Земляной Вал, д. 25 , торговая площадь 61.2 м² - аренда
Москва Земляной Вал улица, 25
670 000 ₽ в месяц
Свернуть
ID: r133577

Земляной Вал, д. 25 , торговая площадь 61.2 м² - аренда

Москва Земляной Вал улица, 25
Чкаловская, Курская
670 000 ₽ в месяц
Площадь 61 м²
Земляной Вал, д. 25 , торговая площадь 64.4 м² - аренда
Москва Земляной Вал улица, 25
690 000 ₽ в месяц
Свернуть
ID: r133578

Земляной Вал, д. 25 , торговая площадь 64.4 м² - аренда

Москва Земляной Вал улица, 25
Чкаловская, Курская
690 000 ₽ в месяц
Площадь 64 м²
Ленинградский пр-т, д.33к3, торговая площадь 53.7 м² - аренда
Москва Сокол Ленинградский пр-кт, 33, к. 3
740 000 ₽ в месяц
Свернуть
ID: r131510

Ленинградский пр-т, д.33к3, торговая площадь 53.7 м² - аренда

Москва Сокол Ленинградский пр-кт, 33, к. 3
Петровский парк, Динамо
740 000 ₽ в месяц
Площадь 53 м²
Витрины
ТЦ МАРТ, Большая Семеновская, д.17а, торговая площадь 101.3 м² - аренда
Москва Преображенское Большая Семёновская ул., 17А
675 000 ₽ в месяц
Свернуть
ID: r131124

ТЦ МАРТ, Большая Семеновская, д.17а, торговая площадь 101.3 м² - аренда

Москва Преображенское Большая Семёновская ул., 17А
Электрозаводская
675 000 ₽ в месяц
Площадь 101 м²
ЖК Хэдлайнер
Москва
от 741 625 ₽ в месяц
Свернуть
ID: r134742

ЖК Хэдлайнер

Москва
от 741 625 ₽ в месяц
Площадь 104 - 2 688 м²
Нам доверяют во всем мире
Лидеры в сфере недвижимости
Управляющая компания года
В управлении 73 млн м² и 150 млрд инвестиций
Самая большая цитируемость в мире
Более 400 экспертов в России

Получите консультацию эксперта NF GROUP

Как вам удобнее общаться?
Ирина Козина
Ирина Козина
Директор направления стрит-ретейла
Ирина имеет 15-летний опыт работы в области недвижимости, в команде NF GROUP c февраля 2015 года, начав с должности консультанта.

Специализируется на работе с крупными российскими и иностранными компаниями-девелоперами, а также с частными собственниками и инвесторами.

На позиции директора направления Street Retail Ирина отвечает за сопровождение ключевых сделок по аренде и продаже помещений формата Street Retail, координацию работы департамента, взаимодействие с другими подразделениями компании.
NF Group
Авторизация
Мы используем файлы cookie, чтобы улучшить сервис для вас.
Соглашение об использовании