+7 (495) 032-68-64 Продать объект Продать объект
О компании Аналитика Стать партнёром Карьера Контакты
Северное Сияние (Northern Lights)
NF Group
NF Group
NF Group
NF Group
NF Group
NF Group
NF Group
NF Group
NF Group
NF Group
NF Group
NF Group
NF Group
NF Group
NF Group
NF Group
NF Group
NF Group
NF Group
NF Group
NF Expert
Наши эксперты ответят на все ваши вопросы
Без комиссии

Бизнес-центр Северное Сияние

Савёловская
от 54 000
от 2 943 950  ₽ / мес.
от 690
от 37 633  $ / мес.
от 586
от 31 966  € / мес.
$
за м²/год
Предложения доступны только для аренды
Whatsapp
от 54 000
от 2 943 950  ₽ / мес.
от 690
от 37 633  $ / мес.
от 586
от 31 966  € / мес.
$
за м²/год
ID os3903
Предложения доступны только для аренды
 Елена Акатова
Елена Акатова
Директор направления по работе с офисными зданиями

Описание «Северное Сияние (Northern Lights)»

Бизнес-центр "Северное сияние" находится в активно развивающемся деловом кластере на севере Москвы р-н Беговой внутри ТТК. В непосредственной близости расположен Савеловский вокзал и станции метро Савеловская, дорога до которой займет не более 5 минут пешком. В окружении формируется качественная инфраструктура в виде услуг для бизнеса и быта. Дополнительным преимуществом объекта является транспортная доступность и удобство выезда к основным магистралям Севера и Севера Запада. В 2018 году проведена реновация общих зон.

Подберите офис в БЦ Северное Сияние (Northern Lights)

Арендовать
в месяц
м²
Отделка
С отделкой
Под отделку
Объектов: 3
Сначала с большей площадью
Сначала с меньшей площадью
Сначала дороже
Сначала дешевле
По актуальности
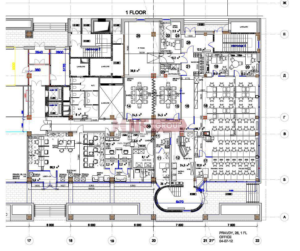
Офис от 607.00 м² от 2 943 950 ₽ 3
kf-expert
Офис 607 м² этаж -1-1 из 16 С отделкой 2 943 950 ₽ /мес.
58 200 ₽ м²/год
kf-expert
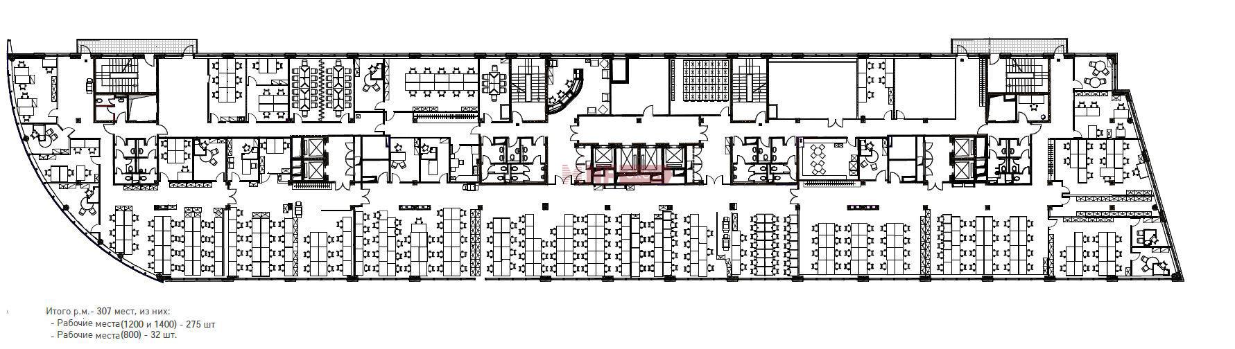
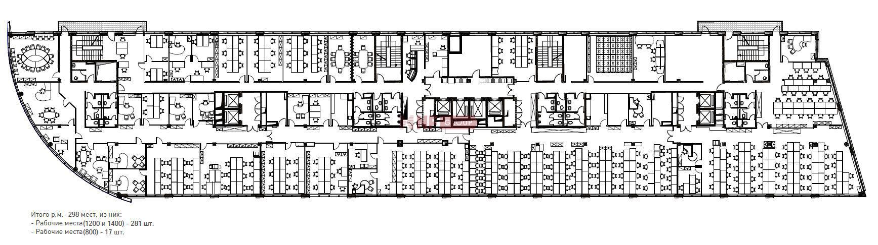
Офис 2279 м² этаж 8 из 16 С отделкой 10 255 500 ₽ /мес.
54 000 ₽ м²/год
kf-expert
Офис 2279 м² этаж 9 из 16 С отделкой 10 255 500 ₽ /мес.
54 000 ₽ м²/год

Характеристики Северное Сияние (Northern Lights)

Адрес

Город Москва
Округ САО
Район Беговой
Адрес Правды улица, 26

О бизнес-центре

Тип здания
Бизнес-центр
Отделка
Есть
Тип сделки
Аренда
Класс
A
Площадь здания
39000 м²
Количество доступных блоков в аренду
3
Площадь блоков в аренду
607 - 5 165 м²
Год строительства
2006
Этажность
16
Лифты
8
Планировка
смешанная
Парковочный коэффициент
1/140
НДС
включен
Операционные расходы
включены в арендную плату

Дополнительные характеристики

Доступ 24/7

Получите подробную презентацию объекта

NF Group

Инфраструктура района

Образование
7 общеобразовательных школ, кадетская школа, Цирковое училище им. Румянцева, Московский международный университет
Инфраструктура
На границе района расположен один из крупнейших ТРЦ в Европе – «Авиапарк»; несколько современных бизнес-центров
Культура
Храм иконы Божией Матери «Отрада и утешение», 11 театров, в том числе театр-киностудия «Чердак», конный театр «Ника», Театр Классического Балета и др., 10 кинотеатров, 13 библиотек, Центральный Московский Ипподром, Музей русского импрессионизма, Китайский культурный центр, МШИ Перотти
Преимущества
Развитая социальная инфраструктура; удобное расположение (недалеко от Тверской, центра и «Москвы-Сити»); прямая дорога к аэропорту Шереметьево
Спорт
Несколько крупных фитнес-клубов с бассейнами, академия единоборств
Мед. учреждения
Большой выбор многопрофильных и узкоспециализированных частных медцентров, в том числе центр репродукции, клиника лечения волос и центр инновационной косметологии; более 20 стоматологий
Все
Преимущества
Образование
Культура
Спорт
Инфраструктура
Мед. учреждения
5 минут пешком
Метро Савеловская
10 минут пешком
Бизнес-центр Фактория
11 минут пешком
Бутырский рынок
11 минут пешком
Фитнес-клуб Мегаполис
12 минут пешком
Radisson Blu Belorusskaya Hotel Moscow
3 минуты на автомобиле
Бутырская улица
NF Group
Профессиональные услуги по представлению интересов арендаторов

Получите консультацию Елены

Как вам удобнее общаться?
Елена Акатова
Елена Акатова
Директор направления по работе с офисными зданиями
⠀⠀⠀⠀⠀⠀⠀⠀⠀

Посмотрите похожие предложения

/
Без комиссии
Бизнес-центр Монарх
САО Беговой Ленинградский пр-кт, 31А, стр. 1
от 44 000 ₽ м² в год
Свернуть
ID: os7579

Бизнес-центр Монарх

САО Беговой Ленинградский пр-кт, 31А, стр. 1
от 44 000 ₽ м² в год
152 900 м²
С отделкой
Класс A
Магистраль TTK
WhatsApp Позвонить
Без комиссии
Бизнес-центр Stone Towers (Башня С)
САО Беговой проезд Бумажный, 19
от 45 000 ₽ м² в год
Свернуть
ID: os42776

Бизнес-центр Stone Towers (Башня С)

САО Беговой проезд Бумажный, 19
от 45 000 ₽ м² в год
10 116 м²
Без отделки
Класс A
Магистраль TTK
WhatsApp Позвонить
Без комиссии
Бизнес-центр Большевик
САО Беговой Ленинградский проспект, 15
от 55 000 ₽ м² в год
Свернуть
ID: os26317

Бизнес-центр Большевик

САО Беговой Ленинградский проспект, 15
Белорусская
от 55 000 ₽ м² в год
56 000 м²
Без отделки
Класс A
Магистраль TTK
WhatsApp Позвонить

Вы смотрели

/
Без комиссии
Сдается офис 302 м², 7 этаж - Северное Сияние
САО Беговой Правды улица, 26
792 750 ₽ в месяц
NF Group
Авторизация
Мы используем файлы cookie, чтобы улучшить сервис для вас.
Соглашение об использовании