Москва
Санкт-Петербург
+7 (495) 032-68-64 Продать объект Продать объект
Москва
Санкт-Петербург
О компании Аналитика Стать партнёром Карьера Контакты
Деловой Дуэт
NF Group
NF Group
NF Group
NF Group
NF Group
NF Group
NF Group
NF Group
NF Group
NF Group
NF Group
NF Group
NF Group
NF Group
NF Group
NF Group
NF Group
NF Group
NF Group
NF Group
NF Group
NF Group
NF Expert
Наши эксперты ответят на все ваши вопросы
Только в NF GROUP Без комиссии

Офис 21 166 м², 1-8 этаж - Деловой Дуэт

Сокольники
25 000
44 095 833  ₽ / мес.
302
533 793  $ / мес.
258
455 232  € / мес.
$
за м²/год
Whatsapp
25 000
44 095 833  ₽ / мес.
302
533 793  $ / мес.
258
455 232  € / мес.
$
за м²/год
ID ol47892
 Оксана Черкашина
Оксана Черкашина
Заместитель директора по работе с офисными зданиями
NF Group
Предложите нам свою цену, и мы свяжемся с вами

Описание

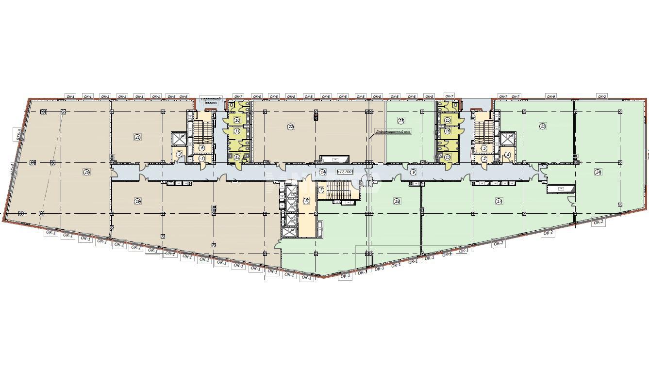
NF Group предлагает новый эксклюзивный бизнес-центр «Деловой Дуэт» БЦ «Деловой Дуэт» состоит из двух независимых строений, с подземной и наземной парковками, разместившихся на территории 1 га. Помещения идеально подойдут под размещение современного офиса компаний, а также научно-исследовательских лабораторий и шоу-румов. АРЕНДА - блоки: • Комплекс из 2-х зданий - 23 670 м2 • Здание 1 – 17 672 м2 • Здание 2 – 5 999 м2 (моно-арендатор) • Блоки - от 1800 м2 ПРОДАЖА - блоки: • Комплекс из 2-х зданий - 28 750 м2 • Здание 1- 21 166 м2 (с учетом парковки) • Здание 2 - 7584 м2 (с учетом парковки) О ПРОЕКТЕ • Этажность: Здание 1 – 7 этажей, Здание 2 – 8 этажей • Состояние помещений: Shell&Core • Отделка: выполнение ремонта под арендатора обсуждается • ЗОС – 1 квартал 2025 • Высокие потолки - от 4 м до 5,5 м • Эффективная планировка этажа • Нагрузка на перекрытия от 750 кг/м² • Подземная парковка на 142 места • Наземная парковка на 50 мест • Ближайшая станция метро Сокольники и БКЛ в 10 минутах ходьбы

Характеристики

Адрес

Город Москва
Округ ВАО
Район Сокольники
Адрес Шумкина ул., 14, стр. 13

Об объекте

Тип сделки
Аренда
Эксклюзивный объект
Да
Класс
B+
Площадь блока
21166 м²
Год строительства
2024
Этаж
1-8
Напольное покрытие
Пол с антипылевым покрытием
Высота потолков
4 м
Нагрузка на пол
1 м
Электроснабжение
1600.00
Электричество
1 600 кВт/ч
Планировка
смешанная
Парковочный коэффициент
1/160
НДС
включен
Операционные расходы
включены в арендную плату

О здании

Тип здания
Бизнес-центр
Этажность
8
Общая площадь
28 750 м²
Предложений в аренду
2
Площадь предложений в аренду
7 584 - 86 250 м²

В стоимость включено

Wi-Fi

Все предложения в категориях

Аренда коммерческой недвижимости - Реутов 1393 Аренда коммерческой недвижимости - Одинцово 1393 Аренда коммерческой недвижимости - Дзержинский 1393 Аренда коммерческой недвижимости - Домодедово 1393 Аренда коммерческой недвижимости - Хоругвино 1393 Аренда коммерческой недвижимости - Красноярск 1393 Аренда коммерческой недвижимости - Дубна 1393 Аренда коммерческой недвижимости - Томилино 1393 Аренда коммерческой недвижимости - Железнодорожный 1393 Аренда коммерческой недвижимости - Солнечногорск 1393 Аренда коммерческой недвижимости - Ступино 1393 Аренда коммерческой недвижимости - Троицк 1393 Аренда коммерческой недвижимости - Фрязино 1393 Аренда коммерческой недвижимости - Лобня 1393 Аренда коммерческой недвижимости - Краснодар 1393 Аренда коммерческой недвижимости - Пушкино 1393 Аренда коммерческой недвижимости - Зеленоград 1393 Аренда коммерческой недвижимости - Павловский Посад 1393 Аренда коммерческой недвижимости - Лыткарино 1393 Аренда коммерческой недвижимости - Саларьево 1393 Аренда коммерческой недвижимости - Подольск 1393 Аренда коммерческой недвижимости - Шолохово 1393 Аренда коммерческой недвижимости - Реутов 1393 Аренда коммерческой недвижимости - Липецк 1393 Аренда коммерческой недвижимости - Подольск 1393 Аренда коммерческой недвижимости - Чехов 1393 Аренда коммерческой недвижимости - Горки 1393 Аренда коммерческой недвижимости в Москве 1393 Аренда коммерческой недвижимости - Московская область 1393 Аренда коммерческой недвижимости - Бердск 1393 Аренда коммерческой недвижимости - Дубна 1393 Аренда коммерческой недвижимости - Красногорск 1393 Аренда коммерческой недвижимости - Кстово 1393 Аренда коммерческой недвижимости - Липецк 1393 Аренда коммерческой недвижимости - Московская область 1393 Аренда коммерческой недвижимости - Ногинск 1393 Аренда коммерческой недвижимости - Новосёлки 1393 Аренда коммерческой недвижимости - Павловский Посад 1393 Аренда коммерческой недвижимости - Ромашково 1393 Аренда коммерческой недвижимости - Улан-Удэ 1393 Аренда коммерческой недвижимости - Железнодорожный 1393 Аренда коммерческой недвижимости - Балашиха 1393 Аренда коммерческой недвижимости - Тульская область 1393 Аренда коммерческой недвижимости - Истра 1393 Аренда коммерческой недвижимости - Домодедово 1393 Аренда коммерческой недвижимости - Ангарск 1393 Аренда коммерческой недвижимости - Фрязино 1393 Аренда коммерческой недвижимости - Химки 1393 Аренда коммерческой недвижимости - Иркутск 1393 Аренда коммерческой недвижимости - Кстово 1393 Аренда коммерческой недвижимости - Истра 1393 Аренда коммерческой недвижимости - Курган 1393 Аренда коммерческой недвижимости - Новосёлки 1393 Аренда коммерческой недвижимости - Солнечногорск 1393 Аренда коммерческой недвижимости - Ворсино 1393 Аренда коммерческой недвижимости - Звенигород 1393 Аренда коммерческой недвижимости - Видное 1393 Аренда коммерческой недвижимости - Иркутск 1393 Аренда коммерческой недвижимости - Киров 1393 Аренда коммерческой недвижимости - Среднеуральск 1393 Аренда коммерческой недвижимости - Климовск 1393 Аренда коммерческой недвижимости - Краснодар 1393 Аренда коммерческой недвижимости - Сочи 1393 Аренда коммерческой недвижимости - Пермь 1393 Аренда коммерческой недвижимости - Балашиха 1393 Аренда коммерческой недвижимости - Энгельс 1393 Аренда коммерческой недвижимости - Казань 1393 Аренда коммерческой недвижимости - Клин 1393 Аренда коммерческой недвижимости - Коледино 1393 Аренда коммерческой недвижимости - Мытищи 1393 Аренда коммерческой недвижимости - Новосибирск 1393 Аренда коммерческой недвижимости - Одинцово 1393 Аренда коммерческой недвижимости - Екатеринбург 1393 Аренда коммерческой недвижимости - Саларьево 1393 Аренда коммерческой недвижимости - Химки 1393 Аренда коммерческой недвижимости - Красноярск 1393 Аренда коммерческой недвижимости - Кудрово 1393 Аренда коммерческой недвижимости - Самара 1393 Аренда коммерческой недвижимости - Троицк 1393 Аренда коммерческой недвижимости в Москве 1393 Аренда коммерческой недвижимости - Коледино 1393 Аренда коммерческой недвижимости - Тульская область 1393 Аренда коммерческой недвижимости - Казань 1393 Аренда коммерческой недвижимости - Пушкино 1393 Аренда коммерческой недвижимости - Котельники 1393 Аренда коммерческой недвижимости - Клин 1393 Аренда коммерческой недвижимости - Долгопрудный 1393 Аренда коммерческой недвижимости - Климовск 1393 Аренда коммерческой недвижимости - Ангарск 1393 Аренда коммерческой недвижимости - Екатеринбург 1393 Аренда коммерческой недвижимости - Киров 1393 Аренда коммерческой недвижимости - Кудрово 1393 Аренда коммерческой недвижимости - Чехов 1393 Аренда коммерческой недвижимости - Лобня 1393 Аренда коммерческой недвижимости - Дзержинский 1393 Аренда коммерческой недвижимости - Ростов-на-Дону 1393 Аренда коммерческой недвижимости - Люберцы 1393 Аренда коммерческой недвижимости - Самара 1393 Аренда коммерческой недвижимости - Шолохово 1393 Аренда коммерческой недвижимости - Среднеуральск 1393 Аренда коммерческой недвижимости - Мытищи 1393 Аренда коммерческой недвижимости - Ступино 1393 Аренда коммерческой недвижимости - Томилино 1393 Аренда коммерческой недвижимости - Новосибирск 1393 Аренда коммерческой недвижимости - Щелково 1393 Аренда коммерческой недвижимости - Ворсино 1393 Аренда коммерческой недвижимости - Ромашково 1393 Аренда коммерческой недвижимости - Жуковский 1393 Аренда коммерческой недвижимости - Звенигород 1393 Аренда коммерческой недвижимости - Ростов-на-Дону 1393 Аренда коммерческой недвижимости - Видное 1393 Аренда коммерческой недвижимости - Щелково 1393 Аренда коммерческой недвижимости - Энгельс 1393 Аренда коммерческой недвижимости - Королев 1393 Аренда коммерческой недвижимости - Жуковский 1393 Аренда коммерческой недвижимости - Горки 1393 Аренда коммерческой недвижимости - Люберцы 1393 Аренда коммерческой недвижимости - Хоругвино 1393 Аренда коммерческой недвижимости - Долгопрудный 1393 Аренда коммерческой недвижимости - Ногинск 1393 Аренда коммерческой недвижимости - Котельники 1393 Аренда коммерческой недвижимости - Бердск 1393 Аренда коммерческой недвижимости - Королев 1393 Аренда коммерческой недвижимости - Курган 1393 Аренда коммерческой недвижимости - Красногорск 1393 Аренда коммерческой недвижимости - Лыткарино 1393 Аренда коммерческой недвижимости - Улан-Удэ 1393 Аренда коммерческой недвижимости - Пермь 1393 Аренда коммерческой недвижимости - Сочи 1393 Аренда коммерческой недвижимости - Зеленоград 1393 Аренда офиса от собственника 910 Аренда офиса без посредников 665 Аренда офиса в Москве 665 Аренда офисов с юрадресом 664 Аренда офиса с парковкой 605 Бизнес-центры Москвы 581 Аренда больших офисов 543 Аренда офисов класса B+ 284 Аренда офисов без отделки 236 Аренда офисов на первом этаже 107 Эксклюзивные предложения по аренде коммерческой недвижимости 85 Эксклюзивные предложения по аренде коммерческой недвижимости 85 Эксклюзивные предложения офисной недвижимости 76 Аренда офисов 5000 кв.м. 51 Аренда офиса от 5000 метров 47 Аренда офиса в ВАО от собственника 39 Аренда офиса в ВАО Москвы 30 Аренда офиса на Преображенской площади 22 Аренда офисов класса B+ в районе Сокольники 9 Аренда офиса в районе Сокольники 9 Аренда офиса на Сокольниках 8

Получите подробную презентацию объекта

NF Group

Инфраструктура района

Образование
11 образовательных учреждений, 10 детских садов
Инфраструктура
На территории района есть ТЦ «Сокольники», множество сетевых супермаркетов и более 10 салонов красоты
Культура
Дом культуры им. Русакова, клуб фабрики «Буревестник», два православных храма (19-20 века), Музейно-просветительский комплекс «Сокольники», Дворец спорта, Олимпийский центр им. Братьев Знаменских, театр Романа Виктюка, 2 кинотеатра и 4 библиотеки
Преимущества
Хорошая экология, большой парк с развитой развлекательной инфраструктурой; широкие возможности для занятий спортом на свежем воздухе (проложены прогулочные и велодорожки, установлены workout-площадки, зимой работают катки)
Спорт
Множество спортивных объектов в парке, Дворец спорта, два фитнес-клуба с бассейнами и банными комплексами
Мед. учреждения
4 поликлиники, более 10 частных медцентров и стоматологий
Все
Преимущества
Образование
Культура
Спорт
Инфраструктура
Мед. учреждения

Бизнес-центр Деловой Дуэт

NF GROUP предлагает новый эксклюзивный бизнес-центр «Деловой Дуэт»

БЦ «Деловой Дуэт» состоит из двух независимых строений, с подземной и наземной парковками, разместившихся на территории 1 га. Помещения идеально подойдут под размещение современного офиса компаний, а также научно-исследовательских лабораторий и шоу-румов.

Предложений в аренду 2
Площадь предложений в аренду 7 584 - 86 250 м²
Подробнее
NF Group
NF Group
Профессиональные услуги по представлению интересов арендаторов

Получите консультацию эксперта NF GROUP

Как вам удобнее общаться?
Оксана Черкашина
Оксана Черкашина
Заместитель директора по работе с офисными зданиями

Посмотрите похожие предложения

/
Без комиссии
Офис 9 686 м², 1-5 этаж - Голутвинская Слобода
ЦАО Якиманка Голутвинский 4-й переулок, 1, стр. 1-2
56 500 ₽ м² в год
Свернуть
ID: ol50967

Офис 9 686 м², 1-5 этаж - Голутвинская Слобода

ЦАО Якиманка Голутвинский 4-й переулок, 1, стр. 1-2
56 500 ₽ м² в год
9 686 м²
1-5 этаж
Класс A
Магистраль БК
WhatsApp Позвонить
NF Group
Авторизация
Мы используем файлы cookie, чтобы улучшить сервис для вас.
Соглашение об использовании