+7 (495) 032-68-64 Продать объект Продать объект
О компании Аналитика Стать партнёром Карьера Контакты
Ленинский просп., д. 119 (Leninskiy 119)
NF Group
NF Group
NF Group
NF Group
NF Group
NF Group
NF Group
NF Group
NF Expert
Наши эксперты ответят на все ваши вопросы
Без комиссии

Бизнес-центр Ленинский просп., д. 119

Юго-Западная, Тропарево
от 17 500
от 206 666  ₽ / мес.
от 217
от 2 564  $ / мес.
от 186
от 2 205  € / мес.
$
за м²/год
Whatsapp
от 17 500
от 206 666  ₽ / мес.
от 217
от 2 564  $ / мес.
от 186
от 2 205  € / мес.
$
за м²/год
ID os2568
 Елена Акатова
Елена Акатова
Директор направления по работе с офисными зданиями

Описание «Ленинский просп., д. 119 (Leninskiy 119)»

Ленинский 119 - бизнес-центр класса А

Год постройки: 2010

Первое «синее» здание в Москве, получившее сертификат Немецкого общества по устойчивому строительству (DGNB)

Расположение:

Объект находится в Обручевском районе Юго-Западного административного округа (ЮЗАО) Москвы у развязки Ленинского и Вернадского проспектов. Удобный доступ с обоих проспектов и с улицы Островитянова. Рядом также улицы Саморы Машела, Академика Опарина и Миклухо-Маклая. Расстояние до МКАД - 3,5 км, до ТТК - 10 км, до Садового кольца - 15 км. От ближайшей станции метро «Тропарево» до офисного комплекса можно дойти пешком за 15 минут. В непосредственной близости остановки общественного транспорта, на котором можно добраться до станций метро «Юго-Западная» и «Коньково».

Описание:

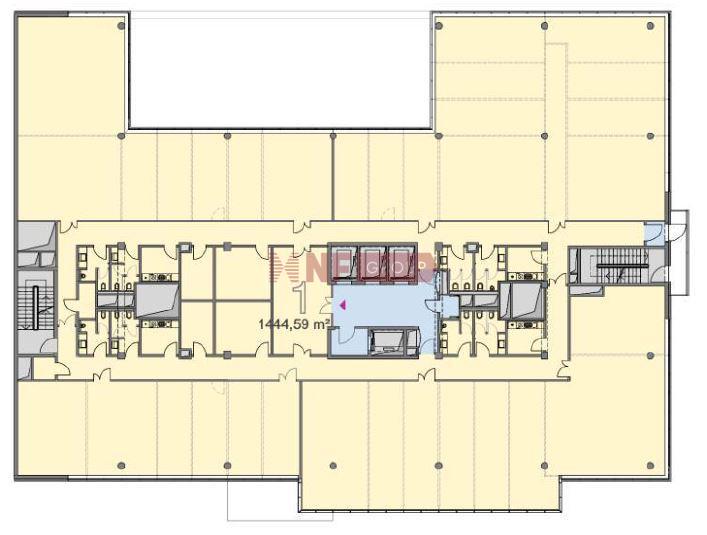
  • Общая площадь 22 650 кв. м. В аренду - помещения от 512 до 1 686 кв. м
  • Высота потолков: 3,6 м
  • Шаг колон: 8,1 * 8,6 м
  • Помещения с отделкой
  • Планировка: открытая
  • Высококачественная отделка общих зон
  • Объект - 9-этажное здание с презентабельным фасадом и 3х-уровневым атриумом
  • На прилегающей к объекту территории обширная зеленая зона природного парка
  • Установлено 6 лифтов
  • Профессиональная управляющая компания

Техническое оснащение: автоматизация инженерных систем, 2х-трубная система кондиционирования, приточно-вытяжная вентиляция, система пожаротушения

Телекоммуникации: оптико-волоконные сети, операторы - МТС, Билайн

Паркинг: наземная парковка на 43 м/м, подземная парковки на 188 м/м. Парковочный коэффициент 1:70

Безопасность: видеонаблюдение,  контроль доступа, профессиональная круглосуточная охрана, автоматизированные системы

Инфраструктура:

  • Внутренняя: конференц-зал, столовая, банкомат, кафе, минимаркет
  • Внешняя: несколько отделений банков, магазины, супермаркет

Подберите офис в БЦ Ленинский просп., д. 119 (Leninskiy 119)

Арендовать
в месяц
м²
Отделка
С отделкой
Под отделку
Объектов: 5
Сначала с большей площадью
Сначала с меньшей площадью
Сначала дороже
Сначала дешевле
По актуальности
Офис от 124.00 м² от 206 666 ₽ 5
kf-expert
Офис 124 м² этаж 1 из 8 С отделкой 206 666 ₽ /мес.
20 000 ₽ м²/год
kf-expert
Офис 129 м² этаж 1 из 8 С отделкой 252 625 ₽ /мес.
23 500 ₽ м²/год
kf-expert
Офис 148 м² этаж 1 из 8 С отделкой 289 833 ₽ /мес.
23 500 ₽ м²/год
kf-expert
Офис 512 м² этаж 1 из 8 С отделкой 746 666 ₽ /мес.
17 500 ₽ м²/год
kf-expert
Офис 575 м² этаж 2 из 8 С отделкой 1 078 125 ₽ /мес.
22 500 ₽ м²/год

Характеристики Ленинский просп., д. 119 (Leninskiy 119)

Адрес

Город Москва
Округ ЮЗАО
Район Обручевский
Адрес Ленинский пр-кт, 119А

О бизнес-центре

Тип здания
Бизнес-центр
Отделка
Есть
Тип сделки
Аренда
Класс
A
Площадь здания
22650 м²
Количество доступных блоков в аренду
5
Площадь блоков в аренду
124 - 1 488 м²
Год строительства
2013
Этажность
8
Лифты
6
Планировка
открытая
Парковочный коэффициент
1/70
НДС
не включен
Операционные расходы
7500 руб. м² в год

Получите подробную презентацию объекта

NF Group

Инфраструктура района

Образование
РУДН, Российский государственный медицинский университет, РГГУ им. Серго Орджоникидзе и Государственный институт русского языка А. С. Пушкина; 7 общеобразовательных школ, иранская средняя школа, спортивная школа
Инфраструктура
Более 30 кафе и ресторанов, 13 салонов красоты, 3 торговых центра
Культура
3 православных храма (19-21 века), 4 театра, 2 кинотеатра, несколько крупных библиотек, в том числе при вузах
Преимущества
На границе района расположен живописный Воронцовский парк с одноименной усадьбой (памятник садово-паркового искусства 18 века), немного дальше – Тропаревский лес; хорошо развитая социально-бытовая инфраструктура
Спорт
8 танцевальных студий, 8 фитнес-клубов, в том числе World Class, большой плавательный бассейн
Мед. учреждения
Более 20 медцентров, включая государственные поликлиники, частные многопрофильные и стоматологические клиники
Все
Преимущества
Образование
Культура
Спорт
Инфраструктура
Мед. учреждения
14 минут пешком
Российский университет дружбы народов
5 минут на автомобиле
Улица Миклухо-Маклая
6 минут на автомобиле
Улица Островитянова
7 минут на автомобиле
Проспект Вернадского
7 минут на автомобиле
Торговый центр Avenue Southwest
8 минут на автомобиле
Торговый центр Галеон
NF Group
Профессиональные услуги по представлению интересов арендаторов

Получите консультацию Елены

Как вам удобнее общаться?
Елена Акатова
Елена Акатова
Директор направления по работе с офисными зданиями
⠀⠀⠀⠀⠀⠀⠀⠀⠀

Посмотрите похожие предложения

/
Без комиссии
Бизнес-центр Галерея 76
ЮЗАО Обручевский Профсоюзная ул., 76
от 35 000 ₽ м² в год
Свернуть
ID: os49667

Бизнес-центр Галерея 76

ЮЗАО Обручевский Профсоюзная ул., 76
от 35 000 ₽ м² в год
22 183 м²
С отделкой
Класс B+
Магистраль ЧТК
WhatsApp Позвонить

Вы смотрели

/
Жилой комплекс «Дом на Мосфильмовской»
ЗАО Раменки Мосфильмовская ул., 8
Цена по запросу
Свернуть
ID: id8572

Жилой комплекс «Дом на Мосфильмовской»

ЗАО Раменки Мосфильмовская ул., 8
Цена по запросу
Год постройки: 2 квартал 2014 г.
Площадь 95-226 м²
Этажей: 53
WhatsApp Позвонить
Волгоградский проспект, 80/2
Москва Волгоградский проспект, 80
от 54 180 000 ₽
Свернуть
ID: r118855

Волгоградский проспект, 80/2

Москва Волгоградский проспект, 80
Кузьминки
от 54 180 000 ₽
Высота потолков 2.70 м
Этажность 9
28 м²
WhatsApp Позвонить
4-комн. апартаменты 123 м², 9 этаж - Каретный Плаза
ЦАО Тверской Каретный Б. переулок, д. 24 стр. 2
46 000 046 ₽
Свернуть
ID: as35425

4-комн. апартаменты 123 м², 9 этаж - Каретный Плаза

ЦАО Тверской Каретный Б. переулок, д. 24 стр. 2
46 000 046 ₽
Площадь 123 м²
Этаж 9
3 спальни
4 комнаты
Без отделки
WhatsApp Позвонить
NF Group
Авторизация
Мы используем файлы cookie, чтобы улучшить сервис для вас.
Соглашение об использовании