Москва
Санкт-Петербург
+7 (495) 032-68-64 Продать объект Продать объект
Москва
Санкт-Петербург
О компании Аналитика Стать партнёром Карьера Контакты
Grand Cascade (Гранд Каскад)
NF Group
NF Group
NF Group
NF Group
NF Group
NF Group
NF Group
NF Group
NF Group
NF Group
NF Group

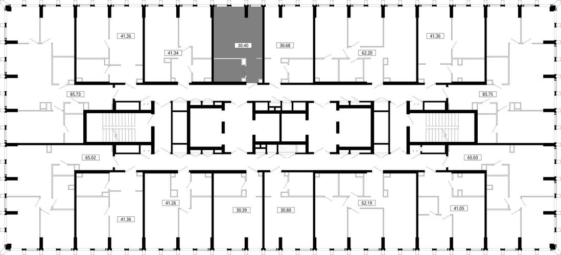
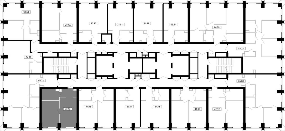
1-комн. гостиничный номер 47 м², 4 этаж - Grand Cascade

119 000 000
2 526 539  ₽/м²
1 567 344
33 276  $/м²
1 336 194
28 369  €/м²
$
Whatsapp
119 000 000
2 526 539  ₽/м²
1 567 344
33 276  $/м²
1 336 194
28 369  €/м²
$
ID ks110528
 Ксения Полещук
Ксения Полещук
Руководитель проектов
NF Group
Предложите нам свою цену, и мы свяжемся с вами

Описание

Курортный проспект – сердце Сочи и точка отсчета его истории. Растянувшийся вдоль моря, он сочетает в себе очарование исторического центра с пульсирующим ритмом южной столицы. Платановая аллея, поющие фонтаны, Дендрарий, Художественный музей – на самой длинной улице вдоль моря расположились памятники архитектуры, великолепные дореволюционные парки, лучшие отели, бутики и рестораны.

История и память центра города не пускают посторонних, и еще недавно появление новой недвижимости на Курортном проспекте казалось несбыточной фантазией. Но уникальные проекты, которым сопутствует удача, получают шанс внести свое имя в летопись Сочи. Новая достопримечательность-резиденция класса deluxe Grand Cascade – позволит нескольким десяткам избранных осуществить мечту о жизни на лучшей в стране улице у моря в идеальных условиях.

Расположенный в самом центре Курортного проспекта, всего в 300 метрах от исторического
морского порта Сочи, устремленный к бескрайним просторам Черного моря, новый архитектурный шедевр хранит память места, которое когда-то было точкой притяжения знаменитостей и культурной интеллигенции всей России. «Везде есть жизнь, и тут была своя», - писал об этом месте Иосиф Бродский. Но резиденты Grand Cascade получают еще одно, уникальное, преимущество - всего в одном шаге от этого бурлящего потока вести роскошную жизнь, полную гармонии и покоя. С променадов идеально благоустроенной закрытой территории резиденции открываются фантастические виды на море и яхты.

Современная архитектура гармонично дополняет пейзаж, а построенные по новейшим технологиям номера отличают неповторимый дизайн и абсолютный комфорт. SPA, ресторан высокой кухни – все в Grand Cascade располагает к релаксации. А чтобы вновь почувствовать драйв исторического центра достаточно просто выйти за территорию резиденции.

Характеристики

О гостиничном номере

Тип сделки
Продажа
Отделка
Есть
Тип объекта
Гостиничный номер
Этаж
4 из 4
Санузлы
1
Спален | Комнат
1 | 1
Общая площадь
47 м²
Уровней
1
Меблировка
Есть
Высота потолков
от 2.8 м

О жилом комплексе

Площадь квартир
от 29 до 396 м²
Строится
4 кв. 2024
Этажность
4
Класс
Элит

Адрес

Город Сочи
Район Центральный
Адрес Курортный пр-кт
Объекты рядом

Получите подробную презентацию объекта

NF Group

Записаться на экскурсию по объекту

Подберите ипотеку

Подавая заявку в несколько банков, вы увеличиваете шанс на одобрение ипотеки
Стоимость недвижимости
20 млн.
950 млн.
Первоначальный взнос
20 %
90 %
Срок
1 год
30 лет
Процентная ставка
3%
100%
Сумма кредита
524 700 000 ₽
Ежемесячный платеж
524 700 000 ₽
индивидуальный %
до 30 лет
индивидуальный %
до 30 лет
индивидуальный %
до 30 лет
индивидуальный %
до 30 лет
индивидуальный %
до 35 лет
индивидуальный %
до 30 лет
NF Group
Особые условия по ипотеке для клиентов NF GROUP

Гостиничный комплекс Grand Cascade

Курортный проспект – сердце Сочи и точка отсчета его истории. Растянувшийся вдоль моря, он сочетает в себе очарование исторического центра с пульсирующим ритмом южной столицы. Платановая аллея, поющие фонтаны, Дендрарий, Художественный музей – на самой длинной улице вдоль моря расположились памятники архитектуры, великолепные дореволюционные парки, лучшие отели, бутики и рестораны.

Строится 4 кв. 2024
Этажей 4
Все предложения в этом комплексе
NF Group

Посмотрите похожие предложения

/
1-комн. гостиничный номер 22 м², 2 этаж - Marine Garden Hotels & Resort
Хостинский Шоссейная ул., 9
16 000 000 ₽
Свернуть
ID: ks111491

1-комн. гостиничный номер 22 м², 2 этаж - Marine Garden Hotels & Resort

Хостинский Шоссейная ул., 9
16 000 000 ₽
Площадь 22 м²
Этаж 2
1 спальня
1 комната
С отделкой
 Ксения Полещук
Ксения Полещук
Руководитель проектов
WhatsApp Позвонить
1-комн. гостиничный номер 26 м², 2 этаж - Marine Garden Hotels & Resort
Хостинский Шоссейная ул., 9
20 898 000 ₽
Свернуть
ID: ks111025

1-комн. гостиничный номер 26 м², 2 этаж - Marine Garden Hotels & Resort

Хостинский Шоссейная ул., 9
20 898 000 ₽
Площадь 25 м²
Этаж 2
1 спальня
1 комната
С отделкой
 Ксения Полещук
Ксения Полещук
Руководитель проектов
WhatsApp Позвонить
1-комн. гостиничный номер 31 м², 7 этаж - Marine Garden Sochi Hotels & Spa
Хостинский Шоссейная улица, 2/2, жилой район Хоста, Краснодарский край
21 031 300 ₽
Свернуть
ID: ks110979

1-комн. гостиничный номер 31 м², 7 этаж - Marine Garden Sochi Hotels & Spa

Хостинский Шоссейная улица, 2/2, жилой район Хоста, Краснодарский край
21 031 300 ₽
Площадь 31 м²
Этаж 7
1 спальня
1 комната
С отделкой
 Ксения Полещук
Ксения Полещук
Руководитель проектов
WhatsApp Позвонить
1-комн. гостиничный номер 28 м², 8 этаж - Marine Garden Sochi Hotels & Spa
Хостинский Шоссейная улица, 2/2, жилой район Хоста, Краснодарский край
21 262 500 ₽
Свернуть
ID: ks110972

1-комн. гостиничный номер 28 м², 8 этаж - Marine Garden Sochi Hotels & Spa

Хостинский Шоссейная улица, 2/2, жилой район Хоста, Краснодарский край
21 262 500 ₽
Площадь 28 м²
Этаж 8
1 спальня
1 комната
С отделкой
 Ксения Полещук
Ксения Полещук
Руководитель проектов
WhatsApp Позвонить
1-комн. гостиничный номер 28 м², 8 этаж - Marine Garden Sochi Hotels & Spa
Хостинский Шоссейная улица, 2/2, жилой район Хоста, Краснодарский край
21 307 000 ₽
Свернуть
ID: ks110970

1-комн. гостиничный номер 28 м², 8 этаж - Marine Garden Sochi Hotels & Spa

Хостинский Шоссейная улица, 2/2, жилой район Хоста, Краснодарский край
21 307 000 ₽
Площадь 27 м²
Этаж 8
1 спальня
1 комната
С отделкой
 Ксения Полещук
Ксения Полещук
Руководитель проектов
WhatsApp Позвонить
1-комн. гостиничный номер 28 м², 8 этаж - Marine Garden Sochi Hotels & Spa
Хостинский Шоссейная улица, 2/2, жилой район Хоста, Краснодарский край
21 307 500 ₽
Свернуть
ID: ks110976

1-комн. гостиничный номер 28 м², 8 этаж - Marine Garden Sochi Hotels & Spa

Хостинский Шоссейная улица, 2/2, жилой район Хоста, Краснодарский край
21 307 500 ₽
Площадь 28 м²
Этаж 8
1 спальня
1 комната
С отделкой
 Ксения Полещук
Ксения Полещук
Руководитель проектов
WhatsApp Позвонить
1-комн. гостиничный номер 28 м², 8 этаж - Marine Garden Sochi Hotels & Spa
Хостинский Шоссейная улица, 2/2, жилой район Хоста, Краснодарский край
21 307 500 ₽
Свернуть
ID: ks110974

1-комн. гостиничный номер 28 м², 8 этаж - Marine Garden Sochi Hotels & Spa

Хостинский Шоссейная улица, 2/2, жилой район Хоста, Краснодарский край
21 307 500 ₽
Площадь 28 м²
Этаж 8
1 спальня
1 комната
С отделкой
 Ксения Полещук
Ксения Полещук
Руководитель проектов
WhatsApp Позвонить
1-комн. гостиничный номер 28 м², 9 этаж - Marine Garden Sochi Hotels & Spa
Хостинский Шоссейная улица, 2/2, жилой район Хоста, Краснодарский край
21 591 600 ₽
Свернуть
ID: ks110977

1-комн. гостиничный номер 28 м², 9 этаж - Marine Garden Sochi Hotels & Spa

Хостинский Шоссейная улица, 2/2, жилой район Хоста, Краснодарский край
21 591 600 ₽
Площадь 28 м²
Этаж 9
1 спальня
1 комната
С отделкой
 Ксения Полещук
Ксения Полещук
Руководитель проектов
WhatsApp Позвонить
1-комн. гостиничный номер 28 м², 9 этаж - Marine Garden Sochi Hotels & Spa
Хостинский Шоссейная улица, 2/2, жилой район Хоста, Краснодарский край
21 591 600 ₽
Свернуть
ID: ks110975

1-комн. гостиничный номер 28 м², 9 этаж - Marine Garden Sochi Hotels & Spa

Хостинский Шоссейная улица, 2/2, жилой район Хоста, Краснодарский край
21 591 600 ₽
Площадь 28 м²
Этаж 9
1 спальня
1 комната
С отделкой
 Ксения Полещук
Ксения Полещук
Руководитель проектов
WhatsApp Позвонить
1-комн. гостиничный номер 33 м², 5 этаж - Marine Garden Sochi Hotels & Spa
Хостинский Шоссейная улица, 2/2, жилой район Хоста, Краснодарский край
24 090 000 ₽
Свернуть
ID: ks110969

1-комн. гостиничный номер 33 м², 5 этаж - Marine Garden Sochi Hotels & Spa

Хостинский Шоссейная улица, 2/2, жилой район Хоста, Краснодарский край
24 090 000 ₽
Площадь 33 м²
Этаж 5
1 спальня
1 комната
С отделкой
 Ксения Полещук
Ксения Полещук
Руководитель проектов
WhatsApp Позвонить

Отзывы застройщиков о NF GROUP

/
Башня «Федерации» рекомендует международную консалтинговую компанию NF GROUP как верного и профессионального партнера, обладающего высочайшей экспертизой и передовыми знаниями в сфере элитной недвижимости.
Читать весь отзыв
Смирнов М. Ю.
Смирнов М. Ю.
Генеральный директор
«Центр-Инвест» выражает особую благодарность консалтинговой компании NF GROUP за ответственный и грамотный подход, а также исключительное качество услуг.
Читать весь отзыв
Задорожная Джанет Бекманбетовна
Задорожная Джанет Бекманбетовна
Руководитель проектов продаж Департамента продаж премиальных проектов
Благодарим NF GROUP за внимательное отношение к интересам нашей компании и непревзойденный профессионализм.
Читать весь отзыв
Непейвода А.А.
Непейвода А.А.
Руководитель департамента маркетинга и продаж
Благодарим команду NF GROUP за многолетнее успешное сотрудничество и партнерские отношения в работе.
Читать весь отзыв
Дивеева О.А.
Дивеева О.А.
Директор по продажам Capital Group

Получите консультацию эксперта NF GROUP

Как вам удобнее общаться?
Ксения Полещук
Ксения Полещук
Руководитель проектов
Эксперт по недвижимости в Таиланде и Турции. Опыт более 12 лет.
NF Group
Авторизация
Мы используем файлы cookie, чтобы улучшить сервис для вас.
Соглашение об использовании