+7 (495) 032-68-64 Продать объект Продать объект
О компании Аналитика Стать партнёром Карьера Контакты
Cameo Moscow Villas (Камео)
NF Group
NF Group
NF Group
NF Group
NF Group
NF Group
NF Group

Жилой комплекс Cameo Moscow Villas

Маяковская
Квартиры от 337 до 360 м² Этажей 3 Год постройки 2 квартал 2021 г.
от 350 000 000
от 972 222  ₽/м²
от 4 474 175
от 12 428  $/м²
от 3 800 472
от 10 556  €/м²
$
Whatsapp
от 350 000 000
от 972 222  ₽/м²
от 4 474 175
от 12 428  $/м²
от 3 800 472
от 10 556  €/м²
$
ID id38389
 Андрей Соловьев
Андрей Соловьев
Партнер, Региональный директор департамента жилой недвижимости
NF Group
Поможем продать вашу элитную квартиру легко и безопасно

Подберите апартаменты в Cameo Moscow Villas (Камео)

В базе 2 квартиры в ЖК Cameo Moscow Villas, стоимостью 350 000 000 рублей. ⚡Средняя стоимость квартиры — 350 000 000 рублей. Средняя цена за 1 кв. метр — 972 222 рублей. 🏢 Средняя общая площадь — 348 кв.м.
Купить
Все типы
Апартаменты
Таунхаусы
Кол-во комнат
1 комната
2 комнаты
3 комнаты
4 комнаты
от 5 комнат
Этаж
Не первый этаж
Не последний этаж
Кол-во санузлов
1 санузел
2 санузла
3 санузла
4 санузла
от 5 санузлов
С отделкой, под отделку
С отделкой
Под отделку
за всё
м²
9-комнатные
NF Group
360.00 350 000 000 ₽
Объектов: 2
Сначала с большей площадью
Сначала с меньшей площадью
Сначала дороже
Сначала дешевле
По актуальности
6-комнатные 336.50 м² 450 000 000 ₽ 1
kf-expert
Апартаменты 336.5 м² Под отделку 450 000 000 ₽
9-комнатные 360.00 м² 350 000 000 ₽ 1
kf-expert
Таунхаус 360.0 м² 1-3 из 3 этажей Под отделку 350 000 000 ₽
Объектов: 1
Сначала с большей площадью
Сначала с меньшей площадью
Сначала дороже
Сначала дешевле
360.00 м² этаж 1-3 из 3 Без отделки 350 000 000 ₽
NF Group

О жилом комплексе Cameo Moscow Villas (Камео)

Расположение

Жилой комплекс класса deluxe Cameo Moscow Villas расположен на Долгоруковской улице в историческом центре Москвы — Белом городе.

Транспортная доступность

К апарт-комплексу Cameo Moscow Villas имеется комфортный подъезд с Тверской и Долгоруковской улиц, а также Садового кольца, расстояние до которого не превышает километр. Ближайшие станции метро — «Новослободская», «Менделеевская», «Маяковская». В пешей доступности находятся сад Эрмитаж и Миусский сквер.

Архитектура

Жилой комплекс Cameo в Москве состоит из 17 двух- и трехэтажных вилл, которые внешне напоминают два монолитных дома, разделенных на секции. Они сочетают в себе атмосферу нью-йоркских и лондонских таунхаусов со стилем загородных вилл в Тоскане. Каждый дом имеет свой собственный дизайн фасада. Фасады «Камео Москоу Виллас» облицованы натуральным камнем — травертином.

Предложение

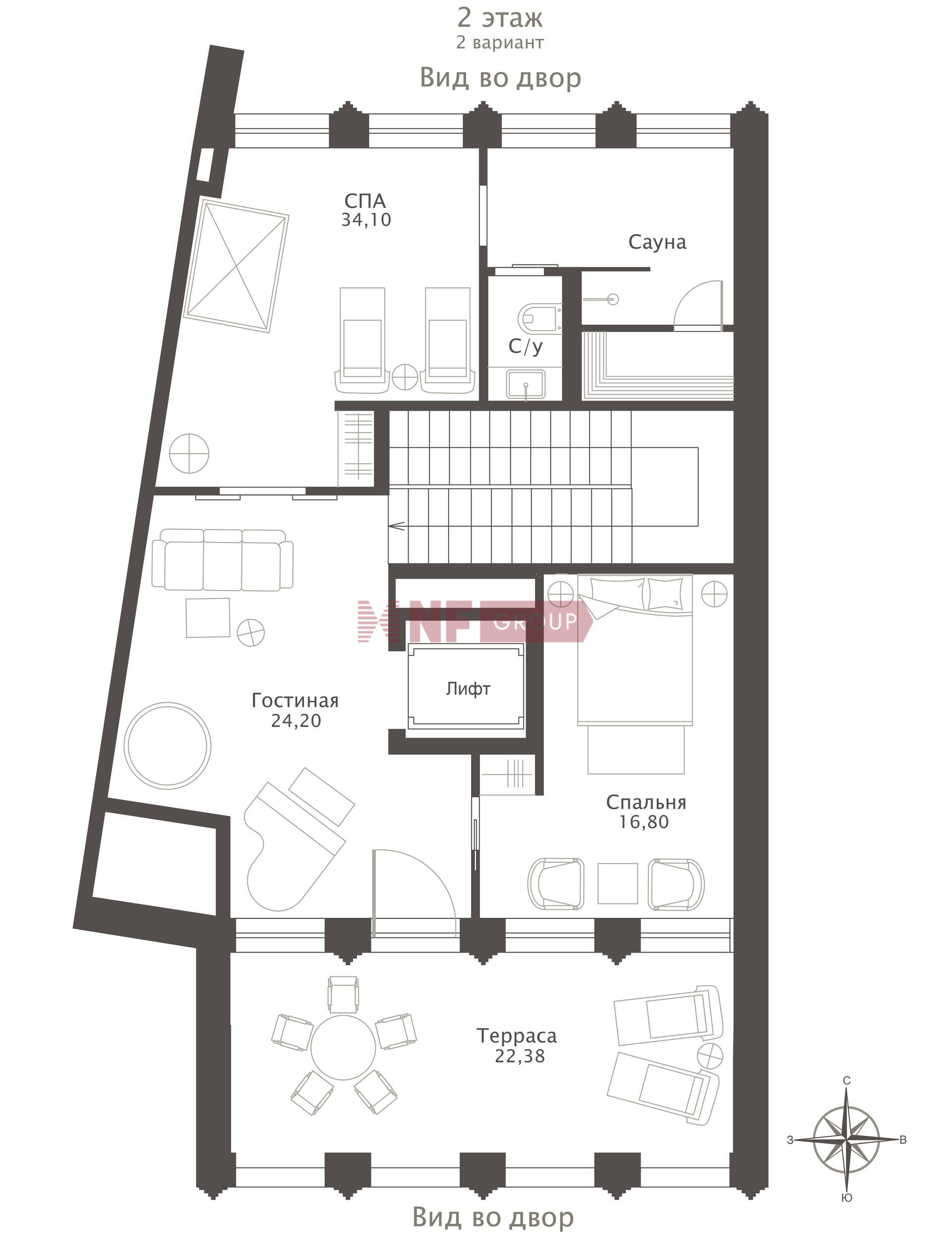
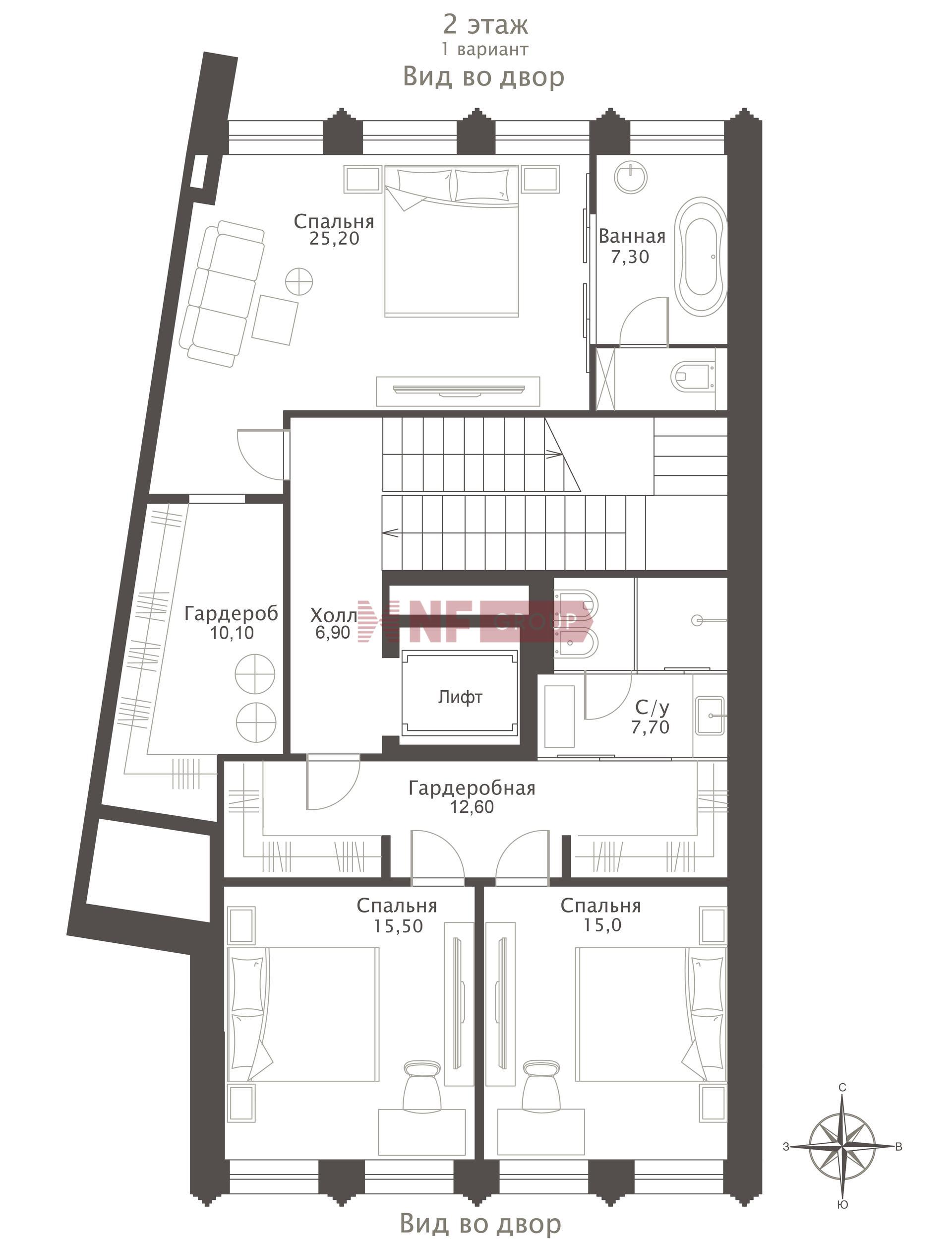
В «Камео» 17 вилл площадью от 230 до 445 кв. м и высотой потолков от 3,5 до 4,2 м. Внутренняя планировка свободная, что позволит будущим хозяевам самостоятельно организовать жилое пространство. Предусмотрена возможность монтажа дровяного камина. У каждой виллы есть небольшой земельный участок за домом, а владельцы трехэтажных вилл имеют выход на террасу и эксплуатируемую кровлю.

Внутренняя инфраструктура

Есть подземный паркинг на 40 машиномест с лифтами к каждой вилле. На территории внутреннего двора разбит небольшой ландшафтный сад с парком, где проложены дорожки.

Возможности проезда машин по двору нет. Предусмотрены круглосуточная охрана комплекса и отдельный вход на территорию для сервисных служб и персонала. Портье, садовник, лобби-бой не только поддерживают красоту внешнего вида и порядок, но и выполняют небольшие получения жильцов.

Окружение

В окрестностях ЖК Cameo Moscow Villas расположено несколько престижных учебных заведений: ГБОУ Школа № 1540, Школа №1113, Лицей НИУ ВШЭ. Неподалеку расположены фитнес-клубы World Class, FORMA Ems Fitness Studio, АЛЛО.

Взрослые могут провести досуг в ресторанах «Своя Компания», Semplice, «Гранд Урюк», «Собрание», «Лига Пап». Для прогулок доступны Миусский и Антроповский сквер, Краснопролетарский и Делегатский парки.

В шаговой доступности — ЦУМ, ЦДМ, «Никольская плаза».

Получите подробную презентацию объекта

NF Group

Характеристики Cameo Moscow Villas (Камео)

О жилом комплексе

Продажа
2 лота
Построен
2 кв. 2021
Под отделку
2
Этажей
3
Площадь, м²
337 - 360 м²
Количество лотов
17
Тип паркинга
Подземный

Адрес

Город Москва
Округ ЦАО
Район Тверской
Адрес Долгоруковская ул., 23А

Фото

2 альбома
/
Территория
Территория
4 фото
Фасад
Фасад
4 фото

Все предложения в категориях

Элитная недвижимость в Подмосковье 7432 Элитная недвижимость в Москве 5545 Элитные квартиры в Москве и Подмосковье 5406 Продажа квартир с базовой ценой в рублях 5099 Недвижимость в центре Москвы 1950 Недвижимость класса de luxe 524 Элитные жилые комплексы Москвы 367 Готовые жилые комплексы в Москве 300 Жилые комплексы в ЦАО 261 Жилые комплексы с подземной парковкой в Москве 261 Эксклюзивные предложения городской и загородной недвижимости от NF Group 232 Готовые жилые комплексы в ЦАО 228 Готовые жилые комплексы с подземной парковкой 220 Жилые комплексы Москвы и Подмосковья 206 ЖК с подземной парковкой в ЦАО 193 Недвижимость в Тверском районе Москвы 177 Жилые комплексы внутри ТТК 102 Эксклюзивные предложения вторичка 97 Жилые комплексы в районе Тверской 31 Готовые жилые комплексы в районе Тверской 28 Жилые комплексы у метро Маяковская 21 ЖК с подземной парковкой в районе Тверской 21 Готовые жилые комплексы у метро Маяковская 20 ЖК с подземной парковкой у метро Маяковская 19
NF Group
Получите презентацию проекта
с ценами и планировками.

Инфраструктура района

Преимущества
Тверской район – главный исторический район центра Москвы и по совместительству богатейший с культурной точки зрения. На территории района находятся Кремль, Большой и Малый театры,10 музеев, 17 известных театров, памятники архитектуры и старинные улочки. Именно здесь расположены знаковые fashion-пространства: Столешников переулок, ЦУМ, ГУМ и Петровский пассаж.
Образование
Гимназия № 1540, престижные школы № 1574, № 1275, № 128, № 1501, № 2054, курсы английского языка, школа журналистики «Известия», более 10 частных детских садов, в том числе с углубленным изучением иностранных языков. Здесь находятся несколько факультетов МГУ им. Ломоносова: психологический факультет, ИСАА, факультет искусств и факультет журналистики, а также ГИТИС.
Инфраструктура
В Тверском районе находятся 15 крупных торговых центров, многочисленные модные бутики, меховые, обувные и ювелирные салоны; более 15 салонов красоты и спа
Культура
Район – культурное и историческое сердце столицы, где на каждом шагу встречаются архитектурные памятники разных эпох. Библиотека им. Ленина, Большой театр, театр «Россия», «Ленком», театр Ермоловой, Музыкальный театр Станиславского, Зоологический музей, Геологический музей, гостиница «Москва», Красная площадь, Кремль, ГУМ, ЦУМ, Покровский собор, храм Николы Чудотворца у Тверской заставы, Елисеевский магазин.
Спорт
19 фитнес-клубов с бассейнами и спа-зонами: X-Fit Столешников, Topstretching, Soul Unit, MyFitLab, Top-Pilates и т.д.
Все
Магазины и услуги
Развлечения
Образование
Спорт и здоровье
8 минут пешком
Метро Новослободская
NF Group
9 минут пешком
ТЦ Дружба
11 минут пешком
Делегатский парк
12 минут пешком
Ресторан Lesnoy
NF Group
12 минут пешком
Депо Москва Фудмолл
NF Group
14 минут пешком
Фитнес-клуб XFit Ленком

Записаться на экскурсию по объекту

Подберите ипотеку

Подавая заявку в несколько банков, вы увеличиваете шанс на одобрение ипотеки
Стоимость недвижимости
20 млн.
950 млн.
Первоначальный взнос
20 %
90 %
Срок
1 год
30 лет
Процентная ставка
3%
100%
Сумма кредита
524 700 000 ₽
Ежемесячный платеж
524 700 000 ₽
индивидуальный %
до 30 лет
индивидуальный %
до 30 лет
индивидуальный %
до 30 лет
индивидуальный %
до 30 лет
индивидуальный %
до 35 лет
индивидуальный %
до 30 лет
NF Group
Особые условия по ипотеке для клиентов NF GROUP

Посмотрите похожие предложения

/
Жилой комплекс «Полянка/44»
ЦАО Якиманка Полянка Б. ул., 44/2
от 79 794 000 ₽
Свернуть
ID: id20440

Жилой комплекс «Полянка/44»

ЦАО Якиманка Полянка Б. ул., 44/2
Полянка, Октябрьская, Добрынинская
от 79 794 000 ₽
Площадь от 80 м²
1 спальня
Без отделки
WhatsApp Позвонить
Клубный дом «Цвет32»
ЦАО Мещанский Цветной бульвар, 32
от 98 000 000 ₽
Свернуть
ID: id37230

Клубный дом «Цвет32»

ЦАО Мещанский Цветной бульвар, 32
от 98 000 000 ₽
Площадь от 110 м²
2 спальни
Без отделки
WhatsApp Позвонить
Клубный дом Turandot Residences
ЦАО Арбат Арбат ул., 24
от 141 680 000 ₽
Свернуть
ID: id20849

Клубный дом Turandot Residences

ЦАО Арбат Арбат ул., 24
Смоленская, Арбатская
от 141 680 000 ₽
Площадь от 129 до 254 м²
3 спальни
Без отделки
WhatsApp Позвонить
Жилой комплекс «Дом на Мосфильмовской»
ЗАО Раменки Мосфильмовская ул., 8
от 167 970 000 ₽
Свернуть
ID: id8572

Жилой комплекс «Дом на Мосфильмовской»

ЗАО Раменки Мосфильмовская ул., 8
от 167 970 000 ₽
Площадь от 95 до 867 м²
1 спальня
Без отделки
WhatsApp Позвонить
Жилой комплекс «Панорама»
ЦАО Пресненский Климашкина ул., 17 стр. 2
от 270 000 000 ₽
Свернуть
ID: id13732

Жилой комплекс «Панорама»

ЦАО Пресненский Климашкина ул., 17 стр. 2
от 270 000 000 ₽
Площадь от 300 м²
4 спальни
Без отделки
WhatsApp Позвонить
Жилой комплекс «Дом при Академии наук»
ЮЗАО Гагаринский Косыгина улица, 2 к. 1
от 236 557 540 ₽
Свернуть
ID: id15128

Жилой комплекс «Дом при Академии наук»

ЮЗАО Гагаринский Косыгина улица, 2 к. 1
от 236 557 540 ₽
Площадь от 224 м²
3 спальни
Без отделки
WhatsApp Позвонить
Жилой комплекс «Золотые Ключи-2 1Гк.1»
ЗАО Раменки Минская ул., 1Г к. 1
от 80 000 000 ₽
Свернуть
ID: id14164

Жилой комплекс «Золотые Ключи-2 1Гк.1»

ЗАО Раменки Минская ул., 1Г к. 1
от 80 000 000 ₽
Площадь от 92 до 100 м²
2 спальни
Без отделки
WhatsApp Позвонить
Жилой комплекс «Смоленская Застава»
ЦАО Хамовники Ружейный пер., 3
от 97 000 000 ₽
Свернуть
ID: id8636

Жилой комплекс «Смоленская Застава»

ЦАО Хамовники Ружейный пер., 3
Смоленская, Киевская
от 97 000 000 ₽
Площадь от 111 м²
3 спальни
Без отделки
WhatsApp Позвонить
Жилой комплекс «Венский Дом»
ЦАО Хамовники Неопалимовский 1-й пер., 8
от 190 000 000 ₽
Свернуть
ID: id2647

Жилой комплекс «Венский Дом»

ЦАО Хамовники Неопалимовский 1-й пер., 8
Смоленская, Киевская
от 190 000 000 ₽
Площадь от 210 до 363 м²
2 спальни
Без отделки
WhatsApp Позвонить
Жилой комплекс Barkli Park
ЦАО Мещанский Советской Армии ул., 6
от 142 000 000 ₽
Свернуть
ID: id13096

Жилой комплекс Barkli Park

ЦАО Мещанский Советской Армии ул., 6
от 142 000 000 ₽
Площадь от 128 до 136 м²
2 спальни
Без отделки
WhatsApp Позвонить

Отзывы застройщиков о NF GROUP

/
Башня «Федерации» рекомендует международную консалтинговую компанию NF GROUP как верного и профессионального партнера, обладающего высочайшей экспертизой и передовыми знаниями в сфере элитной недвижимости.
Читать весь отзыв
Смирнов М. Ю.
Смирнов М. Ю.
Генеральный директор
«Центр-Инвест» выражает особую благодарность консалтинговой компании NF GROUP за ответственный и грамотный подход, а также исключительное качество услуг.
Читать весь отзыв
Задорожная Джанет Бекманбетовна
Задорожная Джанет Бекманбетовна
Руководитель проектов продаж Департамента продаж премиальных проектов
Благодарим NF GROUP за внимательное отношение к интересам нашей компании и непревзойденный профессионализм.
Читать весь отзыв
Непейвода А.А.
Непейвода А.А.
Руководитель департамента маркетинга и продаж
Благодарим команду NF GROUP за многолетнее успешное сотрудничество и партнерские отношения в работе.
Читать весь отзыв
Дивеева О.А.
Дивеева О.А.
Директор по продажам Capital Group

Получите консультацию эксперта NF GROUP

Как вам удобнее общаться?
Андрей Соловьев
Андрей Соловьев
Партнер, Региональный директор департамента жилой недвижимости

Андрей работает на российском рынке недвижимости более 12 лет. Имеет огромный опыт в разработке и реализации стратегий, обеспечивающих рост выручки и доходов компании в разных сегментах. Андрей консультировал клиентов в крупных и наиболее сложных на рынке сделках.

В компании «Метриум» управлял проектами «Матч Поинт», «Триумфальный», «Ленинский 38» – сегмент «бизнес», а также «Резиденция Тверская», «Софийская» – сегмент «элит». 

На позиции Директора департамента загородной жилой недвижимости NF Group Андрей добился трехкратного прироста выручки департамента за 3 года, а также внес значительный вклад в формирование репутации компании-лидера на рынке загородной недвижимости. Во время работы в департаменте жилой недвижимости NF Group завершил успешную реструктуризацию департамента и внедрение системы KPI, которые обеспечили рост продаж и увеличили выручку; улучшение политики и практики продаж департамента; внедрение и развитие системы стандартов клиентского сервиса и услуг. Андрей контролировал сделки стоимостью 350 млн евро, а его персональные сделки достигали 75 млн евро. 

В 2019 году Андрей стал победителем отраслевой премии «Репутация» (ассоциация профессионалов рынка недвижимости REPA) в номинации «Руководитель отдела продаж года». 

Вы смотрели

/
Особняк «Большая Дмитровка IX»
ЦАО Тверской Дмитровка Б. ул., 9
Цена по запросу
Свернуть
ID: id35791

Особняк «Большая Дмитровка IX»

ЦАО Тверской Дмитровка Б. ул., 9
Цена по запросу
Год постройки: 1 квартал 2024 г.
Площадь 84-340 м²
Этажей: 9
WhatsApp Позвонить
Поселок «Усадьбы Усово»
Одинцовский г. о. Рублево-Успенское, 10 км от МКАД
от 950 000 000 ₽
Свернуть
ID: sl11031

Поселок «Усадьбы Усово»

Одинцовский г. о. Рублево-Успенское, 10 км от МКАД
от 950 000 000 ₽
Площадь: 1 800 м²
На продажу: 1
WhatsApp Позвонить
Без комиссии
Бизнес-парк ЛеФОРТ
ВАО Преображенское Электрозаводская улица, 27
от 1 747 916 ₽ в месяц
Свернуть
ID: os18730

Бизнес-парк ЛеФОРТ

ВАО Преображенское Электрозаводская улица, 27
от 1 747 916 ₽ в месяц
Магистраль ЧТК
367-9 506 м²
Класс B+
WhatsApp Позвонить
Новый ремонт
6-комн. квартира 214 м², 4 этаж - Остоженка, 3/14
ЦАО Хамовники Остоженка улица, д. 3/14
147 000 000 ₽ 118 000 000 ₽
Свернуть
ID: as20115

6-комн. квартира 214 м², 4 этаж - Остоженка, 3/14

ЦАО Хамовники Остоженка улица, д. 3/14
Кропоткинская, Парк Культуры
147 000 000 ₽ 118 000 000 ₽
Площадь 214 м²
Этаж 4
4 спальни
6 комнат
С отделкой
WhatsApp Позвонить
2-комн. апартаменты 88 м², 4 этаж - «Большая Дмитровка IX»
ЦАО Тверской Дмитровка Б. ул., 9, стр. 6
199 540 968 ₽
Свернуть
ID: as35860

2-комн. апартаменты 88 м², 4 этаж - «Большая Дмитровка IX»

ЦАО Тверской Дмитровка Б. ул., 9, стр. 6
199 540 968 ₽
Площадь 88 м²
Этаж 4
1 спальня
2 комнаты
С отделкой
WhatsApp Позвонить
Без комиссии
Офисное помещение 440 м², -1 этаж - ЛеФОРТ
ВАО Преображенское Электрозаводская улица, 27
476 520 ₽ в месяц
Свернуть
ID: ol21546

Офисное помещение 440 м², -1 этаж - ЛеФОРТ

ВАО Преображенское Электрозаводская улица, 27
Преображенская Площадь, Электрозаводская
476 520 ₽ в месяц
440 м²
-1 этаж
Магистраль ЧТК
WhatsApp Позвонить
Складской комплекс «ПНК МКАД-М4»
Юг Московская область шоссе М-4 "Дон", 1 км от границы города
Цена по запросу
Свернуть
ID: 13669, класс A

Складской комплекс «ПНК МКАД-М4»

Юг Московская область шоссе М-4 "Дон", 1 км от границы города
Цена по запросу
Тип склада: Сухой
Общая свободная площадь 41 077 м²
Минимальный блок: 1 150 м²
WhatsApp Позвонить
Жилой дом «Счастливый дом»
ЦАО Хамовники Бутиковский переулок, 16 стр. 3
Цена по запросу
Свернуть
ID: id12714

Жилой дом «Счастливый дом»

ЦАО Хамовники Бутиковский переулок, 16 стр. 3
Парк Культуры, Кропоткинская
Цена по запросу
Год постройки: 4 квартал 2005 г.
Площадь 170 м²
Этажей: 5
WhatsApp Позвонить
4-комн. квартира 170 м² 2 этаж из 5
ЦАО Хамовники Бутиковский переулок, д. 16 стр. 3
420 000 ₽ в месяц 400 000 ₽ в месяц
Свернуть
ID: al40787

4-комн. квартира 170 м² 2 этаж из 5

ЦАО Хамовники Бутиковский переулок, д. 16 стр. 3
Кропоткинская, Парк Культуры
420 000 ₽ в месяц 400 000 ₽ в месяц
Площадь 170 м²
Этаж 2
3 спальни
4 комнаты
С мебелью
WhatsApp Позвонить
Дом 1650 м² в коттеджном поселке «Никольская слобода»
Красногорск г. о. Новорижское, 9 км от МКАД
774 444 329 ₽ 589 990 000 ₽
Свернуть
ID: hs9918562

Дом 1650 м² в коттеджном поселке «Никольская слобода»

Красногорск г. о. Новорижское, 9 км от МКАД
774 444 329 ₽ 589 990 000 ₽
Площадь 1 650 м²
Участок 49 сот.
7 спален
С отделкой
WhatsApp Позвонить
NF Group
Авторизация
Мы используем файлы cookie, чтобы улучшить сервис для вас.
Соглашение об использовании