+7 (495) 032-68-64 Продать объект Продать объект
О компании Аналитика Стать партнёром Карьера Контакты
«Богенхаус» (BOGENHOUSE)
NF Group
NF Group
NF Group
NF Group
NF Group
NF Group
NF Group
NF Group
NF Group
NF Group
NF Group
NF Group
NF Group
NF Group
NF Group
NF Group
NF Group
NF Group
NF Group
NF Group
NF Group
NF Group
NF Group
NF Group
NF Group
Видовой пентхаус с террасой Планировка

6-комн. пентхаус 261 м², 5 этаж - «Богенхаус»

Третьяковская, Новокузнецкая
Этажей 5 Год постройки 2021 г.
370 000 000
1 415 455  ₽/м²
4 898 890
18 740  $/м²
4 191 086
16 033  €/м²
$
370 000 000
1 415 455  ₽/м²
4 898 890
18 740  $/м²
4 191 086
16 033  €/м²
$
ID as45258
 Инна Гайкевич
Инна Гайкевич
Старший консультант
NF Group
Предложите нам свою цену, и мы свяжемся с вами

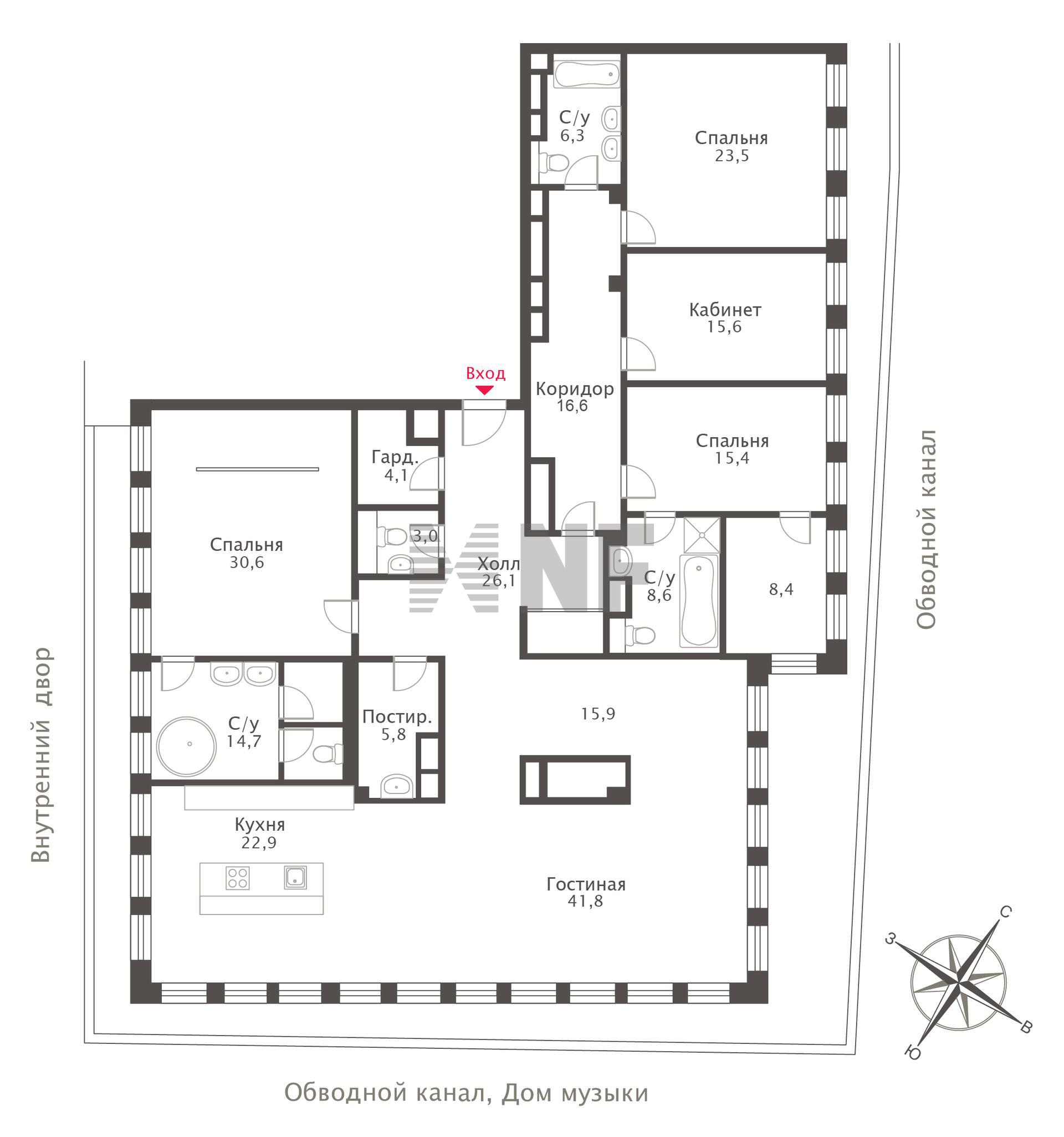
Описание

В продаже - редкий пентхаус с просторной террасой в камерном клубном доме Bogenhouse, расположенном на первой линии Озерковской набережной в историческом сердце Замоскворечья. Локация, где тишина старой Москвы встречается с панорамами столицы.

Планировка продумана для комфортной семейной жизни и приватности каждого члена семьи:
- светлая гостиная-столовая с кухонной зоной,
- 4 спальни с собственными ванными и гардеробными,
- кабинет,
- гостевой санузел,
- постирочная.
Высота потолка 3,6 м.

Главное украшение резиденции - просторная терраса, идеальная для утреннего кофе с видом на воду или вечерних встреч на фоне огней города.

Окна открывают живописные виды на Москву-реку и благоустроенную набережную.

Bogenhouse - это клубный формат всего на 43 апартамента, обеспечивающий приватность и высокий уровень сервиса. В распоряжении жителей:
консьерж-сервис, приватный внутренний двор с фонтаном и ландшафтным дизайном, изысканное лобби с ресепшен и лаундж-зона в атмосфере зимнего сада. Безопасность обеспечивают системы видеонаблюдения, контроля доступа и круглосуточная охрана.
Архитектура дома - современный минимализм в благородных материалах: натуральный камень, бронзовые металлические панели, ценные породы дерева и латунные акценты в интерьерах общественных зон.
Локация по-настоящему уникальна: 5 минут до Кремля, остров Балчуг, Третьяковская галерея, набережные и тихие переулки Замоскворечья - всё в пешей доступности. Рядом станции метро «Новокузнецкая» и «Третьяковская», удобный выезд на Садовое кольцо.

Этот пентхаус - сочетание клубной приватности, архитектурной эстетики и редких видов на воду в самом центре Москвы.

Предусмотрен подземный паркинг.

Характеристики

О пентхаусе

Тип сделки
Продажа
Отделка
Есть
Тип объекта
Пентхаус
Этаж
5 из 5
Санузлы
4
Спален | Комнат
5 | 6
Общая площадь
261 м²
Уровней
1
Высота потолков
3.67 м

О жилом комплексе

Количество лотов
43
Площадь квартир
от 44 до 261 м²
Построен
2021
Этажность
5
Тип паркинга
Подземный
Класс
Премиум

Адрес

Город Москва
Округ ЦАО
Район Замоскворечье
Адрес Озерковская наб., 6
Объекты рядом

Все предложения в категориях

Элитная недвижимость в Подмосковье 7471 Элитные квартиры в Москве и Подмосковье 7471 Элитная недвижимость в Москве 5569 Элитные квартиры в Москве 5169 Продажа квартир с базовой ценой в рублях 4892 Недвижимость в центре Москвы 2073 Квартиры премиум-класса 2036 Продажа элитных квартир в центре Москвы 1798 Квартиры в центре в москве 1798 Квартиры с отделкой 1559 Квартиры в сданных домах в Москве 984 Квартиры с панорамными окнами в Москве 848 Квартиры на Замоскворецкой линии метро (Зеленая ветка) 792 Квартиры в пределах Садового кольца 778 Квартиры с отделкой в ЦАО 572 Квартиры с отделкой в сданных домах в Москве 534 Сданные квартиры в ЦАО 473 Квартиры на Калужско-Рижской линии метро (Оранжевая ветка) 409 Купить вторичку в Москве 391 Вторичные квартиры с отделкой 298 Пятикомнатные квартиры в Москве 269 Квартиры в центре Москвы вторичка 257 Пентхаусы в Замоскворечье 181 Пентхаусы в Москве 181 Продажа квартир у метро Третьяковская 175 Пятикомнатные квартиры с отделкой в Москве 154 Пятикомнатные квартиры в сданных домах 143 5-комнатные квартиры в ЦАО 130 Квартиры в Замоскворечье 127 Пятикомнатные квартиры на вторичном рынке 118 Видовые квартиры 110 Видовые квартиры на вторичном рынке 110 Пентхаусы в центре Москвы 109 Сданные видовые квартиры в Москве 108 Квартиры на Новокузнецкой 108 Квартиры с террасой в Москве 103 Продажа пентхаусов в сданных домах 88 Видовые квартиры с отделкой в Москве 84 Квартиры с террасой в сданных домах 83 Продажа пентхаусов с отделкой 76 Пятикомнатные пентхаусы в Москве 75 Квартиры с отделкой и террасой в Москве 67 Квартиры на вторичном рынке с террасой 67 Видовые квартиры в ЦАО 66 Продажа квартиры с отделкой в Замоскворечье 65 Квартиры с террасой в ЦАО 64 Пентхаусы вторичка 55 Продажа пентхаусов с террасой 50 Квартиры на набережной в Москве 44 Видовые пятикомнатные квартиры в Москве 44 Пятикомнатные квартиры с террасой в Москве 44 Квартиры на вторичном рынке у набережных 44 Пятикомнатные пентхаусы в ЦАО 43 Сданные квартиры рядом с набережными в Москве 43 Пятикомнатные пентхаусы с отделкой в Москве 42 Продажа готовых квартир у метро Новокузнецкая 38 Пентхаусы с отделкой в ЦАО 37 Квартиры у набережной в ЦАО 37 Пентхаусы с террасой в ЦАО 36 Продажа видовых пентхаусов в Москве 33 Пентхаусы с отделкой и террасой в Москве 31 Квартиры с отделкой у набережной в Москве 30 Продажа готовых квартир в районе Замоскворечье 30 Продажа готовых квартир у метро Третьяковская 29 Пятикомнатные пентхаусы с террасой в Москве 29 Продажа квартир с отделкой у метро Третьяковская 27 Продажа квартир с отделкой у метро Новокузнецкая 22 Продажа квартир (вторичка) в районе Замоскворечье 19 Квартиры на вторичном рынке у метро Третьяковская 18 Пятикомнатные квартиры в районе Замоскворечье 12 Пятикомнатные квартиры у метро Новокузнецкая 12 Квартиры на вторичном рынке у метро Новокузнецкая 10 Пятикомнатные квартиры у набережной в Москве 10 Квартиры на Озерковской набережной 5 Видовые квартиры в районе Замоскворечье 5 Пентхаусы в районе Замоскворечье 4 Пентхаусы у метро Новокузнецкая 3 Пентхаусы с отделкой в районе Замоскворечье 3 Продажа готовых пентхаусов в районе Замоскворечье 3 Продажа элитных квартир на Озерковской набережной 3 Квартиры с террасой в районе Замоскворечье 3 Пентхаусы с террасой в районе Замоскворечье 2 Пятикомнатные пентхаусы у метро Новокузнецкая 2 Пятикомнатные пентхаусы в районе Замоскворечье 2 Пентхаусы с террасой у метро Новокузнецкая 1 Квартиры с террасой у метро Новокузнецкая 1

Получите подробную презентацию объекта

NF Group

Инфраструктура района

Преимущества
Замоскворечье – тихий и уютный район с исторической малоэтажной застройкой. На территории гармонично сочетаются купеческие и дворянские усадьбы, храмы, проекты реновации и новые клубные дома премиального сегмента. Район окружен акваторией Москвы-реки и имеет выход к Раушской, Космодамианской и Садовнической набережным.
Образование
11 школ и 10 детских садов, среди которых есть частные образовательные учреждения, предоставляющие образование на нескольких языках (Школа № 627 имени Генерала Д.Д. Лелюшенко, Вальдорфская школа имени А.А. Пинского, Экономический лицей РЭУ им. Г.В.Плеханова, Школа № 19 им. В.Г. Белинского, Лицей на Полянке).
Инфраструктура
Атмосферные кафе с прекрасными видами, рестораны премиум-класса, более 40 студий красоты и спа, 11 торговых центров, несколько антикварных и ювелирных салонов; фермерская лавка на Пятницкой, итальянская продуктовая лавка, множество сетевых гастрономов, в том числе 3 магазина «Азбука Вкуса»
Культура
Дома-музеи А. Н. Островского и С. А. Есенина, Театральный музей имени А. А. Бахрушина, филиал Малого театра и Государственная Третьяковская галерея, джаз-клуб Esse.
Спорт
Спортивная школа олимпийского резерва «Москворечье», 15 спортивных центров, среди которых фитнес-клубы со спа-зонами, EMS-фитнес, Crow-studio, фитнес-центр Aqua Spa, студия пилатеса и шпагата Padede, школа йоги и центр дыхательных практик, 15 плавательных бассейнов.
Мед. учреждения
4 многопрофильные клиники, 2 детские поликлиники, центр эстетической и лазерной медицины, более 14 стоматологических клиник с высоким рейтингом
Все
Магазины и услуги
Развлечения
Образование
Спорт и здоровье

Записаться на экскурсию по объекту

Подберите ипотеку

Подавая заявку в несколько банков, вы увеличиваете шанс на одобрение ипотеки
Стоимость недвижимости
20 млн.
950 млн.
Первоначальный взнос
20 %
90 %
Срок
1 год
30 лет
Процентная ставка
3%
100%
Сумма кредита
524 700 000 ₽
Ежемесячный платеж
524 700 000 ₽
индивидуальный %
до 30 лет
индивидуальный %
до 30 лет
индивидуальный %
до 30 лет
индивидуальный %
до 30 лет
индивидуальный %
до 35 лет
индивидуальный %
до 30 лет
NF Group
Особые условия по ипотеке для клиентов NF GROUP

Жилой комплекс «Богенхаус»

Расположение: Комплекс апартаментов премиум-класса BOGENHOUSE расположен на первой линии Озерковской набережной в Замоскворечье, в 5 минутах от Кремля и острова Балчуг. Шаговая доступность станций метро «Новокузнецкая» и «Третьяковская», а также удобный выезд по набережной на Садовое кольцо позволяют оперативно перемещаться по городу.

Площадь 8174 м²
Построен 2021
Этажей 5
Квартир 43
Все предложения в этом комплексе
NF Group

Посмотрите похожие предложения

/
Только в NF GROUP 2 машиноместа в цене
6-комн. пентхаус 286 м², 9-10 этаж - «Дом на Покровском бульваре»
ЦАО Басманный Казарменный пер., 3
430 000 000 ₽ 404 000 000 ₽
Свернуть
ID: as101258

6-комн. пентхаус 286 м², 9-10 этаж - «Дом на Покровском бульваре»

ЦАО Басманный Казарменный пер., 3
430 000 000 ₽ 404 000 000 ₽
Площадь 286 м²
Этаж 9-10
4 спальни
6 комнат
С мебелью
 Дарья Чапчикова
Дарья Чапчикова
Консультант
5-комн. пентхаус 159 м², 45 этаж - «Ривер Парк Кутузовский»
ЗАО Дорогомилово Кутузовский проезд, 16
317 400 000 ₽
Свернуть
ID: as88582

5-комн. пентхаус 159 м², 45 этаж - «Ривер Парк Кутузовский»

ЗАО Дорогомилово Кутузовский проезд, 16
317 400 000 ₽
Площадь 158 м²
Этаж 45
4 спальни
5 комнат
С мебелью
 Константин Андрюшин
Константин Андрюшин
Директор направления по продажам новостроек
4-комн. пентхаус 147 м², 9 этаж - «Тишинский бульвар»
ЦАО Пресненский Электрический пер, 1
396 940 000 ₽
Свернуть
ID: as79931

4-комн. пентхаус 147 м², 9 этаж - «Тишинский бульвар»

ЦАО Пресненский Электрический пер, 1
Белорусская
396 940 000 ₽
Площадь 147 м²
Этаж 9
4 комнаты
Без отделки
 Константин Андрюшин
Константин Андрюшин
Директор направления по продажам новостроек
3-комн. пентхаус 171 м², 7 этаж - «Дом на Селезневской»
ЦАО Тверской Селезневская ул., 22
400 000 000 ₽
Свернуть
ID: as106074

3-комн. пентхаус 171 м², 7 этаж - «Дом на Селезневской»

ЦАО Тверской Селезневская ул., 22
400 000 000 ₽
Площадь 171 м²
Этаж 7
2 спальни
3 комнаты
С мебелью
 Гая Григорян
Гая Григорян
Старший консультант
4-комн. пентхаус 152 м², 6 этаж - «Тишинский бульвар»
ЦАО Пресненский Электрический пер, 1
335 110 000 ₽
Свернуть
ID: as79768

4-комн. пентхаус 152 м², 6 этаж - «Тишинский бульвар»

ЦАО Пресненский Электрический пер, 1
Белорусская
335 110 000 ₽
Площадь 151 м²
Этаж 6
4 комнаты
Без отделки
 Константин Андрюшин
Константин Андрюшин
Директор направления по продажам новостроек
4-комн. пентхаус 178 м², 9 этаж - «Тишинский бульвар»
ЦАО Пресненский Электрический пер, 1
368 210 000 ₽
Свернуть
ID: as79907

4-комн. пентхаус 178 м², 9 этаж - «Тишинский бульвар»

ЦАО Пресненский Электрический пер, 1
Белорусская
368 210 000 ₽
Площадь 178 м²
Этаж 9
4 комнаты
Без отделки
 Константин Андрюшин
Константин Андрюшин
Директор направления по продажам новостроек
5-комн. пентхаус 158 м², 45 этаж - «Ривер Парк Кутузовский»
ЗАО Дорогомилово Кутузовский проезд, 16
393 750 000 ₽
Свернуть
ID: as88581

5-комн. пентхаус 158 м², 45 этаж - «Ривер Парк Кутузовский»

ЗАО Дорогомилово Кутузовский проезд, 16
393 750 000 ₽
Площадь 157 м²
Этаж 45
4 спальни
5 комнат
С мебелью
 Константин Андрюшин
Константин Андрюшин
Директор направления по продажам новостроек
5-комн. пентхаус 183 м², 7 этаж - «Тишинский бульвар»
ЦАО Пресненский Электрический пер, 1
370 370 000 ₽
Свернуть
ID: as79800

5-комн. пентхаус 183 м², 7 этаж - «Тишинский бульвар»

ЦАО Пресненский Электрический пер, 1
Белорусская
370 370 000 ₽
Площадь 182 м²
Этаж 7
5 комнат
Без отделки
 Константин Андрюшин
Константин Андрюшин
Директор направления по продажам новостроек
2-комн. пентхаус 127 м², 14 этаж - «Тишинский бульвар»
ЦАО Пресненский Электрический пер, 1
390 330 000 ₽
Свернуть
ID: as91095

2-комн. пентхаус 127 м², 14 этаж - «Тишинский бульвар»

ЦАО Пресненский Электрический пер, 1
Белорусская
390 330 000 ₽
Площадь 126 м²
Этаж 14
2 комнаты
Без отделки
 Константин Андрюшин
Константин Андрюшин
Директор направления по продажам новостроек
6-комн. пентхаус 223 м², 13 этаж - «Звезды Арбата»
ЦАО Арбат Новый Арбат ул., 32
334 500 000 ₽
Свернуть
ID: as48057

6-комн. пентхаус 223 м², 13 этаж - «Звезды Арбата»

ЦАО Арбат Новый Арбат ул., 32
Смоленская, Краснопресненская
334 500 000 ₽
Площадь 223 м²
Этаж 13
4 спальни
6 комнат
Без отделки
 Константин Андрюшин
Константин Андрюшин
Директор направления по продажам новостроек

Отзывы застройщиков о NF GROUP

/
Башня «Федерации» рекомендует международную консалтинговую компанию NF GROUP как верного и профессионального партнера, обладающего высочайшей экспертизой и передовыми знаниями в сфере элитной недвижимости.
Читать весь отзыв
Смирнов М. Ю.
Смирнов М. Ю.
Генеральный директор
«Центр-Инвест» выражает особую благодарность консалтинговой компании NF GROUP за ответственный и грамотный подход, а также исключительное качество услуг.
Читать весь отзыв
Задорожная Джанет Бекманбетовна
Задорожная Джанет Бекманбетовна
Руководитель проектов продаж Департамента продаж премиальных проектов
Благодарим NF GROUP за внимательное отношение к интересам нашей компании и непревзойденный профессионализм.
Читать весь отзыв
Непейвода А.А.
Непейвода А.А.
Руководитель департамента маркетинга и продаж
Благодарим команду NF GROUP за многолетнее успешное сотрудничество и партнерские отношения в работе.
Читать весь отзыв
Дивеева О.А.
Дивеева О.А.
Директор по продажам Capital Group

Получите консультацию эксперта NF GROUP

Как вам удобнее общаться?
Инна Гайкевич
Инна Гайкевич
Старший консультант

Инна присоединилась к международной консалтинговой компании NF GROUP (ранее — Knight Frank Russia) в 2021 году, начав работу в должности старшего консультанта. Общий опыт Инны в сфере элитной жилой недвижимости Москвы составляет более 7 лет. В своей деятельности Инна консультирует клиентов по вопросам покупки и подбора недвижимости в премиальном и элитном сегментах, сопровождает сделки «Под ключ» — от выявления потребностей до оформления сделки, а также взаимодействует с собственниками и представителями застройщиков. Инна активно участвует в развитии партнёрских отношений с ведущими девелоперами столицы, укрепляя позиции компании на рынке высокобюджетной недвижимости.

Её экспертный подход, стратегическое мышление и высокий уровень сервиса позволяют успешно решать задачи самого высокого уровня.

NF Group
Авторизация
Мы используем файлы cookie, чтобы улучшить сервис для вас.
Соглашение об использовании