+7 (495) 032-68-64 Продать объект Продать объект
О компании Аналитика Стать партнёром Карьера Контакты
«Скарятинский переулок, 7» (Скарятинский переулок, 7)
NF Group
NF Group
NF Group
NF Group
NF Group
NF Group
NF Group
NF Group
NF Group
NF Group
NF Group
NF Group
NF Group
NF Group
NF Group
NF Group
NF Group
NF Group
NF Group
NF Group
NF Group
NF Group
NF Group
NF Group
NF Group
NF Group
NF Group
NF Group
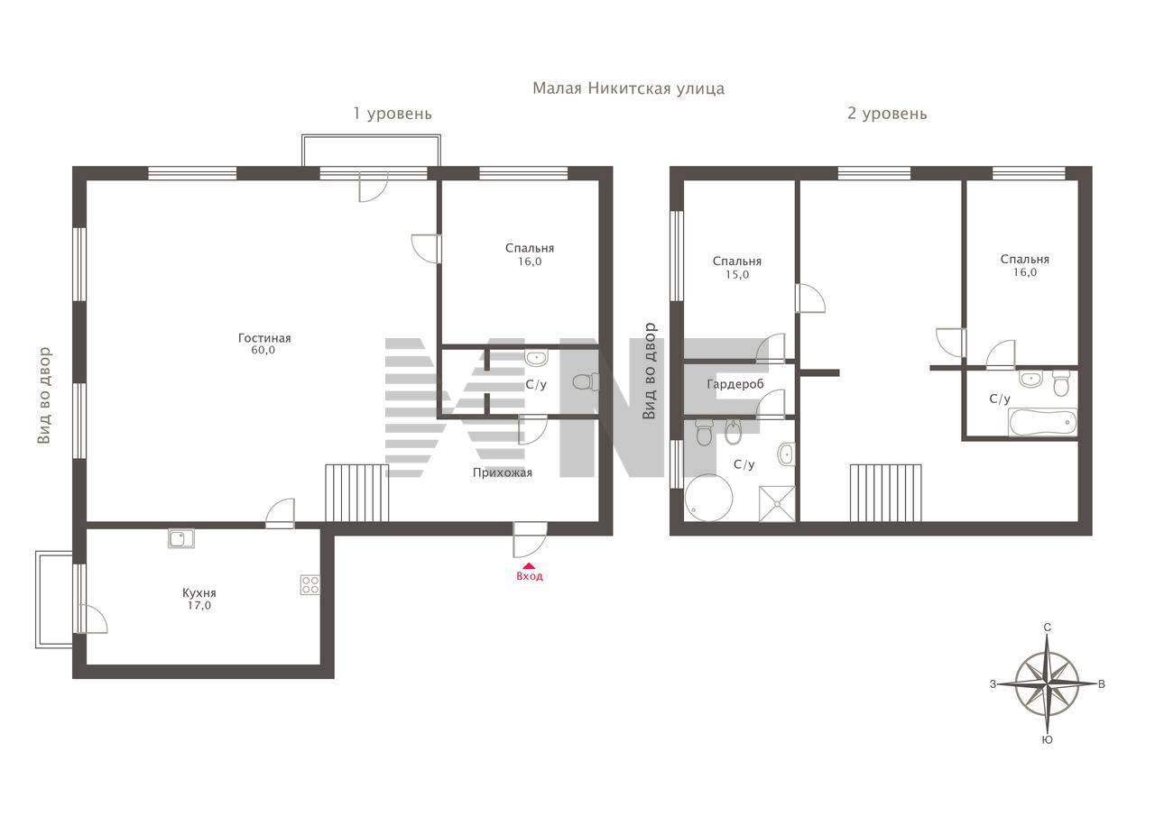
Планировка

4-комн. квартира 231 м² 3-4 этаж из 5

Краснопресненская, Баррикадная, Арбатская
Этажей 5 Год постройки 2001 г.
950 000
750 000
11 744
9 272
10 172
8 031
$
/мес.
Whatsapp
950 000
750 000
11 744
9 272
10 172
8 031
$
/мес.
ID al41230
 Андрей Соловьев
Андрей Соловьев
Партнер, Региональный директор департамента жилой недвижимости
NF Group
Предложите нам свою цену, и мы свяжемся с вами

Описание

В долгосрочную аренду предлагается двухуровневая квартира в Скорятинском переулке.
Планировка:
Первый уровень: просторная гостиная с выходом на открытый балкон, изолированная кухня, кабинет, гостевой санузел;
Второй уровень: две спальни с собственными ванными.
Выполнена отделка в современном стиле, комнаты меблированы, квартира оснащена качественной бытовой техникой.
Окна ориентированы на две стороны: на Малую Никитскую, внутренний двор и Высотку на Кудринской площади.
Машино-место в подземном паркинге за отдельную стоимость.
Квартира расположена в современном жилом комплексе в районе метро «Краснопресненская». Презентабельная входная группа, охрана и видеонаблюдение, лифты Kone.

Характеристики

О квартире

Тип сделки
Аренда
Отделка
Есть
Тип объекта
Квартира
Этаж
3-4 из 5
Санузлы
3
Спален | Комнат
2 | 4
Общая площадь
231 м²
Тип паркинга
Подземный
Уровней
2
Меблировка
Есть
Высота потолков
3.2 м

О жилом комплексе

Количество лотов
17
Площадь квартир
от 231 м²
Построен
2001
Этажность
5
Тип паркинга
Подземный
Класс
Элит

Адрес

Город Москва
Округ ЦАО
Район Пресненский
Адрес Скарятинский пер., 7

Все предложения в категориях

Аренда элитной недвижимости в Подмосковье 188 Аренда элитных квартир в Москве и Подмосковье 103 Аренда элитной недвижимости в Москве и Подмосковье 102 Аренда квартир в жилых комплексах Москвы и Подмосковья 99 Аренда квартир с отделкой в Москве 61 Аренда элитной квартиры в Москве 61 Скидки на аренду элитной недвижимости в Москве и Подмосковье 60 Аренда квартир с мебелью в Москве 56 Скидки на аренду элитной недвижимости в Москве 56 Аренда квартир в ЦАО 53 Аренда четырехкомнатных квартир в Москве 19 Аренда квартир на Баррикадной 16 Аренда квартир на Маяковской 14 Аренда двухуровневых квартир в Москве 13 Аренда готовых квартир в районе Пресненский 12 Аренда квартиры с отделкой в Пресненском районе 12 Аренда квартиры в Пресненском районе 12 Аренда квартир на Белорусской 12 Аренда квартир с балконом в Москве 10 Аренда квартир у метро Арбатская 5 Аренда квартир у метро Краснопресненская 4 Аренда квартиры на Патриарших Прудах 3

Получите подробную презентацию объекта

NF Group

Инфраструктура района

Преимущества
Пресненский район – один из наиболее продвинутых с точки зрения социальной, коммерческой, транспортной инфраструктуры. Локация состоит из трех популярных мини-районов: Патриарших прудов, Пресни и «Большого Сити».
Образование
В Пресненском районе хорошо развита социальная инфраструктура, в частности, здесь находятся ведущие московские школы с углубленным изучением иностранных языков (№1241, «Виктория», №1232, №56), детские развивающие центры (музыкальная школа, центр развития творчества и др.) и спортивные секции (более 10 клубов и спортшкол), престижные вузы (ГИТИС, МГЮА, РГГУ, Военный институт обороны РФ).
Инфраструктура
ТРЦ «Европейский», торговые площадки «Москвы-Сити», более 30 ресторанов, в том числе сетевые кофейни, суши-бары и уникальные заведения (например, рестораны с живой музыкой и панорамными видами в небоскребах делового центра), более 13 салонов красоты и спа
Культура
В районе всегда найдется куда сходить. Центр современного искусства, Музей Востока, более 20 старинных храмов, 26 театров, самые известные из которых – МХАТ им. Горького, театр Сатиры, театры им. Пушкина и Маяковского, Планетарий.
Спорт
Более 12 фитнес-клубов с бассейнами, среди которых премиальные фитнес-центры A-Fitness, World Class, Encore и Black Star Fitness, 2 теннисных центра, 4 открытых катка.
Мед. учреждения
Более 10 частных многопрофильных клиник премиум-класса, Детская городская клиническая больница №9 им. Г. Н. Сперанского
Все
Магазины и услуги
Развлечения
Образование
Спорт и здоровье

Записаться на экскурсию по объекту

Жилой комплекс «Скарятинский переулок, 7»

Жилой дом на Скарятинском переулке, 7 выполнен по индивидуальному архитектурному проекту в стиле русского классицизма в 2001 году. В состав дома входят 2 секции переменной этажности (3-5). Стены окрашены в желтый цвет, цокольная часть облицована серым гранитом. Декор фасада представлен наличниками, карнизами, розетками. Балконы и французские окна ограждены решетками ручной ковки. В жилой фонд входят 17 квартир площадью от 80 до 250 кв. м. Высота потолков — 3 м. Безопасность дома гарантирует многоуровневая система охраны и контроля доступа. Видеонаблюдение по периметру. Презентабельная входная группа оснащена грузовым и пассажирским лифтами Kone с доступом к подземному паркингу на 22 машиноместа.На придомовой территории с детской и спортивной площадками выполнено комплексное озеленение, оборудованы зоны для отдыха. Ближайшие станции метро — «Баррикадная», «Краснопресненская». В пешей доступности — сквер Бунина, Московский зоопарк, Московский планетарий, театр на Малой Бронной, Московский Кремль, Александровский сад, Храм Христа Спасителя, парк «Зарядье». Удобный доступ к Садовому и Бульварному кольцам, набережным Москва-реки, улицам Новый Арбат и Красная Пресня.
Площадь 4042 м²
Построен 2001
Этажей 5
Квартир 17
Все предложения в этом комплексе
NF Group

Посмотрите похожие предложения

/
Только в NF GROUP
3-комн. квартира 135 м² 7 этаж из 9
ЦАО Замоскворечье Бахрушина улица, 13
700 000 ₽ в месяц
Свернуть
ID: al97937

3-комн. квартира 135 м² 7 этаж из 9

ЦАО Замоскворечье Бахрушина улица, 13
Павелецкая
700 000 ₽ в месяц
Площадь 135 м²
Этаж 7
2 спальни
3 комнаты
С мебелью
 Анастасия Кадошникова
Анастасия Кадошникова
Консультант по аренде элитной недвижимости
WhatsApp Позвонить
5-комн. квартира 208 м² 4 этаж из 7
ЦАО Хамовники Молочный пер.
800 000 ₽ в месяц
Свернуть
ID: al39367

5-комн. квартира 208 м² 4 этаж из 7

ЦАО Хамовники Молочный пер.
Парк Культуры
800 000 ₽ в месяц
Площадь 207 м²
Этаж 4
4 спальни
5 комнат
С мебелью
WhatsApp Позвонить
4-комн. квартира 147 м² 6 этаж из 6
ЦАО Хамовники Остоженка ул., 27 к. 2
800 000 ₽ в месяц
Свернуть
ID: al22486

4-комн. квартира 147 м² 6 этаж из 6

ЦАО Хамовники Остоженка ул., 27 к. 2
800 000 ₽ в месяц
Площадь 147 м²
Этаж 6
2 спальни
4 комнаты
С мебелью
WhatsApp Позвонить
3-комн. квартира 200 м² 2 этаж из 6
ЦАО Хамовники Коробейников пер., 1
850 000 ₽ в месяц
Свернуть
ID: al42565

3-комн. квартира 200 м² 2 этаж из 6

ЦАО Хамовники Коробейников пер., 1
Парк Культуры, Кропоткинская
850 000 ₽ в месяц
Площадь 200 м²
Этаж 2
2 спальни
3 комнаты
С мебелью
WhatsApp Позвонить
4-комн. квартира 180 м² 10 этаж из 12
ЦАО Тверской Тверской-Ямской 1-й пер., 11
700 000 ₽ в месяц 680 000 ₽ в месяц
Свернуть
ID: al22681

4-комн. квартира 180 м² 10 этаж из 12

ЦАО Тверской Тверской-Ямской 1-й пер., 11
700 000 ₽ в месяц 680 000 ₽ в месяц
Площадь 180 м²
Этаж 10
2 спальни
4 комнаты
С мебелью
WhatsApp Позвонить
6-комн. квартира 310 м² 9 этаж из 12
ЗАО Раменки Улофа Пальме ул., 7
900 000 ₽ в месяц 800 000 ₽ в месяц
Свернуть
ID: al39423

6-комн. квартира 310 м² 9 этаж из 12

ЗАО Раменки Улофа Пальме ул., 7
900 000 ₽ в месяц 800 000 ₽ в месяц
Площадь 310 м²
Этаж 9
4 спальни
6 комнат
С мебелью
WhatsApp Позвонить
Квартира с красивыми видами
4-комн. квартира 211 м² 21 этаж из 53
ЗАО Раменки Мосфильмовская ул., 8
750 000 ₽ в месяц 650 000 ₽ в месяц
Свернуть
ID: al22227

4-комн. квартира 211 м² 21 этаж из 53

ЗАО Раменки Мосфильмовская ул., 8
750 000 ₽ в месяц 650 000 ₽ в месяц
Площадь 210 м²
Этаж 21
3 спальни
4 комнаты
С мебелью
 Анастасия Кадошникова
Анастасия Кадошникова
Консультант по аренде элитной недвижимости
WhatsApp Позвонить
5-комн. квартира 217 м² 6 этаж из 8
ЦАО Замоскворечье Озерковская наб., 52А
700 000 ₽ в месяц 650 000 ₽ в месяц
Свернуть
ID: al38485

5-комн. квартира 217 м² 6 этаж из 8

ЦАО Замоскворечье Озерковская наб., 52А
Таганская, Павелецкая, Новокузнецкая
700 000 ₽ в месяц 650 000 ₽ в месяц
Площадь 217 м²
Этаж 6
4 спальни
5 комнат
С мебелью
WhatsApp Позвонить

Отзывы застройщиков о NF GROUP

/
Башня «Федерации» рекомендует международную консалтинговую компанию NF GROUP как верного и профессионального партнера, обладающего высочайшей экспертизой и передовыми знаниями в сфере элитной недвижимости.
Читать весь отзыв
Смирнов М. Ю.
Смирнов М. Ю.
Генеральный директор
«Центр-Инвест» выражает особую благодарность консалтинговой компании NF GROUP за ответственный и грамотный подход, а также исключительное качество услуг.
Читать весь отзыв
Задорожная Джанет Бекманбетовна
Задорожная Джанет Бекманбетовна
Руководитель проектов продаж Департамента продаж премиальных проектов
Благодарим NF GROUP за внимательное отношение к интересам нашей компании и непревзойденный профессионализм.
Читать весь отзыв
Непейвода А.А.
Непейвода А.А.
Руководитель департамента маркетинга и продаж
Благодарим команду NF GROUP за многолетнее успешное сотрудничество и партнерские отношения в работе.
Читать весь отзыв
Дивеева О.А.
Дивеева О.А.
Директор по продажам Capital Group

Получите консультацию эксперта NF GROUP

Как вам удобнее общаться?
Андрей Соловьев
Андрей Соловьев
Партнер, Региональный директор департамента жилой недвижимости

Андрей работает на российском рынке недвижимости более 12 лет. Имеет огромный опыт в разработке и реализации стратегий, обеспечивающих рост выручки и доходов компании в разных сегментах. Андрей консультировал клиентов в крупных и наиболее сложных на рынке сделках.

В компании «Метриум» управлял проектами «Матч Поинт», «Триумфальный», «Ленинский 38» – сегмент «бизнес», а также «Резиденция Тверская», «Софийская» – сегмент «элит». 

На позиции Директора департамента загородной жилой недвижимости NF Group Андрей добился трехкратного прироста выручки департамента за 3 года, а также внес значительный вклад в формирование репутации компании-лидера на рынке загородной недвижимости. Во время работы в департаменте жилой недвижимости NF Group завершил успешную реструктуризацию департамента и внедрение системы KPI, которые обеспечили рост продаж и увеличили выручку; улучшение политики и практики продаж департамента; внедрение и развитие системы стандартов клиентского сервиса и услуг. Андрей контролировал сделки стоимостью 350 млн евро, а его персональные сделки достигали 75 млн евро. 

В 2019 году Андрей стал победителем отраслевой премии «Репутация» (ассоциация профессионалов рынка недвижимости REPA) в номинации «Руководитель отдела продаж года». 

NF Group
Авторизация
Мы используем файлы cookie, чтобы улучшить сервис для вас.
Соглашение об использовании