Москва
Санкт-Петербург
+7 (495) 032-68-64 Продать объект Продать объект
Москва
Санкт-Петербург
О компании Аналитика Стать партнёром Карьера Контакты
MOD (МОД)
NF Group
NF Group
NF Group
NF Group
NF Group
NF Group
NF Group
NF Group
NF Group
NF Group
NF Group
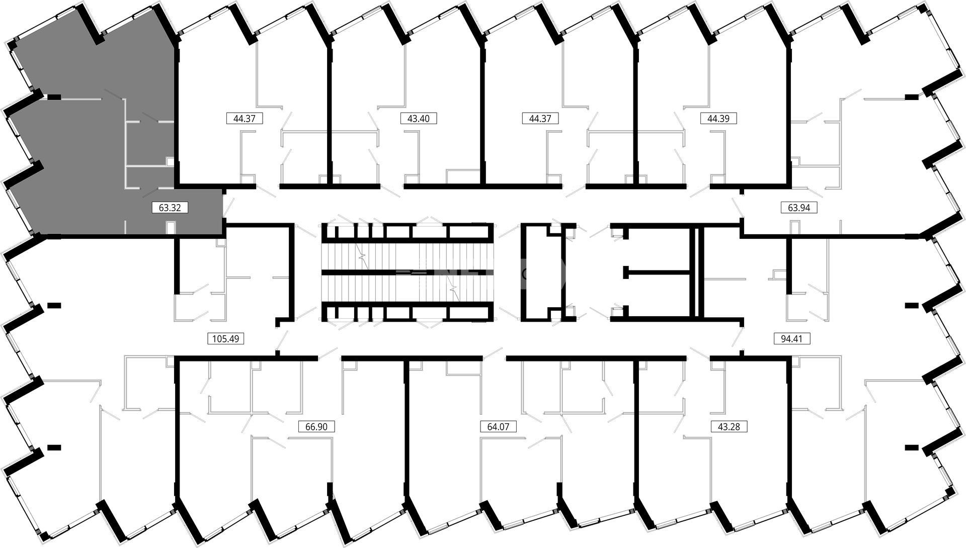
Планировка

1-комн. квартира 63 м², 9 этаж - MOD

Рижская, Марьина Роща, Достоевская
Этажей 9 Срок сдачи 2 квартал 2025 г.
41 411 280
654 000  ₽/м²
511 970
8 085  $/м²
443 447
7 003  €/м²
$
Whatsapp
41 411 280
654 000  ₽/м²
511 970
8 085  $/м²
443 447
7 003  €/м²
$
ID as90826
 Константин Андрюшин
Константин Андрюшин
Директор направления по продажам новостроек
NF Group
Предложите нам свою цену, и мы свяжемся с вами

Описание

Mod — это жилой комплекс премиум-класса, расположенный в историческом районе Москвы Марьина Роща. Он состоит из двух клубных домов (9 этажей) и трех башен (44–55 этажей).

Комплекс предлагает приватную атмосферу благодаря закрытой территории, благоустроенному пространству и эксплуатируемым кровлям. Для маленьких жителей предусмотрен детский сад и образовательный центр, а городская площадь, ресторан, супермаркет и коммерческая инфраструктура добавляют динамики.

Название комплекса происходит от слова «модернизм». Башни названы в честь писателей-модернистов, а клубные дома — в честь женщин. Высокие башни олицетворяют силу и надежность, а клубные дома — женскую красоту и уединение.

Преимущества комплекса MOD:

  • Авторская архитектура

  • Фасады из натурального камня

  • Панорамное остекление

  • Высота потолков до 4,8 м

  • Отделка MR Base

  • Многоуровневое благоустройство

  • Детский сад

  • Подземный паркинг

  • Удобное расположение: 5 минут до метро «Марьина Роща», 3 минуты до ТТК, 15 минут до Цветного бульвара

Характеристики

О квартире

Тип сделки
Продажа
Отделка
Есть
Тип объекта
Квартира
Этаж
9 из 9
Общая площадь
63 м²
Уровней
1
Высота потолков
от 3 до 4.8 м

О жилом комплексе

Площадь квартир
от 41 до 112 м²
Строится
2 кв. 2025
Этажность
9
Класс
Премиум

Адрес

Город Москва
Округ СВАО
Район Марьина Роща
Адрес Марьиной Рощи 4-я ул.

Все предложения в категориях

Коммерческая недвижимость в Москве 18410 Элитная недвижимость в Подмосковье 7958 Продажа квартир с базовой ценой в рублях 6277 Элитная недвижимость в Москве 6277 Элитные квартиры в Москве и Подмосковье 6152 Элитные квартиры в Москве 5911 Квартиры в новостройках (ЖК) Москвы 5554 Строящиеся квартиры в Москве 4922 Квартиры в пределах МКАД 3743 Недвижимость от застройщика МР Групп 1859 Квартиры от застройщика МР Групп 1847 Квартиры с отделкой 1350 Вторичное жилье: однокомнатные квартиры в Москве 1204 Однокомнатные элитные квартиры 1163 Квартиры в новостройке с отделкой 1103 Строящиеся однокомнатные квартиры 1053 Квартиры с отделкой в строящихся домах в Москве 955 Купить квартиру площадью 60 кв. м. в Москве 692 Квартиры на Калужско-Рижской линии метро (Оранжевая ветка) 494 Квартиры в Мещанском районе 343 Квартиры на Люблинско-Дмитровской линии метро (Салатовая ветка) 264 Квартиры в СВАО Москвы 129 Продажа квартир у метро Рижская 110 Продажа 1-комнатных квартир с отделкой 110 Продажа квартир у метро Достоевская 109 Продажа квартир у метро Марьина Роща 108 Квартиры в районе Марьина роща 108

Получите подробную презентацию объекта

NF Group

Инфраструктура района

Преимущества
Удобная транспортная сеть (быстрый доступ к ТТК, проспекту Мира и Бутырской улице, переходящей в Дмитровское шоссе); хорошо развитая социальная инфраструктура
Образование
Более 20 образовательных центров, среди которых Российская академия путей сообщения, Международная академия бизнеса и управления, Институт математики и информатики МГПУ; 6 центров развития и дополнительного образования
Инфраструктура
Более 20 кафе и ресторанов, 6 торговых центров, 9 салонов красоты
Культура
Театр «Сатирикон», Центральный Музей Вооруженных Сил РФ, Еврейский музей, Центр толерантности, центр «Планета КВН», Музей железнодорожного транспорта, 3 библиотеки, 3 кинотеатра
Спорт
Большой плавательный бассейн , 8 фитнес-клубов, в том числе World Class и клуб единоборств
Мед. учреждения
22 частных медцентра, 19 стоматологий
Все
Магазины и услуги
Развлечения
Образование
Спорт и здоровье

Записаться на экскурсию по объекту

Подберите ипотеку

Подавая заявку в несколько банков, вы увеличиваете шанс на одобрение ипотеки
Стоимость недвижимости
20 млн.
950 млн.
Первоначальный взнос
20 %
90 %
Срок
1 год
30 лет
Процентная ставка
3%
100%
Сумма кредита
524 700 000 ₽
Ежемесячный платеж
524 700 000 ₽
индивидуальный %
до 30 лет
индивидуальный %
до 30 лет
индивидуальный %
до 30 лет
индивидуальный %
до 30 лет
индивидуальный %
до 35 лет
индивидуальный %
до 30 лет
NF Group
Особые условия по ипотеке для клиентов NF GROUP

Новостройка MOD

Mod — это жилой комплекс премиум-класса, расположенный в историческом районе Москвы Марьина Роща. Он состоит из двух клубных домов (9 этажей) и трех башен (44–55 этажей).

Комплекс предлагает приватную атмосферу благодаря закрытой территории, благоустроенному пространству и эксплуатируемым кровлям. Для маленьких жителей предусмотрен детский сад и образовательный центр, а городская площадь, ресторан, супермаркет и коммерческая инфраструктура добавляют динамики.

Строится 2 кв. 2025
Этажей 9
Все предложения в этом комплексе
NF Group

Посмотрите похожие предложения

/
Только в NF GROUP
3-комн. квартира 113 м², 2 этаж - Arkada House
ЗАО Теплый Стан Островитянова улица, 4
45 000 000 ₽
Свернуть
ID: as97163

3-комн. квартира 113 м², 2 этаж - Arkada House

ЗАО Теплый Стан Островитянова улица, 4
45 000 000 ₽
Площадь 113 м²
Этаж 2
2 спальни
3 комнаты
С мебелью
 Ксения Токарь
Ксения Токарь
Младший консультант
WhatsApp Позвонить
4-комн. квартира 108 м², 16 этаж - City Bay
СЗАО Покровское-Стрешнево Волоколамское ш., 95, к. 4
46 034 016 ₽
Свернуть
ID: as90365

4-комн. квартира 108 м², 16 этаж - City Bay

СЗАО Покровское-Стрешнево Волоколамское ш., 95, к. 4
46 034 016 ₽
Площадь 108 м²
Этаж 16
4 комнаты
Без отделки
 Константин Андрюшин
Константин Андрюшин
Директор направления по продажам новостроек
WhatsApp Позвонить
2-комн. квартира 66 м², 29 этаж - MOD
СВАО Марьина Роща Марьиной Рощи 4-я ул.
40 887 156 ₽
Свернуть
ID: as90827

2-комн. квартира 66 м², 29 этаж - MOD

СВАО Марьина Роща Марьиной Рощи 4-я ул.
MOD
40 887 156 ₽
Площадь 65 м²
Этаж 29
2 комнаты
Без отделки
 Константин Андрюшин
Константин Андрюшин
Директор направления по продажам новостроек
WhatsApp Позвонить
2-комн. квартира 57 м², 8 этаж - HideOUT
ЗАО Раменки пр-д 3-й Сетуньский, 10
45 440 000 ₽
Свернуть
ID: as96308

2-комн. квартира 57 м², 8 этаж - HideOUT

ЗАО Раменки пр-д 3-й Сетуньский, 10
45 440 000 ₽
Площадь 56 м²
Этаж 8
2 комнаты
Без отделки
 Константин Андрюшин
Константин Андрюшин
Директор направления по продажам новостроек
WhatsApp Позвонить
2-комн. квартира 46 м², 13 этаж - HideOUT
ЗАО Раменки пр-д 3-й Сетуньский, 10
37 385 550 ₽
Свернуть
ID: as96346

2-комн. квартира 46 м², 13 этаж - HideOUT

ЗАО Раменки пр-д 3-й Сетуньский, 10
37 385 550 ₽
Площадь 45 м²
Этаж 13
2 комнаты
Без отделки
 Константин Андрюшин
Константин Андрюшин
Директор направления по продажам новостроек
WhatsApp Позвонить
2-комн. квартира 65 м², 17 этаж - MOD
СВАО Марьина Роща Марьиной Рощи 4-я ул.
39 200 084 ₽
Свернуть
ID: as90809

2-комн. квартира 65 м², 17 этаж - MOD

СВАО Марьина Роща Марьиной Рощи 4-я ул.
MOD
39 200 084 ₽
Площадь 65 м²
Этаж 17
2 комнаты
Без отделки
 Константин Андрюшин
Константин Андрюшин
Директор направления по продажам новостроек
WhatsApp Позвонить
2-комн. квартира 48 м², 5 этаж - HideOUT
ЗАО Раменки пр-д 3-й Сетуньский, 10
37 488 000 ₽
Свернуть
ID: as96281

2-комн. квартира 48 м², 5 этаж - HideOUT

ЗАО Раменки пр-д 3-й Сетуньский, 10
37 488 000 ₽
Площадь 48 м²
Этаж 5
2 комнаты
Без отделки
 Константин Андрюшин
Константин Андрюшин
Директор направления по продажам новостроек
WhatsApp Позвонить
2-комн. квартира 80 м², 3 этаж - MOD
СВАО Марьина Роща Марьиной Рощи 4-я ул.
42 762 718 ₽
Свернуть
ID: as90894

2-комн. квартира 80 м², 3 этаж - MOD

СВАО Марьина Роща Марьиной Рощи 4-я ул.
MOD
42 762 718 ₽
Площадь 80 м²
Этаж 3
2 комнаты
Без отделки
 Константин Андрюшин
Константин Андрюшин
Директор направления по продажам новостроек
WhatsApp Позвонить
2-комн. квартира 67 м², 36 этаж - MOD
СВАО Марьина Роща Марьиной Рощи 4-я ул.
39 149 838 ₽
Свернуть
ID: as90882

2-комн. квартира 67 м², 36 этаж - MOD

СВАО Марьина Роща Марьиной Рощи 4-я ул.
MOD
39 149 838 ₽
Площадь 66 м²
Этаж 36
2 комнаты
Без отделки
 Константин Андрюшин
Константин Андрюшин
Директор направления по продажам новостроек
WhatsApp Позвонить
3-комн. квартира 77 м², 39 этаж - City Bay
СЗАО Покровское-Стрешнево Волоколамское ш., 95, к. 4
40 706 447 ₽
Свернуть
ID: as93493

3-комн. квартира 77 м², 39 этаж - City Bay

СЗАО Покровское-Стрешнево Волоколамское ш., 95, к. 4
40 706 447 ₽
Площадь 76 м²
Этаж 39
3 комнаты
Без отделки
 Константин Андрюшин
Константин Андрюшин
Директор направления по продажам новостроек
WhatsApp Позвонить

Отзывы застройщиков о NF GROUP

/
Башня «Федерации» рекомендует международную консалтинговую компанию NF GROUP как верного и профессионального партнера, обладающего высочайшей экспертизой и передовыми знаниями в сфере элитной недвижимости.
Читать весь отзыв
Смирнов М. Ю.
Смирнов М. Ю.
Генеральный директор
«Центр-Инвест» выражает особую благодарность консалтинговой компании NF GROUP за ответственный и грамотный подход, а также исключительное качество услуг.
Читать весь отзыв
Задорожная Джанет Бекманбетовна
Задорожная Джанет Бекманбетовна
Руководитель проектов продаж Департамента продаж премиальных проектов
Благодарим NF GROUP за внимательное отношение к интересам нашей компании и непревзойденный профессионализм.
Читать весь отзыв
Непейвода А.А.
Непейвода А.А.
Руководитель департамента маркетинга и продаж
Благодарим команду NF GROUP за многолетнее успешное сотрудничество и партнерские отношения в работе.
Читать весь отзыв
Дивеева О.А.
Дивеева О.А.
Директор по продажам Capital Group

Получите консультацию эксперта NF GROUP

Как вам удобнее общаться?
Константин Андрюшин
Константин Андрюшин
Директор направления по продажам новостроек
NF Group
Авторизация
Мы используем файлы cookie, чтобы улучшить сервис для вас.
Соглашение об использовании