+7 (495) 032-68-64 Продать объект Продать объект
О компании Аналитика Стать партнёром Карьера Контакты
MOD (МОД)
NF Group
NF Group
NF Group
NF Group
NF Group
NF Group
NF Group
NF Group
NF Group
NF Group
NF Group
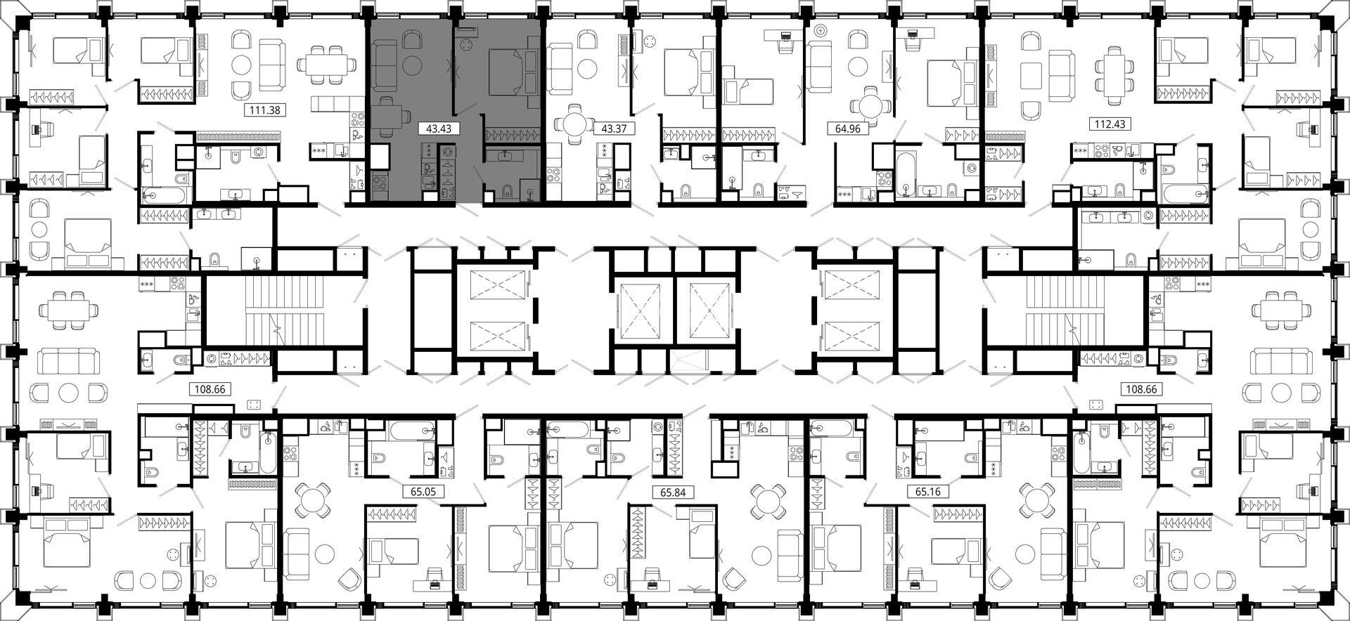
Планировка

1-комн. квартира 43 м², 49 этаж - MOD

Рижская, Марьина Роща, Достоевская
Этажей 55 Срок сдачи 2 квартал 2025 г.
26 833 835
619 289  ₽/м²
331 349
7 647  $/м²
283 705
6 547  €/м²
$
Whatsapp
26 833 835
619 289  ₽/м²
331 349
7 647  $/м²
283 705
6 547  €/м²
$
ID as90807
 Константин Андрюшин
Константин Андрюшин
Директор направления по продажам новостроек
NF Group
Предложите нам свою цену, и мы свяжемся с вами

Описание

Mod — это жилой комплекс премиум-класса, расположенный в историческом районе Москвы Марьина Роща. Он состоит из двух клубных домов (9 этажей) и трех башен (44–55 этажей).

Комплекс предлагает приватную атмосферу благодаря закрытой территории, благоустроенному пространству и эксплуатируемым кровлям. Для маленьких жителей предусмотрен детский сад и образовательный центр, а городская площадь, ресторан, супермаркет и коммерческая инфраструктура добавляют динамики.

Название комплекса происходит от слова «модернизм». Башни названы в честь писателей-модернистов, а клубные дома — в честь женщин. Высокие башни олицетворяют силу и надежность, а клубные дома — женскую красоту и уединение.

Преимущества комплекса MOD:

  • Авторская архитектура

  • Фасады из натурального камня

  • Панорамное остекление

  • Высота потолков до 4,8 м

  • Отделка MR Base

  • Многоуровневое благоустройство

  • Детский сад

  • Подземный паркинг

  • Удобное расположение: 5 минут до метро «Марьина Роща», 3 минуты до ТТК, 15 минут до Цветного бульвара

Характеристики

О квартире

Тип сделки
Продажа
Отделка
Под отделку
Тип объекта
Квартира
Этаж
49 из 55
Общая площадь
43 м²
Уровней
1
Высота потолков
от 3 до 4.8 м

О жилом комплексе

Площадь квартир
от 29 до 112 м²
Строится
2 кв. 2025
Этажность
55
Класс
Премиум

Адрес

Город Москва
Округ СВАО
Район Марьина Роща
Адрес Марьиной Рощи 4-я ул.

Все предложения в категориях

Коммерческая недвижимость в Москве 18530 Элитная недвижимость в Подмосковье 8000 Продажа квартир с базовой ценой в рублях 6326 Элитная недвижимость в Москве 6326 Элитные квартиры в Москве и Подмосковье 6203 Элитные квартиры в Москве 5964 Квартиры в новостройках (ЖК) Москвы 5601 Строящиеся квартиры в Москве 4975 Квартиры под отделку в Москве 4607 Квартиры под отделку в строящихся домах 4013 Квартиры в пределах МКАД 3820 Недвижимость от застройщика МР Групп 1912 Квартиры от застройщика МР Групп 1900 Вторичное жилье: однокомнатные квартиры в Москве 1211 Однокомнатные элитные квартиры 1171 Строящиеся однокомнатные квартиры 1062 Однокомнатные квартиры с отделкой 1058 Купить квартиру площадью 40 кв. м. в Москве 858 Квартиры на Калужско-Рижской линии метро (Оранжевая ветка) 501 Квартиры в Мещанском районе 312 Квартиры на Люблинско-Дмитровской линии метро (Салатовая ветка) 260 Квартиры в СВАО Москвы 140 Продажа квартир у метро Рижская 115 Продажа квартир у метро Достоевская 114 Квартиры в районе Марьина роща 113 Продажа квартир у метро Марьина Роща 113

Получите подробную презентацию объекта

NF Group

Инфраструктура района

Преимущества
Удобная транспортная сеть (быстрый доступ к ТТК, проспекту Мира и Бутырской улице, переходящей в Дмитровское шоссе); хорошо развитая социальная инфраструктура
Образование
Более 20 образовательных центров, среди которых Российская академия путей сообщения, Международная академия бизнеса и управления, Институт математики и информатики МГПУ; 6 центров развития и дополнительного образования
Инфраструктура
Более 20 кафе и ресторанов, 6 торговых центров, 9 салонов красоты
Культура
Театр «Сатирикон», Центральный Музей Вооруженных Сил РФ, Еврейский музей, Центр толерантности, центр «Планета КВН», Музей железнодорожного транспорта, 3 библиотеки, 3 кинотеатра
Спорт
Большой плавательный бассейн , 8 фитнес-клубов, в том числе World Class и клуб единоборств
Мед. учреждения
22 частных медцентра, 19 стоматологий
Все
Магазины и услуги
Развлечения
Образование
Спорт и здоровье

Записаться на экскурсию по объекту

Подберите ипотеку

Подавая заявку в несколько банков, вы увеличиваете шанс на одобрение ипотеки
Стоимость недвижимости
20 млн.
950 млн.
Первоначальный взнос
20 %
90 %
Срок
1 год
30 лет
Процентная ставка
3%
100%
Сумма кредита
524 700 000 ₽
Ежемесячный платеж
524 700 000 ₽
индивидуальный %
до 30 лет
индивидуальный %
до 30 лет
индивидуальный %
до 30 лет
индивидуальный %
до 30 лет
индивидуальный %
до 35 лет
индивидуальный %
до 30 лет
NF Group
Особые условия по ипотеке для клиентов NF GROUP

Новостройка MOD

Mod — это жилой комплекс премиум-класса, расположенный в историческом районе Москвы Марьина Роща. Он состоит из двух клубных домов (9 этажей) и трех башен (44–55 этажей).

Комплекс предлагает приватную атмосферу благодаря закрытой территории, благоустроенному пространству и эксплуатируемым кровлям. Для маленьких жителей предусмотрен детский сад и образовательный центр, а городская площадь, ресторан, супермаркет и коммерческая инфраструктура добавляют динамики.

Строится 2 кв. 2025
Этажей 55
Все предложения в этом комплексе
NF Group

Посмотрите похожие предложения

/
1-комн. квартира 40 м², 9 этаж - «Мангазея на Речном»
САО Левобережный Ленинградское ш., 57
23 893 550 ₽
Свернуть
ID: as89649

1-комн. квартира 40 м², 9 этаж - «Мангазея на Речном»

САО Левобережный Ленинградское ш., 57
23 893 550 ₽
Площадь 39 м²
Этаж 9
1 комната
Без отделки
 Константин Андрюшин
Константин Андрюшин
Директор направления по продажам новостроек
WhatsApp Позвонить
1-комн. квартира 40 м², 12 этаж - «Мангазея на Речном»
САО Левобережный Ленинградское ш., 57
24 253 000 ₽
Свернуть
ID: as89662

1-комн. квартира 40 м², 12 этаж - «Мангазея на Речном»

САО Левобережный Ленинградское ш., 57
24 253 000 ₽
Площадь 39 м²
Этаж 12
1 комната
Без отделки
 Константин Андрюшин
Константин Андрюшин
Директор направления по продажам новостроек
WhatsApp Позвонить
1-комн. квартира 43 м², 11 этаж - «Мангазея на Речном»
САО Левобережный Ленинградское ш., 57
25 022 200 ₽
Свернуть
ID: as89679

1-комн. квартира 43 м², 11 этаж - «Мангазея на Речном»

САО Левобережный Ленинградское ш., 57
25 022 200 ₽
Площадь 42 м²
Этаж 11
1 комната
Без отделки
 Константин Андрюшин
Константин Андрюшин
Директор направления по продажам новостроек
WhatsApp Позвонить
1-комн. квартира 42 м², 10 этаж - «Мангазея на Речном»
САО Левобережный Ленинградское ш., 57
23 856 570 ₽
Свернуть
ID: as89647

1-комн. квартира 42 м², 10 этаж - «Мангазея на Речном»

САО Левобережный Ленинградское ш., 57
23 856 570 ₽
Площадь 41 м²
Этаж 10
1 комната
Без отделки
 Константин Андрюшин
Константин Андрюшин
Директор направления по продажам новостроек
WhatsApp Позвонить
1-комн. квартира 42 м², 12 этаж - «Мангазея на Речном»
САО Левобережный Ленинградское ш., 57
23 856 570 ₽
Свернуть
ID: as89648

1-комн. квартира 42 м², 12 этаж - «Мангазея на Речном»

САО Левобережный Ленинградское ш., 57
23 856 570 ₽
Площадь 41 м²
Этаж 12
1 комната
Без отделки
 Константин Андрюшин
Константин Андрюшин
Директор направления по продажам новостроек
WhatsApp Позвонить
1-комн. квартира 44 м², 9 этаж - «Мангазея на Речном»
САО Левобережный Ленинградское ш., 57
24 464 000 ₽
Свернуть
ID: as89659

1-комн. квартира 44 м², 9 этаж - «Мангазея на Речном»

САО Левобережный Ленинградское ш., 57
24 464 000 ₽
Площадь 44 м²
Этаж 9
1 комната
Без отделки
 Константин Андрюшин
Константин Андрюшин
Директор направления по продажам новостроек
WhatsApp Позвонить
1-комн. квартира 44 м², 13 этаж - «Мангазея на Речном»
САО Левобережный Ленинградское ш., 57
24 485 110 ₽
Свернуть
ID: as89652

1-комн. квартира 44 м², 13 этаж - «Мангазея на Речном»

САО Левобережный Ленинградское ш., 57
24 485 110 ₽
Площадь 43 м²
Этаж 13
1 комната
Без отделки
 Константин Андрюшин
Константин Андрюшин
Директор направления по продажам новостроек
WhatsApp Позвонить
1-комн. квартира 43 м², 17 этаж - «Мангазея на Речном»
САО Левобережный Ленинградское ш., 57
24 592 880 ₽
Свернуть
ID: as89673

1-комн. квартира 43 м², 17 этаж - «Мангазея на Речном»

САО Левобережный Ленинградское ш., 57
24 592 880 ₽
Площадь 42 м²
Этаж 17
1 комната
Без отделки
 Константин Андрюшин
Константин Андрюшин
Директор направления по продажам новостроек
WhatsApp Позвонить
1-комн. квартира 44 м², 10 этаж - «Мангазея на Речном»
САО Левобережный Ленинградское ш., 57
24 249 130 ₽
Свернуть
ID: as89668

1-комн. квартира 44 м², 10 этаж - «Мангазея на Речном»

САО Левобережный Ленинградское ш., 57
24 249 130 ₽
Площадь 43 м²
Этаж 10
1 комната
Без отделки
 Константин Андрюшин
Константин Андрюшин
Директор направления по продажам новостроек
WhatsApp Позвонить
1-комн. квартира 38 м², 10 этаж - «Мангазея на Речном»
САО Левобережный Ленинградское ш., 57
23 654 400 ₽
Свернуть
ID: as89653

1-комн. квартира 38 м², 10 этаж - «Мангазея на Речном»

САО Левобережный Ленинградское ш., 57
23 654 400 ₽
Площадь 38 м²
Этаж 10
1 комната
Без отделки
 Константин Андрюшин
Константин Андрюшин
Директор направления по продажам новостроек
WhatsApp Позвонить

Отзывы застройщиков о NF GROUP

/
Башня «Федерации» рекомендует международную консалтинговую компанию NF GROUP как верного и профессионального партнера, обладающего высочайшей экспертизой и передовыми знаниями в сфере элитной недвижимости.
Читать весь отзыв
Смирнов М. Ю.
Смирнов М. Ю.
Генеральный директор
«Центр-Инвест» выражает особую благодарность консалтинговой компании NF GROUP за ответственный и грамотный подход, а также исключительное качество услуг.
Читать весь отзыв
Задорожная Джанет Бекманбетовна
Задорожная Джанет Бекманбетовна
Руководитель проектов продаж Департамента продаж премиальных проектов
Благодарим NF GROUP за внимательное отношение к интересам нашей компании и непревзойденный профессионализм.
Читать весь отзыв
Непейвода А.А.
Непейвода А.А.
Руководитель департамента маркетинга и продаж
Благодарим команду NF GROUP за многолетнее успешное сотрудничество и партнерские отношения в работе.
Читать весь отзыв
Дивеева О.А.
Дивеева О.А.
Директор по продажам Capital Group

Получите консультацию эксперта NF GROUP

Как вам удобнее общаться?
Константин Андрюшин
Константин Андрюшин
Директор направления по продажам новостроек
NF Group
Авторизация
Мы используем файлы cookie, чтобы улучшить сервис для вас.
Соглашение об использовании