Москва
Санкт-Петербург
+7 (495) 032-68-64 Продать объект Продать объект
Москва
Санкт-Петербург
О компании Аналитика Стать партнёром Карьера Контакты
«Фрунзенская набережная» (Frunzenskaya naberezhnaya)
NF Group
NF Group
NF Group
NF Group
NF Group
NF Group
NF Group
NF Group
NF Group
NF Group
NF Group
NF Group
NF Group
NF Group
NF Group
NF Group
NF Group
NF Group
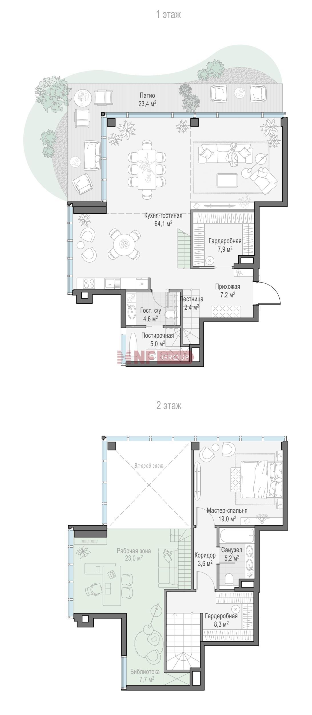
Планировка

1-комн. квартира 90 м², 1 этаж - «Фрунзенская набережная»

Фрунзенская
Этажей 10 Срок сдачи 3 квартал 2027 г.
397 870 000
4 410 975  ₽/м²
5 120 414
56 767  $/м²
4 403 954
48 824  €/м²
$
Whatsapp
397 870 000
4 410 975  ₽/м²
5 120 414
56 767  $/м²
4 403 954
48 824  €/м²
$
ID as84059
 Константин Андрюшин
Константин Андрюшин
Директор направления по продажам новостроек
NF Group
Предложите нам свою цену, и мы свяжемся с вами

Описание

«Фрунзенская набережная» — единственный элитный клубный квартал с собственным витражным парком площадью 3,1 га — самым большим в элитном классе. Располагается на престижной и желанной Фрунзенской набережной, где нет и не появится новых домов такого класса.

Tолько для жителей создан беспрецедентно большой в элит-классе инфраструктурный центр с безграничными возможностями для общения, занятий спортом и детского развития — Clubhouse. В нём размещена клубная гостиная по стандарту Friend’s Lab, детский игровой клуб по стандарту Kid’s Lab, фитнес с бассейном по стандарту Fit Lab.

«Фрунзенская набережная» — это единый ансамбль из трёх архитектурных образов. В малоэтажной части в стиле авангард пятиэтажные дома и двухэтажные виллы. В среднеэтажной — величественный дом в неоклассическом стиле и три 10-этажных дома в современном стиле.

Богатейший выбор продуманных планировок: лоты с бассейнами, видовыми террасами, патио и возможностью обустройства дровяных каминов; квартиры с потолками высотой 7 метров и антресолями, ситихаусы, пентхаусы и виллы.

Характеристики

О квартире

Тип сделки
Продажа
Отделка
Под отделку
Тип объекта
Квартира
Этаж
1 из 10
Общая площадь
90 м²
Уровней
1
Высота потолков
7.32 м

О жилом комплексе

Количество лотов
357
Площадь квартир
от 51 до 443 м²
Строится
3 кв. 2027
Этажность
10
Тип паркинга
Подземный
Класс
Элит

Адрес

Город Москва
Округ ЦАО
Район Хамовники
Адрес Фрунзенская наб, 30

Все предложения в категориях

Элитная недвижимость в Подмосковье 7858 Продажа квартир с базовой ценой в рублях 6082 Элитная недвижимость в Москве 6082 Элитные квартиры в Москве и Подмосковье 5951 Элитные квартиры в Москве 5707 Квартиры в новостройках (ЖК) Москвы 5346 Строящиеся квартиры в Москве 4643 Квартиры в строящихся новостройках 4636 Квартиры под отделку в Москве 4382 Квартиры без отделки от застройщика 4270 Квартиры под отделку в строящихся домах 3710 Недвижимость в центре Москвы 1943 Продажа элитных квартир в центре Москвы 1676 Квартиры в центре в москве 1676 Новостройки в центре Москвы 1484 Элитные квартиры в новостройке в ЦАО 1426 Квартиры в пределах ТТК 1382 Строящиеся квартиры в ЦАО 1199 Квартиры под отделку в ЦАО 1171 Вторичное жилье: однокомнатные квартиры в Москве 1133 Однокомнатные элитные квартиры 1094 Однокомнатные квартиры в новостройках 1092 Однокомнатные квартиры с отделкой 998 Строящиеся однокомнатные квартиры 964 Купить квартиру площадью 100 кв. м. в Москве 505 Недвижимость в Хамовниках 419 Квартиры на Сокольнической линии метро (Красная ветка) 379 Квартиры в Хамовниках 347 Продажа квартиры под отделку в Хамовниках 285 Продажа строящихся квартир в районе Хамовники 275 Квартиры в новостройках в Хамовниках 274 Квартиры-студии в ЦАО 190 Однокомнатные квартиры в ЦАО 190 Квартиры на Фрунзенской набережной 121 Продажа квартир у метро Фрунзенская 119 Продажа квартир под отделку у метро Фрунзенская 104 Продажа строящихся квартир у метро Фрунзенская 98 Однокомнатные квартиры в Хамовниках 29 Однокомнатные квартиры у метро Фрунзенская 17

Получите подробную презентацию объекта

NF Group

Инфраструктура района

Преимущества
Хамовники – самый семейный район центра Москвы. Он славится ведущими учебными заведениями, тихими переулками, скверами, прогулочными зонами у набережных и крупными парками (Усадьба Трубецких в Хамовниках, Парк Горького, Музеон, Нескучный сад, Новодевичий парк, природный заказник «Воробьевы Горы»).
Образование
Более 20 общеобразовательных школ и детских садов, в том числе с углубленным изучением отдельных предметов, Здесь находятся ведущие вузы: Первый МГМУ им. Сеченова, Дипломатическая академия МИД, МПГУ и Академия народного хозяйства и государственной службы при президенте РФ.
Инфраструктура
14 торгово-развлекательных центров, множество сетевых супермаркетов, более 15 студий красоты, кафе и рестораны на любой вкус (от заведений быстрого питания до уникальных ресторанов с высокой кухней и эксклюзивными интерьерами, например, итальянский ресторан Cantinetta Antinori)
Культура
Государственный музей им. А. С. Пушкина, Литературный музей А. С. Пушкина, выставочные залы РАХ, Музей Москвы, усадьба Л. Н. Толстого и Государственный музей Л. Н. Толстого, галерея МАММ, Новодевичий и Зачатьевский монастыри (16 век), Храм Христа Спасителя и Храм Николая Чудотворца в Хамовниках.
Спорт
Район располагает удобными велодорожками и зелеными зонами, где можно заниматься спортом. К услугам резидентов несколько крупных катков в близлежащих парках,12 фитнес-клубов с бассейнами и спа-зонами и спорткомплекс «Лужники».
Мед. учреждения
В Хамовниках представлен широкий спектр медицинских учреждений разного профиля, в том числе стоматологии премиум-класса, косметологические салоны и клиники эстетической хирургии
Все
Магазины и услуги
Развлечения
Образование
Спорт и здоровье

Записаться на экскурсию по объекту

Подберите ипотеку

Подавая заявку в несколько банков, вы увеличиваете шанс на одобрение ипотеки
Стоимость недвижимости
20 млн.
950 млн.
Первоначальный взнос
20 %
90 %
Срок
1 год
30 лет
Процентная ставка
3%
100%
Сумма кредита
524 700 000 ₽
Ежемесячный платеж
524 700 000 ₽
индивидуальный %
до 30 лет
индивидуальный %
до 30 лет
индивидуальный %
до 30 лет
индивидуальный %
до 30 лет
индивидуальный %
до 35 лет
индивидуальный %
до 30 лет
NF Group
Особые условия по ипотеке для клиентов NF GROUP

Новостройка «Фрунзенская набережная»

«Фрунзенская набережная» — единственный элитный клубный квартал с собственным витражным парком площадью 3,1 га — самым большим в элитном классе. Располагается на престижной и желанной Фрунзенской набережной, где нет и не появится новых домов такого класса.

Tолько для жителей создан беспрецедентно большой в элит-классе инфраструктурный центр с безграничными возможностями для общения, занятий спортом и детского развития — Clubhouse. В нём размещена клубная гостиная по стандарту Friend’s Lab, детский игровой клуб по стандарту Kid’s Lab, фитнес с бассейном по стандарту Fit Lab.

Площадь 36583 м²
Строится 3 кв. 2027
Этажей 10
Квартир 357
Все предложения в этом комплексе
NF Group

Посмотрите похожие предложения

/
Только в NF GROUP Интерьер, где нет ничего лишнего
4-комн. квартира 152 м², 9 этаж - White Khamovniki
ЦАО Хамовники Олсуфьевский пер. вл. 9
426 720 000 ₽ 405 000 000 ₽
Свернуть
ID: as95805

4-комн. квартира 152 м², 9 этаж - White Khamovniki

ЦАО Хамовники Олсуфьевский пер. вл. 9
426 720 000 ₽ 405 000 000 ₽
Площадь 152 м²
Этаж 9
3 спальни
4 комнаты
С отделкой
 Александр Ларин
Александр Ларин
Консультант по городской недвижимости
WhatsApp Позвонить
Очень светлая квартира
5-комн. квартира 213 м², 3 этаж - Crystal House
ЦАО Хамовники Коробейников пер., 1
6 402 000 $ 5 335 000 $
Свернуть
ID: as82531

5-комн. квартира 213 м², 3 этаж - Crystal House

ЦАО Хамовники Коробейников пер., 1
Парк Культуры, Кропоткинская
6 402 000 $ 5 335 000 $
Площадь 213 м²
Этаж 3
4 спальни
5 комнат
Без отделки
WhatsApp Позвонить
4-комн. квартира 256 м², 3 этаж - «Дворянское гнездо»
ЦАО Хамовники Левшинский Б. пер., 11
396 000 000 ₽
Свернуть
ID: as16164

4-комн. квартира 256 м², 3 этаж - «Дворянское гнездо»

ЦАО Хамовники Левшинский Б. пер., 11
Смоленская, Парк Культуры
396 000 000 ₽
Площадь 255 м²
Этаж 3
3 спальни
4 комнаты
Без отделки
WhatsApp Позвонить
Таунхаус с патио
4-комн. квартира 236 м², 1-2 этаж - «Литератор»
ЦАО Хамовники Льва Толстого ул., 23/7, стр. 1
520 000 000 ₽ 415 000 000 ₽
Свернуть
ID: as99270

4-комн. квартира 236 м², 1-2 этаж - «Литератор»

ЦАО Хамовники Льва Толстого ул., 23/7, стр. 1
Парк Культуры
520 000 000 ₽ 415 000 000 ₽
Площадь 236 м²
Этаж 1-2
3 спальни
4 комнаты
С мебелью
 Гая Григорян
Гая Григорян
Старший консультант
WhatsApp Позвонить
Только в NF GROUP Терраса с яблонями на Остоженке
4-комн. квартира 220 м², 1 этаж - «Молочный переулок, 1»
ЦАО Хамовники Молочный пер., 1
5 200 000 $
Свернуть
ID: as86428

4-комн. квартира 220 м², 1 этаж - «Молочный переулок, 1»

ЦАО Хамовники Молочный пер., 1
Парк Культуры
5 200 000 $
Площадь 220 м²
Этаж 1
3 спальни
4 комнаты
Без отделки
 Елизавета Васильева
Елизавета Васильева
Старший консультант
WhatsApp Позвонить
5-комн. квартира 260 м², 11 этаж - «Венский Дом»
ЦАО Хамовники Неопалимовский 1-й пер., 8
508 484 599 ₽ 430 000 000 ₽
Свернуть
ID: as20163

5-комн. квартира 260 м², 11 этаж - «Венский Дом»

ЦАО Хамовники Неопалимовский 1-й пер., 8
Смоленская, Киевская
508 484 599 ₽ 430 000 000 ₽
Площадь 260 м²
Этаж 11
2 спальни
5 комнат
С мебелью
WhatsApp Позвонить
Только в NF GROUP Стильная квартира
6-комн. квартира 182 м², 6 этаж - «Афанасьевский»
ЦАО Арбат Афанасьевский Б. пер., 28
410 699 099 ₽ 380 000 000 ₽
Свернуть
ID: as98257

6-комн. квартира 182 м², 6 этаж - «Афанасьевский»

ЦАО Арбат Афанасьевский Б. пер., 28
410 699 099 ₽ 380 000 000 ₽
Площадь 181 м²
Этаж 6
5 спален
6 комнат
С мебелью
 Елена Якушева
Елена Якушева
Директор по работе с ключевыми клиентами
WhatsApp Позвонить
4-комн. квартира 217 м², 4 этаж - «Голутвинская Слобода»
ЦАО Якиманка Якиманская наб., 2 к. 1
343 235 000 ₽
Свернуть
ID: as40978

4-комн. квартира 217 м², 4 этаж - «Голутвинская Слобода»

ЦАО Якиманка Якиманская наб., 2 к. 1
343 235 000 ₽
Площадь 217 м²
Этаж 4
3 спальни
4 комнаты
Без отделки
WhatsApp Позвонить
Семейная квартира у парка
5-комн. квартира 329 м², 4 этаж - Lake House
ЗАО Раменки Улофа Пальме ул., 7
4 500 000 $
Свернуть
ID: as37849

5-комн. квартира 329 м², 4 этаж - Lake House

ЗАО Раменки Улофа Пальме ул., 7
4 500 000 $
Площадь 328 м²
Этаж 4
4 спальни
5 комнат
С мебелью
 Михаил Федоров
Михаил Федоров
Консультант
WhatsApp Позвонить
9-комн. квартира 492 м², 6 этаж - Lake House
ЗАО Раменки Улофа Пальме ул., 7
520 000 000 ₽ 425 000 000 ₽
Свернуть
ID: as78909

9-комн. квартира 492 м², 6 этаж - Lake House

ЗАО Раменки Улофа Пальме ул., 7
520 000 000 ₽ 425 000 000 ₽
Площадь 492 м²
Этаж 6
5 спален
9 комнат
С мебелью
WhatsApp Позвонить

Отзывы застройщиков о NF GROUP

/
Башня «Федерации» рекомендует международную консалтинговую компанию NF GROUP как верного и профессионального партнера, обладающего высочайшей экспертизой и передовыми знаниями в сфере элитной недвижимости.
Читать весь отзыв
Смирнов М. Ю.
Смирнов М. Ю.
Генеральный директор
«Центр-Инвест» выражает особую благодарность консалтинговой компании NF GROUP за ответственный и грамотный подход, а также исключительное качество услуг.
Читать весь отзыв
Задорожная Джанет Бекманбетовна
Задорожная Джанет Бекманбетовна
Руководитель проектов продаж Департамента продаж премиальных проектов
Благодарим NF GROUP за внимательное отношение к интересам нашей компании и непревзойденный профессионализм.
Читать весь отзыв
Непейвода А.А.
Непейвода А.А.
Руководитель департамента маркетинга и продаж
Благодарим команду NF GROUP за многолетнее успешное сотрудничество и партнерские отношения в работе.
Читать весь отзыв
Дивеева О.А.
Дивеева О.А.
Директор по продажам Capital Group

Получите консультацию эксперта NF GROUP

Как вам удобнее общаться?
Константин Андрюшин
Константин Андрюшин
Директор направления по продажам новостроек

Вы смотрели

/
1-комн. квартира 92 м², 1 этаж - «Фрунзенская набережная»
ЦАО Хамовники Фрунзенская наб, 30
422 800 000 ₽
Свернуть
ID: as84039

1-комн. квартира 92 м², 1 этаж - «Фрунзенская набережная»

ЦАО Хамовники Фрунзенская наб, 30
422 800 000 ₽
Площадь 92 м²
Этаж 1
1 комната
Без отделки
 Константин Андрюшин
Константин Андрюшин
Директор направления по продажам новостроек
WhatsApp Позвонить
1-комн. квартира 82 м², 3 этаж - «Фрунзенская набережная»
ЦАО Хамовники Фрунзенская наб, 30
242 470 000 ₽
Свернуть
ID: as84066

1-комн. квартира 82 м², 3 этаж - «Фрунзенская набережная»

ЦАО Хамовники Фрунзенская наб, 30
242 470 000 ₽
Площадь 82 м²
Этаж 3
1 комната
Без отделки
 Константин Андрюшин
Константин Андрюшин
Директор направления по продажам новостроек
WhatsApp Позвонить
1-комн. квартира 56 м², 1 этаж - «Фрунзенская набережная»
ЦАО Хамовники Фрунзенская наб, 30
272 490 000 ₽
Свернуть
ID: as84060

1-комн. квартира 56 м², 1 этаж - «Фрунзенская набережная»

ЦАО Хамовники Фрунзенская наб, 30
272 490 000 ₽
Площадь 55 м²
Этаж 1
1 комната
Без отделки
 Константин Андрюшин
Константин Андрюшин
Директор направления по продажам новостроек
WhatsApp Позвонить
NF Group
Авторизация
Мы используем файлы cookie, чтобы улучшить сервис для вас.
Соглашение об использовании