Москва
Санкт-Петербург
+7 (495) 032-68-64 Продать объект Продать объект
Москва
Санкт-Петербург
О компании Аналитика Стать партнёром Карьера Контакты
City Bay (Сити Бэй)
NF Group
NF Group
NF Group
NF Group
NF Group
NF Group
NF Group
NF Group
NF Group
NF Group
NF Group
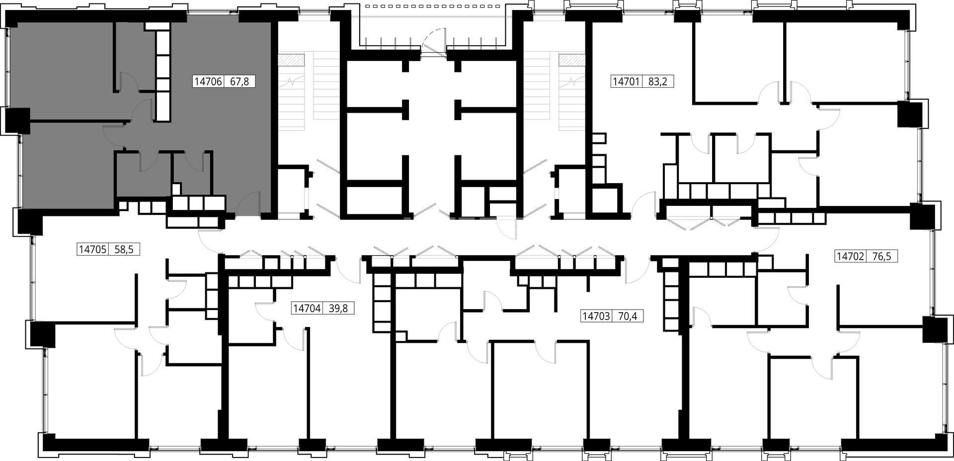
Планировка

2-комн. квартира 68 м², 47 этаж - City Bay

Этажей 52 Год постройки 2024 г.
30 123 865
444 304  ₽/м²
387 681
5 718  $/м²
333 435
4 917  €/м²
$
Whatsapp
30 123 865
444 304  ₽/м²
387 681
5 718  $/м²
333 435
4 917  €/м²
$
ID as93782
 Константин Андрюшин
Константин Андрюшин
Директор направления по продажам новостроек
NF Group
Предложите нам свою цену, и мы свяжемся с вами

Описание

Концепция жилого комплекса City Вау - настоящий город в городе с отлично развитой инфраструктурой и собственной благоустроенной набережной.

Характеристики

О квартире

Тип сделки
Продажа
Отделка
Под отделку
Тип объекта
Квартира
Этаж
47 из 52
Общая площадь
68 м²
Уровней
1
Высота потолков
2.85 м

О жилом комплексе

Площадь квартир
от 27 до 133 м²
Построен
2024
Этажность
52
Класс
Бизнес

Адрес

Город Москва
Округ СЗАО
Район Покровское-Стрешнево
Адрес Волоколамское ш., 95, к. 4

Все предложения в категориях

Элитная недвижимость в Подмосковье 7858 Продажа квартир с базовой ценой в рублях 6082 Элитная недвижимость в Москве 6082 Элитные квартиры в Москве и Подмосковье 5951 Элитные квартиры в Москве 5707 Квартиры в новостройках (ЖК) Москвы 5346 Квартиры под отделку в Москве 4382 Квартиры без отделки от застройщика 4270 Квартиры в пределах МКАД 3565 Недвижимость бизнес-класса 2204 Квартиры бизнес-класса от застройщика 2184 Недвижимость от застройщика МР Групп 1709 Квартиры от застройщика МР Групп 1697 Двухкомнатные квартиры в Москве 1676 Двухкомнатные квартиры в новостройках 1628 Двухкомнатные квартиры без отделки в Москве 1420 Квартиры в СЗАО 1080 Квартиры в сданных домах в Москве 1064 Квартиры под отделку в СЗАО 1048 Квартиры в районе Покровское-Стрешнево 922 Квартиры в новостройках в районе Покровское-Стрешнево 916 Готовые квартиры в новостройках 710 Квартиры под отделку в сданных домах 672 Купить квартиру площадью 70 кв. м. в Москве 666 Двухкомнатные квартиры в сданных домах 210 Сданные квартиры в СЗАО 166 Продажа готовых квартир в районе Покровское-Стрешнево 38

Получите подробную презентацию объекта

NF Group

Инфраструктура района

Преимущества
На границе Войковского района и района Покровское-Стрешнево расположен одноименный лесопарк, в котором находится объект культурного наследия «Усадьба Покровское-Стрешнево», а также беседки, детские и спортивные площадки, обустроенные пляжи. В пешей доступности - Химкинское водохранилище
Образование
17 общеобразовательных школ, частная Англо-американская школа, 9 детских садов, включая частные
Инфраструктура
ТЦ «Покровское-Стрешнево», 11 салонов красоты и спа, 4 крупных фермерских рынка
Культура
3 православных храма (17-19 века), 2 театра, кинотеатр, несколько библиотек
Спорт
Широкие возможности для занятий спортом в парке; более 20 фитнес-клубов в окрестностях района
Мед. учреждения
5 крупных государственных медцентров, 2 частные многопрофильные клиники, 7 стоматологий
Все
Магазины и услуги
Развлечения
Образование
Спорт и здоровье

Записаться на экскурсию по объекту

Подберите ипотеку

Подавая заявку в несколько банков, вы увеличиваете шанс на одобрение ипотеки
Стоимость недвижимости
20 млн.
950 млн.
Первоначальный взнос
20 %
90 %
Срок
1 год
30 лет
Процентная ставка
3%
100%
Сумма кредита
524 700 000 ₽
Ежемесячный платеж
524 700 000 ₽
индивидуальный %
до 30 лет
индивидуальный %
до 30 лет
индивидуальный %
до 30 лет
индивидуальный %
до 30 лет
индивидуальный %
до 35 лет
индивидуальный %
до 30 лет
NF Group
Особые условия по ипотеке для клиентов NF GROUP

Новостройка City Bay

Жилой комплекс City Bay — это современный квартал бизнес-класса, расположенный на берегу Спасского затона. Он находится в районе Покровское — Стрешнево на северо-западе Москвы.

Из комплекса удобно выезжать на МКАД, а рядом расположена станция МЦД «Трикотажная». Это позволяет жителям удобно пользоваться существующей транспортной и социальной инфраструктурой.

NF Group

Посмотрите похожие предложения

/
1-комн. квартира 41 м², 14 этаж - Portland
ЮВАО Печатники Южнопортовая ул., 42, стр. 1
31 058 170 ₽
Свернуть
ID: as84962

1-комн. квартира 41 м², 14 этаж - Portland

ЮВАО Печатники Южнопортовая ул., 42, стр. 1
31 058 170 ₽
Площадь 40 м²
Этаж 14
1 комната
Без отделки
 Дмитрий Щеголев
Дмитрий Щеголев
Руководитель отдела продаж новостроек
WhatsApp Позвонить
2-комн. квартира 67 м², 2 этаж - City Bay
СЗАО Покровское-Стрешнево Волоколамское ш., 95, к. 4
31 740 102 ₽
Свернуть
ID: as93620

2-комн. квартира 67 м², 2 этаж - City Bay

СЗАО Покровское-Стрешнево Волоколамское ш., 95, к. 4
31 740 102 ₽
Площадь 67 м²
Этаж 2
2 комнаты
Без отделки
 Дмитрий Щеголев
Дмитрий Щеголев
Руководитель отдела продаж новостроек
WhatsApp Позвонить
3-комн. квартира 85 м², 21 этаж - City Bay
СЗАО Покровское-Стрешнево Волоколамское ш., 95, к. 4
28 377 888 ₽
Свернуть
ID: as90710

3-комн. квартира 85 м², 21 этаж - City Bay

СЗАО Покровское-Стрешнево Волоколамское ш., 95, к. 4
28 377 888 ₽
Площадь 85 м²
Этаж 21
3 комнаты
Без отделки
 Дмитрий Щеголев
Дмитрий Щеголев
Руководитель отдела продаж новостроек
WhatsApp Позвонить
2-комн. квартира 55 м², 44 этаж - City Bay
СЗАО Покровское-Стрешнево Волоколамское ш., 95, к. 4
25 891 266 ₽
Свернуть
ID: as93509

2-комн. квартира 55 м², 44 этаж - City Bay

СЗАО Покровское-Стрешнево Волоколамское ш., 95, к. 4
25 891 266 ₽
Площадь 54 м²
Этаж 44
2 комнаты
Без отделки
 Дмитрий Щеголев
Дмитрий Щеголев
Руководитель отдела продаж новостроек
WhatsApp Позвонить
3-комн. квартира 77 м², 7 этаж - City Bay
СЗАО Покровское-Стрешнево Волоколамское ш., 95, к. 4
29 799 920 ₽
Свернуть
ID: as94305

3-комн. квартира 77 м², 7 этаж - City Bay

СЗАО Покровское-Стрешнево Волоколамское ш., 95, к. 4
29 799 920 ₽
Площадь 77 м²
Этаж 7
3 комнаты
Без отделки
 Дмитрий Щеголев
Дмитрий Щеголев
Руководитель отдела продаж новостроек
WhatsApp Позвонить
2-комн. квартира 54 м², 34 этаж - City Bay
СЗАО Покровское-Стрешнево Волоколамское ш., 95, к. 4
29 756 637 ₽
Свернуть
ID: as94085

2-комн. квартира 54 м², 34 этаж - City Bay

СЗАО Покровское-Стрешнево Волоколамское ш., 95, к. 4
29 756 637 ₽
Площадь 54 м²
Этаж 34
2 комнаты
Без отделки
 Дмитрий Щеголев
Дмитрий Щеголев
Руководитель отдела продаж новостроек
WhatsApp Позвонить
2-комн. квартира 60 м², 33 этаж - City Bay
СЗАО Покровское-Стрешнево Волоколамское ш., 95, к. 4
28 921 536 ₽
Свернуть
ID: as94140

2-комн. квартира 60 м², 33 этаж - City Bay

СЗАО Покровское-Стрешнево Волоколамское ш., 95, к. 4
28 921 536 ₽
Площадь 59 м²
Этаж 33
2 комнаты
Без отделки
 Дмитрий Щеголев
Дмитрий Щеголев
Руководитель отдела продаж новостроек
WhatsApp Позвонить
2-комн. квартира 49 м², 2 этаж - Hide
ЗАО Раменки пр-д 1-й Сетуньский, 10, стр. 6
27 597 618 ₽
Свернуть
ID: as87463

2-комн. квартира 49 м², 2 этаж - Hide

ЗАО Раменки пр-д 1-й Сетуньский, 10, стр. 6
27 597 618 ₽
Площадь 48 м²
Этаж 2
2 комнаты
Без отделки
 Дмитрий Щеголев
Дмитрий Щеголев
Руководитель отдела продаж новостроек
WhatsApp Позвонить
2-комн. квартира 48 м², 4 этаж - HideOUT
ЗАО Раменки пр-д 3-й Сетуньский, 10
29 913 600 ₽
Свернуть
ID: as96254

2-комн. квартира 48 м², 4 этаж - HideOUT

ЗАО Раменки пр-д 3-й Сетуньский, 10
29 913 600 ₽
Площадь 48 м²
Этаж 4
2 комнаты
Без отделки
 Дмитрий Щеголев
Дмитрий Щеголев
Руководитель отдела продаж новостроек
WhatsApp Позвонить
2-комн. квартира 48 м², 28 этаж - «Родина Парк»
ЗАО Можайский Верейская ул., 12
34 214 620 ₽
Свернуть
ID: as94908

2-комн. квартира 48 м², 28 этаж - «Родина Парк»

ЗАО Можайский Верейская ул., 12
34 214 620 ₽
Площадь 48 м²
Этаж 28
2 комнаты
Без отделки
 Константин Андрюшин
Константин Андрюшин
Директор направления по продажам новостроек
WhatsApp Позвонить

Отзывы застройщиков о NF GROUP

/
Башня «Федерации» рекомендует международную консалтинговую компанию NF GROUP как верного и профессионального партнера, обладающего высочайшей экспертизой и передовыми знаниями в сфере элитной недвижимости.
Читать весь отзыв
Смирнов М. Ю.
Смирнов М. Ю.
Генеральный директор
«Центр-Инвест» выражает особую благодарность консалтинговой компании NF GROUP за ответственный и грамотный подход, а также исключительное качество услуг.
Читать весь отзыв
Задорожная Джанет Бекманбетовна
Задорожная Джанет Бекманбетовна
Руководитель проектов продаж Департамента продаж премиальных проектов
Благодарим NF GROUP за внимательное отношение к интересам нашей компании и непревзойденный профессионализм.
Читать весь отзыв
Непейвода А.А.
Непейвода А.А.
Руководитель департамента маркетинга и продаж
Благодарим команду NF GROUP за многолетнее успешное сотрудничество и партнерские отношения в работе.
Читать весь отзыв
Дивеева О.А.
Дивеева О.А.
Директор по продажам Capital Group

Получите консультацию эксперта NF GROUP

Как вам удобнее общаться?
Константин Андрюшин
Константин Андрюшин
Директор направления по продажам новостроек

Вы смотрели

/
4-комн. квартира 112 м², 3 этаж - City Bay
СЗАО Покровское-Стрешнево Волоколамское ш., 95, к. 4
43 304 593 ₽
Свернуть
ID: as90674

4-комн. квартира 112 м², 3 этаж - City Bay

СЗАО Покровское-Стрешнево Волоколамское ш., 95, к. 4
43 304 593 ₽
Площадь 111 м²
Этаж 3
4 комнаты
Без отделки
 Дмитрий Щеголев
Дмитрий Щеголев
Руководитель отдела продаж новостроек
WhatsApp Позвонить
2-комн. квартира 65 м², 18 этаж - City Bay
СЗАО Покровское-Стрешнево Волоколамское ш., 95, к. 4
32 589 776 ₽
Свернуть
ID: as93603

2-комн. квартира 65 м², 18 этаж - City Bay

СЗАО Покровское-Стрешнево Волоколамское ш., 95, к. 4
32 589 776 ₽
Площадь 65 м²
Этаж 18
2 комнаты
Без отделки
 Дмитрий Щеголев
Дмитрий Щеголев
Руководитель отдела продаж новостроек
WhatsApp Позвонить
NF Group
Авторизация
Мы используем файлы cookie, чтобы улучшить сервис для вас.
Соглашение об использовании