Москва
Санкт-Петербург
+7 (495) 032-68-64 Продать объект Продать объект
Москва
Санкт-Петербург
О компании Аналитика Стать партнёром Карьера Контакты
«Сити Бэй» (City Bay)
NF Group
NF Group
NF Group
NF Group
NF Group
NF Group
NF Group
NF Group
NF Group
NF Group
NF Group
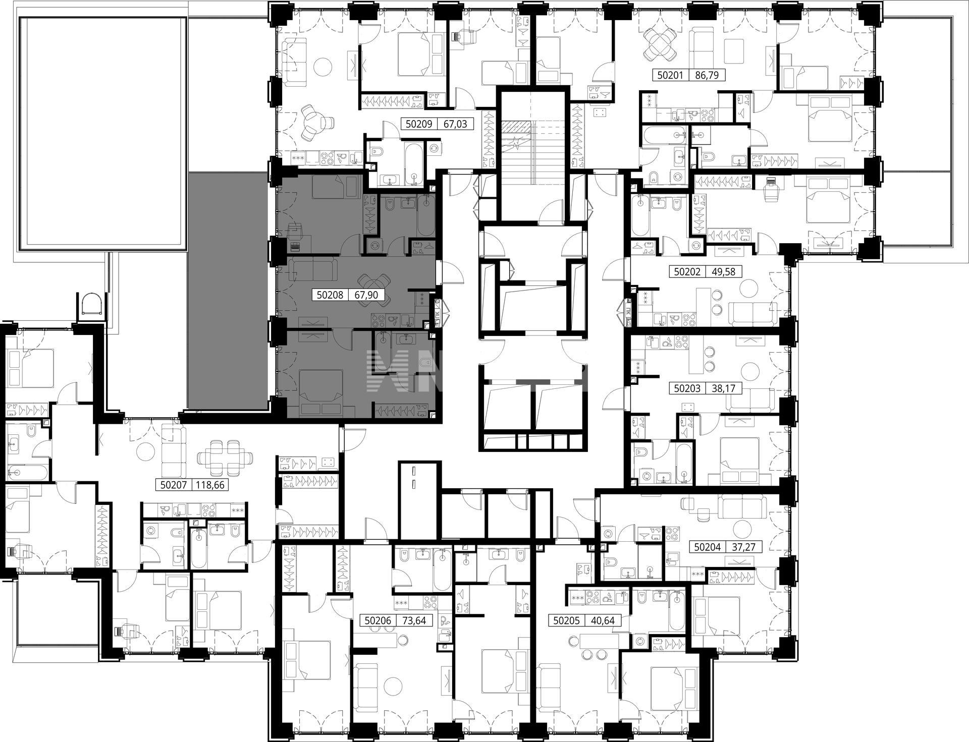
Планировка

2-комн. квартира 68 м², 2 этаж - «Сити Бэй»

Этажей 15 Срок сдачи 2025 г.
32 792 019
482 945  ₽/м²
408 748
6 019  $/м²
356 494
5 250  €/м²
$
32 792 019
482 945  ₽/м²
408 748
6 019  $/м²
356 494
5 250  €/м²
$
ID as93619
 Дмитрий Щеголев
Дмитрий Щеголев
Руководитель отдела продаж новостроек
NF Group
Предложите нам свою цену, и мы свяжемся с вами

Описание

Жилой комплекс City Bay — это современный квартал бизнес-класса, расположенный на берегу Спасского затона. Он находится в районе Покровское — Стрешнево на северо-западе Москвы.

Из комплекса удобно выезжать на МКАД, а рядом расположена станция МЦД «Трикотажная». Это позволяет жителям удобно пользоваться существующей транспортной и социальной инфраструктурой.

Жилой комплекс City Bay — это настоящий город в городе с развитой инфраструктурой и благоустроенной набережной.

На территории комплекса расположены пять кварталов: Indian, Atlantic, North, Cliff и Pacific.

Жилой квартал City Bay отличается оригинальной концепцией и выделяется среди других проектов своей архитектурой, видами из окон и природным окружением. Это вызывает гордость у жителей и восхищение у прохожих.

Жизнь района Покровское — Стрешнево строится вокруг водных объектов. Река Сходня с уникальной экосистемой, речка Химка и Химкинское водохранилище, Москва-река и канал имени Москвы — кругом вода, и местные жители активно пользуются этим. А сразу за рекой находится центр водного спорта в Строгино с вейк-парком и яхт-клубами.

В районе много зелени. Рядом находится Сходненский ковш — памятник природы, естественный амфитеатр глубиной 40 метров. Также здесь есть парк при усадьбе Братцево с фруктовым садом, дубовая роща «Маяк», Алешкинский лес и лесопарк Покровское — Стрешнево с пляжами и бобрами.

Главные транспортные артерии района — Волоколамское шоссе, Таганско-Краснопресненская линия метро и МЦД-2. За 20 минут можно добраться до центра на машине или метро, а МЦД связывает ЖК City Bay с северными, восточными и юго-восточными районами.

Характеристики

О квартире

Тип сделки
Продажа
Отделка
Под отделку
Тип объекта
Квартира
Этаж
2 из 15
Общая площадь
68 м²
Уровней
1

О жилом комплексе

Площадь квартир
от 29 до 133 м²
Строится
2025
Этажность
15
Класс
Бизнес

Адрес

Город Москва
Округ СЗАО
Район Покровское-Стрешнево
Адрес Волоколамское ш., 95, к. 4
Объекты рядом

Все предложения в категориях

Элитная недвижимость в Подмосковье 7724 Элитная недвижимость в Москве 5829 Элитные квартиры в Москве и Подмосковье 5686 Элитные квартиры в Москве 5431 Продажа квартир с базовой ценой в рублях 5388 Квартиры в новостройках (ЖК) Москвы 5053 Строящиеся квартиры в Москве 4354 Квартиры на этапе строительства в новостройках 4343 Квартиры под отделку в Москве 4121 Квартиры без отделки от застройщика 4010 Квартиры под отделку в строящихся домах 3481 Квартиры в пределах МКАД 3022 Недвижимость бизнес-класса 1784 Квартиры бизнес-класса от застройщика 1746 Двухкомнатные квартиры в Москве 1536 Недвижимость от застройщика МР Групп 1496 Квартиры от застройщика МР Групп 1482 Двухкомнатные квартиры в новостройках 1481 Двухкомнатные квартиры в строящихся доах 1317 Двухкомнатные квартиры без отделки в Москве 1271 Квартиры в СЗАО 924 Квартиры под отделку в СЗАО 890 Квартиры в районе Покровское-Стрешнево 795 Квартиры в новостройках в районе Покровское-Стрешнево 788 Купить квартиру площадью 70 кв. м. в Москве 579

Получите подробную презентацию объекта

NF Group

Инфраструктура района

Преимущества
На границе Войковского района и района Покровское-Стрешнево расположен одноименный лесопарк, в котором находится объект культурного наследия «Усадьба Покровское-Стрешнево», а также беседки, детские и спортивные площадки, обустроенные пляжи. В пешей доступности - Химкинское водохранилище
Образование
17 общеобразовательных школ, частная Англо-американская школа, 9 детских садов, включая частные
Инфраструктура
ТЦ «Покровское-Стрешнево», 11 салонов красоты и спа, 4 крупных фермерских рынка
Культура
3 православных храма (17-19 века), 2 театра, кинотеатр, несколько библиотек
Спорт
Широкие возможности для занятий спортом в парке; более 20 фитнес-клубов в окрестностях района
Мед. учреждения
5 крупных государственных медцентров, 2 частные многопрофильные клиники, 7 стоматологий
Все
Магазины и услуги
Развлечения
Образование
Спорт и здоровье

Записаться на экскурсию по объекту

Подберите ипотеку

Подавая заявку в несколько банков, вы увеличиваете шанс на одобрение ипотеки
Стоимость недвижимости
20 млн.
950 млн.
Первоначальный взнос
20 %
90 %
Срок
1 год
30 лет
Процентная ставка
3%
100%
Сумма кредита
524 700 000 ₽
Ежемесячный платеж
524 700 000 ₽
индивидуальный %
до 30 лет
индивидуальный %
до 30 лет
индивидуальный %
до 30 лет
индивидуальный %
до 30 лет
индивидуальный %
до 35 лет
индивидуальный %
до 30 лет
NF Group
Особые условия по ипотеке для клиентов NF GROUP

Новостройка «Сити Бэй»

Жилой комплекс City Bay — это современный квартал бизнес-класса, расположенный на берегу Спасского затона. Он находится в районе Покровское — Стрешнево на северо-западе Москвы.

Из комплекса удобно выезжать на МКАД, а рядом расположена станция МЦД «Трикотажная». Это позволяет жителям удобно пользоваться существующей транспортной и социальной инфраструктурой.

NF Group

Посмотрите похожие предложения

/
1-комн. квартира 24 м², 16 этаж - High Life
ЮАО Даниловский Летниковская ул., 11/10, стр. 1
30 634 200 ₽
Свернуть
ID: as73517

1-комн. квартира 24 м², 16 этаж - High Life

ЮАО Даниловский Летниковская ул., 11/10, стр. 1
Павелецкая
30 634 200 ₽
Площадь 24 м²
Этаж 16
1 комната
Без отделки
 Константин Андрюшин
Константин Андрюшин
Директор направления по продажам новостроек
1-комн. квартира 24 м², 21 этаж - High Life
ЮАО Даниловский Летниковская ул., 11/10, стр. 1
30 851 604 ₽
Свернуть
ID: as74056

1-комн. квартира 24 м², 21 этаж - High Life

ЮАО Даниловский Летниковская ул., 11/10, стр. 1
Павелецкая
30 851 604 ₽
Площадь 24 м²
Этаж 21
1 комната
Без отделки
 Константин Андрюшин
Константин Андрюшин
Директор направления по продажам новостроек
1-комн. квартира 26 м², 18 этаж - High Life
ЮАО Даниловский Летниковская ул., 11/10, стр. 1
31 715 856 ₽
Свернуть
ID: as102254

1-комн. квартира 26 м², 18 этаж - High Life

ЮАО Даниловский Летниковская ул., 11/10, стр. 1
Павелецкая
31 715 856 ₽
Площадь 25 м²
Этаж 18
1 комната
Без отделки
 Константин Андрюшин
Константин Андрюшин
Директор направления по продажам новостроек
1-комн. квартира 37 м², 16 этаж - High Life
ЮАО Даниловский Летниковская ул., 11/10, стр. 1
35 698 980 ₽
Свернуть
ID: as72078

1-комн. квартира 37 м², 16 этаж - High Life

ЮАО Даниловский Летниковская ул., 11/10, стр. 1
Павелецкая
35 698 980 ₽
Площадь 37 м²
Этаж 16
1 комната
Без отделки
 Константин Андрюшин
Константин Андрюшин
Директор направления по продажам новостроек
1-комн. квартира 38 м², 20 этаж - High Life
ЮАО Даниловский Летниковская ул., 11/10, стр. 1
36 560 803 ₽
Свернуть
ID: as72084

1-комн. квартира 38 м², 20 этаж - High Life

ЮАО Даниловский Летниковская ул., 11/10, стр. 1
Павелецкая
36 560 803 ₽
Площадь 37 м²
Этаж 20
1 комната
Без отделки
 Константин Андрюшин
Константин Андрюшин
Директор направления по продажам новостроек
2-комн. квартира 55 м², 27 этаж - «Level Мичуринский»
ЗАО Очаково-Матвеевское Озёрная ул.
30 513 193 ₽
Свернуть
ID: as101433

2-комн. квартира 55 м², 27 этаж - «Level Мичуринский»

ЗАО Очаково-Матвеевское Озёрная ул.
30 513 193 ₽
Площадь 55 м²
Этаж 27
2 комнаты
Без отделки
3-комн. квартира 60 м², 50 этаж - «Level Мичуринский»
ЗАО Очаково-Матвеевское Озёрная ул.
34 326 161 ₽
Свернуть
ID: as101440

3-комн. квартира 60 м², 50 этаж - «Level Мичуринский»

ЗАО Очаково-Матвеевское Озёрная ул.
34 326 161 ₽
Площадь 60 м²
Этаж 50
3 комнаты
Без отделки
3-комн. квартира 60 м², 7 этаж - «Level Мичуринский»
ЗАО Очаково-Матвеевское Озёрная ул.
33 091 314 ₽
Свернуть
ID: as101445

3-комн. квартира 60 м², 7 этаж - «Level Мичуринский»

ЗАО Очаково-Матвеевское Озёрная ул.
33 091 314 ₽
Площадь 60 м²
Этаж 7
3 комнаты
Без отделки
3-комн. квартира 61 м², 43 этаж - «Level Мичуринский»
ЗАО Очаково-Матвеевское Озёрная ул.
37 362 818 ₽
Свернуть
ID: as101564

3-комн. квартира 61 м², 43 этаж - «Level Мичуринский»

ЗАО Очаково-Матвеевское Озёрная ул.
37 362 818 ₽
Площадь 61 м²
Этаж 43
3 комнаты
Без отделки
1-комн. квартира 26 м², 6 этаж - High Life
ЮАО Даниловский Летниковская ул., 11/10, стр. 1
28 031 247 ₽
Свернуть
ID: as72037

1-комн. квартира 26 м², 6 этаж - High Life

ЮАО Даниловский Летниковская ул., 11/10, стр. 1
Павелецкая
28 031 247 ₽
Площадь 25 м²
Этаж 6
1 комната
Без отделки
 Константин Андрюшин
Константин Андрюшин
Директор направления по продажам новостроек

Отзывы застройщиков о NF GROUP

/
Башня «Федерации» рекомендует международную консалтинговую компанию NF GROUP как верного и профессионального партнера, обладающего высочайшей экспертизой и передовыми знаниями в сфере элитной недвижимости.
Читать весь отзыв
Смирнов М. Ю.
Смирнов М. Ю.
Генеральный директор
«Центр-Инвест» выражает особую благодарность консалтинговой компании NF GROUP за ответственный и грамотный подход, а также исключительное качество услуг.
Читать весь отзыв
Задорожная Джанет Бекманбетовна
Задорожная Джанет Бекманбетовна
Руководитель проектов продаж Департамента продаж премиальных проектов
Благодарим NF GROUP за внимательное отношение к интересам нашей компании и непревзойденный профессионализм.
Читать весь отзыв
Непейвода А.А.
Непейвода А.А.
Руководитель департамента маркетинга и продаж
Благодарим команду NF GROUP за многолетнее успешное сотрудничество и партнерские отношения в работе.
Читать весь отзыв
Дивеева О.А.
Дивеева О.А.
Директор по продажам Capital Group

Получите консультацию эксперта NF GROUP

Как вам удобнее общаться?
Дмитрий Щеголев
Дмитрий Щеголев
Руководитель отдела продаж новостроек

Вы смотрели

/
3-комн. квартира 90 м², 4 этаж - «Сити Бэй»
СЗАО Покровское-Стрешнево Волоколамское ш., 95, к. 4
34 776 574 ₽
Свернуть
ID: as93657

3-комн. квартира 90 м², 4 этаж - «Сити Бэй»

СЗАО Покровское-Стрешнево Волоколамское ш., 95, к. 4
34 776 574 ₽
Площадь 89 м²
Этаж 4
3 комнаты
Без отделки
 Дмитрий Щеголев
Дмитрий Щеголев
Руководитель отдела продаж новостроек
Позвонить
3-комн. квартира 85 м², 26 этаж - VEER
ЗАО Можайский Верейская ул., 29
32 409 735 ₽
Свернуть
ID: as87977

3-комн. квартира 85 м², 26 этаж - VEER

ЗАО Можайский Верейская ул., 29
32 409 735 ₽
Площадь 85 м²
Этаж 26
3 комнаты
Без отделки
 Константин Андрюшин
Константин Андрюшин
Директор направления по продажам новостроек
Позвонить
Жилой комплекс «Сидней Сити»
СЗАО Хорошево-Мневники Шеногина ул., 2
Свернуть
ID: id51273

Жилой комплекс «Сидней Сити»

СЗАО Хорошево-Мневники Шеногина ул., 2
Шелепиха
Год постройки: 1 квартал 2025 г.
Площадь 63-162 м²
Этажей: 45
Позвонить
Клубный дом «Обыденский 1»
ЦАО Хамовники 1-й Обыденский пер, 3
Свернуть
ID: id51731

Клубный дом «Обыденский 1»

ЦАО Хамовники 1-й Обыденский пер, 3
Срок сдачи: 1 квартал 2026 г.
Площадь 82-502 м²
Этажей: 6
Позвонить
3-комн. квартира 76 м², 17 этаж - City Bay
СЗАО Покровское-Стрешнево Волоколамское ш., 95, к. 4
29 892 814 ₽
Свернуть
ID: as93858

3-комн. квартира 76 м², 17 этаж - City Bay

СЗАО Покровское-Стрешнево Волоколамское ш., 95, к. 4
29 892 814 ₽
Площадь 76 м²
Этаж 17
3 комнаты
Без отделки
 Константин Андрюшин
Константин Андрюшин
Директор направления по продажам новостроек
Позвонить
Жилой комплекс «ВЕЕР»
ЗАО Можайский Верейская ул., 29
Свернуть
ID: id84472

Жилой комплекс «ВЕЕР»

ЗАО Можайский Верейская ул., 29
Срок сдачи: 3 квартал 2028 г.
Площадь 20-93 м²
Этажей: 61
Позвонить
2-комн. квартира 58 м², 19 этаж - «Сити Бэй»
СЗАО Покровское-Стрешнево Волоколамское ш., 95, к. 4
27 987 912 ₽
Свернуть
ID: as90658

2-комн. квартира 58 м², 19 этаж - «Сити Бэй»

СЗАО Покровское-Стрешнево Волоколамское ш., 95, к. 4
27 987 912 ₽
Площадь 57 м²
Этаж 19
2 комнаты
Без отделки
 Дмитрий Щеголев
Дмитрий Щеголев
Руководитель отдела продаж новостроек
Позвонить
Жилой комплекс «Сити Бэй»
СЗАО Покровское-Стрешнево Волоколамское ш., 95, к. 4
Свернуть
ID: id89554

Жилой комплекс «Сити Бэй»

СЗАО Покровское-Стрешнево Волоколамское ш., 95, к. 4
Срок сдачи: 2025 г.
Площадь 28-132 м²
Этажей: 59
Позвонить
1-комн. квартира 59 м², 2 этаж - Sydney City
СЗАО Хорошево-Мневники Шеногина ул., 2
30 635 253 ₽
Свернуть
ID: as61188

1-комн. квартира 59 м², 2 этаж - Sydney City

СЗАО Хорошево-Мневники Шеногина ул., 2
Шелепиха
30 635 253 ₽
Площадь 59 м²
Этаж 2
1 комната
Без отделки
 Константин Андрюшин
Константин Андрюшин
Директор направления по продажам новостроек
Позвонить
Квартира 24 м², 17 этаж - «ВЕЕР»
ЗАО Можайский ул. Верейская, влд.29
18 360 000 ₽
Свернуть
ID: as87964

Квартира 24 м², 17 этаж - «ВЕЕР»

ЗАО Можайский ул. Верейская, влд.29
18 360 000 ₽
Площадь 24 м²
Этаж 17
Без отделки
 Дмитрий Щеголев
Дмитрий Щеголев
Руководитель отдела продаж новостроек
Позвонить
NF Group
Авторизация
Мы используем файлы cookie, чтобы улучшить сервис для вас.
Соглашение об использовании