Москва
Санкт-Петербург
+7 (495) 032-68-64 Продать объект Продать объект
Москва
Санкт-Петербург
О компании Аналитика Стать партнёром Карьера Контакты
City Bay (Сити Бэй)
NF Group
NF Group
NF Group
NF Group
NF Group
NF Group
NF Group
NF Group
NF Group
NF Group
NF Group
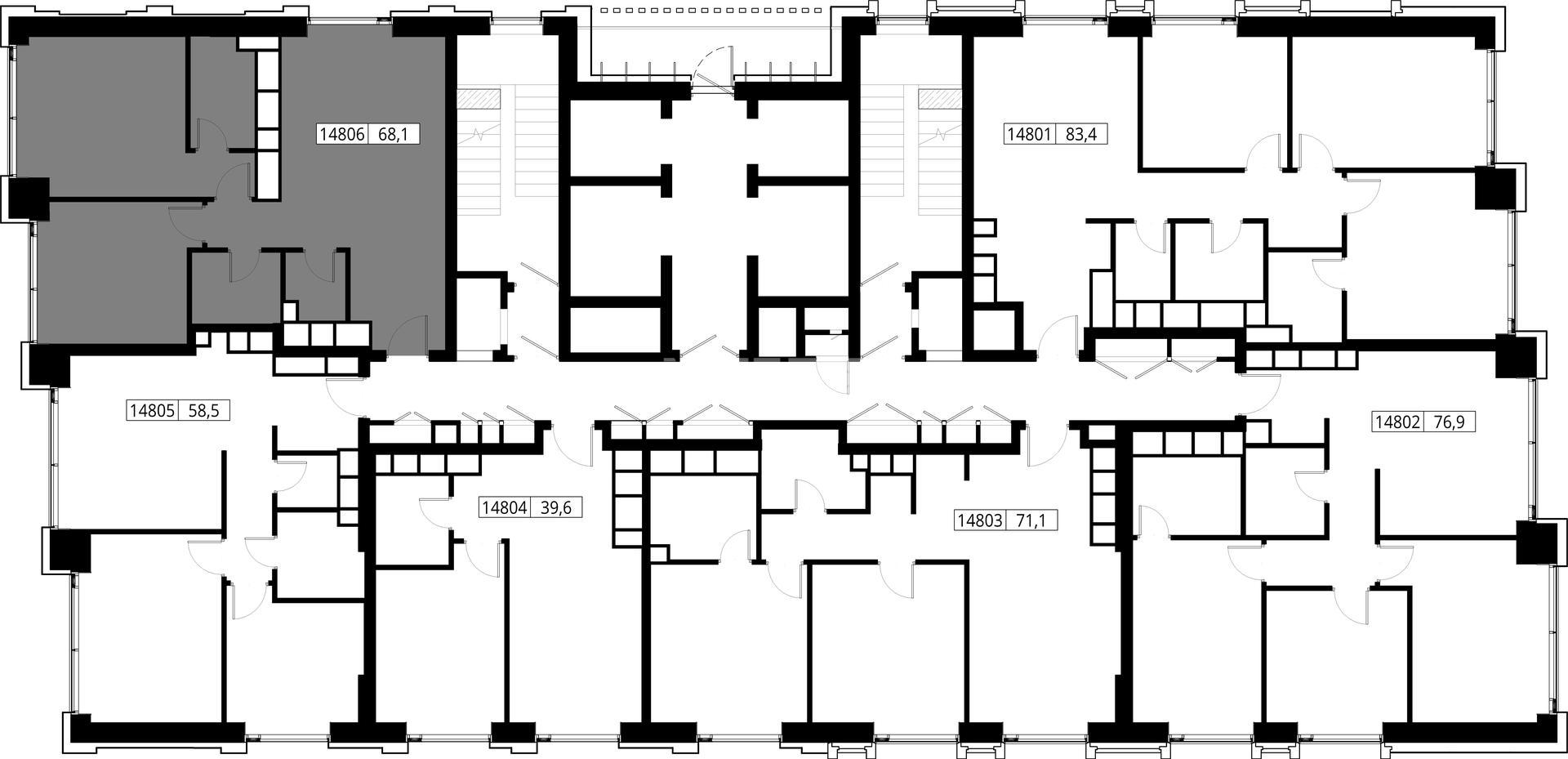
Планировка

2-комн. квартира 68 м², 48 этаж - City Bay

Этажей 52 Год постройки 2024 г.
30 388 562
446 234  ₽/м²
374 565
5 500  $/м²
321 851
4 726  €/м²
$
Whatsapp
30 388 562
446 234  ₽/м²
374 565
5 500  $/м²
321 851
4 726  €/м²
$
ID as93610
 Дмитрий Щеголев
Дмитрий Щеголев
Руководитель отдела продаж новостроек
NF Group
Предложите нам свою цену, и мы свяжемся с вами

Описание

Концепция жилого комплекса City Вау - настоящий город в городе с отлично развитой инфраструктурой и собственной благоустроенной набережной.

Характеристики

О квартире

Тип сделки
Продажа
Отделка
Под отделку
Тип объекта
Квартира
Этаж
48 из 52
Общая площадь
68 м²
Уровней
1
Высота потолков
2.85 м

О жилом комплексе

Площадь квартир
от 27 до 133 м²
Построен
2024
Этажность
52
Класс
Бизнес

Адрес

Город Москва
Округ СЗАО
Район Покровское-Стрешнево
Адрес Волоколамское ш., 95, к. 4

Все предложения в категориях

Коммерческая недвижимость в Москве 18301 Элитная недвижимость в Подмосковье 7869 Продажа квартир с базовой ценой в рублях 6148 Элитная недвижимость в Москве 6148 Элитные квартиры в Москве и Подмосковье 6017 Элитные квартиры в Москве 5778 Квартиры в новостройках (ЖК) Москвы 5428 Квартиры под отделку в Москве 4439 Квартиры в пределах МКАД 3618 Недвижимость от застройщика МР Групп 1794 Квартиры от застройщика МР Групп 1782 Двухкомнатные квартиры в Москве 1737 Двухкомнатные квартиры без отделки в Москве 1474 Квартиры в СЗАО 1133 Квартиры под отделку в СЗАО 1100 Квартиры в районе Покровское-Стрешнево 975 Квартиры в сданных домах в Москве 975 Купить квартиру площадью 70 кв. м. в Москве 638 Квартиры под отделку в сданных домах 583 Двухкомнатные квартиры в сданных домах 216 Сданные квартиры в СЗАО 169 Продажа готовых квартир в районе Покровское-Стрешнево 40

Получите подробную презентацию объекта

NF Group

Инфраструктура района

Преимущества
На границе Войковского района и района Покровское-Стрешнево расположен одноименный лесопарк, в котором находится объект культурного наследия «Усадьба Покровское-Стрешнево», а также беседки, детские и спортивные площадки, обустроенные пляжи. В пешей доступности - Химкинское водохранилище
Образование
17 общеобразовательных школ, частная Англо-американская школа, 9 детских садов, включая частные
Инфраструктура
ТЦ «Покровское-Стрешнево», 11 салонов красоты и спа, 4 крупных фермерских рынка
Культура
3 православных храма (17-19 века), 2 театра, кинотеатр, несколько библиотек
Спорт
Широкие возможности для занятий спортом в парке; более 20 фитнес-клубов в окрестностях района
Мед. учреждения
5 крупных государственных медцентров, 2 частные многопрофильные клиники, 7 стоматологий
Все
Магазины и услуги
Развлечения
Образование
Спорт и здоровье

Записаться на экскурсию по объекту

Подберите ипотеку

Подавая заявку в несколько банков, вы увеличиваете шанс на одобрение ипотеки
Стоимость недвижимости
20 млн.
950 млн.
Первоначальный взнос
20 %
90 %
Срок
1 год
30 лет
Процентная ставка
3%
100%
Сумма кредита
524 700 000 ₽
Ежемесячный платеж
524 700 000 ₽
индивидуальный %
до 30 лет
индивидуальный %
до 30 лет
индивидуальный %
до 30 лет
индивидуальный %
до 30 лет
индивидуальный %
до 35 лет
индивидуальный %
до 30 лет
NF Group
Особые условия по ипотеке для клиентов NF GROUP

Новостройка City Bay

Жилой комплекс City Bay — это современный квартал бизнес-класса, расположенный на берегу Спасского затона. Он находится в районе Покровское — Стрешнево на северо-западе Москвы.

Из комплекса удобно выезжать на МКАД, а рядом расположена станция МЦД «Трикотажная». Это позволяет жителям удобно пользоваться существующей транспортной и социальной инфраструктурой.

NF Group

Посмотрите похожие предложения

/
1-комн. квартира 53 м², 18 этаж - VEER
ЗАО Можайский Верейская ул., 29
28 179 710 ₽
Свернуть
ID: as87735

1-комн. квартира 53 м², 18 этаж - VEER

ЗАО Можайский Верейская ул., 29
28 179 710 ₽
Площадь 53 м²
Этаж 18
1 комната
Без отделки
 Дмитрий Щеголев
Дмитрий Щеголев
Руководитель отдела продаж новостроек
WhatsApp Позвонить
2-комн. квартира 54 м², 15 этаж - VEER
ЗАО Можайский Верейская ул., 29
27 651 520 ₽
Свернуть
ID: as88009

2-комн. квартира 54 м², 15 этаж - VEER

ЗАО Можайский Верейская ул., 29
27 651 520 ₽
Площадь 54 м²
Этаж 15
2 комнаты
Без отделки
 Дмитрий Щеголев
Дмитрий Щеголев
Руководитель отдела продаж новостроек
WhatsApp Позвонить
2-комн. квартира 84 м², 18 этаж - Sky Garden
СЗАО Покровское-Стрешнево Строительный проезд, д.9
33 072 160 ₽
Свернуть
ID: as92690

2-комн. квартира 84 м², 18 этаж - Sky Garden

СЗАО Покровское-Стрешнево Строительный проезд, д.9
33 072 160 ₽
Площадь 83 м²
Этаж 18
2 комнаты
Без отделки
 Константин Андрюшин
Константин Андрюшин
Директор направления по продажам новостроек
WhatsApp Позвонить
2-комн. квартира 42 м², 8 этаж - «Страна. Озёрная»
ЗАО Очаково-Матвеевское Озёрная ул., 42
33 186 667 ₽
Свернуть
ID: as78818

2-комн. квартира 42 м², 8 этаж - «Страна. Озёрная»

ЗАО Очаково-Матвеевское Озёрная ул., 42
33 186 667 ₽
Площадь 42 м²
Этаж 8
2 комнаты
Без отделки
 Дмитрий Щеголев
Дмитрий Щеголев
Руководитель отдела продаж новостроек
WhatsApp Позвонить
Квартира 30 м², 8 этаж - «Страна. Озёрная»
ЗАО Очаково-Матвеевское Озёрная ул., 42
26 920 000 ₽
Свернуть
ID: as79370

Квартира 30 м², 8 этаж - «Страна. Озёрная»

ЗАО Очаково-Матвеевское Озёрная ул., 42
26 920 000 ₽
Площадь 29 м²
Этаж 8
Без отделки
 Дмитрий Щеголев
Дмитрий Щеголев
Руководитель отдела продаж новостроек
WhatsApp Позвонить
2-комн. квартира 58 м², 20 этаж - City Bay
СЗАО Покровское-Стрешнево Волоколамское ш., 95, к. 4
27 316 943 ₽
Свернуть
ID: as93748

2-комн. квартира 58 м², 20 этаж - City Bay

СЗАО Покровское-Стрешнево Волоколамское ш., 95, к. 4
27 316 943 ₽
Площадь 57 м²
Этаж 20
2 комнаты
Без отделки
 Дмитрий Щеголев
Дмитрий Щеголев
Руководитель отдела продаж новостроек
WhatsApp Позвонить
3-комн. квартира 93 м², 21 этаж - City Bay
СЗАО Покровское-Стрешнево Волоколамское ш., 95, к. 4
32 865 642 ₽
Свернуть
ID: as93938

3-комн. квартира 93 м², 21 этаж - City Bay

СЗАО Покровское-Стрешнево Волоколамское ш., 95, к. 4
32 865 642 ₽
Площадь 93 м²
Этаж 21
3 комнаты
Без отделки
 Дмитрий Щеголев
Дмитрий Щеголев
Руководитель отдела продаж новостроек
WhatsApp Позвонить
2-комн. квартира 59 м², 52 этаж - City Bay
СЗАО Покровское-Стрешнево Волоколамское ш., 95, к. 4
29 124 210 ₽
Свернуть
ID: as93829

2-комн. квартира 59 м², 52 этаж - City Bay

СЗАО Покровское-Стрешнево Волоколамское ш., 95, к. 4
29 124 210 ₽
Площадь 58 м²
Этаж 52
2 комнаты
Без отделки
 Дмитрий Щеголев
Дмитрий Щеголев
Руководитель отдела продаж новостроек
WhatsApp Позвонить
2-комн. квартира 67 м², 2 этаж - City Bay
СЗАО Покровское-Стрешнево Волоколамское ш., 95, к. 4
30 989 559 ₽
Свернуть
ID: as94029

2-комн. квартира 67 м², 2 этаж - City Bay

СЗАО Покровское-Стрешнево Волоколамское ш., 95, к. 4
30 989 559 ₽
Площадь 67 м²
Этаж 2
2 комнаты
Без отделки
 Дмитрий Щеголев
Дмитрий Щеголев
Руководитель отдела продаж новостроек
WhatsApp Позвонить
1-комн. квартира 42 м², 31 этаж - Moments
САО Щукино Волоколамское ш., 28
30 850 240 ₽
Свернуть
ID: as83333

1-комн. квартира 42 м², 31 этаж - Moments

САО Щукино Волоколамское ш., 28
30 850 240 ₽
Площадь 42 м²
Этаж 31
1 комната
Без отделки
 Дмитрий Щеголев
Дмитрий Щеголев
Руководитель отдела продаж новостроек
WhatsApp Позвонить

Отзывы застройщиков о NF GROUP

/
Башня «Федерации» рекомендует международную консалтинговую компанию NF GROUP как верного и профессионального партнера, обладающего высочайшей экспертизой и передовыми знаниями в сфере элитной недвижимости.
Читать весь отзыв
Смирнов М. Ю.
Смирнов М. Ю.
Генеральный директор
«Центр-Инвест» выражает особую благодарность консалтинговой компании NF GROUP за ответственный и грамотный подход, а также исключительное качество услуг.
Читать весь отзыв
Задорожная Джанет Бекманбетовна
Задорожная Джанет Бекманбетовна
Руководитель проектов продаж Департамента продаж премиальных проектов
Благодарим NF GROUP за внимательное отношение к интересам нашей компании и непревзойденный профессионализм.
Читать весь отзыв
Непейвода А.А.
Непейвода А.А.
Руководитель департамента маркетинга и продаж
Благодарим команду NF GROUP за многолетнее успешное сотрудничество и партнерские отношения в работе.
Читать весь отзыв
Дивеева О.А.
Дивеева О.А.
Директор по продажам Capital Group

Получите консультацию эксперта NF GROUP

Как вам удобнее общаться?
Дмитрий Щеголев
Дмитрий Щеголев
Руководитель отдела продаж новостроек

Вы смотрели

/
2-комн. квартира 67 м², 2 этаж - City Bay
СЗАО Покровское-Стрешнево Волоколамское ш., 95, к. 4
30 989 559 ₽
Свернуть
ID: as94029

2-комн. квартира 67 м², 2 этаж - City Bay

СЗАО Покровское-Стрешнево Волоколамское ш., 95, к. 4
30 989 559 ₽
Площадь 67 м²
Этаж 2
2 комнаты
Без отделки
 Дмитрий Щеголев
Дмитрий Щеголев
Руководитель отдела продаж новостроек
WhatsApp Позвонить
1-комн. квартира 38 м², 16 этаж - City Bay
СЗАО Покровское-Стрешнево Волоколамское ш., 95, к. 4
18 965 636 ₽
Свернуть
ID: as94175

1-комн. квартира 38 м², 16 этаж - City Bay

СЗАО Покровское-Стрешнево Волоколамское ш., 95, к. 4
18 965 636 ₽
Площадь 38 м²
Этаж 16
1 комната
Без отделки
 Дмитрий Щеголев
Дмитрий Щеголев
Руководитель отдела продаж новостроек
WhatsApp Позвонить
NF Group
Авторизация
Мы используем файлы cookie, чтобы улучшить сервис для вас.
Соглашение об использовании