Москва
Санкт-Петербург
+7 (495) 032-68-64 Продать объект Продать объект
Москва
Санкт-Петербург
О компании Аналитика Стать партнёром Карьера Контакты
«Сити Бэй» (City Bay)
NF Group
NF Group
NF Group
NF Group
NF Group
NF Group
NF Group
NF Group
NF Group
NF Group
NF Group
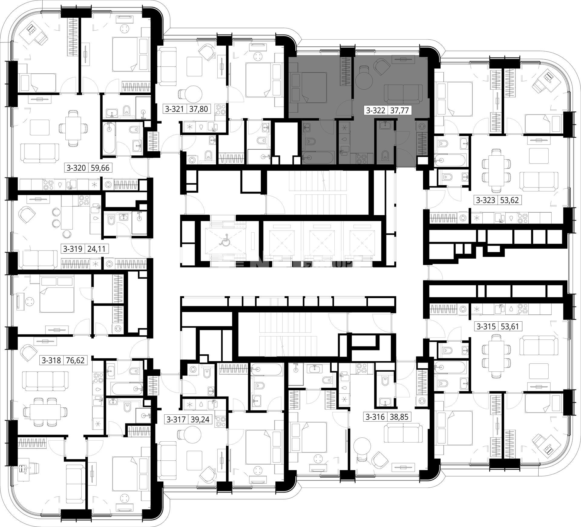
Планировка

1-комн. квартира 38 м², 38 этаж - «Сити Бэй»

Этажей 53 Срок сдачи 2025 г.
21 041 413
557 093  ₽/м²
262 278
6 944  $/м²
228 749
6 056  €/м²
$
21 041 413
557 093  ₽/м²
262 278
6 944  $/м²
228 749
6 056  €/м²
$
ID as93490
 Дмитрий Щеголев
Дмитрий Щеголев
Руководитель отдела продаж новостроек
NF Group
Предложите нам свою цену, и мы свяжемся с вами

Описание

Концепция жилого комплекса City Вау - настоящий город в городе с отлично развитой инфраструктурой и собственной благоустроенной набережной.

Характеристики

О квартире

Тип сделки
Продажа
Отделка
Под отделку
Тип объекта
Квартира
Этаж
38 из 53
Общая площадь
38 м²
Уровней
1

О жилом комплексе

Площадь квартир
от 29 до 133 м²
Строится
2025
Этажность
53
Класс
Бизнес

Адрес

Город Москва
Округ СЗАО
Район Покровское-Стрешнево
Адрес Волоколамское ш., 95, к. 4
Объекты рядом

Все предложения в категориях

Элитная недвижимость в Подмосковье 7724 Элитная недвижимость в Москве 5829 Элитные квартиры в Москве и Подмосковье 5686 Элитные квартиры в Москве 5431 Продажа квартир с базовой ценой в рублях 5388 Квартиры в новостройках (ЖК) Москвы 5053 Строящиеся квартиры в Москве 4354 Квартиры на этапе строительства в новостройках 4343 Квартиры под отделку в Москве 4121 Квартиры без отделки от застройщика 4010 Квартиры под отделку в строящихся домах 3481 Квартиры в пределах МКАД 3022 Недвижимость бизнес-класса 1784 Квартиры бизнес-класса от застройщика 1746 Недвижимость от застройщика МР Групп 1496 Квартиры от застройщика МР Групп 1482 Вторичное жилье: однокомнатные квартиры в Москве 1021 Однокомнатные элитные квартиры 971 Однокомнатные квартиры в новостройках 967 Квартиры в СЗАО 924 Однокомнатные квартиры с отделкой 921 Квартиры под отделку в СЗАО 890 Строящиеся однокомнатные квартиры 873 Квартиры в районе Покровское-Стрешнево 795 Квартиры в новостройках в районе Покровское-Стрешнево 788 Купить квартиру площадью 40 кв. м. в Москве 655

Получите подробную презентацию объекта

NF Group

Инфраструктура района

Преимущества
На границе Войковского района и района Покровское-Стрешнево расположен одноименный лесопарк, в котором находится объект культурного наследия «Усадьба Покровское-Стрешнево», а также беседки, детские и спортивные площадки, обустроенные пляжи. В пешей доступности - Химкинское водохранилище
Образование
17 общеобразовательных школ, частная Англо-американская школа, 9 детских садов, включая частные
Инфраструктура
ТЦ «Покровское-Стрешнево», 11 салонов красоты и спа, 4 крупных фермерских рынка
Культура
3 православных храма (17-19 века), 2 театра, кинотеатр, несколько библиотек
Спорт
Широкие возможности для занятий спортом в парке; более 20 фитнес-клубов в окрестностях района
Мед. учреждения
5 крупных государственных медцентров, 2 частные многопрофильные клиники, 7 стоматологий
Все
Магазины и услуги
Развлечения
Образование
Спорт и здоровье

Записаться на экскурсию по объекту

Подберите ипотеку

Подавая заявку в несколько банков, вы увеличиваете шанс на одобрение ипотеки
Стоимость недвижимости
20 млн.
950 млн.
Первоначальный взнос
20 %
90 %
Срок
1 год
30 лет
Процентная ставка
3%
100%
Сумма кредита
524 700 000 ₽
Ежемесячный платеж
524 700 000 ₽
индивидуальный %
до 30 лет
индивидуальный %
до 30 лет
индивидуальный %
до 30 лет
индивидуальный %
до 30 лет
индивидуальный %
до 35 лет
индивидуальный %
до 30 лет
NF Group
Особые условия по ипотеке для клиентов NF GROUP

Новостройка «Сити Бэй»

Жилой комплекс City Bay — это современный квартал бизнес-класса, расположенный на берегу Спасского затона. Он находится в районе Покровское — Стрешнево на северо-западе Москвы.

Из комплекса удобно выезжать на МКАД, а рядом расположена станция МЦД «Трикотажная». Это позволяет жителям удобно пользоваться существующей транспортной и социальной инфраструктурой.

NF Group

Посмотрите похожие предложения

/
Квартира 26 м², 13 этаж - Level Академическая
ЮЗАО Академический Профсоюзная ул., 2/22
23 493 998 ₽
Свернуть
ID: as101470

Квартира 26 м², 13 этаж - Level Академическая

ЮЗАО Академический Профсоюзная ул., 2/22
23 493 998 ₽
Площадь 25 м²
Этаж 13
Без отделки
Квартира 24 м², 29 этаж - «Level Мичуринский»
ЗАО Очаково-Матвеевское Озёрная ул.
17 885 701 ₽
Свернуть
ID: as101465

Квартира 24 м², 29 этаж - «Level Мичуринский»

ЗАО Очаково-Матвеевское Озёрная ул.
17 885 701 ₽
Площадь 23 м²
Этаж 29
Без отделки
1-комн. квартира 40 м², 2 этаж - Life Варшавская
ЮАО Москворечье-Сабурово 2-й Котляковский пер, вл. 1
22 919 040 ₽
Свернуть
ID: as83397

1-комн. квартира 40 м², 2 этаж - Life Варшавская

ЮАО Москворечье-Сабурово 2-й Котляковский пер, вл. 1
22 919 040 ₽
Площадь 39 м²
Этаж 2
1 комната
Без отделки
 Дмитрий Щеголев
Дмитрий Щеголев
Руководитель отдела продаж новостроек
Квартира 26 м², 2 этаж - Moments
САО Щукино Волоколамское ш., 28
22 199 760 ₽
Свернуть
ID: as59693

Квартира 26 м², 2 этаж - Moments

САО Щукино Волоколамское ш., 28
22 199 760 ₽
Площадь 26 м²
Этаж 2
Без отделки
 Дмитрий Щеголев
Дмитрий Щеголев
Руководитель отдела продаж новостроек
1-комн. квартира 40 м², 2 этаж - Life Варшавская
ЮАО Москворечье-Сабурово 2-й Котляковский пер, вл. 1
23 798 325 ₽
Свернуть
ID: as95700

1-комн. квартира 40 м², 2 этаж - Life Варшавская

ЮАО Москворечье-Сабурово 2-й Котляковский пер, вл. 1
23 798 325 ₽
Площадь 39 м²
Этаж 2
1 комната
Без отделки
 Дмитрий Щеголев
Дмитрий Щеголев
Руководитель отдела продаж новостроек
Квартира 23 м², 34 этаж - «ВЕЕР»
ЗАО Можайский ул. Верейская, влд.29
18 736 380 ₽
Свернуть
ID: as88184

Квартира 23 м², 34 этаж - «ВЕЕР»

ЗАО Можайский ул. Верейская, влд.29
18 736 380 ₽
Площадь 23 м²
Этаж 34
Без отделки
 Дмитрий Щеголев
Дмитрий Щеголев
Руководитель отдела продаж новостроек
Квартира 22 м², 34 этаж - «ВЕЕР»
ЗАО Можайский ул. Верейская, влд.29
18 283 500 ₽
Свернуть
ID: as88208

Квартира 22 м², 34 этаж - «ВЕЕР»

ЗАО Можайский ул. Верейская, влд.29
18 283 500 ₽
Площадь 22 м²
Этаж 34
Без отделки
 Дмитрий Щеголев
Дмитрий Щеголев
Руководитель отдела продаж новостроек
1-комн. квартира 30 м², 18 этаж - PRIDE
СВАО Марьина Роща ул. Полковая, вл. 1
23 092 492 ₽
Свернуть
ID: as73614

1-комн. квартира 30 м², 18 этаж - PRIDE

СВАО Марьина Роща ул. Полковая, вл. 1
Савёловская
23 092 492 ₽
Площадь 29 м²
Этаж 18
1 комната
Без отделки
 Дмитрий Щеголев
Дмитрий Щеголев
Руководитель отдела продаж новостроек
1-комн. квартира 45 м², 17 этаж - Sky Garden
СЗАО Покровское-Стрешнево Строительный проезд, д.9
21 513 244 ₽
Свернуть
ID: as73307

1-комн. квартира 45 м², 17 этаж - Sky Garden

СЗАО Покровское-Стрешнево Строительный проезд, д.9
21 513 244 ₽
Площадь 45 м²
Этаж 17
1 комната
С отделкой
 Дмитрий Щеголев
Дмитрий Щеголев
Руководитель отдела продаж новостроек
Квартира 25 м², 13 этаж - Level Академическая
ЮЗАО Академический Профсоюзная ул., 2/22
23 017 382 ₽
Свернуть
ID: as101469

Квартира 25 м², 13 этаж - Level Академическая

ЮЗАО Академический Профсоюзная ул., 2/22
23 017 382 ₽
Площадь 24 м²
Этаж 13
Без отделки

Отзывы застройщиков о NF GROUP

/
Башня «Федерации» рекомендует международную консалтинговую компанию NF GROUP как верного и профессионального партнера, обладающего высочайшей экспертизой и передовыми знаниями в сфере элитной недвижимости.
Читать весь отзыв
Смирнов М. Ю.
Смирнов М. Ю.
Генеральный директор
«Центр-Инвест» выражает особую благодарность консалтинговой компании NF GROUP за ответственный и грамотный подход, а также исключительное качество услуг.
Читать весь отзыв
Задорожная Джанет Бекманбетовна
Задорожная Джанет Бекманбетовна
Руководитель проектов продаж Департамента продаж премиальных проектов
Благодарим NF GROUP за внимательное отношение к интересам нашей компании и непревзойденный профессионализм.
Читать весь отзыв
Непейвода А.А.
Непейвода А.А.
Руководитель департамента маркетинга и продаж
Благодарим команду NF GROUP за многолетнее успешное сотрудничество и партнерские отношения в работе.
Читать весь отзыв
Дивеева О.А.
Дивеева О.А.
Директор по продажам Capital Group

Получите консультацию эксперта NF GROUP

Как вам удобнее общаться?
Дмитрий Щеголев
Дмитрий Щеголев
Руководитель отдела продаж новостроек

Вы смотрели

/
1-комн. квартира 45 м², 6 этаж - VEER
ЗАО Можайский Верейская ул., 29
20 869 710 ₽
Свернуть
ID: as88901

1-комн. квартира 45 м², 6 этаж - VEER

ЗАО Можайский Верейская ул., 29
20 869 710 ₽
Площадь 45 м²
Этаж 6
1 комната
Без отделки
 Константин Андрюшин
Константин Андрюшин
Директор направления по продажам новостроек
Позвонить
2-комн. квартира 53 м², 21 этаж - City Bay
СЗАО Покровское-Стрешнево Волоколамское ш., 95, к. 4
20 291 467 ₽
Свернуть
ID: as93357

2-комн. квартира 53 м², 21 этаж - City Bay

СЗАО Покровское-Стрешнево Волоколамское ш., 95, к. 4
20 291 467 ₽
Площадь 53 м²
Этаж 21
2 комнаты
Без отделки
 Константин Андрюшин
Константин Андрюшин
Директор направления по продажам новостроек
Позвонить
1-комн. квартира 40 м², 44 этаж - City Bay
СЗАО Покровское-Стрешнево Волоколамское ш., 95, к. 4
19 818 806 ₽
Свернуть
ID: as93874

1-комн. квартира 40 м², 44 этаж - City Bay

СЗАО Покровское-Стрешнево Волоколамское ш., 95, к. 4
19 818 806 ₽
Площадь 39 м²
Этаж 44
1 комната
Без отделки
 Дмитрий Щеголев
Дмитрий Щеголев
Руководитель отдела продаж новостроек
Позвонить
Жилой комплекс «Страна. Озёрная»
ЗАО Очаково-Матвеевское Озёрная ул., 42
Свернуть
ID: id55177

Жилой комплекс «Страна. Озёрная»

ЗАО Очаково-Матвеевское Озёрная ул., 42
Срок сдачи: 2 квартал 2026 г.
Площадь 23-102 м²
Этажей: 30
Позвонить
1-комн. квартира 49 м², 19 этаж - City Bay
СЗАО Покровское-Стрешнево Волоколамское ш., 95, к. 4
20 430 800 ₽
Свернуть
ID: as93524

1-комн. квартира 49 м², 19 этаж - City Bay

СЗАО Покровское-Стрешнево Волоколамское ш., 95, к. 4
20 430 800 ₽
Площадь 48 м²
Этаж 19
1 комната
Без отделки
 Дмитрий Щеголев
Дмитрий Щеголев
Руководитель отдела продаж новостроек
Позвонить
Жилой комплекс «Сити Бэй»
СЗАО Покровское-Стрешнево Волоколамское ш., 95, к. 4
Свернуть
ID: id89554

Жилой комплекс «Сити Бэй»

СЗАО Покровское-Стрешнево Волоколамское ш., 95, к. 4
Срок сдачи: 2025 г.
Площадь 28-132 м²
Этажей: 59
Позвонить
Квартира 26 м², 14 этаж - VEER
ЗАО Можайский Верейская ул., 29
18 041 760 ₽
Свернуть
ID: as87645

Квартира 26 м², 14 этаж - VEER

ЗАО Можайский Верейская ул., 29
18 041 760 ₽
Площадь 26 м²
Этаж 14
Без отделки
 Дмитрий Щеголев
Дмитрий Щеголев
Руководитель отдела продаж новостроек
Позвонить
2-комн. квартира 41 м², 9 этаж - «Страна. Озёрная»
ЗАО Очаково-Матвеевское Озёрная ул., 42
43 320 000 ₽
Свернуть
ID: as91039

2-комн. квартира 41 м², 9 этаж - «Страна. Озёрная»

ЗАО Очаково-Матвеевское Озёрная ул., 42
43 320 000 ₽
Площадь 41 м²
Этаж 9
2 комнаты
С отделкой
 Дмитрий Щеголев
Дмитрий Щеголев
Руководитель отдела продаж новостроек
Позвонить
1-комн. квартира 48 м², 4 этаж - City Bay
СЗАО Покровское-Стрешнево Волоколамское ш., 95, к. 4
18 931 003 ₽
Свернуть
ID: as94166

1-комн. квартира 48 м², 4 этаж - City Bay

СЗАО Покровское-Стрешнево Волоколамское ш., 95, к. 4
18 931 003 ₽
Площадь 48 м²
Этаж 4
1 комната
Без отделки
 Дмитрий Щеголев
Дмитрий Щеголев
Руководитель отдела продаж новостроек
Позвонить
2-комн. квартира 54 м², 45 этаж - «Сити Бэй»
СЗАО Покровское-Стрешнево Волоколамское ш., 95, к. 4
26 162 684 ₽
Свернуть
ID: as93512

2-комн. квартира 54 м², 45 этаж - «Сити Бэй»

СЗАО Покровское-Стрешнево Волоколамское ш., 95, к. 4
26 162 684 ₽
Площадь 54 м²
Этаж 45
2 комнаты
Без отделки
 Дмитрий Щеголев
Дмитрий Щеголев
Руководитель отдела продаж новостроек
Позвонить
NF Group
Авторизация
Мы используем файлы cookie, чтобы улучшить сервис для вас.
Соглашение об использовании