Москва
Санкт-Петербург
+7 (812) 363-22-22 Продать объект Объект
Москва
Санкт-Петербург
Контакты О компании Аналитика Стать партнером Карьера
Продать / сдать Элитную недвижимость
Линкор (Linkor)
NF Expert
Наши эксперты ответят на все ваши вопросы
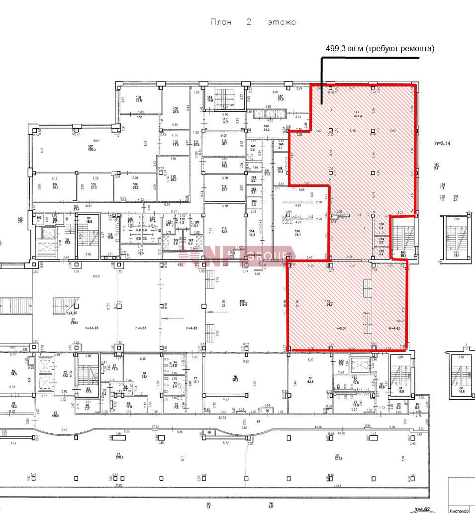
Планировка

Аренда офиса 499 м², 2 этаж - Линкор

Петроградская
Цена по запросу
Whatsapp
Цена по запросу
ID ol28283
 Регина Волошенко
Регина Волошенко
Директор департамента офисной недвижимости
NF Group
Предложите нам свою цену, и мы свяжемся с вами

Описание

Аренда офиса в БЦ «Линкор» класса «А» в Петроградском районе Санкт-Петербурга на Петроградской набережной, д. 36А. Видовые офисы с панорамными окнами на р. Большую Невку.
Бизнес-центр расположен у метро Петроградская – 19 минут пешей доступности (6 мин. транспортной доступности).

ПЛОЩАДЬ В АРЕНДУ:
— 2 этаж, 499 кв. м с АРЕНДНОЙ СТАВКОЙ: 1800 руб./кв. м/месяц, включая НДС, КУ (кроме электричества) и эксплуатационные расходы.

ОСОБЕННОСТИ ПОМЕЩЕНИЯ:
• Планировки: open-space (видовые)
• Отделка: готовые офисы со стандартной отделкой

ХАРАКТЕРИСТИКИ ЗДАНИЯ:
• Площадь здания: 26 327,8 кв.м, 7 этажей
• Высокие потолки (до 3,4 метров);
• Центральная система приточно-вытяжной вентиляции;
• Автоматическая газовая котельная;
• Дополнительная очистка воды в водомерном узле;
• Вторая категория электроснабжения;
• Встроенная трансформаторная подстанция;
• Лифты OTIS-премиум;
• Современная телефония и высокоскоростной Интернет;
• Охранно-пожарная сигнализация и система автоматического пожаротушения;
• Система радиофикации и оповещения по сигналам ГО и ЧС;
• Система охранной сигнализации, системы контроля и управления доступом и видеонаблюдения;
• Система диспетчеризации инженерных систем здания;
• Круглосуточная охрана;
• Крытая парковка на уровне первого этажа здания, открытая во внутреннем дворе, свободная парковка на набережной.

Аренда напрямую от собственника, без комиссий для арендаторов.

По любым вопросам обращайтесь, пожалуйста, по телефону! Наши специалисты оперативно проконсультируют вас.

Характеристики

Адрес

Город Санкт-Петербург
Район Петроградский
Адрес Петроградская наб 36А

Об объекте

Тип сделки
Аренда
Класс
A
Площадь блока
499 м²
Год строительства
2008
Этаж
2
Лифты
6
Планировка
смешанная
Парковочный коэффициент
1/100
НДС
включен
Операционные расходы
включены в арендную плату
Отделка
Есть

О здании

Тип здания
Бизнес-центр
Этажность
7
Общая площадь
26 328 м²
Предложений в аренду
2
Площадь предложений в аренду
499 - 1 594 м²

Получите подробную презентацию объекта

NF Group

Инфраструктура

Все
Преимущества
Образование
Культура
Спорт
Инфраструктура
Мед. учреждения

Бизнес-центр Линкор (Linkor)

Аренда офиса в БЦ «Линкор» класса «А» в Петроградском районе Санкт-Петербурга на Петроградской набережной, д. 36А. Видовые офисы с панорамными окнами на р. Большую Невку.
Бизнес-центр расположен у метро Петроградская – 19 минут пешей доступности (6 мин. транспортной доступности).

СВОБОДНАЯ ПЛОЩАДЬ В АРЕНДУ: 3240 кв. м.
Есть деление на блоки от 60 кв. м до 880 кв. м с АРЕНДНОЙ СТАВКОЙ: от 1800 руб./кв.м/месяц до 2300 руб./кв. м/месяц, включая НДС.

ОСОБЕННОСТИ ПОМЕЩЕНИЙ:
• Планировки: open-space (видовые)
• Отделка: готовые офисы со стандартной отделкой

ХАРАКТЕРИСТИКИ ЗДАНИЯ:
• Площадь здания: 26 327,8 кв.м, 7 этажей
• Высокие потолки (до 3,4 метров);
• Центральная система приточно-вытяжной вентиляции;
• Автоматическая газовая котельная;
• Дополнительная очистка воды в водомерном узле;
• Вторая категория электроснабжения;
• Встроенная трансформаторная подстанция;
• Лифты OTIS-премиум;
• Современная телефония и высокоскоростной Интернет;
• Охранно-пожарная сигнализация и система автоматического пожаротушения;
• Система радиофикации и оповещения по сигналам ГО и ЧС;
• Система охранной сигнализации, системы контроля и управления доступом и видеонаблюдения;
• Система диспетчеризации инженерных систем здания;
• Круглосуточная охрана;
• Крытая парковка на уровне первого этажа здания, открытая во внутреннем дворе, свободная парковка на набережной.

Аренда напрямую от собственника, без комиссий для арендаторов.

По любым вопросам обращайтесь, пожалуйста, по телефону! Наши специалисты оперативно проконсультируют вас.
Предложений в аренду 2
Площадь предложений в аренду 499 - 1 594 м²
Подробнее
NF Group
NF Group
Профессиональные услуги по представлению интересов арендаторов

Получите консультацию эксперта NF GROUP

Как вам удобнее общаться?
Регина Волошенко
Регина Волошенко
Директор департамента офисной недвижимости

Посмотрите похожие предложения

/
Офис 600 м², 3 этаж - Рентгена 5
Петроградский Рентгена ул., 5а
16 800 ₽ м² в год
Свернуть
ID: ol48971

Офис 600 м², 3 этаж - Рентгена 5

Петроградский Рентгена ул., 5а
Петроградская
16 800 ₽ м² в год
600 м²
3 этаж
С отделкой
Класс B
WhatsApp Позвонить
Офис 1 552 м², 1-3 этаж - Ривер Хаус
Петроградский Академика Павлова ул., 5
24 000 ₽ м² в год
Свернуть
ID: ol48704

Офис 1 552 м², 1-3 этаж - Ривер Хаус

Петроградский Академика Павлова ул., 5
Петроградская
24 000 ₽ м² в год
1 552 м²
1-3 этаж
С отделкой
Класс B+
WhatsApp Позвонить
Аренда офиса 318 м², 3 этаж - Лидваль Холл
Петроградский Петропавловская ул., 4
19 200 ₽ м² в год
Свернуть
ID: ol35342

Аренда офиса 318 м², 3 этаж - Лидваль Холл

Петроградский Петропавловская ул., 4
Петроградская
19 200 ₽ м² в год
318 м²
3 этаж
С отделкой
Класс B
WhatsApp Позвонить
Аренда офиса 348 м², 4 этаж - Атрио
Петроградский Петроградская наб, 22, литера А
26 400 ₽ м² в год
Свернуть
ID: ol35214

Аренда офиса 348 м², 4 этаж - Атрио

Петроградский Петроградская наб, 22, литера А
Горьковская
26 400 ₽ м² в год
348 м²
4 этаж
С отделкой
Класс A
WhatsApp Позвонить
Аренда офиса 450 м², 1 этаж - Великан Парк
Петроградский Александровский парк, 4, к. 3
Цена по запросу
Свернуть
ID: ol38441

Аренда офиса 450 м², 1 этаж - Великан Парк

Петроградский Александровский парк, 4, к. 3
Горьковская
Цена по запросу
450 м²
1 этаж
С отделкой
Класс B
WhatsApp Позвонить
Офис 669 м², 8 этаж - Левашовский 11
Петроградский Левашовский пр-кт, 11/7, стр. 4
Цена по запросу
Свернуть
ID: ol48438

Офис 669 м², 8 этаж - Левашовский 11

Петроградский Левашовский пр-кт, 11/7, стр. 4
Чкаловская, Петроградская
Цена по запросу
669 м²
8 этаж
Без отделки
Класс B+
WhatsApp Позвонить
Аренда офиса 250 м², 1 этаж - Великан Парк
Петроградский Александровский парк, 4, к. 3
Цена по запросу
Свернуть
ID: ol29956

Аренда офиса 250 м², 1 этаж - Великан Парк

Петроградский Александровский парк, 4, к. 3
Горьковская
Цена по запросу
250 м²
1 этаж
С отделкой
Класс B
WhatsApp Позвонить
Аренда офиса 209 м², 5 этаж - Кристалл
Петроградский Чкаловский пр-кт, 50
20 400 ₽ м² в год
Свернуть
ID: ol38707

Аренда офиса 209 м², 5 этаж - Кристалл

Петроградский Чкаловский пр-кт, 50
Петроградская
20 400 ₽ м² в год
209 м²
5 этаж
С отделкой
Класс B+
WhatsApp Позвонить
Аренда офиса 720 м², 1 этаж - Великан Парк
Петроградский Александровский парк, 4, к. 3
Цена по запросу
Свернуть
ID: ol29959

Аренда офиса 720 м², 1 этаж - Великан Парк

Петроградский Александровский парк, 4, к. 3
Горьковская
Цена по запросу
720 м²
1 этаж
С отделкой
Класс B
WhatsApp Позвонить
Офис 150 м², 3 этаж - Толстой Сквер
Петроградский Льва Толстого ул., 9
24 000 ₽ м² в год
Свернуть
ID: ol48702

Офис 150 м², 3 этаж - Толстой Сквер

Петроградский Льва Толстого ул., 9
Петроградская
24 000 ₽ м² в год
150 м²
3 этаж
С отделкой
Класс A
WhatsApp Позвонить
NF Group
Авторизация
Мы используем файлы cookie, чтобы улучшить сервис для вас.
Соглашение об использовании