+7 (812) 363-22-22 Продать объект Объект
Контакты О компании Аналитика Стать партнером Карьера
Продать / сдать Элитную недвижимость
Садовая ул., д. 32
NF Group
NF Group
NF Group
NF Group
NF Group
NF Group
NF Expert
Наши эксперты ответят на все ваши вопросы
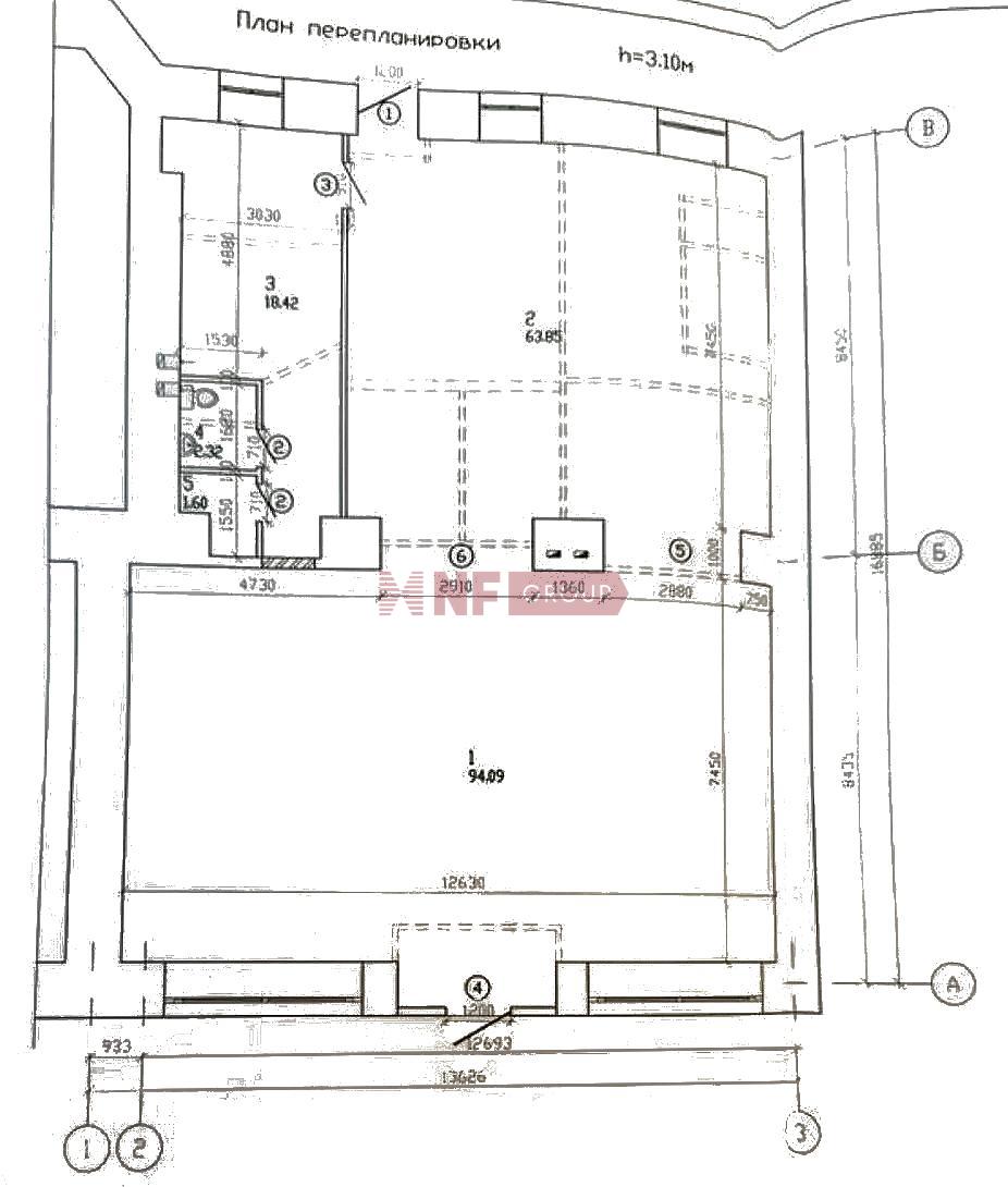
Планировки

Садовая ул., д. 32, торговая площадь 180.0 м² - аренда

Спасская, Сенная Площадь, Садовая
1 100 000
14 704
12 516
$
/мес.
1 100 000
14 704
12 516
$
/мес.
ID r138887
 Анна Лапченко
Анна Лапченко
Руководитель департамента торговой недвижимости
NF Group
Предложите нам свою цену, и мы свяжемся с вами

Характеристики

Об объекте

Тип сделки
Аренда
Стадия строительства
Построен
Площадь в аренду
180.00 м²
Витрины
Нет
Входная группа
Отдельный вход
НДС
не применим
Мощность электроэнергии
65 кВт

Адрес

Город Санкт-Петербург
Район Центральный
Адрес Садовая ул., 32
Объекты рядом

Описание

Без комиссии. Предлагаем в аренду фасадное торговое помещение на Садовой улице — витринные окна, высокие потолки, есть вытяжка и 2 входа.

Действующий арендатор — ресторан «Тёремок», помещение освобождается с 01.06.2026. Расположено на первой линии Садовой улицы в историческом центре, в шаговой доступности сразу от трёх станций метро — «Сенная площадь», «Спасская», «Садовая». Высокий пешеходный трафик, туристические маршруты и сложившиеся ресторанные кластеры обеспечивают постоянный поток гостей.

Планировку и подробную информацию по объекту предоставим в удобный для Вас мессенджер — напишите нам в чат или позвоните по телефону в объявлении.

Особенности объекта
• Общая площадь: 180 м² (делится на 120 м² и 60 м²)
• Высокие потолки 4 м
• Витринные окна на Садовую улицу
• Два входа — с фасада и со двора
• Электрическая мощность: 65 кВт
• Вентиляция: приточно-вытяжная (есть свеча)
• Есть все центральные коммуникации

Преимущества расположения
— Садовая ул., д. 32 (Центральный район)
— Шаговая доступность ст.м. «Сенная площадь», «Спасская», «Садовая»
— Высокий пешеходный трафик, деловая и туристическая активность
— Сложившиеся торговые и ресторанные кластеры

Помещение подойдёт под ресторан, кафе, магазин или любой другой формат — наличие свечи и мощность 65 кВт открывают возможности для большинства концепций.

Почему NF Group? Мы — лидеры рынка элитной и коммерческой недвижимости. Обеспечиваем полное сопровождение сделки, прозрачность условий и экономию вашего времени.

Позвоните или напишите в чат! Подготовим презентацию, организуем оперативный показ и ответим на все вопросы.

Получите подробную презентацию объекта

NF Group

Инфраструктура

Все
Преимущества
Образование
Культура
Спорт
Инфраструктура
Мед. учреждения
NF Group
Выбирайте помещение на основе Big Data

Посмотрите похожие предложения

/
Добролюбова просп., д. 1/79, торговая площадь 415.0 м² - аренда
Петроградский Добролюбова пр-кт, 1/79
950 000 ₽ в месяц
Свернуть
ID: r134436

Добролюбова просп., д. 1/79, торговая площадь 415.0 м² - аренда

Петроградский Добролюбова пр-кт, 1/79
Спортивная
950 000 ₽ в месяц
Площадь 415 м²
Мощность 80 кВт
Малая Конюшенная ул., д. 10, торговая площадь 220.0 м² - аренда
Центральный Малая Конюшенная ул., 10
960 000 ₽ в месяц
Свернуть
ID: r135634

Малая Конюшенная ул., д. 10, торговая площадь 220.0 м² - аренда

Центральный Малая Конюшенная ул., 10
Невский проспект, Гостиный Двор
960 000 ₽ в месяц
Площадь 220 м²
Мощность 78 кВт
Александровский парк., д. 4, к. 31131, торговая площадь 466.0 м² - аренда
Петроградский Александровский парк, 4, к. 3
1 165 000 ₽ в месяц
Свернуть
ID: r135595

Александровский парк., д. 4, к. 31131, торговая площадь 466.0 м² - аренда

Петроградский Александровский парк, 4, к. 3
Горьковская
1 165 000 ₽ в месяц
Площадь 466 м²
Витрины
Мощность 75 кВт
Энгельса просп., д. 139/21, торговая площадь 355.0 м² - аренда
Выборгский Энгельса пр-кт, 139/21
1 000 000 ₽ в месяц
Свернуть
ID: r133648

Энгельса просп., д. 139/21, торговая площадь 355.0 м² - аренда

Выборгский Энгельса пр-кт, 139/21
Проспект Просвещения
1 000 000 ₽ в месяц
Площадь 355 м²
Мощность 60 кВт
Уральская ул., д. 4, торговая площадь 617.0 м² - аренда
Василеостровский Уральская ул., 4
1 172 300 ₽ в месяц
Свернуть
ID: r133903

Уральская ул., д. 4, торговая площадь 617.0 м² - аренда

Василеостровский Уральская ул., 4
Василеостровская
1 172 300 ₽ в месяц
Площадь 617 м²
С отделкой
Невский пр., д. 32-34, торговая площадь 57.2 м² - аренда
Центральный Невский пр-кт, 32-34
1 100 000 ₽ в месяц
Свернуть
ID: r130847

Невский пр., д. 32-34, торговая площадь 57.2 м² - аренда

Центральный Невский пр-кт, 32-34
Невский проспект, Гостиный Двор
1 100 000 ₽ в месяц
Площадь 57 м²
С отделкой
Витрины
Мощность 15 кВт
Нам доверяют во всем мире
Лидеры в сфере недвижимости
Управляющая компания года
В управлении 73 млн м² и 150 млрд инвестиций
Самая большая цитируемость в мире
Более 400 экспертов в России

Получите консультацию эксперта NF GROUP

Как вам удобнее общаться?
Анна Лапченко
Анна Лапченко
Руководитель департамента торговой недвижимости
NF Group
Авторизация
Мы используем файлы cookie, чтобы улучшить сервис для вас.
Соглашение об использовании