Москва
Санкт-Петербург
+7 (812) 363-22-22 Продать объект Объект
Москва
Санкт-Петербург
Контакты О компании Аналитика Стать партнером Карьера
Продать / сдать Элитную недвижимость
Греческий (Grecheskiy)
NF Group
NF Group
NF Group
NF Group
NF Group
NF Group
NF Group
NF Expert
Наши эксперты ответят на все ваши вопросы

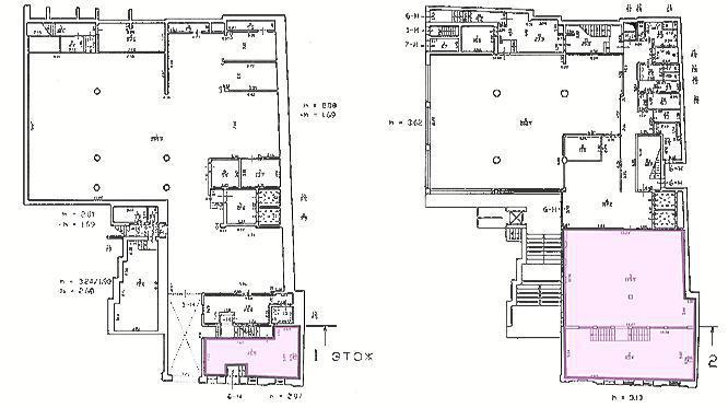
Офис 280 м², 1 этаж - Греческий

Площадь Восстания
36 000
840 000  ₽ / мес.
460
10 738  $ / мес.
390
9 121  € / мес.
$
за м²/год
Whatsapp
36 000
840 000  ₽ / мес.
460
10 738  $ / мес.
390
9 121  € / мес.
$
за м²/год
ID ol49946
 Регина Волошенко
Регина Волошенко
Директор департамента офисной недвижимости
NF Group
Предложите нам свою цену, и мы свяжемся с вами

Описание

Современный офис в БЦ «Греческий»: идеальное решение для вашего бизнеса Преимущества бизнес-центра «Греческий» Бизнес-центр «Греческий», расположенный в Центральном районе Санкт-Петербурга, предлагает аренду офисного помещения класса А с современной инфраструктурой и комфортными условиями: – Просторные офисы: арендопригодная площадь здания – 4 600 м². – Высота потолков: 3,0 м, создает светлую и просторную атмосферу. – Наличие лифтов: удобство для сотрудников и гостей. – Интернет-провайдер: ОБИТ, обеспечивающий надежную связь. – Парковка и транспортная доступность – Паркинг: 16 подземных машино-мест для сотрудников и клиентов. Транспортная доступность: шаговая доступность к станциям метро «Площадь Восстания» и «Маяковская», обеспечивающая удобное сообщение с любой частью города. Условия аренды – Площадь офиса: 279,8 м². – Стоимость аренды: 3 900 руб./кв. м/месяц (включая OPEX, коммунальные услуги, НДС). – Дополнительные расходы: интернет, телефония, уборка, электроэнергия. –Прямой договор с собственником: аренда без комиссий и скрытых платежей. Почему стоит выбрать офис в БЦ «Греческий»? Бизнес-центр «Греческий» – это современное пространство для компаний, стремящихся к успеху. Просторное помещение, высококлассная инфраструктура и отличное расположение в центре города делают это предложение идеальным для вашего бизнеса. Организуйте просмотр и убедитесь в преимуществах этого офиса. Заходите в профиль, чтобы увидеть еще больше интересных предложений.

Характеристики

Адрес

Город Санкт-Петербург
Округ ЦАО
Район Центральный
Адрес Лиговский пр-кт, 13-15, литера А

Об объекте

Тип сделки
Аренда
Класс
A
Площадь блока
280 м²
Год строительства
2010
Этаж
1
Лифты
4
Напольное покрытие
Фальшпол
Электроснабжение
50.00
Электричество
50 кВт/ч
Планировка
смешанная
НДС
включен
Операционные расходы
включены в арендную плату
Отделка
Есть

О здании

Этажность
5

Получите подробную презентацию объекта

NF Group

Инфраструктура

Все
Преимущества
Образование
Культура
Спорт
Инфраструктура
Мед. учреждения
NF Group
Профессиональные услуги по представлению интересов арендаторов

Получите консультацию эксперта NF GROUP

Как вам удобнее общаться?
Регина Волошенко
Регина Волошенко
Директор департамента офисной недвижимости

Посмотрите похожие предложения

/
Офис 583 м², 2 этаж - Miller
Приморский Испытателей пр-кт, 39
17 544 ₽ м² в год
Свернуть
ID: ol49376

Офис 583 м², 2 этаж - Miller

Приморский Испытателей пр-кт, 39
Комендантский Проспект
17 544 ₽ м² в год
583 м²
2 этаж
С отделкой
Класс B
WhatsApp Позвонить
Офис 493 м², 3 этаж - Miller
Приморский Испытателей пр-кт, 39
17 544 ₽ м² в год
Свернуть
ID: ol49377

Офис 493 м², 3 этаж - Miller

Приморский Испытателей пр-кт, 39
Комендантский Проспект
17 544 ₽ м² в год
493 м²
3 этаж
С отделкой
Класс B
WhatsApp Позвонить
Сдается офис 265 м², 13 этаж - Цеппелин
Московский Стартовая ул., 6
38 760 ₽ м² в год
Свернуть
ID: ol51207

Сдается офис 265 м², 13 этаж - Цеппелин

Московский Стартовая ул., 6
Звездная
38 760 ₽ м² в год
265 м²
13 этаж
С отделкой
Класс A
WhatsApp Позвонить
Офис 600 м², 3 этаж - Рентгена 5
Петроградский Рентгена ул., 5а
16 800 ₽ м² в год
Свернуть
ID: ol48971

Офис 600 м², 3 этаж - Рентгена 5

Петроградский Рентгена ул., 5а
Петроградская
16 800 ₽ м² в год
600 м²
3 этаж
С отделкой
Класс B
WhatsApp Позвонить
Офис 379 м², 4 этаж - Аэроплаза
Московский Стартовая ул., 8, литера А
26 916 ₽ м² в год
Свернуть
ID: ol49913

Офис 379 м², 4 этаж - Аэроплаза

Московский Стартовая ул., 8, литера А
Проспект Ветеранов, Московская
26 916 ₽ м² в год
379 м²
4 этаж
С отделкой
Класс A
WhatsApp Позвонить
Офис 541 м², 12 этаж - Смоленский
Василеостровский Уральская ул., 4, литера Б
17 028 ₽ м² в год
Свернуть
ID: ol49932

Офис 541 м², 12 этаж - Смоленский

Василеостровский Уральская ул., 4, литера Б
Спортивная
17 028 ₽ м² в год
541 м²
12 этаж
С отделкой
Класс B
WhatsApp Позвонить
Офис 260 м², 5 этаж - Gregory`s Palace
Выборгский Выборгская наб, 55, к. 3
37 848 ₽ м² в год
Свернуть
ID: ol49960

Офис 260 м², 5 этаж - Gregory`s Palace

Выборгский Выборгская наб, 55, к. 3
Лесная, Выборгская
37 848 ₽ м² в год
260 м²
5 этаж
С отделкой
Класс A
WhatsApp Позвонить
Аренда офиса 240 м², 5 этаж - Gregory`s Palace
Выборгский Выборгская наб, 55, к. 3
37 800 ₽ м² в год
Свернуть
ID: ol44737

Аренда офиса 240 м², 5 этаж - Gregory`s Palace

Выборгский Выборгская наб, 55, к. 3
Лесная, Выборгская
37 800 ₽ м² в год
240 м²
5 этаж
С отделкой
Класс A
WhatsApp Позвонить
Аренда офиса 715 м², 2 этаж - Обводный 28
Невский Обводного канала набережная, 28, стр. 1
14 400 ₽ м² в год
Свернуть
ID: ol44852

Аренда офиса 715 м², 2 этаж - Обводный 28

Невский Обводного канала набережная, 28, стр. 1
Обводный канал
14 400 ₽ м² в год
715 м²
2 этаж
Без отделки
Класс B
WhatsApp Позвонить
Аренда офиса 516 м², 2 этаж - LevelUp
Приморский Испытателей пр-кт, 30, к. 2 литера А
18 000 ₽ м² в год
Свернуть
ID: ol45334

Аренда офиса 516 м², 2 этаж - LevelUp

Приморский Испытателей пр-кт, 30, к. 2 литера А
Комендантский Проспект
18 000 ₽ м² в год
516 м²
2 этаж
С отделкой
WhatsApp Позвонить

Вы смотрели

/
Офис 104 м², 6 этаж - Gregory`s Palace
Выборгский Выборгская наб, 55, к. 3
315 016 ₽ в месяц
Свернуть
ID: ol49124

Офис 104 м², 6 этаж - Gregory`s Palace

Выборгский Выборгская наб, 55, к. 3
Лесная, Выборгская
315 016 ₽ в месяц
104 м²
6 этаж
С отделкой
Класс A
WhatsApp Позвонить
Б. Садовая, д. 6 стр.2, торговая площадь 27.0 м² - продажа
Москва Пресненский Большая Садовая ул., 6, стр. 2
Цена по запросу
Свернуть
ID: s233194

Б. Садовая, д. 6 стр.2, торговая площадь 27.0 м² - продажа

Москва Пресненский Большая Садовая ул., 6, стр. 2
Маяковская
Цена по запросу
Площадь 27 м²
Витрины
WhatsApp Позвонить
NF Group
Авторизация
Мы используем файлы cookie, чтобы улучшить сервис для вас.
Соглашение об использовании