+7 (812) 363-22-22 Продать объект Объект
Контакты О компании Аналитика Стать партнером Карьера
Продать / сдать Элитную недвижимость
Asgard
NF Group
NF Group
NF Group
NF Group
NF Expert
Наши эксперты ответят на все ваши вопросы
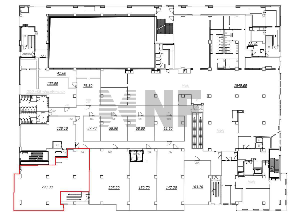
Планировка

Сдается офис 293 м², 4 этаж - Asgard

Приморская
28 800
703 920  ₽ / мес.
355
8 693  $ / мес.
306
7 481  € / мес.
$
за м²/год
Whatsapp
28 800
703 920  ₽ / мес.
355
8 693  $ / мес.
306
7 481  € / мес.
$
за м²/год
ID ol47288
 Регина Волошенко
Регина Волошенко
Директор департамента офисной недвижимости
NF Group
Предложите нам свою цену, и мы свяжемся с вами

Описание

В аренду предлагается офисное помещение в БЦ «Asgard», по адресу: ул. Наличная д. 44, к. 1 БЦ находится в пешей доступности от ст. м. «Приморская» – 7 минут пешком. Арендная ставка: от 2200 до 2400 руб. за м²/мес. - 9 этажей, общая площадь – 40 000 м² - Дата постройки: 2019 - Класс: B+ - Паркинг: 15 машиномест - Панорамное остекление - Центральное кондиционирование - Приточно-вытяжная вентиляция - Электроснабжение: 1 категория - Провайдеры: Петросвязь - Инфраструктура: магазины, банкомат, кафе, центральная рецепция, фитнес-клуб. Для просмотра или уточнения деталей — звоните! Наши специалисты оперативно проконсультируют вас по любым вопросам!

Характеристики

Адрес

Город Санкт-Петербург
Район Василеостровский
Адрес Наличная ул., 44, к. 1, стр. 1

Об объекте

Тип сделки
Аренда
Класс
B+
Площадь блока
293 м²
Год строительства
2019
Этаж
4
Операционные расходы
160 руб. м² в месяц

О здании

Тип здания
Бизнес-центр
Этажность
9
Общая площадь
40 000 м²
Предложений в аренду
9
Площадь предложений в аренду
128 - 5 224 м²

Получите подробную презентацию объекта

NF Group

Инфраструктура

Все
Преимущества
Образование
Культура
Спорт
Инфраструктура
Мед. учреждения

Бизнес-центр Asgard

В аренду предлагается офисное помещение в БЦ «Asgard», по адресу: ул. Наличная д. 44, к. 1 БЦ находится в пешей доступности от ст. м. «Приморская» – 7 минут пешком. Арендная ставка: от 2200 до 2400 руб. за м²/мес. - 9 этажей, общая площадь – 40 000 м² - Дата постройки: 2019 - Класс: B+ - Паркинг: 15 машиномест - Панорамное остекление - Центральное кондиционирование - Приточно-вытяжная вентиляция - Электроснабжение: 1 категория - Провайдеры: Петросвязь - Инфраструктура: магазины, банкомат, кафе, центральная рецепция, фитнес-клуб. Для просмотра или уточнения деталей — звоните! Наши специалисты оперативно проконсультируют вас по любым вопросам!
Предложений в аренду 9
Площадь предложений в аренду 128 - 5 224 м²
Подробнее
NF Group
NF Group
Профессиональные услуги по представлению интересов арендаторов

Получите консультацию эксперта NF GROUP

Как вам удобнее общаться?
Регина Волошенко
Регина Волошенко
Директор департамента офисной недвижимости

Посмотрите похожие предложения

/
Аренда офиса 297 м², 5 этаж - Вестник
Центральный Невский пр-кт, 102, литера С
27 300 ₽ м² в год
Свернуть
ID: ol47127

Аренда офиса 297 м², 5 этаж - Вестник

Центральный Невский пр-кт, 102, литера С
Маяковская
27 300 ₽ м² в год
297 м²
5 этаж
С отделкой
Класс A
WhatsApp Позвонить
Аренда офиса 537 м², 2 этаж - Обводный 28
Невский Обводного канала набережная, 28, стр. 1
14 400 ₽ м² в год
Свернуть
ID: ol38686

Аренда офиса 537 м², 2 этаж - Обводный 28

Невский Обводного канала набережная, 28, стр. 1
Обводный канал
14 400 ₽ м² в год
537 м²
2 этаж
Без отделки
Класс B
WhatsApp Позвонить
Аренда офиса 268 м², 1 этаж - Коворкинг ПРОСПЕКТ
Центральный Правды ул., 12/12
27 262 ₽ м² в год
Свернуть
ID: ol46496

Аренда офиса 268 м², 1 этаж - Коворкинг ПРОСПЕКТ

Центральный Правды ул., 12/12
Звенигородская, Пушкинская
27 262 ₽ м² в год
268 м²
1 этаж
С отделкой
Класс A
WhatsApp Позвонить
Офис 670 м², 3 этаж - Анкор
Красногвардейский Якорная ул., 7
11 760 ₽ м² в год
Свернуть
ID: ol48247

Офис 670 м², 3 этаж - Анкор

Красногвардейский Якорная ул., 7
Ладожская
11 760 ₽ м² в год
670 м²
3 этаж
С отделкой
Класс B
WhatsApp Позвонить
Офис 289 м², 1 этаж - Sweden House
Центральный Малая Конюшенная ул., 1-3
33 600 ₽ м² в год
Свернуть
ID: ol48425

Офис 289 м², 1 этаж - Sweden House

Центральный Малая Конюшенная ул., 1-3
Невский проспект, Гостиный Двор
33 600 ₽ м² в год
289 м²
1 этаж
С отделкой
Класс B+
WhatsApp Позвонить
Офис 223 м², 11 этаж - Мельник
Невский Профессора Качалова ул., 7
32 400 ₽ м² в год
Свернуть
ID: ol49084

Офис 223 м², 11 этаж - Мельник

Невский Профессора Качалова ул., 7
Площадь Александра Невского
32 400 ₽ м² в год
223 м²
11 этаж
С отделкой
Класс B+
WhatsApp Позвонить
Офис 389 м², 3 этаж - Amber Hall
Красногвардейский Энергетиков пр-кт, 4, к. 1, стр. 1
19 200 ₽ м² в год
Свернуть
ID: ol49364

Офис 389 м², 3 этаж - Amber Hall

Красногвардейский Энергетиков пр-кт, 4, к. 1, стр. 1
Ладожская
19 200 ₽ м² в год
389 м²
3 этаж
С отделкой
Класс B+
WhatsApp Позвонить
Офис 534 м², 3 этаж - Смоленский
Василеостровский Уральская ул., 4, литера Б
14 388 ₽ м² в год
Свернуть
ID: ol49466

Офис 534 м², 3 этаж - Смоленский

Василеостровский Уральская ул., 4, литера Б
Спортивная
14 388 ₽ м² в год
534 м²
3 этаж
С отделкой
Класс B
WhatsApp Позвонить
Офис 540 м², 11 этаж - Смоленский
Василеостровский Уральская ул., 4, литера Б
16 788 ₽ м² в год
Свернуть
ID: ol49931

Офис 540 м², 11 этаж - Смоленский

Василеостровский Уральская ул., 4, литера Б
Спортивная
16 788 ₽ м² в год
540 м²
11 этаж
С отделкой
Класс B
WhatsApp Позвонить
Аренда офиса 405 м², 3 этаж - LevelUp
Приморский Испытателей пр-кт, 30, к. 2 литера А
18 000 ₽ м² в год
Свернуть
ID: ol45335

Аренда офиса 405 м², 3 этаж - LevelUp

Приморский Испытателей пр-кт, 30, к. 2 литера А
Комендантский Проспект
18 000 ₽ м² в год
405 м²
3 этаж
С отделкой
WhatsApp Позвонить

Вы смотрели

/
Апартаменты в современном жилом комплексе в деловом центре Лиссабона
Португалия, Лиссабон
от 880 000 €
Свернуть
ID: ir2268

Апартаменты в современном жилом комплексе в деловом центре Лиссабона

Португалия, Лиссабон
от 880 000 €
Площадь от 96 м²
1 - 3 спальни
WhatsApp Позвонить
NF Group
Авторизация
Мы используем файлы cookie, чтобы улучшить сервис для вас.
Соглашение об использовании